| 标题
快捷导航

精彩推荐:MY0511客户端下载

    • 中信银行镇江分行

    • 公益体彩 乐善人生

    • 鹏龙鸿蒙

    • 天然石材·人造石

    » 梦溪论坛 » 家庭装修 » 华浔品味装饰 » 北固湾——美式——《华浔品味装饰首席设计师:王菲》
    华浔品味装饰  >  [在建工地] 北固湾——美式——《华浔品味装饰首席设计师:王菲》     
    查看: 7946  回复: 1
    [在建工地] 北固湾——美式——《华浔品味装饰首席设计师:王菲》      查看: 7946  回复: 1
    • 来自 江苏省
    • 精华 659
    • 注册 2010-4-5
    • 行业 其它
    •  
    北固湾——美式——《华浔品味装饰首席设计师:王菲》

    【业主】:孙女士         

    【设计风格】:美 式

    【设计师】:王 菲   

    开工啦

         

    户型展示
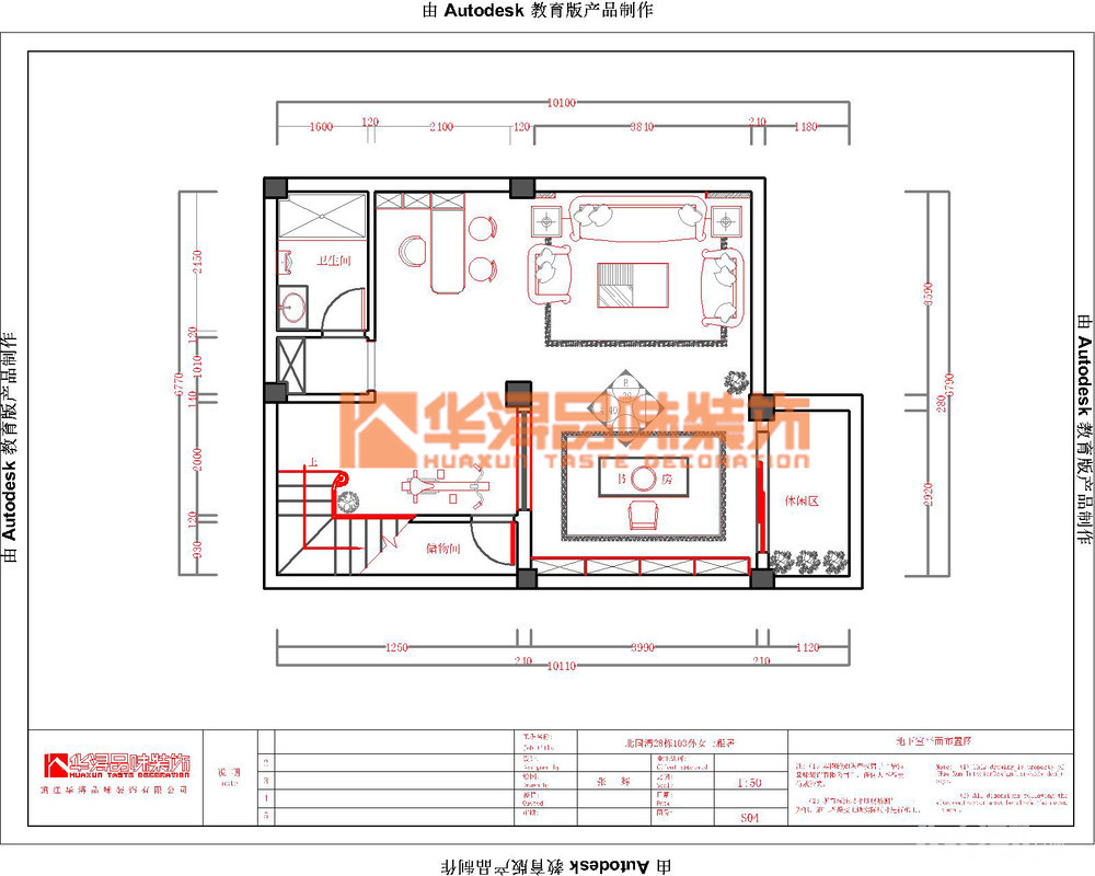
    地下室原始图:

    一楼原始图:

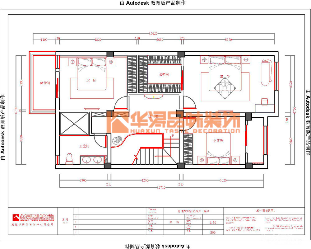
    二楼原始图:


    地下室方案图:


    一楼方案图:

    二楼方案图:


    效果图欣赏
    客厅效果图:


    餐厅效果图:

       
    地下室效果图:

    卧室效果图:




    [ 本帖最后由 广东华浔装饰 于 17-7-25 15:42 编辑 ]





                      
    • 来自 江苏省
    • 精华 0
    • 注册 2017-3-14
    •  



    [ 本帖最后由 广东华浔装饰 于 17-7-25 15:38 编辑 ]




    查看积分策略说明快速回复主题
    您目前还是游客,请 登录注册
    您目前是游客,本帖已被系统设置了自动关闭,不可回复!

    0/5000字

     
    < >
     

    Powered by Discuz! X 2 0.059733 s 清除 Cookies - 镇江网友之家 - 手机版
    论坛导航 关闭