| 标题
快捷导航

精彩推荐:MY0511客户端下载

    • 中信银行镇江分行

    • 公益体彩 乐善人生

    • 鹏龙鸿蒙

    • 天然石材·人造石

    » 梦溪论坛 » 家庭装修 » 华浔品味装饰 » 驸马山庄一期(320平)——北欧——《华浔品味装饰首席设计师:刘诗琪》
    华浔品味装饰  >  [作品欣赏] 驸马山庄一期(320平)——北欧——《华浔品味装饰首席设计师:刘诗琪》     
    查看: 8238  回复: 3
    [作品欣赏] 驸马山庄一期(320平)——北欧——《华浔品味装饰首席设计师:刘诗琪》      查看: 8238  回复: 3
    • 来自 江苏省
    • 精华 659
    • 注册 2010-4-5
    • 行业 其它
    •  
    驸马山庄一期(320平)——北欧——《华浔品味装饰首席设计师:刘诗琪》


    【案例地址】:驸马山庄一期B区L座

    【建筑面积】:320㎡                  

    【案例风格】:北 欧                     

      【设计师】:刘诗琪                    


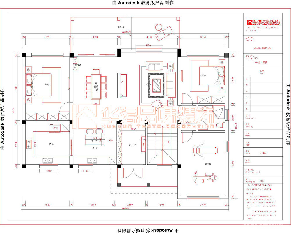
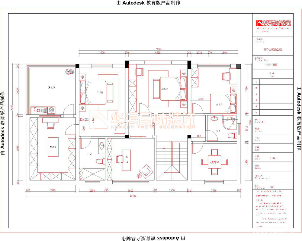
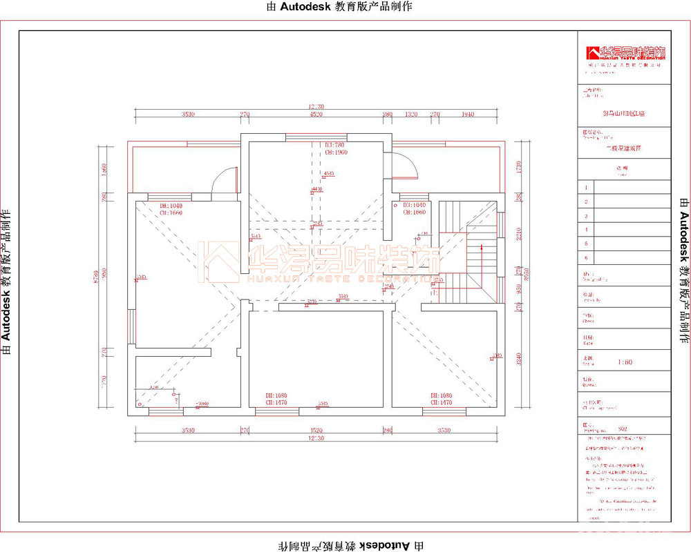
    户型展示
    一楼原建图


    二楼原建图

    一楼平面布置

    二楼平面布置图




    [ 本帖最后由 广东华浔装饰 于 17-7-8 17:17 编辑 ]





                      
    • 来自 江苏省
    • 精华 659
    • 注册 2010-4-5
    • 行业 其它
    •  

    效果图赏析







    [ 本帖最后由 广东华浔装饰 于 17-7-8 17:15 编辑 ]




    • 来自 江苏省
    • 精华 0
    • 注册 2013-10-17
    •  

    好设计




    • 来自 江苏省
    • 精华 659
    • 注册 2010-4-5
    • 行业 其它
    •  

    华浔施工工艺

    19年粤派工艺的开创和传承者

    甄选上千套案例与经典作品

    选择您与家人最满意的装修风格

    华浔施工工艺展示










    查看积分策略说明快速回复主题
    您目前还是游客,请 登录注册
    您目前是游客,本帖已被系统设置了自动关闭,不可回复!

    0/5000字

     
    < >
     

    Powered by Discuz! X 2 0.060611 s 清除 Cookies - 镇江网友之家 - 手机版
    论坛导航 关闭