| 标题
快捷导航

精彩推荐:MY0511客户端下载

    • 中信银行镇江分行

    • 公益体彩 乐善人生

    • 鹏龙鸿蒙

    • 天然石材·人造石

    » 梦溪论坛 » 家庭装修 » 华浔品味装饰 » 香榭丽舍(450平)——美式——《华浔品味装饰首席设计师:王菲》
    华浔品味装饰  >  [作品欣赏] 香榭丽舍(450平)——美式——《华浔品味装饰首席设计师:王菲》     
    查看: 11700  回复: 4
    [作品欣赏] 香榭丽舍(450平)——美式——《华浔品味装饰首席设计师:王菲》      查看: 11700  回复: 4
    • 来自 江苏省
    • 精华 659
    • 注册 2010-4-5
    • 行业 其它
    •  
    香榭丽舍(450平)——美式——《华浔品味装饰首席设计师:王菲》

    【案例地址】:香榭丽舍10栋103   

    【案例风格】:美式风格            

    【建筑面积】:450㎡               

    【设计师】:王 菲                           

    户型赏析
    隔层方案设计图


      此阁层结构基本不动,保留原有车库,将原建的杂物间整体化,可作储物间,

    也可随时变换为保姆房,预留卫生间,更为人性化!
    一楼方案设计图


          客餐厅本为跃式错层结构,空间功能规化明确,点眼之笔在于餐厅与厨房的改造,

    开方式的厨房设计,精致独立的导台,配套的设施,不仅解决了原来暗淡的光线问

    题,更能让女主人拥有美好的心情在此为家人 准备美食。将餐边柜融入餐厅背景

    当中,韵味十足。

    二楼方案设计图


       将南面原有的两处房间合二为一,为作男孩房,踏踏米的设计,让儿童房瞬间活跃起

    来,北面卧室往南面加建出一处独立的空间,用全落地玻璃作为与外界的隔断,此处

    可作书房,休闲区,让卧室充满阳光,功能更为齐全,符合套间标准。

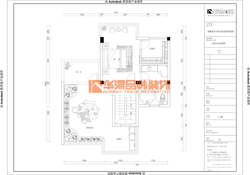
    三楼方案设计图


    将原卧室阳台改造成为室内的一部分,使空间开阔明朗。主浴室的圆形浴缸设计,精

    致奢华,趣味漫浪。本为全封闭式阳光房,通过加建改造,留有露天观景阳台,在此   

    可以俯视观赏到整个别墅的庭院和区内将美式风格体现的淋漓尽致的别墅外观,感觉   

    天人合一。

    )         



    [ 本帖最后由 广东华浔装饰 于 17-7-16 17:43 编辑 ]





                      
    • 来自 江苏省
    • 精华 659
    • 注册 2010-4-5
    • 行业 其它
    •  

    实景图欣赏   

       
    客厅运用简约的墙体造型和意大利进口复古的地面装饰元素,以及顶面局部的

    护墙板线条点缀,使空间整体气氛带有一种优雅的休闲韵味。
                
    餐厅外加开放式厨房是女主人最喜欢的地方,可在此备食,招待客人,享受美食。

    温润的木材给进餐环境带来了温馨感!体现了个空间的细致与讲究。

    二楼宽敞的主卧室为套间的设计,硬件上功能齐全,得体到位。主卧配备休闲区,

    可在这里看书、学习、瑜珈,饮茶等,独特的墙布搭配,体现了业主的个性。

          
      宽敞的男孩房床边的踏踏米设计,为孩童的最爱,条型的窗帘布艺与床具的布艺造型

    互应,也象征着男孩该有的阳刚之气!


           三楼主卧配备独立衣帽间,超大阳光房,在露天的休闲阳台上可以俯视观赏到整个别墅的

    庭院和区内将美式风格体现的淋漓尽致的别墅外观,感觉天人合一。

                南入户的拱门以及壁炉和定制实木护墙,低调奢华,透过玄关古典的美式木门,纯白的纱帘,

    可以直接欣赏到别致的庭院景观,美伦美换!

    [attach]22123093[/attach]


                        



    [ 本帖最后由 广东华浔装饰 于 17-7-16 17:43 编辑 ]




    • 来自 江苏省
    • 精华 659
    • 注册 2010-4-5
    • 行业 其它
    •  

    华浔施工工艺

    19年粤派工艺的开创和传承者

    甄选上千套案例与经典作品

    选择您与家人最满意的装修风格

    华浔施工工艺展示









    [ 本帖最后由 广东华浔装饰 于 17-4-23 18:58 编辑 ]




    • 来自 江苏省
    • 精华 0
    • 注册 2013-10-17
    •  

    美女设计师 服务很细心




    • 来自 江苏省
    • 精华 0
    • 注册 2013-9-4
    •  

    加微信13812455206




    查看积分策略说明快速回复主题
    您目前还是游客,请 登录注册
    您目前是游客,本帖已被系统设置了自动关闭,不可回复!

    0/5000字

     
    < >
     

    Powered by Discuz! X 2 0.063601 s 清除 Cookies - 镇江网友之家 - 手机版
    论坛导航 关闭