| 标题
快捷导航

精彩推荐:MY0511客户端下载

    • 中信银行镇江分行

    • 公益体彩 乐善人生

    • 鹏龙鸿蒙

    • 天然石材·人造石

    » 梦溪论坛 » 家庭装修 » 华浔品味装饰 » 山林名墅(310平)——经典美式——《华浔品味装饰设计总监:陈淑》
    华浔品味装饰  >  [作品欣赏] 山林名墅(310平)——经典美式——《华浔品味装饰设计总监:陈淑》     
    查看: 6790  回复: 1
    [作品欣赏] 山林名墅(310平)——经典美式——《华浔品味装饰设计总监:陈淑》      查看: 6790  回复: 1
    • 来自 江苏省
    • 精华 659
    • 注册 2010-4-5
    • 行业 其它
    •  
    山林名墅(310平)——经典美式——《华浔品味装饰设计总监:陈淑》

    【案例地址】:山林名墅31栋103室                          

    【建筑面积】:310㎡                             

    【案例风格】:美 式                                                              

    【设计师】:陈 淑                                       

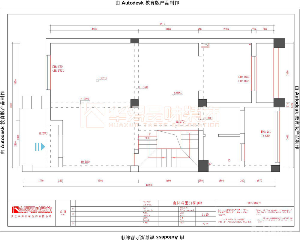
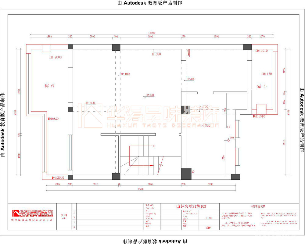
    户型赏析
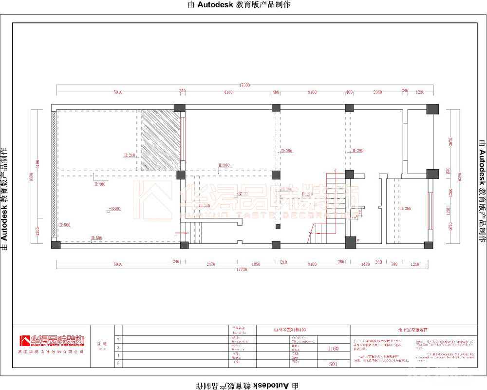
          地下室原始结构图


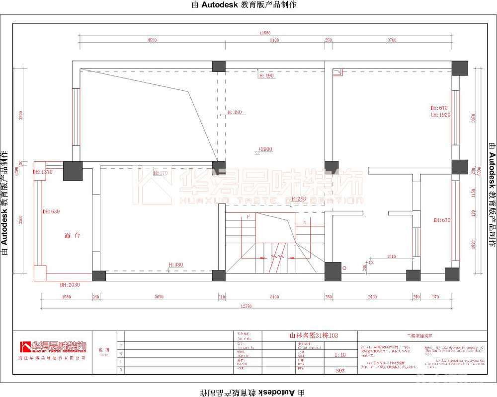
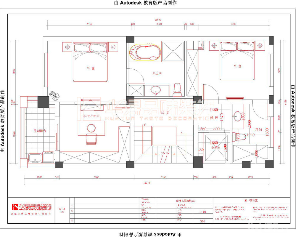
    一楼原始结构图

    二楼原始结构图

    三楼原始结构图

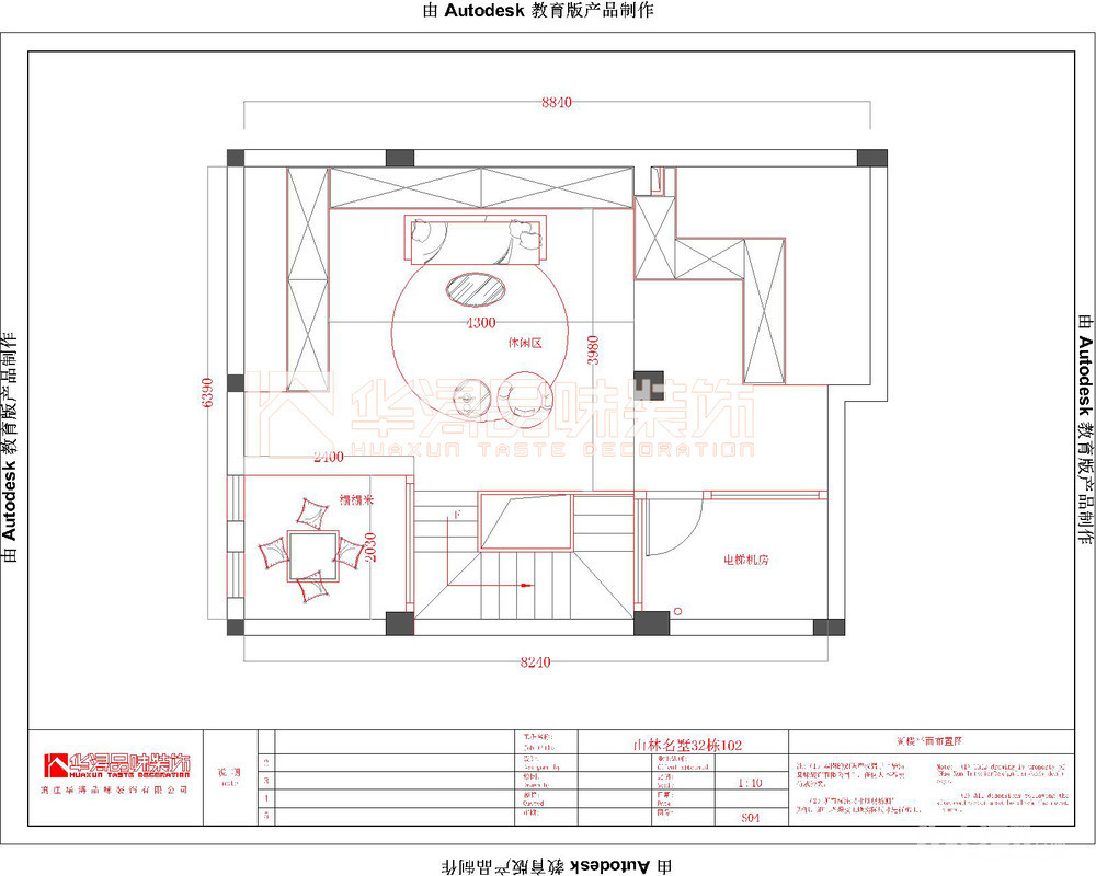
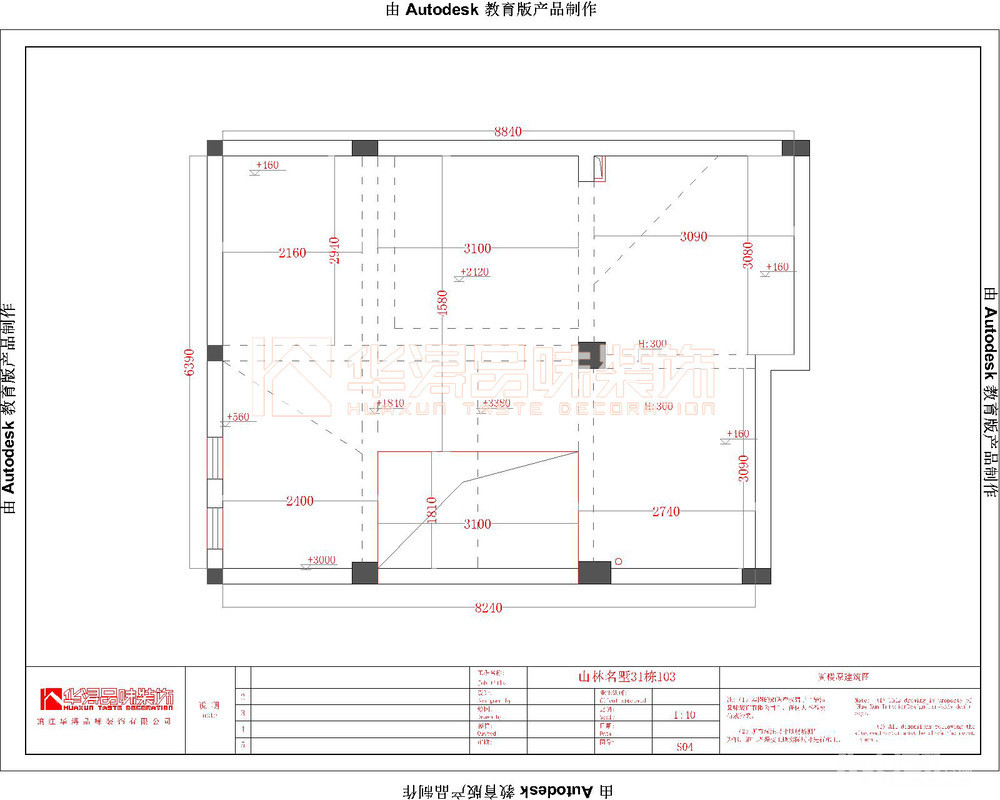
    阁楼原始结构图

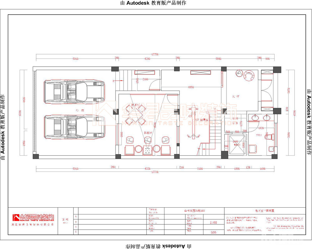
    地下室方案设计图

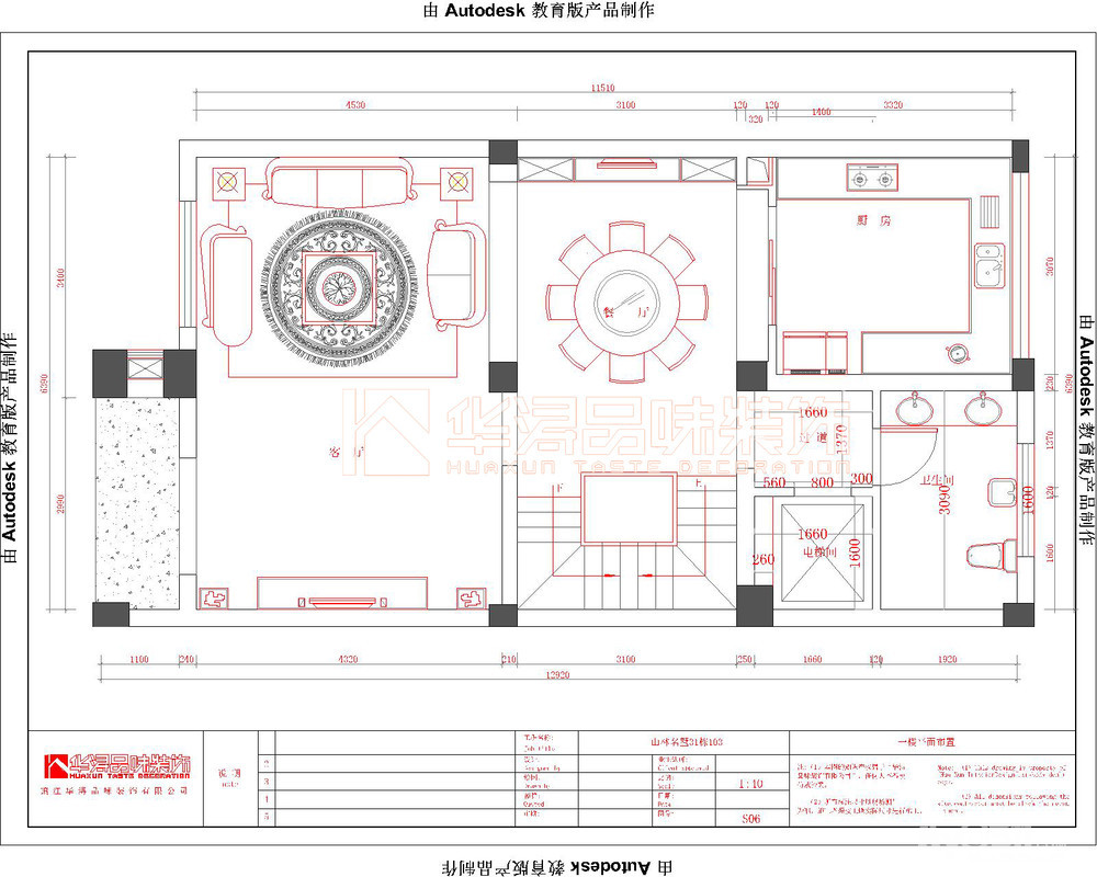
    一楼方案设计图

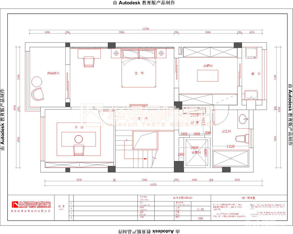
    二楼方案设计图

    三楼方案设计图

    阁楼方案设计图









    [ 本帖最后由 广东华浔装饰 于 17-7-16 17:24 编辑 ]





                      
    • 来自 江苏省
    • 精华 659
    • 注册 2010-4-5
    • 行业 其它
    •  

    效果图赏析


       
       
       
       
       
       
       
       
       



    [ 本帖最后由 广东华浔装饰 于 17-7-16 16:51 编辑 ]




    查看积分策略说明快速回复主题
    您目前还是游客,请 登录注册
    您目前是游客,本帖已被系统设置了自动关闭,不可回复!

    0/5000字

     
    < >
     

    Powered by Discuz! X 2 0.059054 s 清除 Cookies - 镇江网友之家 - 手机版
    论坛导航 关闭