| 标题
快捷导航

精彩推荐:MY0511客户端下载

    • 中信银行镇江分行

    • 公益体彩 乐善人生

    • 鹏龙鸿蒙

    • 天然石材·人造石

    » 梦溪论坛 » 家庭装修 » 华浔品味装饰 » 优山美地(240平)——简美——《华浔品味装饰首席设计师:王菲》
    华浔品味装饰  >  [作品欣赏] 优山美地(240平)——简美——《华浔品味装饰首席设计师:王菲》     
    查看: 6546  回复: 1
    [作品欣赏] 优山美地(240平)——简美——《华浔品味装饰首席设计师:王菲》      查看: 6546  回复: 1
    • 来自 江苏省
    • 精华 659
    • 注册 2010-4-5
    • 行业 其它
    •  
    优山美地(240平)——简美——《华浔品味装饰首席设计师:王菲》

    【案例地址】:优山美地138-402室

    【建筑面积】:240㎡                     

    【案例风格】:简 欧                        

    【设计师】:王 菲                           

             

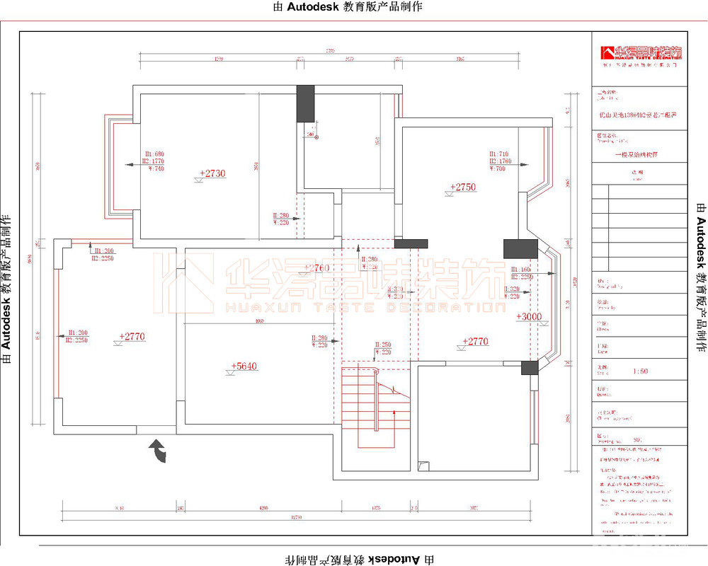
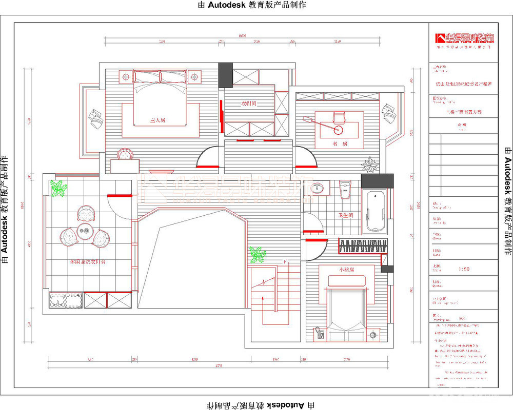
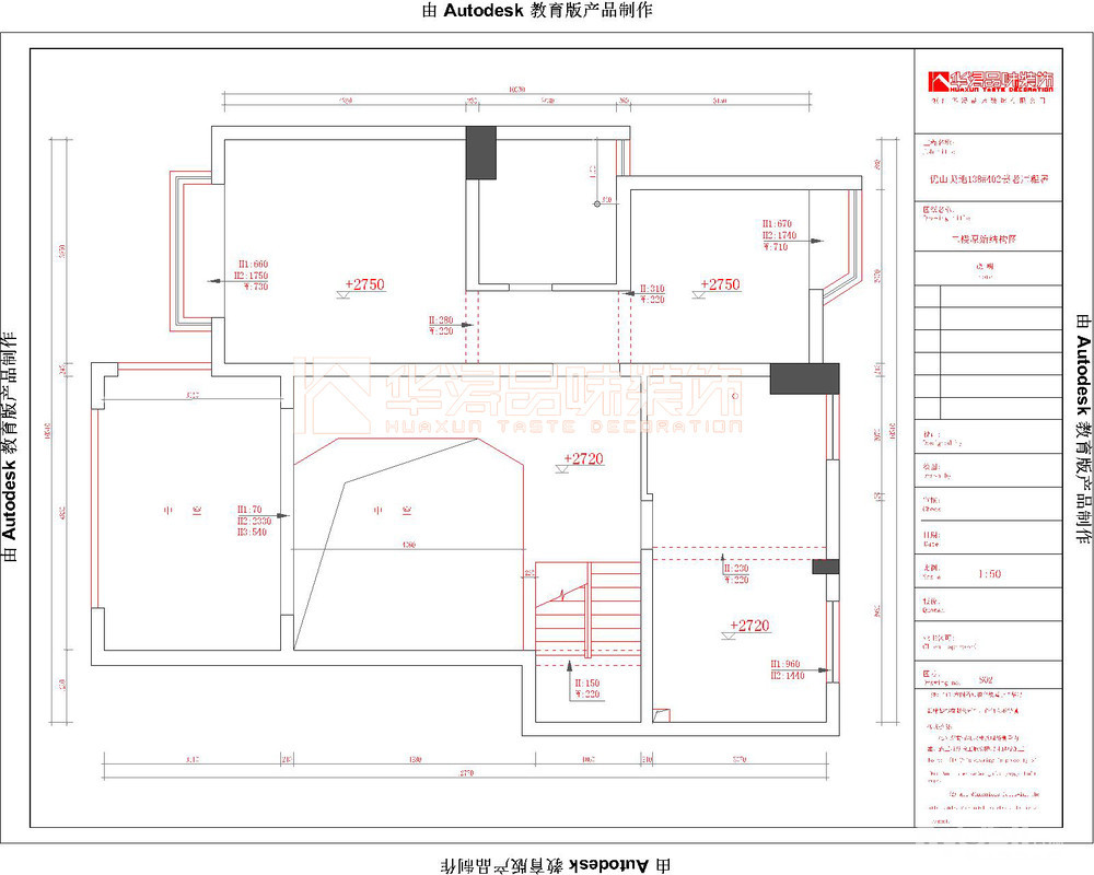
    户型赏析
    一楼原始结构图

                
    二楼原始结构图

    一楼方案设计图

    二楼方案设计图





       



    [ 本帖最后由 广东华浔装饰 于 17-7-16 16:59 编辑 ]





                      
    • 来自 江苏省
    • 精华 659
    • 注册 2010-4-5
    • 行业 其它
    •  

    效果图赏析


       
       




    [ 本帖最后由 广东华浔装饰 于 17-7-16 16:57 编辑 ]




    查看积分策略说明快速回复主题
    您目前还是游客,请 登录注册
    您目前是游客,本帖已被系统设置了自动关闭,不可回复!

    0/5000字

     
    < >
     

    Powered by Discuz! X 2 0.063280 s 清除 Cookies - 镇江网友之家 - 手机版
    论坛导航 关闭