| 标题
快捷导航

精彩推荐:MY0511客户端下载

    • 中信银行镇江分行

    • 公益体彩 乐善人生

    • 鹏龙鸿蒙

    • 天然石材·人造石

    » 梦溪论坛 » 家庭装修 » 华浔品味装饰 » 明发锦绣银山(420平)——新中式——《华浔品味装饰主任设计师:王丹》
    华浔品味装饰  >  [作品欣赏] 明发锦绣银山(420平)——新中式——《华浔品味装饰主任设计师:王丹》     
    查看: 6158  回复: 1
    [作品欣赏] 明发锦绣银山(420平)——新中式——《华浔品味装饰主任设计师:王丹》      查看: 6158  回复: 1
    • 来自 江苏省
    • 精华 659
    • 注册 2010-4-5
    • 行业 其它
    •  
    明发锦绣银山(420平)——新中式——《华浔品味装饰主任设计师:王丹》

    【案例地址】:明发锦绣银山4栋102室

    【建筑面积】:420㎡                        

    【案例风格】:新中式                          

    【设计师】:王 丹                               

         户型赏析
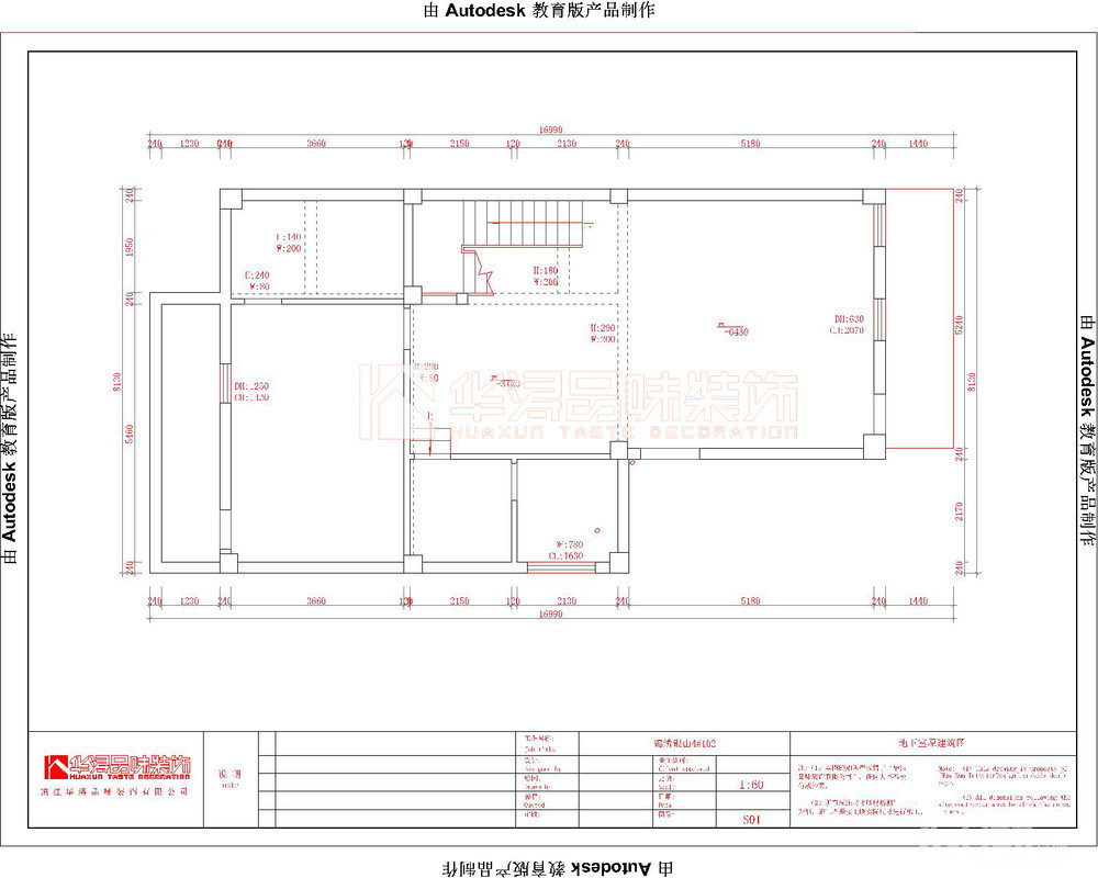
                  地下室原始结构图
            


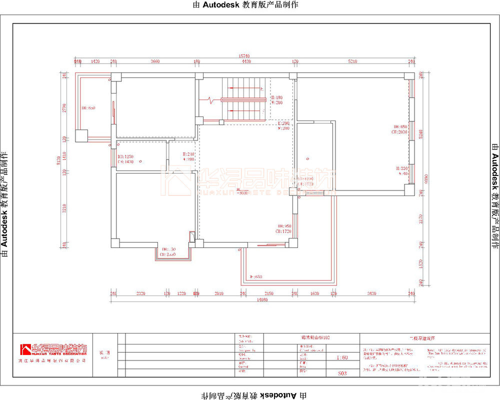
         一楼原始结构图
            
       二楼原始结构图
          
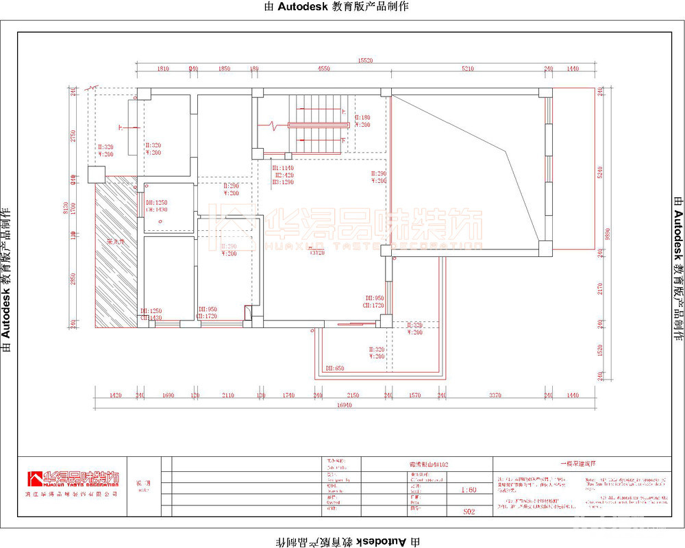
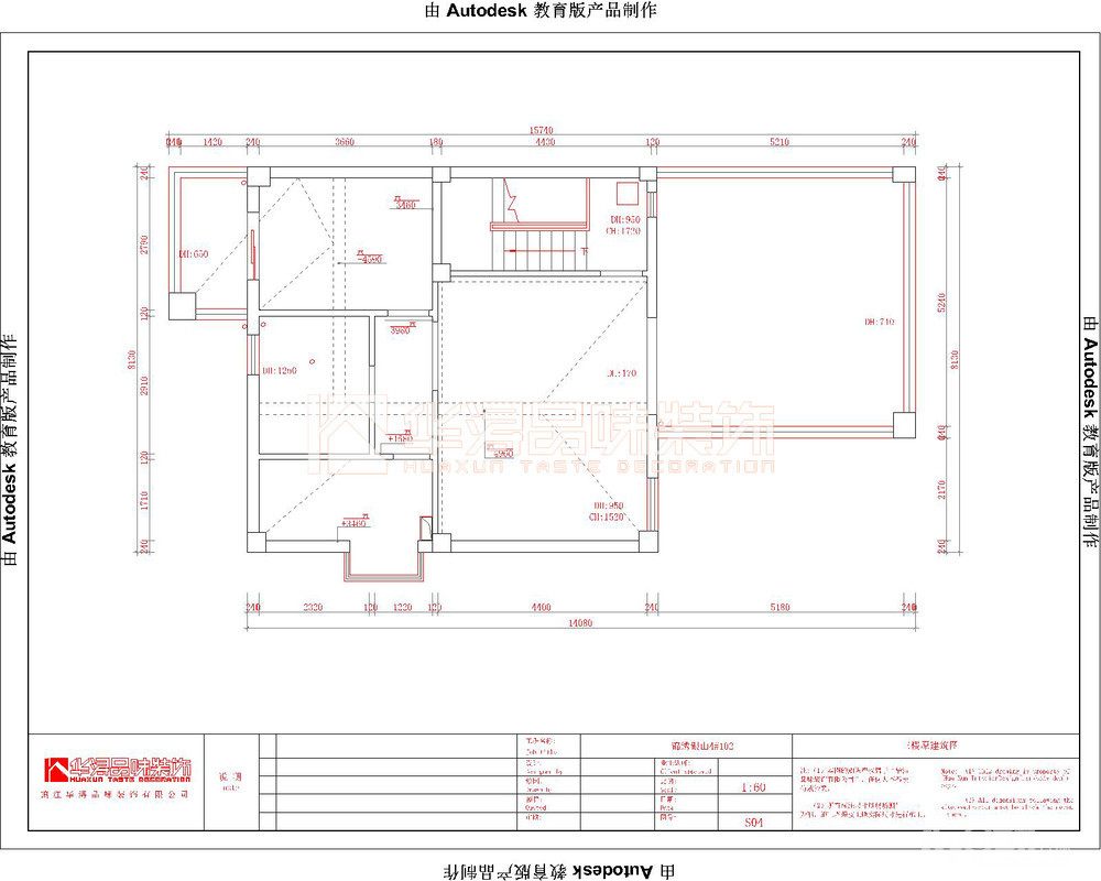
      三楼原始结构图
       
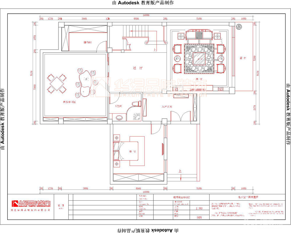
       地下室方案设计图

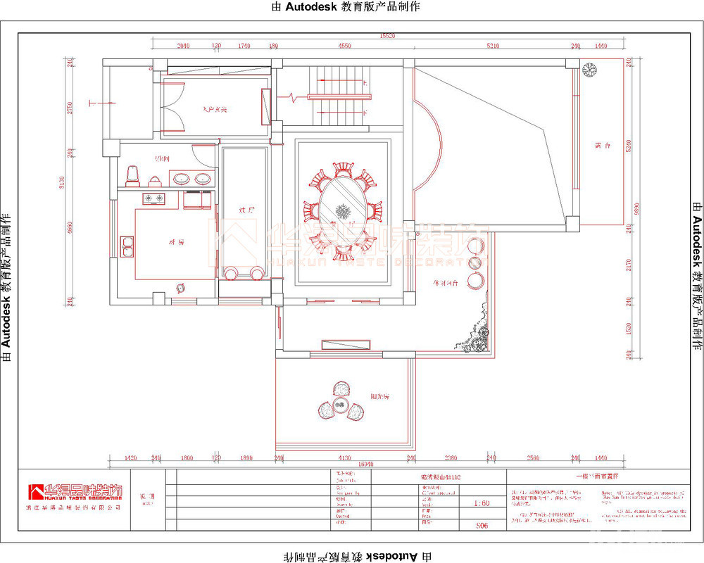
    一楼方案设计图

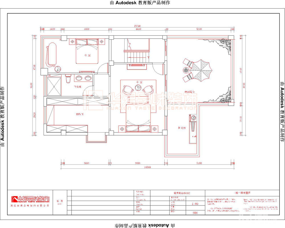
    二楼方案设计图

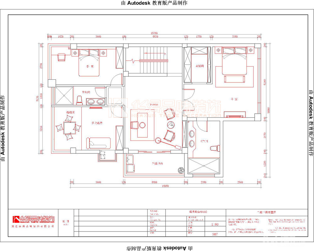
    三楼方案设计图







    [ 本帖最后由 广东华浔装饰 于 17-7-12 10:07 编辑 ]





                      
    • 来自 江苏省
    • 精华 659
    • 注册 2010-4-5
    • 行业 其它
    •  

    效果图赏析


       
       
       



    [ 本帖最后由 广东华浔装饰 于 17-7-12 10:08 编辑 ]




    查看积分策略说明快速回复主题
    您目前还是游客,请 登录注册
    您目前是游客,本帖已被系统设置了自动关闭,不可回复!

    0/5000字

     
    < >
     

    Powered by Discuz! X 2 0.057743 s 清除 Cookies - 镇江网友之家 - 手机版
    论坛导航 关闭