【案例地址】:江山名洲.紫院163栋106室
【建筑面积】:290㎡
【案例风格】:新中式
【设计师】:夏 雨
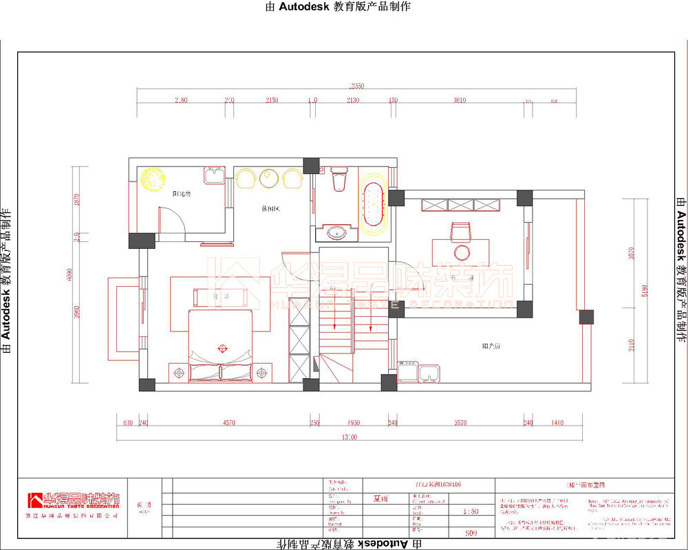
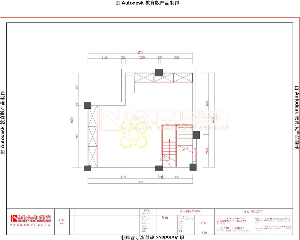
户型赏析
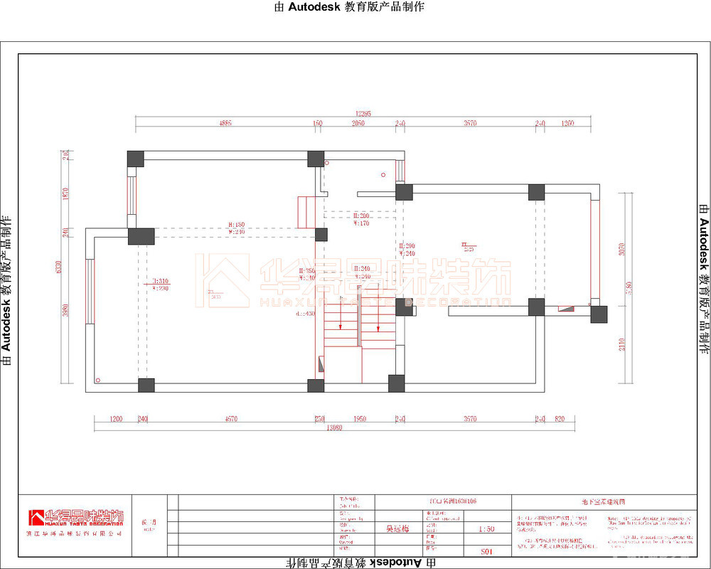
地下室原始结构图

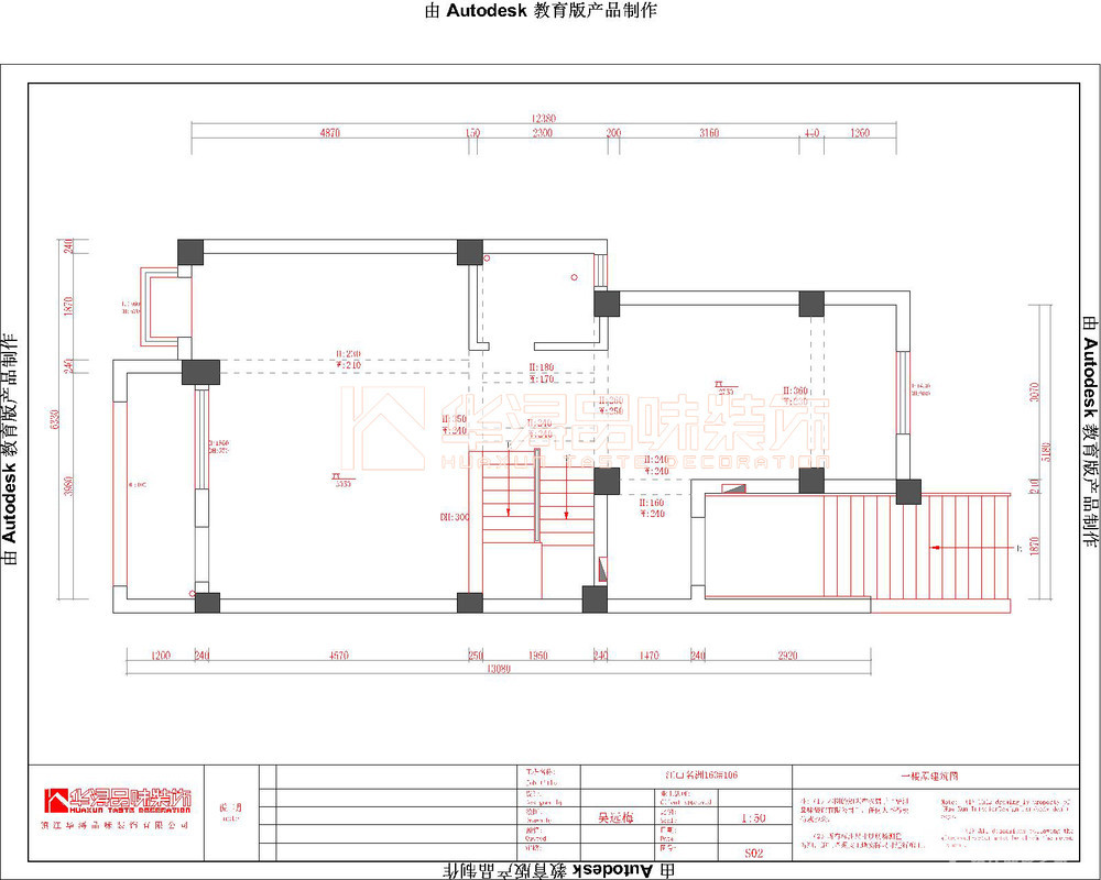
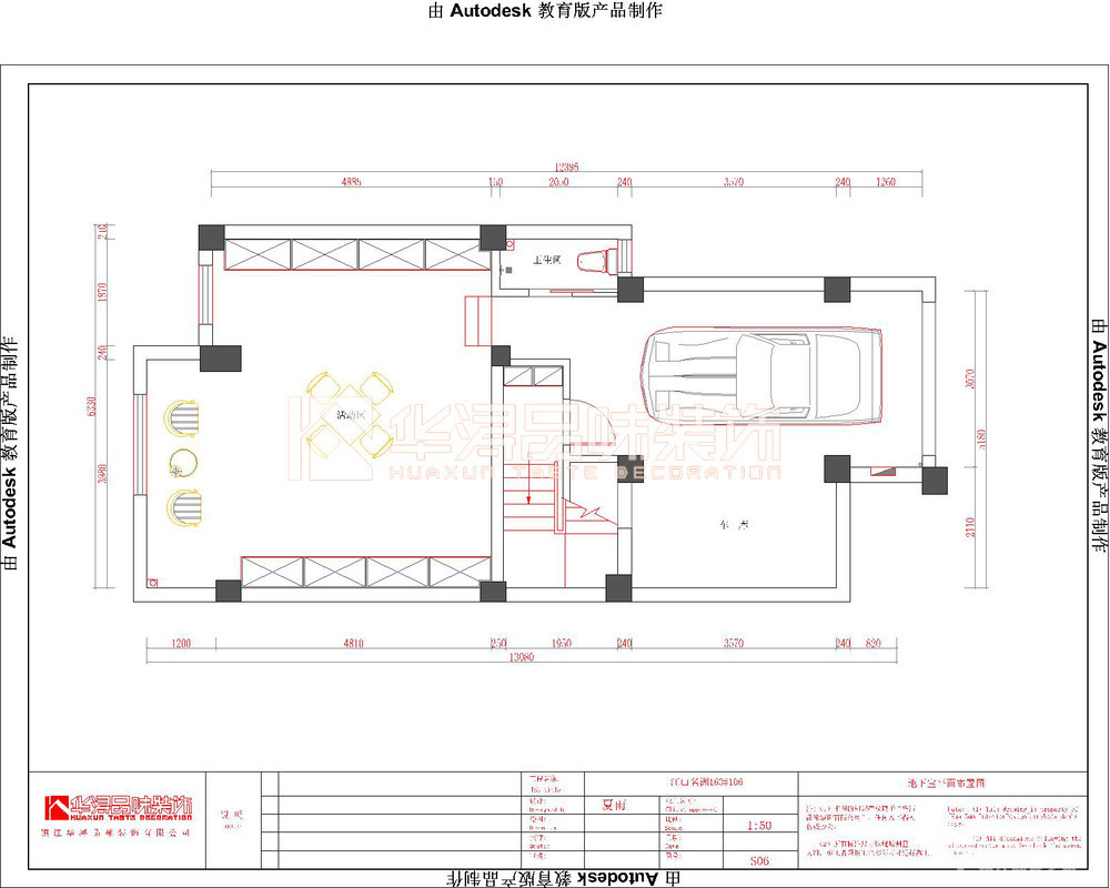
一楼原始结构图

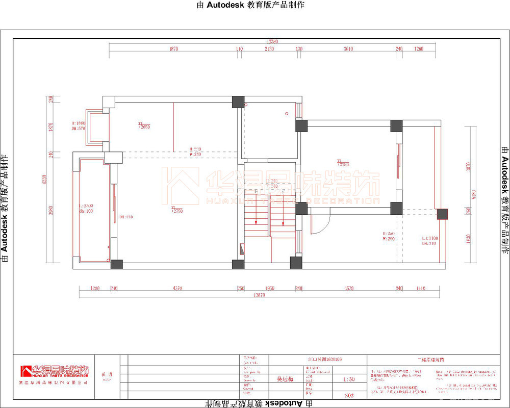
二楼原始结构图

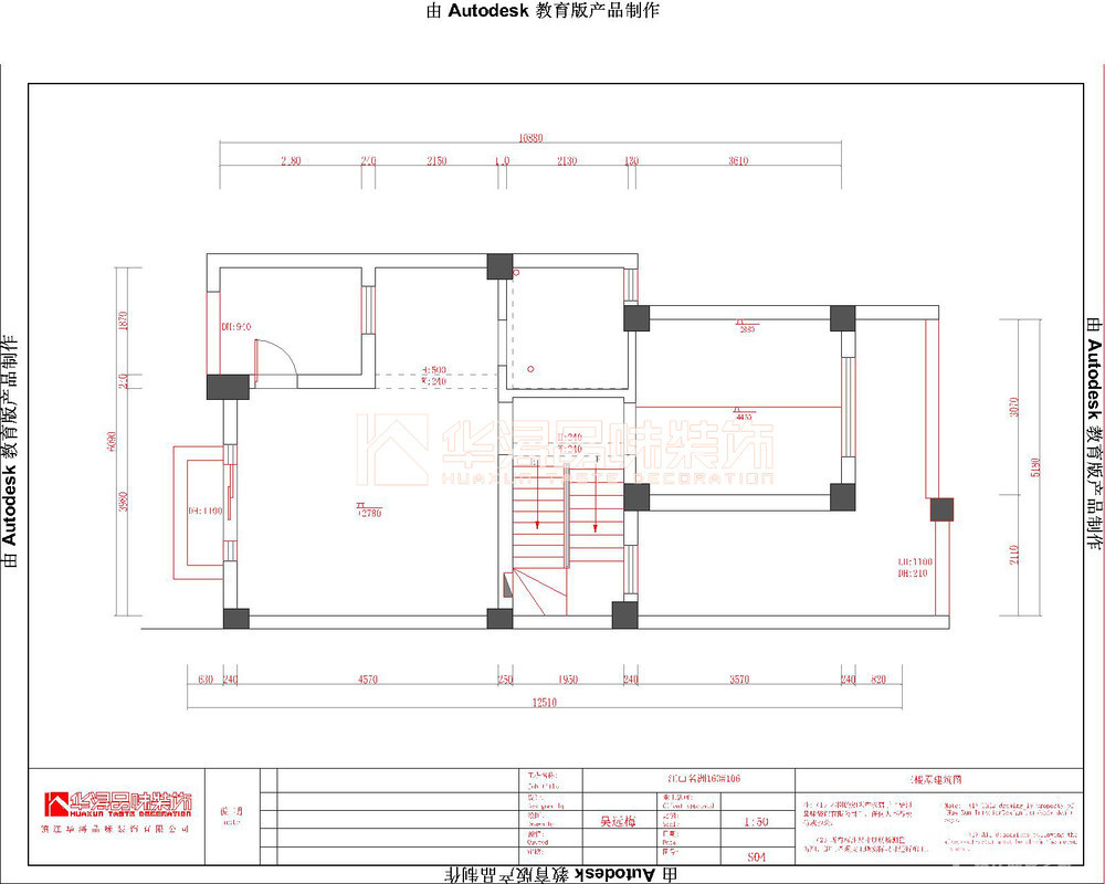
三楼原始结构图

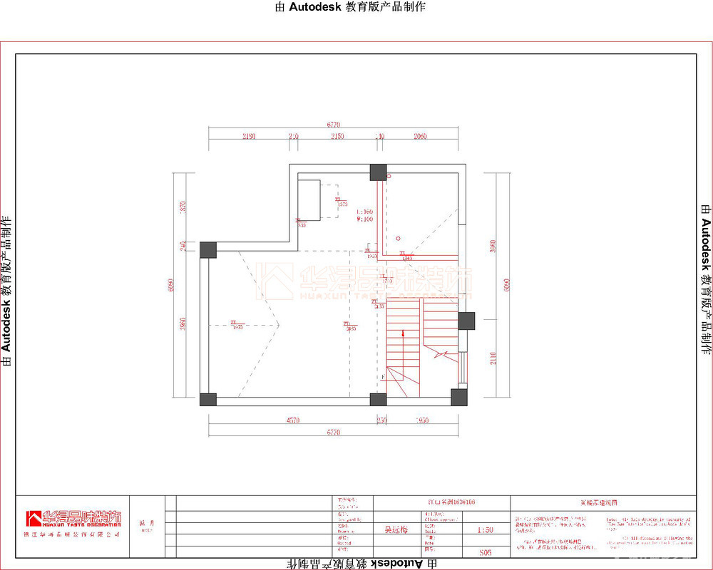
阁楼原始结构图

地下室方案设计图

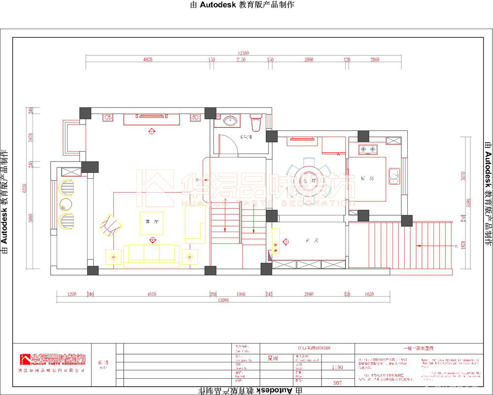
一楼方案设计图

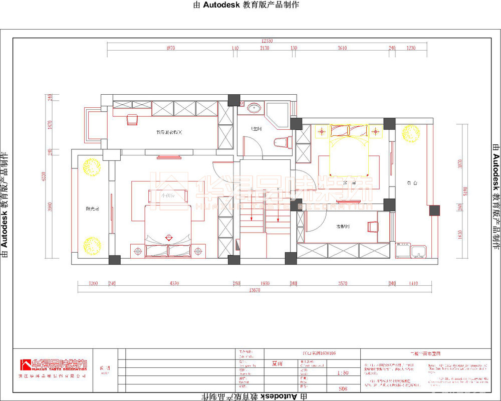
二楼方案设计图

三楼方案设计图

阁楼方案设计图

[ 本帖最后由 广东华浔装饰 于 17-7-12 09:38 编辑 ]











