| 标题
快捷导航

精彩推荐:MY0511客户端下载

    • 中信银行镇江分行

    • 公益体彩 乐善人生

    • 鹏龙鸿蒙

    • 天然石材·人造石

    » 梦溪论坛 » 家庭装修 » 华浔品味装饰 » 江南世家(140平)——现代简约——《华浔品味装饰主任设计师:郑楠》
    华浔品味装饰  >  [作品欣赏] 江南世家(140平)——现代简约——《华浔品味装饰主任设计师:郑楠》     
    查看: 6526  回复: 1
    [作品欣赏] 江南世家(140平)——现代简约——《华浔品味装饰主任设计师:郑楠》      查看: 6526  回复: 1
    • 来自 江苏省
    • 精华 659
    • 注册 2010-4-5
    • 行业 其它
    •  
    江南世家(140平)——现代简约——《华浔品味装饰主任设计师:郑楠》

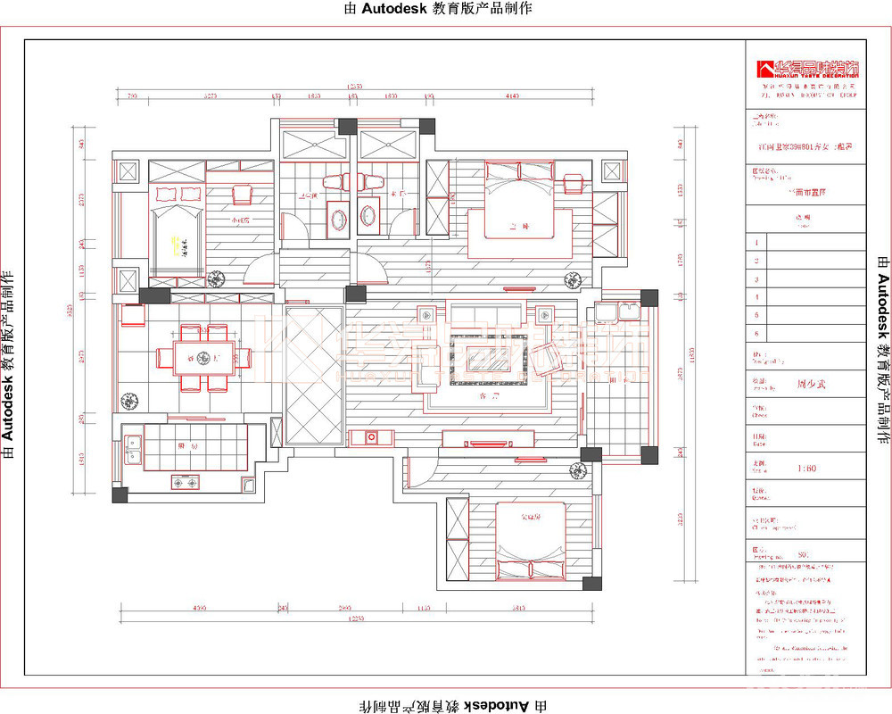
    【案例地址】:江南世家39#801室

    【建筑面积】:140㎡                    

    【案例风格】:现代简约                  

    【设计师】:郑楠                          

    户型赏析
    原始结构图


    方案设计图





    [ 本帖最后由 广东华浔装饰 于 17-7-8 17:45 编辑 ]





                      
    • 来自 江苏省
    • 精华 659
    • 注册 2010-4-5
    • 行业 其它
    •  

    效果图赏析



         

    华浔品味装饰

    做装修,我们是认真的

    如果您愿意,就把家交给我吧!

    联系小编您可以获得:                                             
    1)参观【此处为站外链接,请谨慎打开】在建工地                                         

    2)参观【此处为站外链接,请谨慎打开】实景样板房                                      
    3)获得【此处为站外链接,请谨慎打开】服务一次                                                
    4)和设计师面对面进行设计沟通                                      
    5)获得当期活动相关优惠                                                
    6)以及其他一些关于【此处为站外链接,请谨慎打开】方面的服务都可以联系小编哦。
        【此处为站外链接,请谨慎打开】                       
      在线咨询:15262901910(微信/电话)            








    查看积分策略说明快速回复主题
    您目前还是游客,请 登录注册
    您目前是游客,本帖已被系统设置了自动关闭,不可回复!

    0/5000字

     
    < >
     

    Powered by Discuz! X 2 0.057630 s 清除 Cookies - 镇江网友之家 - 手机版
    论坛导航 关闭