| 标题
快捷导航

精彩推荐:MY0511客户端下载

    • 中信银行镇江分行

    • 公益体彩 乐善人生

    • 鹏龙鸿蒙

    • 天然石材·人造石

    » 梦溪论坛 » 家庭装修 » 华浔品味装饰 » 江山名洲(250平)——法式——《华浔品味装饰主任设计师:王丹》
    华浔品味装饰  >  [作品欣赏] 江山名洲(250平)——法式——《华浔品味装饰主任设计师:王丹》     
    查看: 6358  回复: 1
    [作品欣赏] 江山名洲(250平)——法式——《华浔品味装饰主任设计师:王丹》      查看: 6358  回复: 1
    • 来自 江苏省
    • 精华 659
    • 注册 2010-4-5
    • 行业 其它
    •  
    江山名洲(250平)——法式——《华浔品味装饰主任设计师:王丹》

    【案例地址】:江山名洲157栋101室

    【建筑面积】:250㎡                                 

    【案例风格】:法 式                       

    【设计师】:王 丹                        

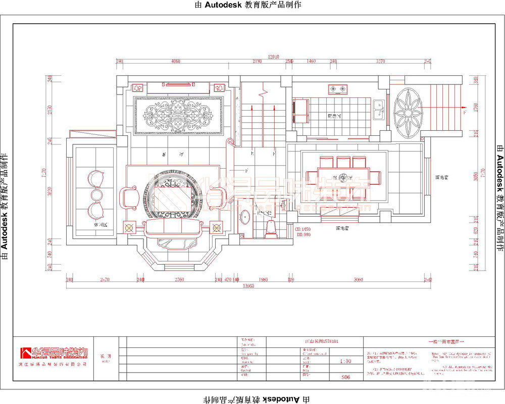
    户型赏析
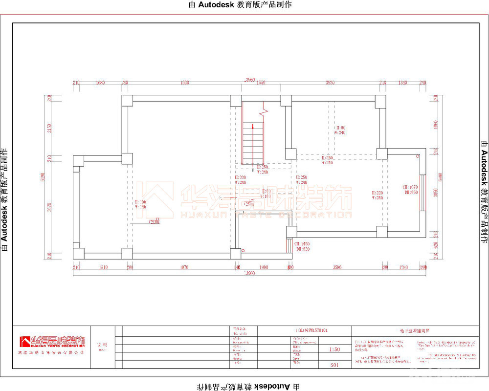
    地下室原始结构图


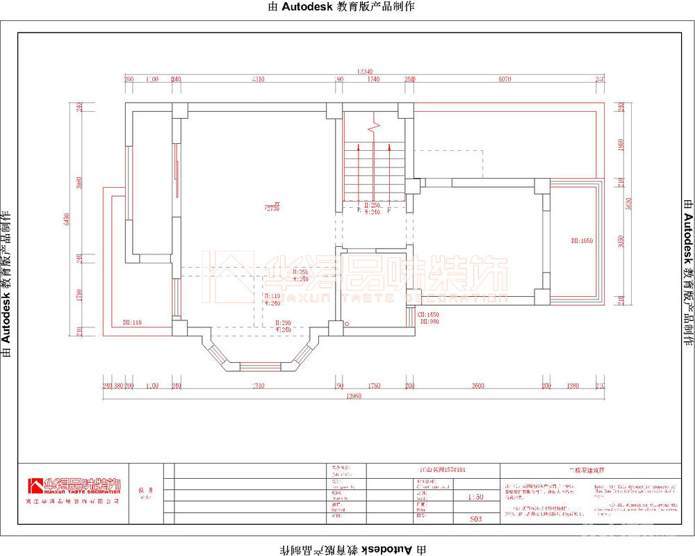
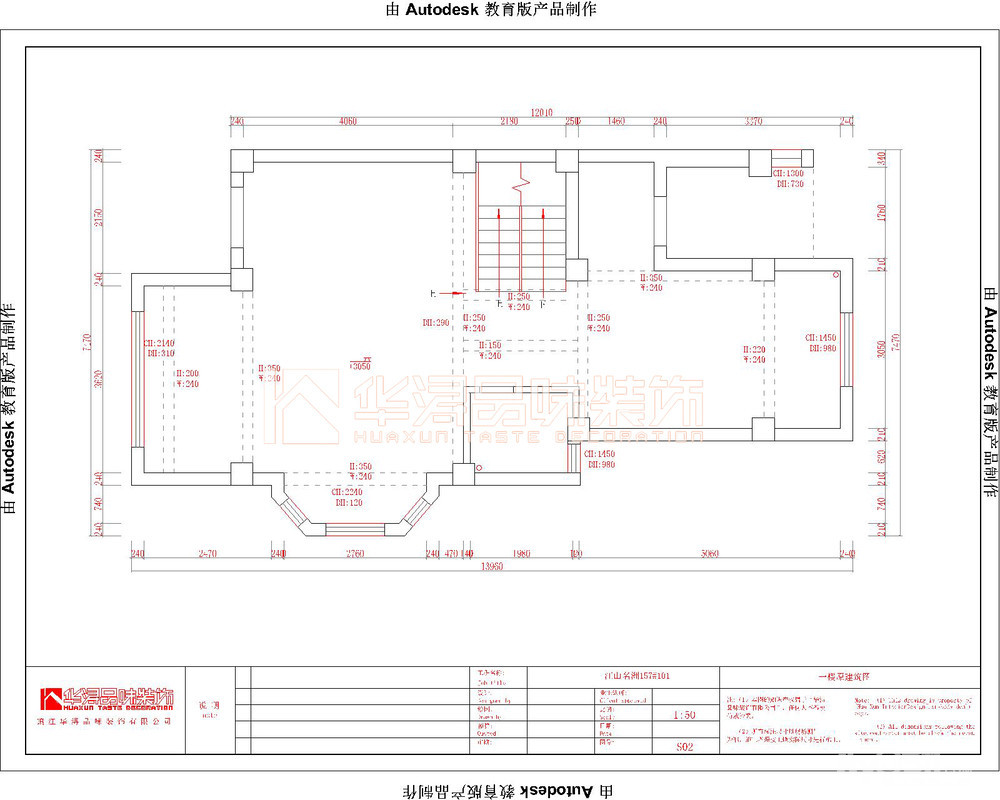
    一楼原始结构图

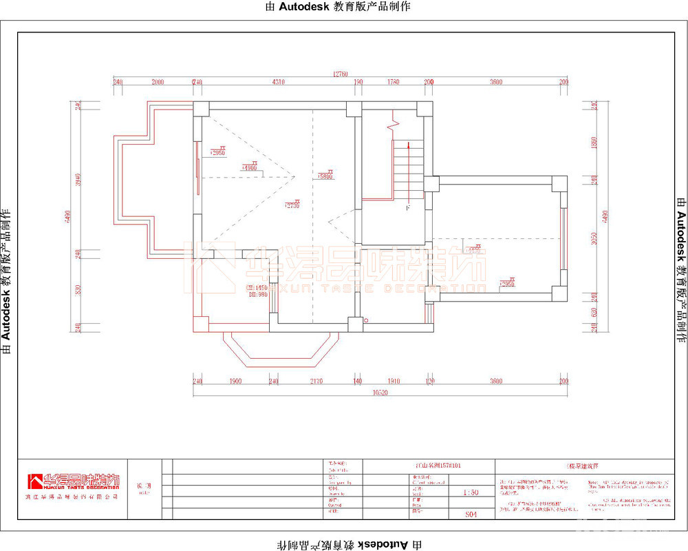
    二楼原始结构图

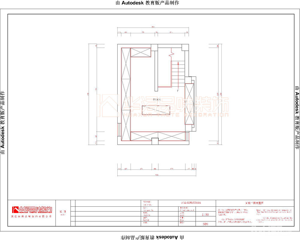
    三楼原始结构图

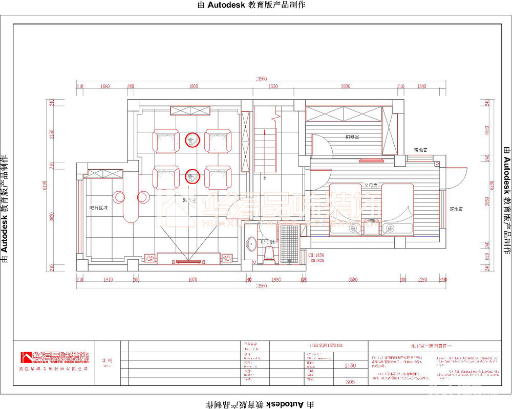
    地下室方案设计图

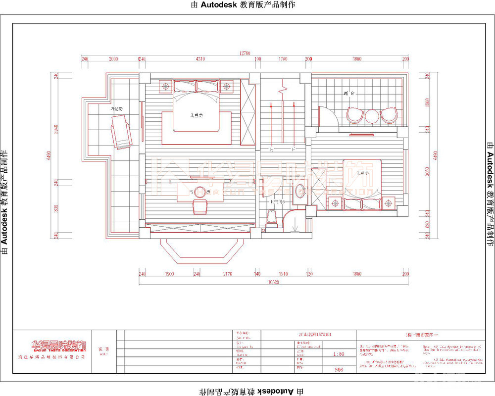
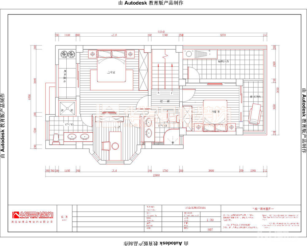
    一楼方案设计图

    二楼方案设计图

    三楼方案设计图

    阁楼方案设计图






    [ 本帖最后由 广东华浔装饰 于 17-7-8 17:10 编辑 ]





                      
    • 来自 江苏省
    • 精华 659
    • 注册 2010-4-5
    • 行业 其它
    •  

    效果图赏析













    [ 本帖最后由 广东华浔装饰 于 17-7-8 17:11 编辑 ]




    查看积分策略说明快速回复主题
    您目前还是游客,请 登录注册
    您目前是游客,本帖已被系统设置了自动关闭,不可回复!

    0/5000字

     
    < >
     

    Powered by Discuz! X 2 0.061461 s 清除 Cookies - 镇江网友之家 - 手机版
    论坛导航 关闭