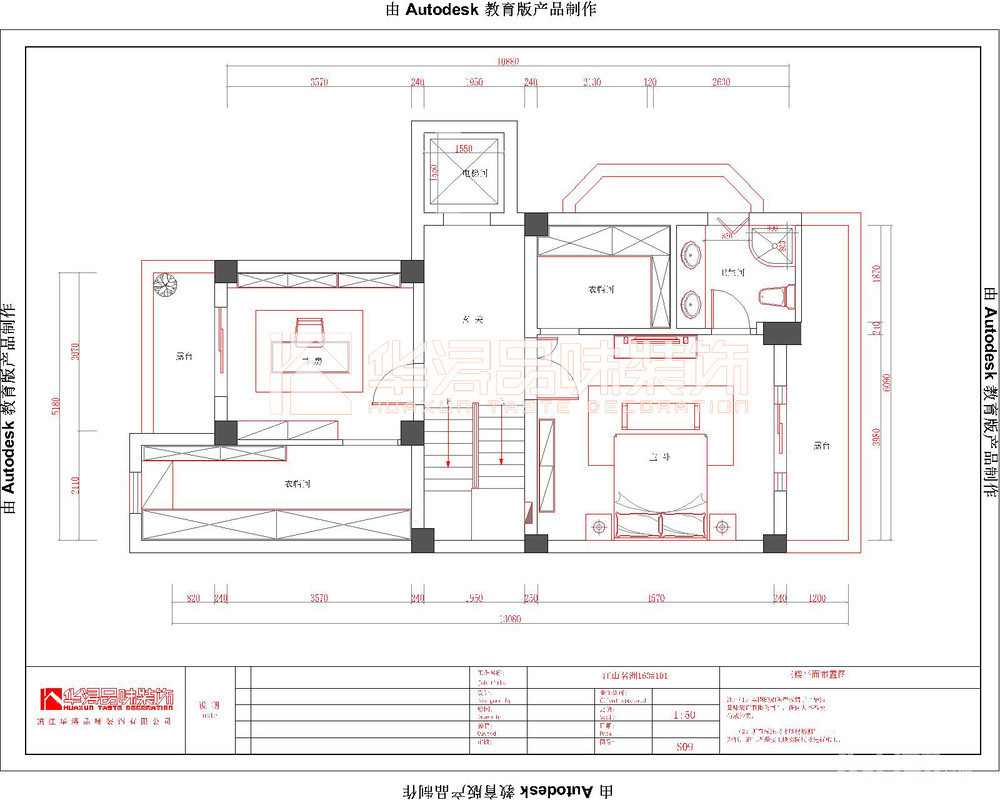
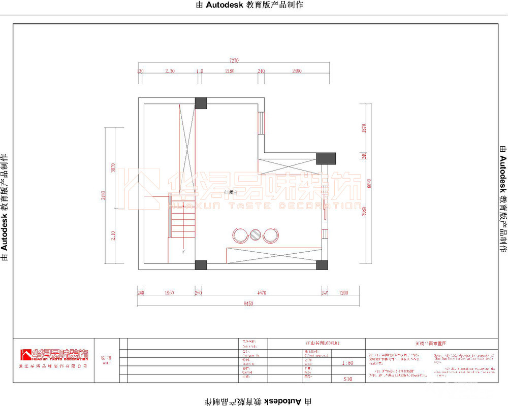
【案例地址】:江山名洲163栋101室
【建筑面积】:205㎡
【案例风格】:美 式
【设计师】:张 淼
户型赏析
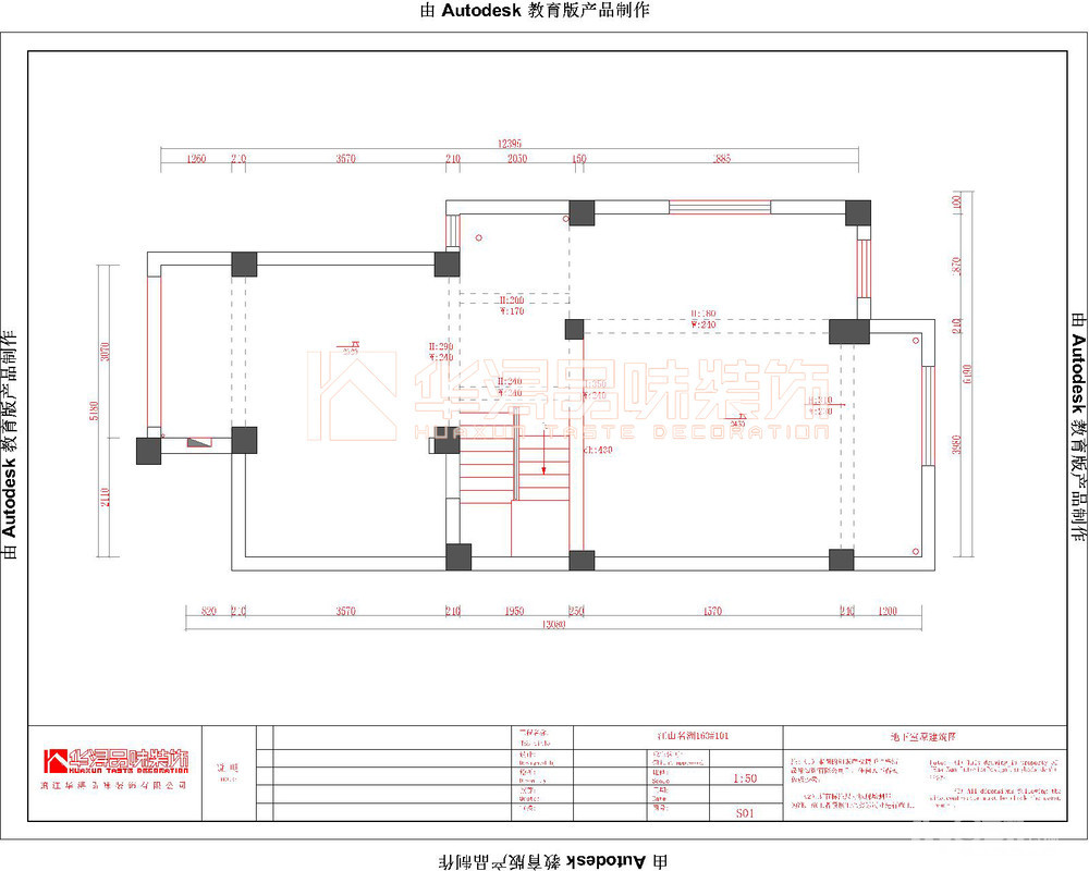
地下室原始结构图

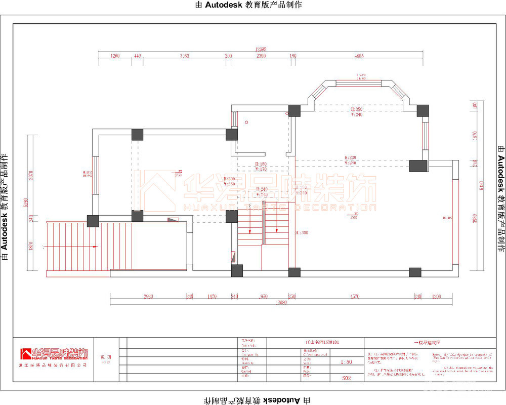
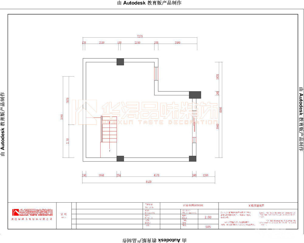
一楼原始结构图

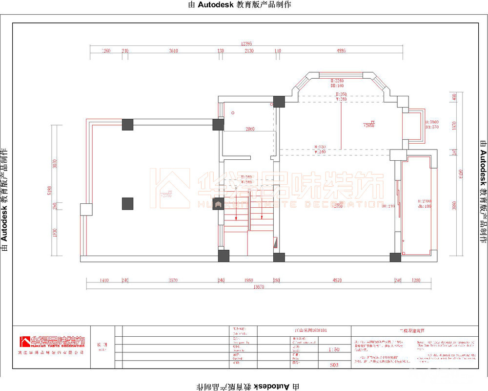
二楼原始结构图

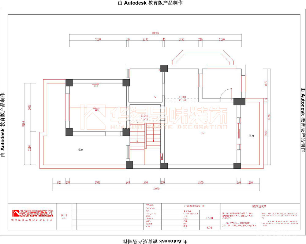
三楼原始结构图

阁楼原始结构图

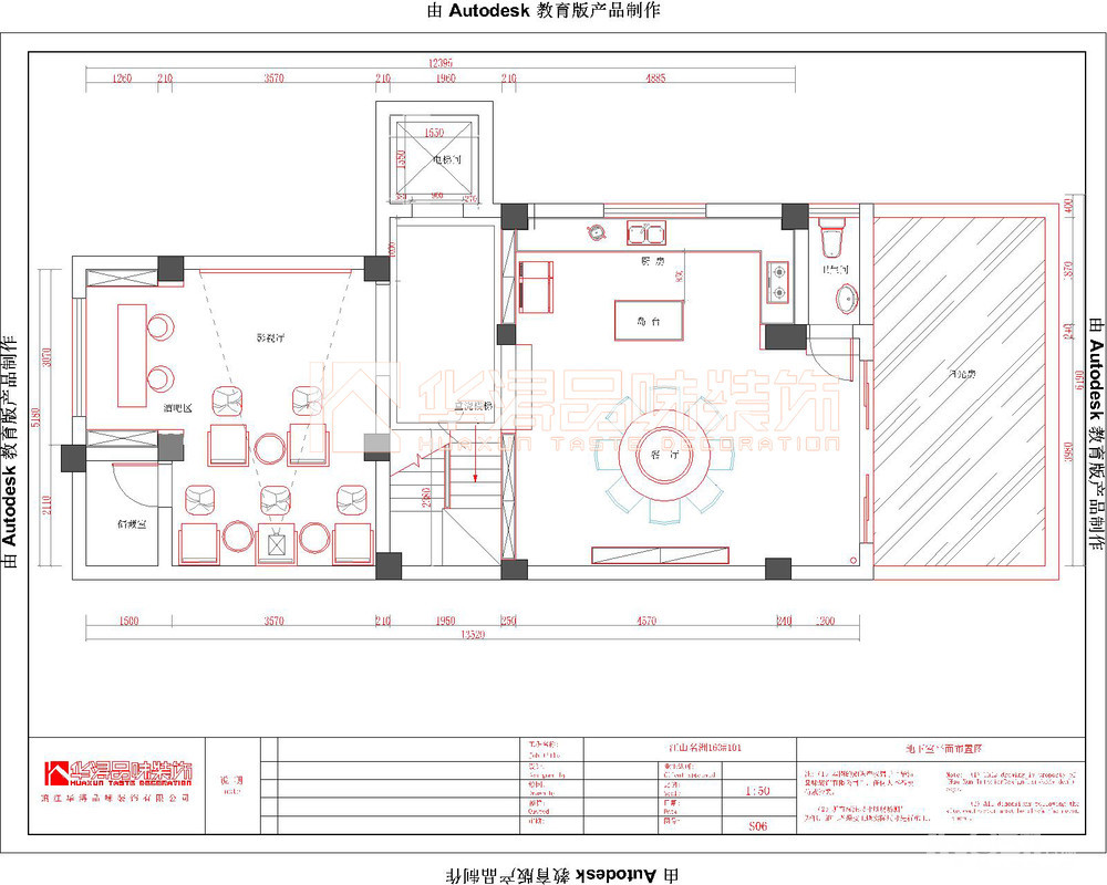
地下室方案设计图

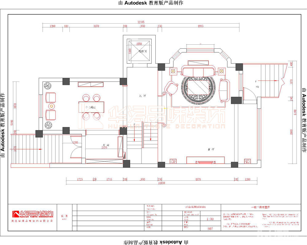
一楼方案设计图

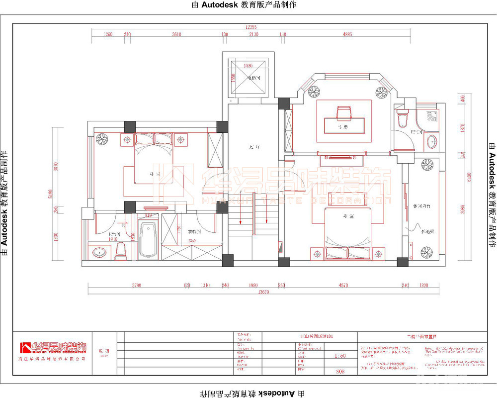
二楼方案设计图

三楼方案设计图

阁楼方案设计图

[ 本帖最后由 广东华浔装饰 于 17-7-8 17:04 编辑 ]









