【案例地址】:景湖印象55栋101室
【建筑面积】:350㎡
【案例风格】:简 欧
【设计师】:夏 雨
户型赏析
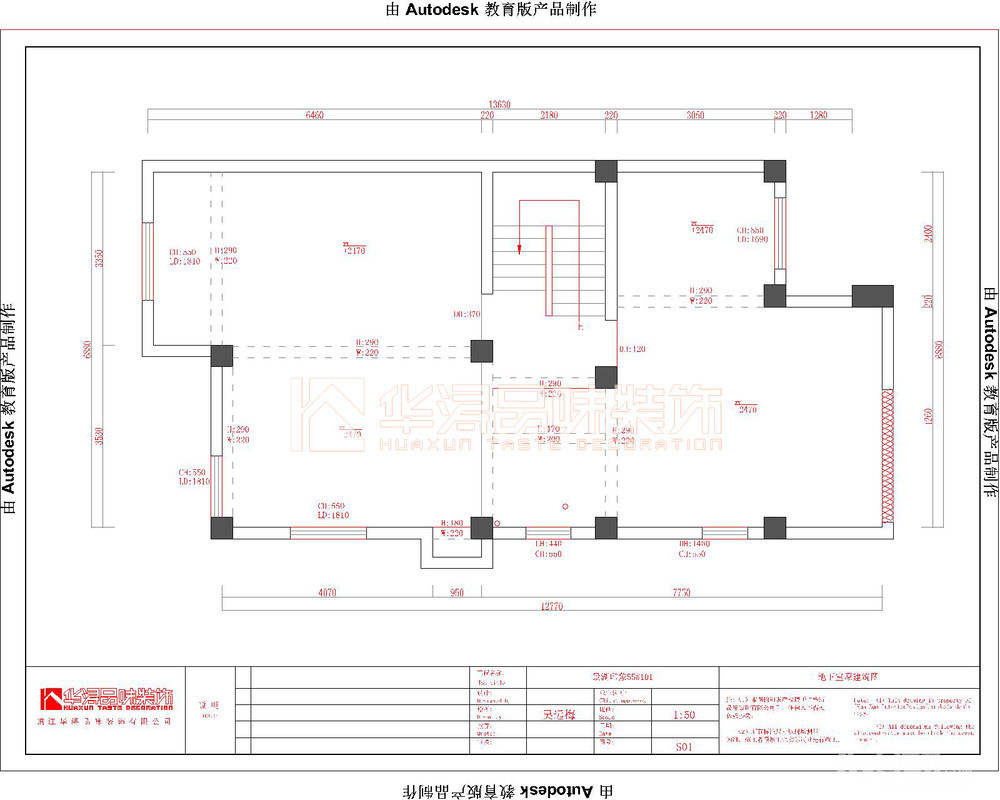
地下室原始结构图
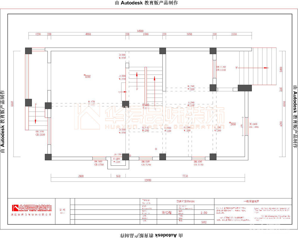
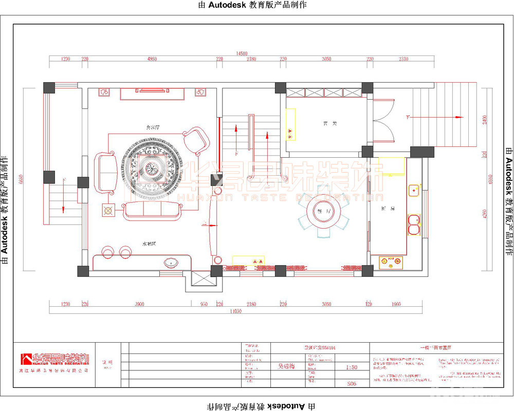
一楼原始结构图

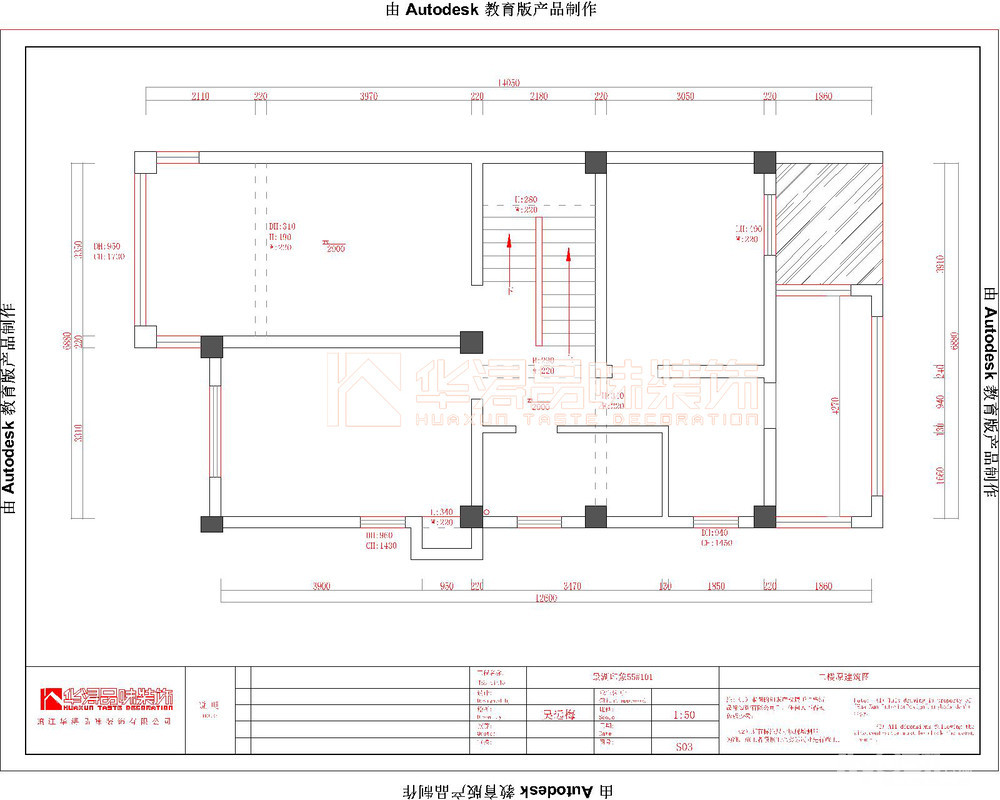
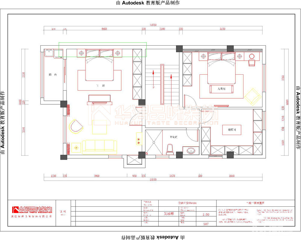
二楼原始结构图

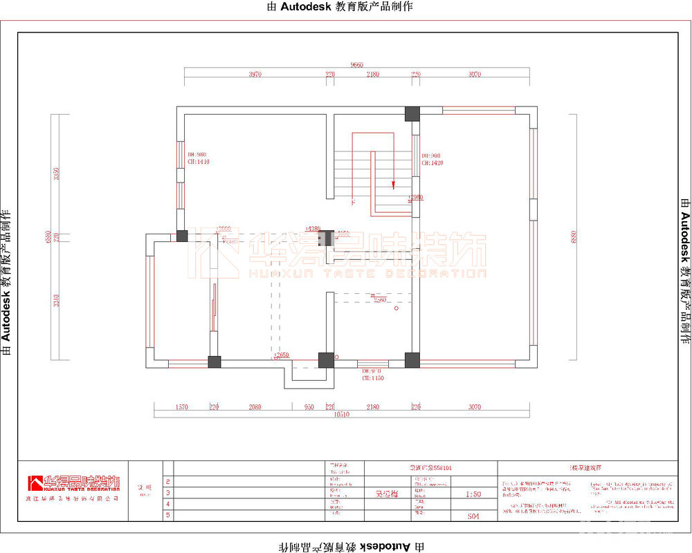
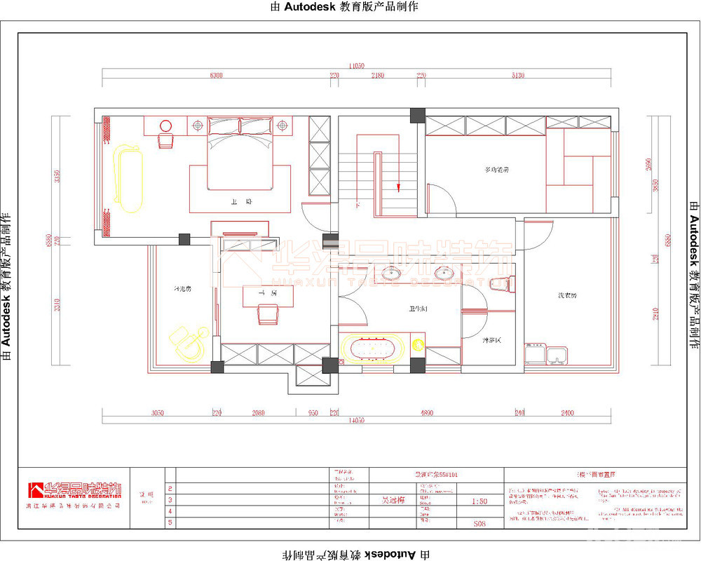
三楼原始结构图

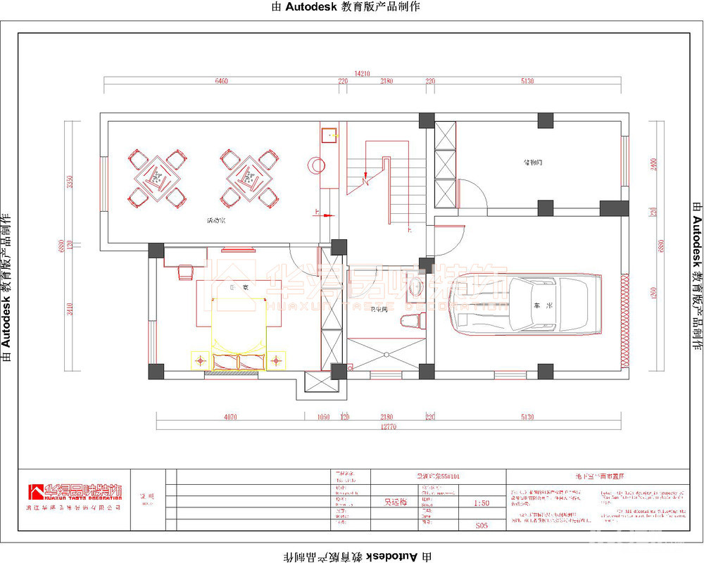
地下室方案设计图

一楼方案设计图

二楼方案设计图

三楼方案设计图

[ 本帖最后由 广东华浔装饰 于 17-7-8 16:47 编辑 ]











