【案例地址】:山水半岛24栋
【建筑面积】:300㎡
【案例风格】:现 代
【设计师】:龚庆华
更多案例欣赏请关注官网:【此处为站外链接,请谨慎打开】
户型赏析
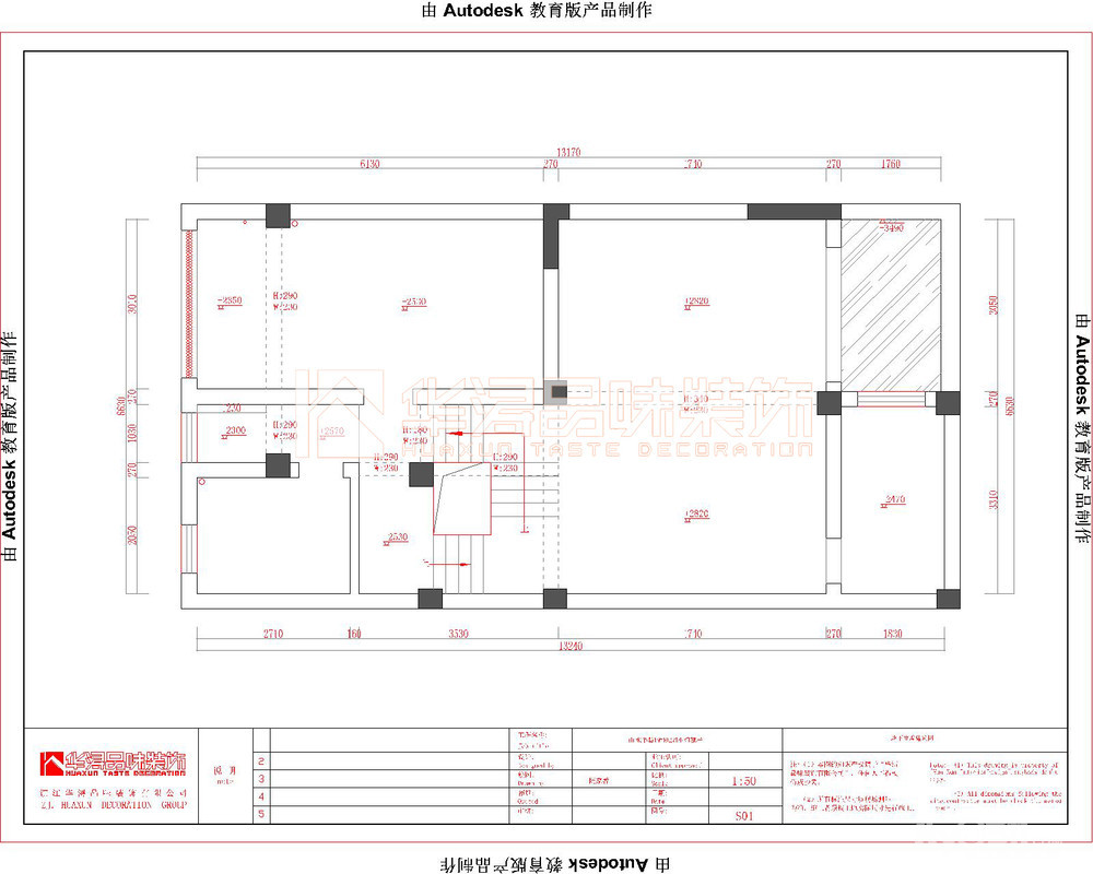
地下室原始结构图

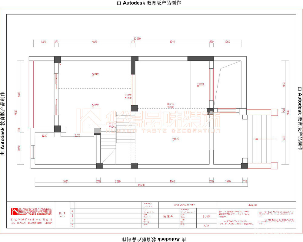
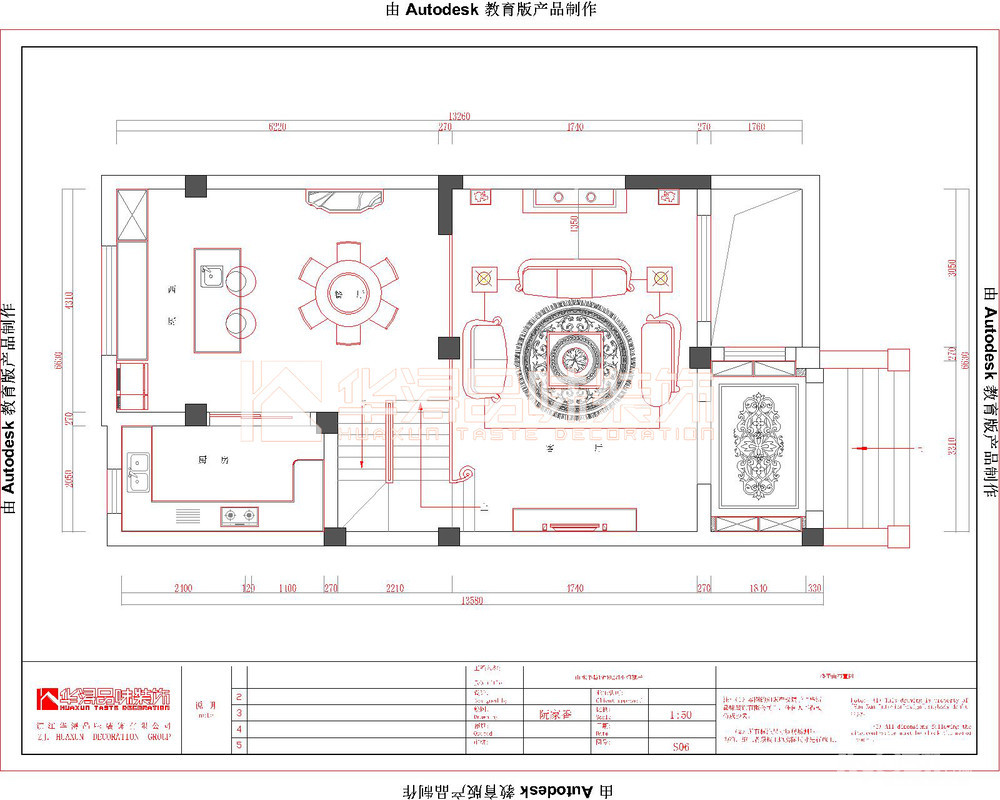
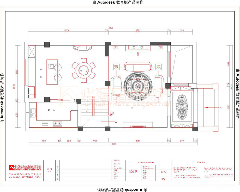
一楼原始结构图

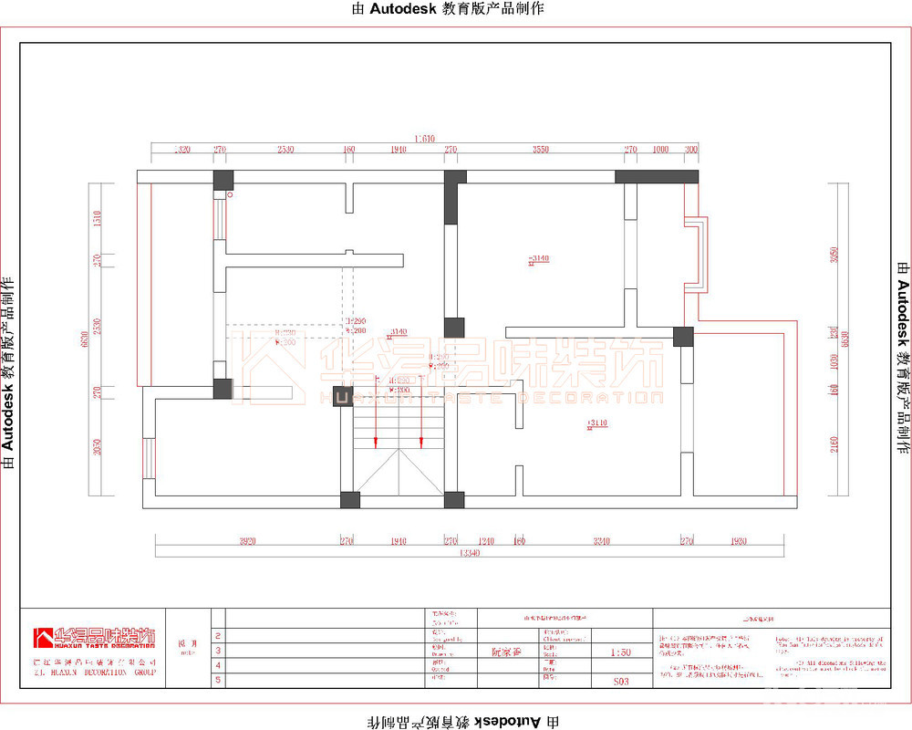
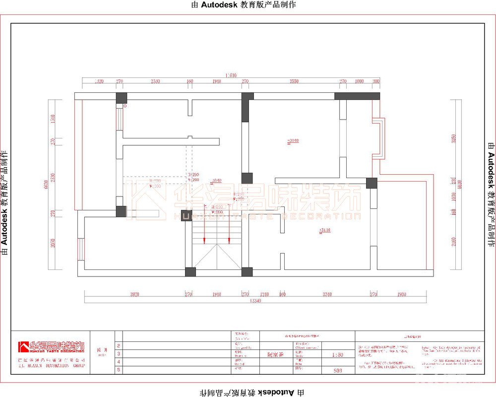
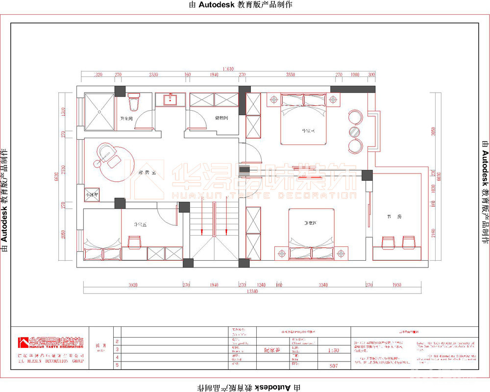
二楼原始结构图

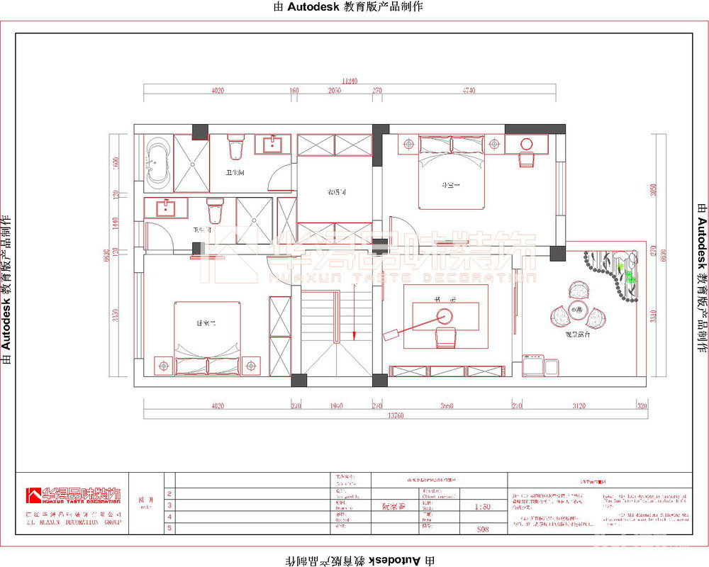
三楼原始结构图

地下室方案设计图

一楼方案设计图

二楼方案设计图

三楼方案设计图

[ 本帖最后由 广东华浔装饰 于 17-7-8 16:33 编辑 ]












