| 标题
快捷导航

精彩推荐:MY0511客户端下载

    • 中信银行镇江分行

    • 公益体彩 乐善人生

    • 鹏龙鸿蒙

    • 天然石材·人造石

    » 梦溪论坛 » 家庭装修 » 华浔品味装饰 » 孔雀城(200平)——现代——《华浔品味装饰设计总监:陈淑》
    华浔品味装饰  >  [在建工地] 孔雀城(200平)——现代——《华浔品味装饰设计总监:陈淑》     
    查看: 7136  回复: 2
    [在建工地] 孔雀城(200平)——现代——《华浔品味装饰设计总监:陈淑》      查看: 7136  回复: 2
    • 来自 江苏省
    • 精华 659
    • 注册 2010-4-5
    • 行业 其它
    •  
    孔雀城(200平)——现代——《华浔品味装饰设计总监:陈淑》

    【案例地址】:孔雀城6栋301室

    【建筑面积】:200㎡               

    【案例风格】:现 代                 

    【设计师】:陈淑                     

    更多案例欣赏请关注官网【此处为站外链接,请谨慎打开】

    开工留影






    [ 本帖最后由 广东华浔装饰 于 17-7-7 17:08 编辑 ]





                      
    • 来自 江苏省
    • 精华 659
    • 注册 2010-4-5
    • 行业 其它
    •  

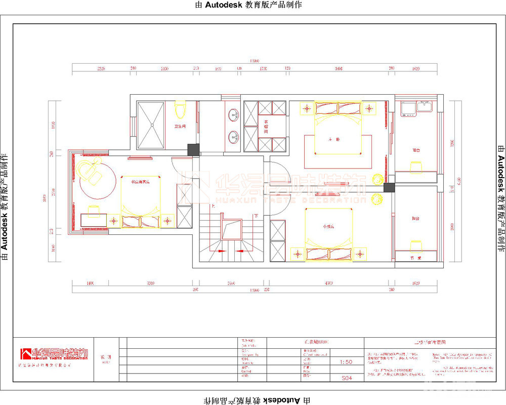
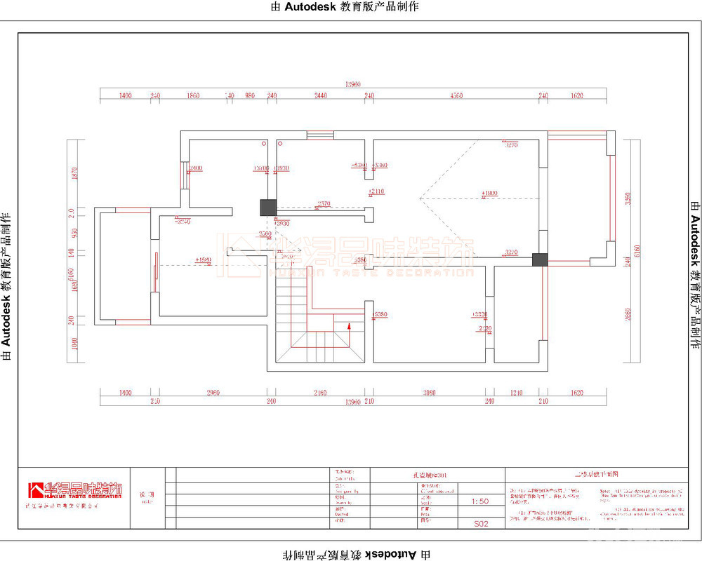
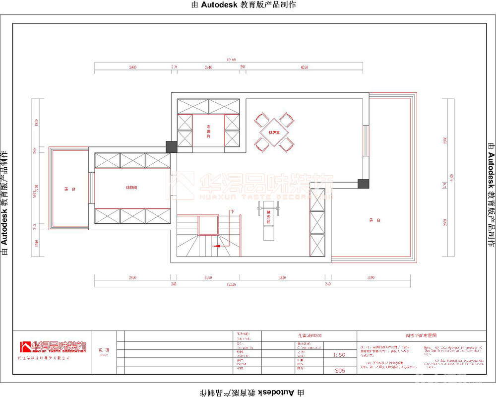
    户型赏析
    一楼原始结构图

    二楼原始结构图

    一楼方案设计图

    二楼方案设计图

    阁楼方案设计图





    [ 本帖最后由 广东华浔装饰 于 17-6-21 14:37 编辑 ]




    • 来自 江苏省
    • 精华 659
    • 注册 2010-4-5
    • 行业 其它
    •  



    [ 本帖最后由 广东华浔装饰 于 17-7-7 17:09 编辑 ]




    查看积分策略说明快速回复主题
    您目前还是游客,请 登录注册
    您目前是游客,本帖已被系统设置了自动关闭,不可回复!

    0/5000字

     
    < >
     

    Powered by Discuz! X 2 0.035344 s 清除 Cookies - 镇江网友之家 - 手机版
    论坛导航 关闭