【案例地址】:自建房——四合院
【建筑面积】:390㎡
【案例风格】:新中式
【设计师】:王 丹
更多案例欣赏请关注官网:【此处为站外链接,请谨慎打开】
户型赏析
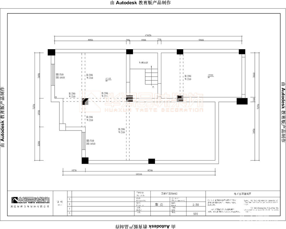
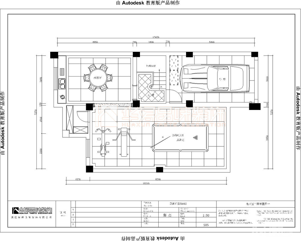
地下室原始结构图

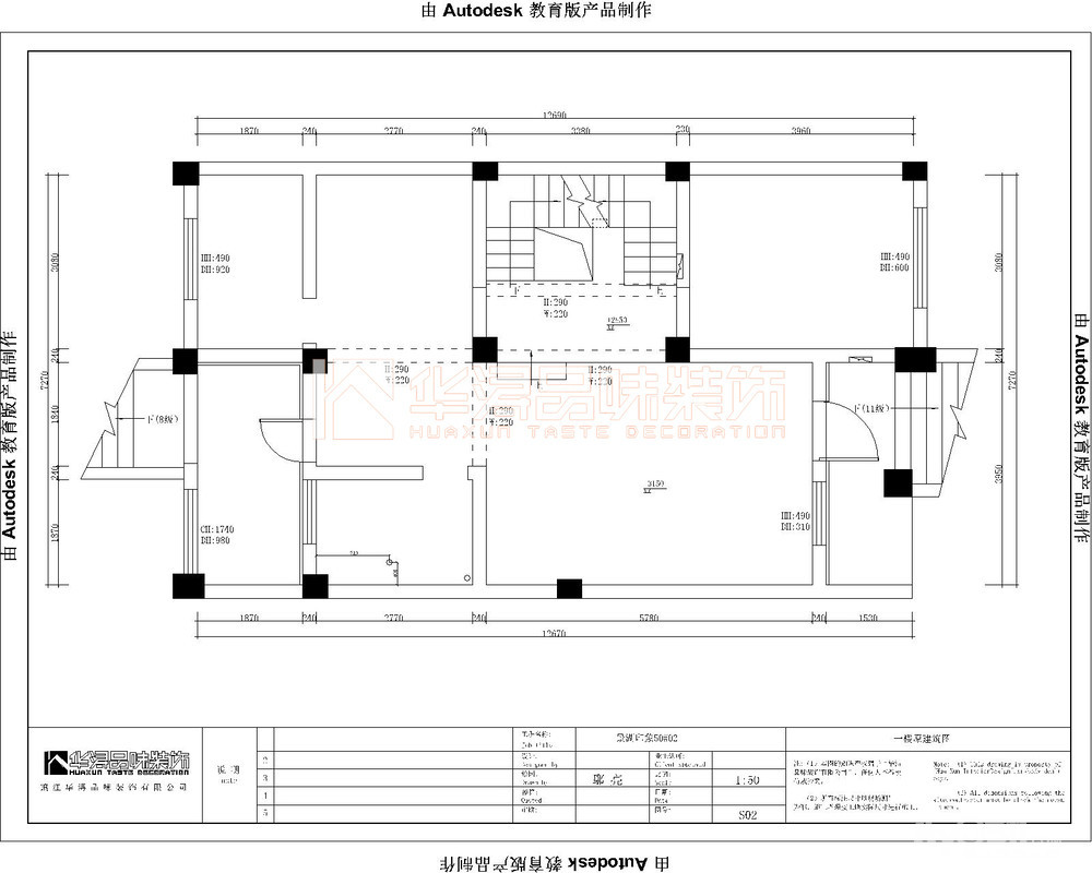
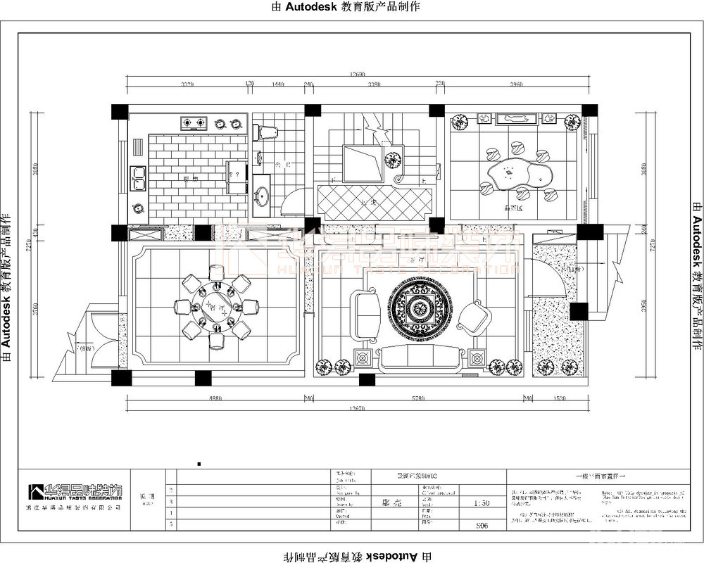
一楼原始结构图

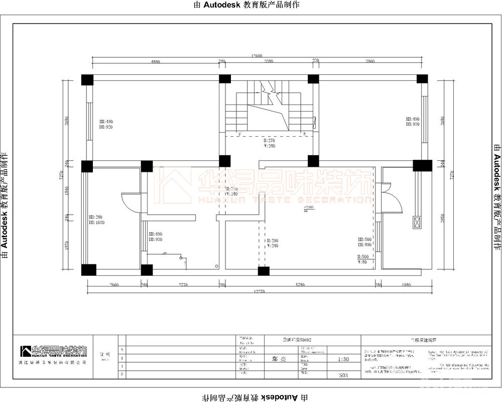
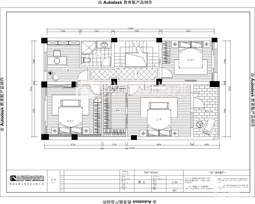
二楼原始结构图

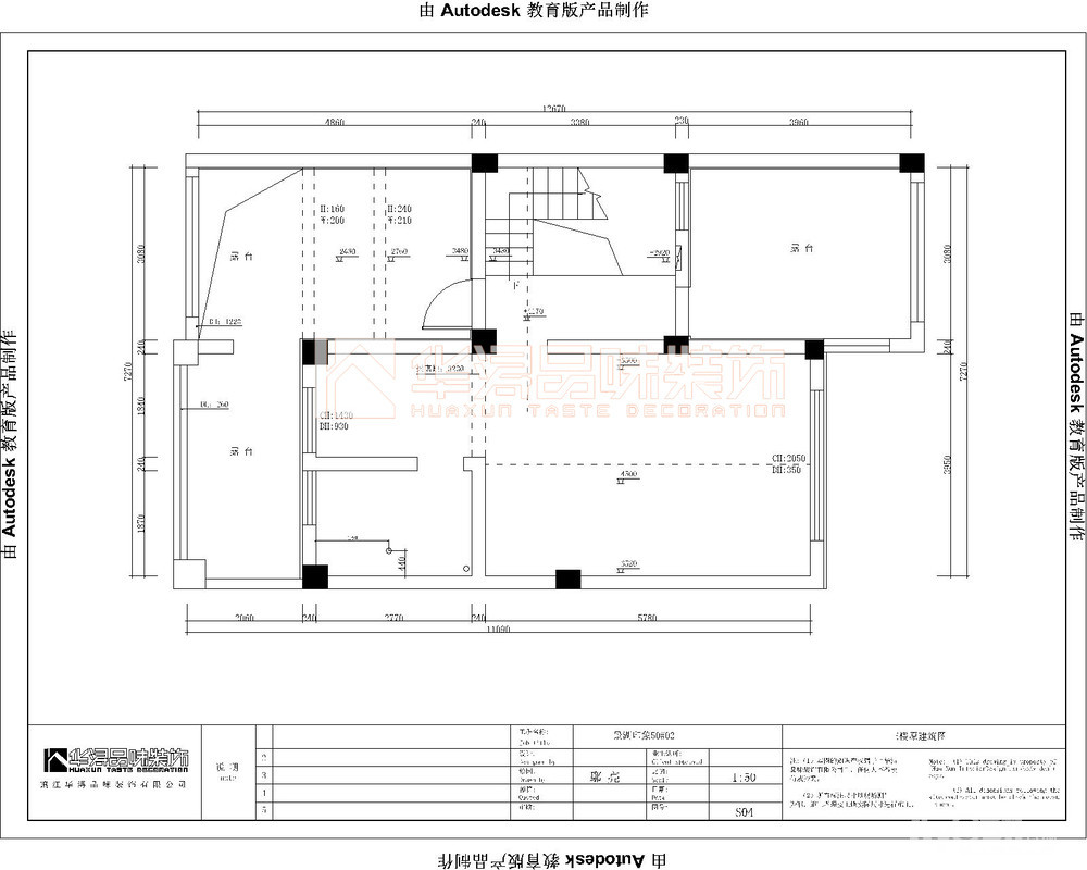
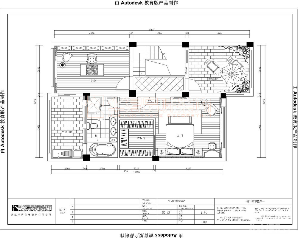
三楼原始结构图

地下室方案设计图

一楼方案设计图

二楼方案设计图

三楼方案设计图

[ 本帖最后由 广东华浔装饰 于 17-7-7 16:44 编辑 ]
【案例地址】:自建房——四合院
【建筑面积】:390㎡
【案例风格】:新中式
【设计师】:王 丹
更多案例欣赏请关注官网:【此处为站外链接,请谨慎打开】
户型赏析
地下室原始结构图

一楼原始结构图

二楼原始结构图

三楼原始结构图

地下室方案设计图

一楼方案设计图

二楼方案设计图

三楼方案设计图
