| 标题
快捷导航

精彩推荐:MY0511客户端下载

    • 中信银行镇江分行

    • 公益体彩 乐善人生

    • 鹏龙鸿蒙

    • 天然石材·人造石

    » 梦溪论坛 » 家庭装修 » 华浔品味装饰 » 瑞和花园9栋501(170平)——新中式——《华浔品味装饰设计总监:占琳芳》
    华浔品味装饰  >  [在建工地] 瑞和花园9栋501(170平)——新中式——《华浔品味装饰设计总监:占琳芳》     
    查看: 7086  回复: 2
    [在建工地] 瑞和花园9栋501(170平)——新中式——《华浔品味装饰设计总监:占琳芳》      查看: 7086  回复: 2
    • 来自 江苏省
    • 精华 659
    • 注册 2010-4-5
    • 行业 其它
    •  
    瑞和花园9栋501(170平)——新中式——《华浔品味装饰设计总监:占琳芳》

    【案例地址】:瑞和花园9栋501室

    【建筑面积】:170㎡

    【案例风格】:新中式

    【设 计 师】:占琳芳

    更多案例欣赏请关注官网【此处为站外链接,请谨慎打开】

    开工留影


                                                                                                                                                                  




    [ 本帖最后由 广东华浔装饰 于 17-7-26 16:42 编辑 ]





                      
    • 来自 江苏省
    • 精华 659
    • 注册 2010-4-5
    • 行业 其它
    •  

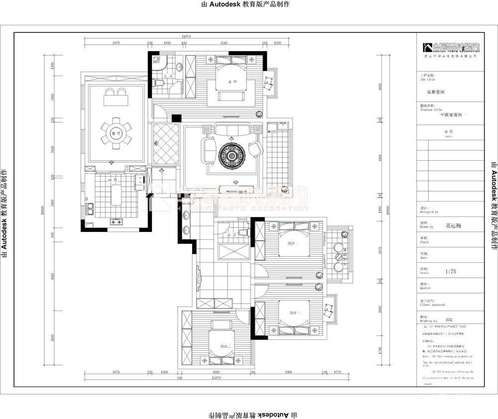
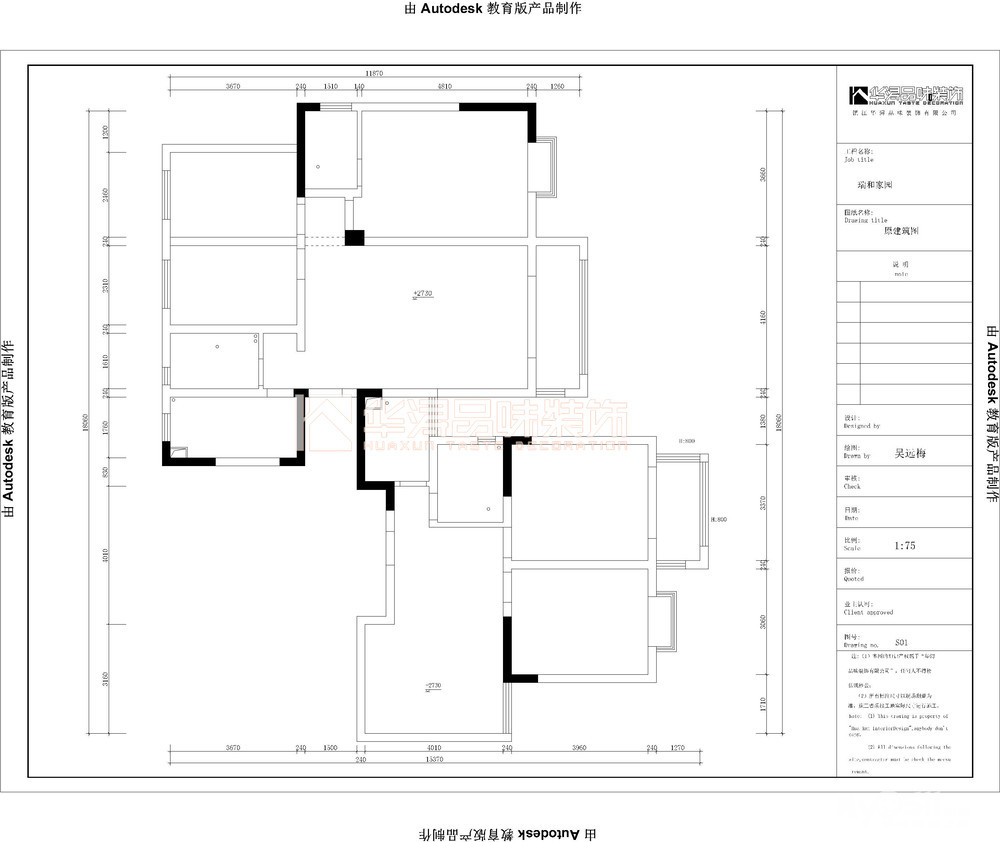
    户型赏析
    原始结构图


    方案设计图







    • 来自 江苏省
    • 精华 659
    • 注册 2010-4-5
    • 行业 其它
    •  

    效果图赏析


       







    查看积分策略说明快速回复主题
    您目前还是游客,请 登录注册
    您目前是游客,本帖已被系统设置了自动关闭,不可回复!

    0/5000字

     
    < >
     

    Powered by Discuz! X 2 0.019352 s 清除 Cookies - 镇江网友之家 - 手机版
    论坛导航 关闭