| 标题
快捷导航

精彩推荐:MY0511客户端下载

    • 中信银行镇江分行

    • 公益体彩 乐善人生

    • 鹏龙鸿蒙

    • 天然石材·人造石

    » 梦溪论坛 » 家庭装修 » 华浔品味装饰 » 玉翠园9栋106室(310平)——简美——《华浔品味装饰主任设计师:张淼》
    华浔品味装饰  >  [作品欣赏] 玉翠园9栋106室(310平)——简美——《华浔品味装饰主任设计师:张淼》     
    查看: 7268  回复: 1
    [作品欣赏] 玉翠园9栋106室(310平)——简美——《华浔品味装饰主任设计师:张淼》      查看: 7268  回复: 1
    • 来自 江苏省
    • 精华 659
    • 注册 2010-4-5
    • 行业 其它
    •  
    玉翠园9栋106室(310平)——简美——《华浔品味装饰主任设计师:张淼》

    【案例地址】:玉翠园9#106室

    【建筑面积】:310㎡

    【案例风格】:简 美

    【设 计 师】:张 淼

    更多案例欣赏请关注官网【此处为站外链接,请谨慎打开】

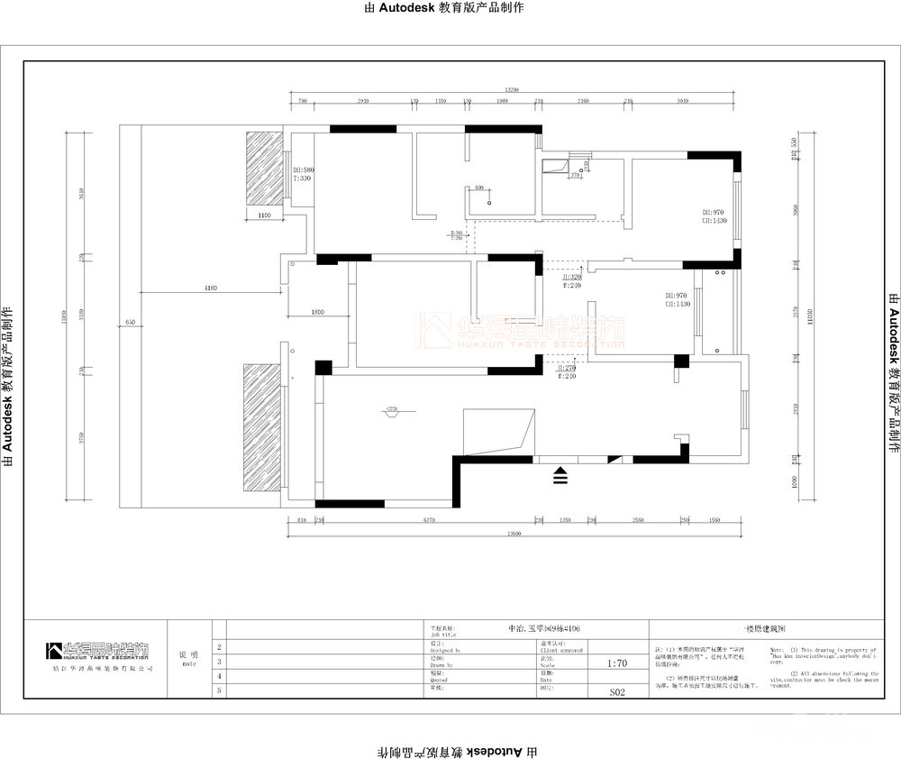
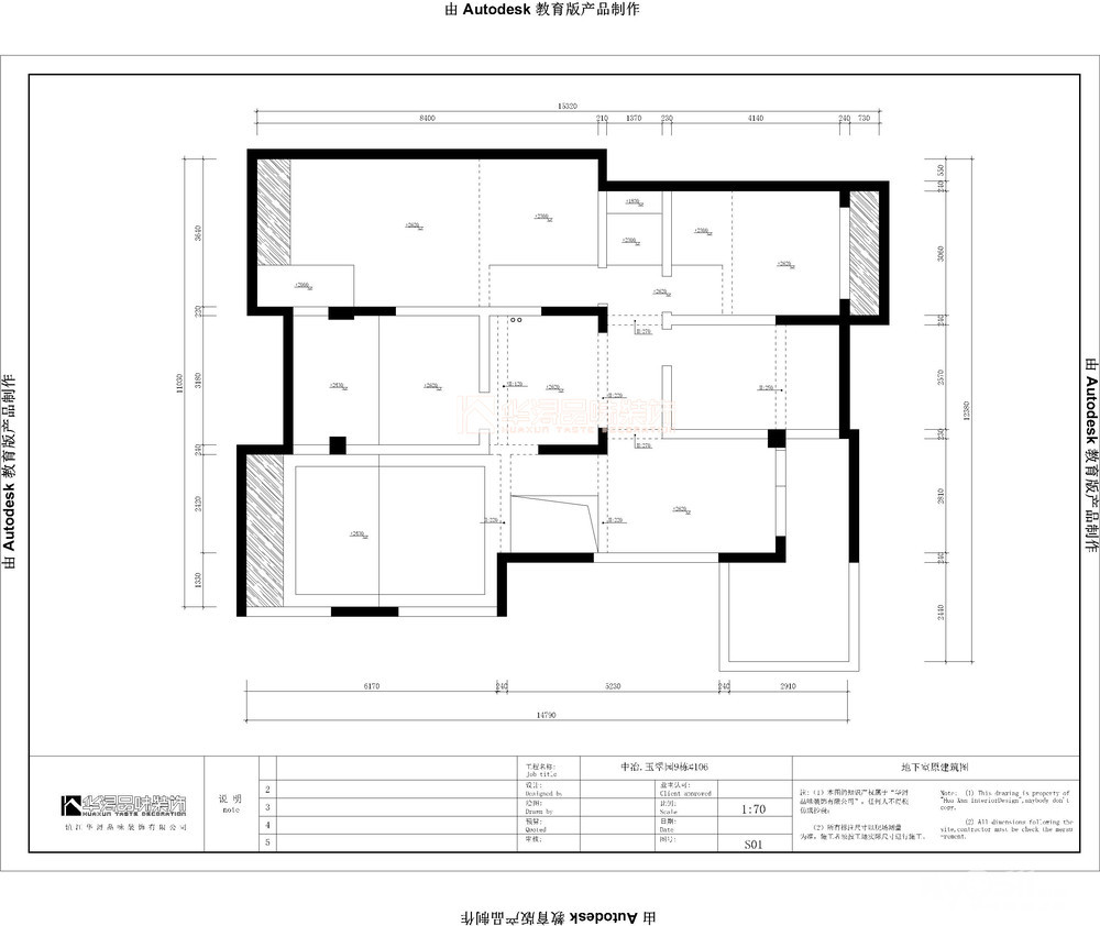
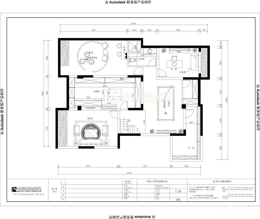
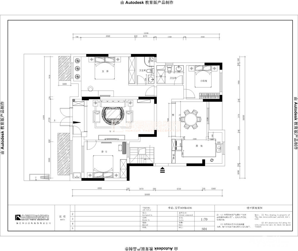
    户型赏析
       地下室原始结构图


    一楼原始结构图

    地下室方案设计图

    一楼方案设计图









                      
    • 来自 江苏省
    • 精华 659
    • 注册 2010-4-5
    • 行业 其它
    •  

    效果图赏析

          
      
      
      
      













    查看积分策略说明快速回复主题
    您目前还是游客,请 登录注册
    您目前是游客,本帖已被系统设置了自动关闭,不可回复!

    0/5000字

     
    < >
     

    Powered by Discuz! X 2 0.057559 s 清除 Cookies - 镇江网友之家 - 手机版
    论坛导航 关闭