| 标题
快捷导航

精彩推荐:MY0511客户端下载

    • 中信银行镇江分行

    • 公益体彩 乐善人生

    • 鹏龙鸿蒙

    • 天然石材·人造石

    » 梦溪论坛 » 家庭装修 » 华浔品味装饰 » 江南岸32栋104(330平)——现代简约——《华浔品味装饰首席设计师:刘诗琪》
    华浔品味装饰  >  [在建工地] 江南岸32栋104(330平)——现代简约——《华浔品味装饰首席设计师:刘诗琪》     
    查看: 7546  回复: 2
    [在建工地] 江南岸32栋104(330平)——现代简约——《华浔品味装饰首席设计师:刘诗琪》      查看: 7546  回复: 2
    • 来自 江苏省
    • 精华 659
    • 注册 2010-4-5
    • 行业 其它
    •  
    江南岸32栋104(330平)——现代简约——《华浔品味装饰首席设计师:刘诗琪》

    【案例地址】:江南岸32栋104

    【建筑面积】:330㎡

    【案例风格】:现 代 简 约

    【设 计 师 】:刘 诗 琪

    更多案例欣赏请关注官网【此处为站外链接,请谨慎打开】

    开工留影






    [ 本帖最后由 广东华浔装饰 于 17-8-10 17:35 编辑 ]





                      
    • 来自 江苏省
    • 精华 659
    • 注册 2010-4-5
    • 行业 其它
    •  

    户型赏析

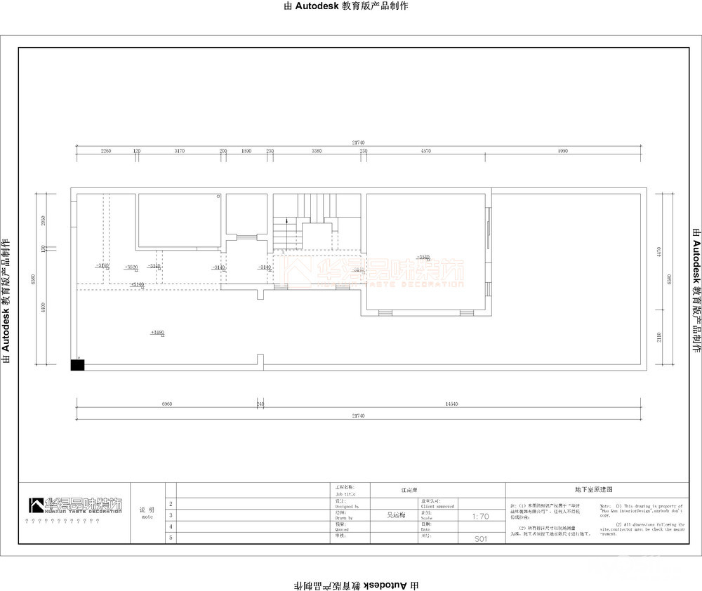
    地下室原始结构图


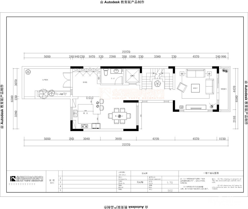
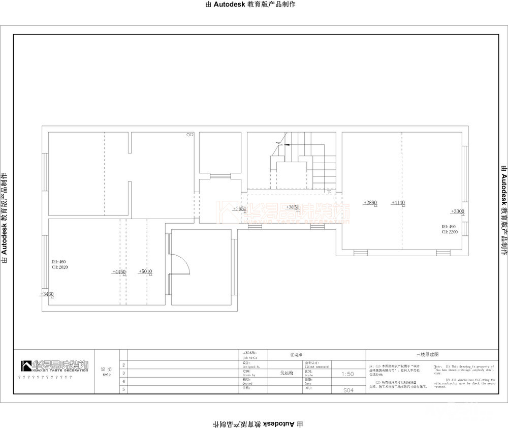
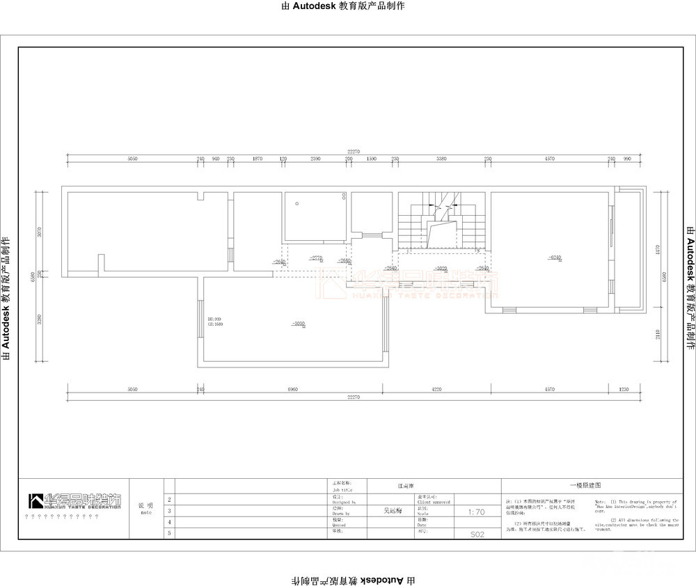
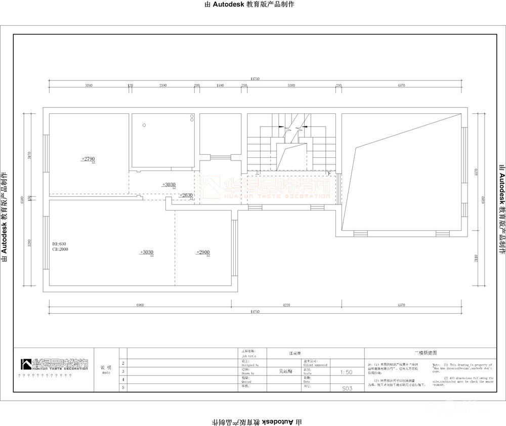
    一楼原始结构图

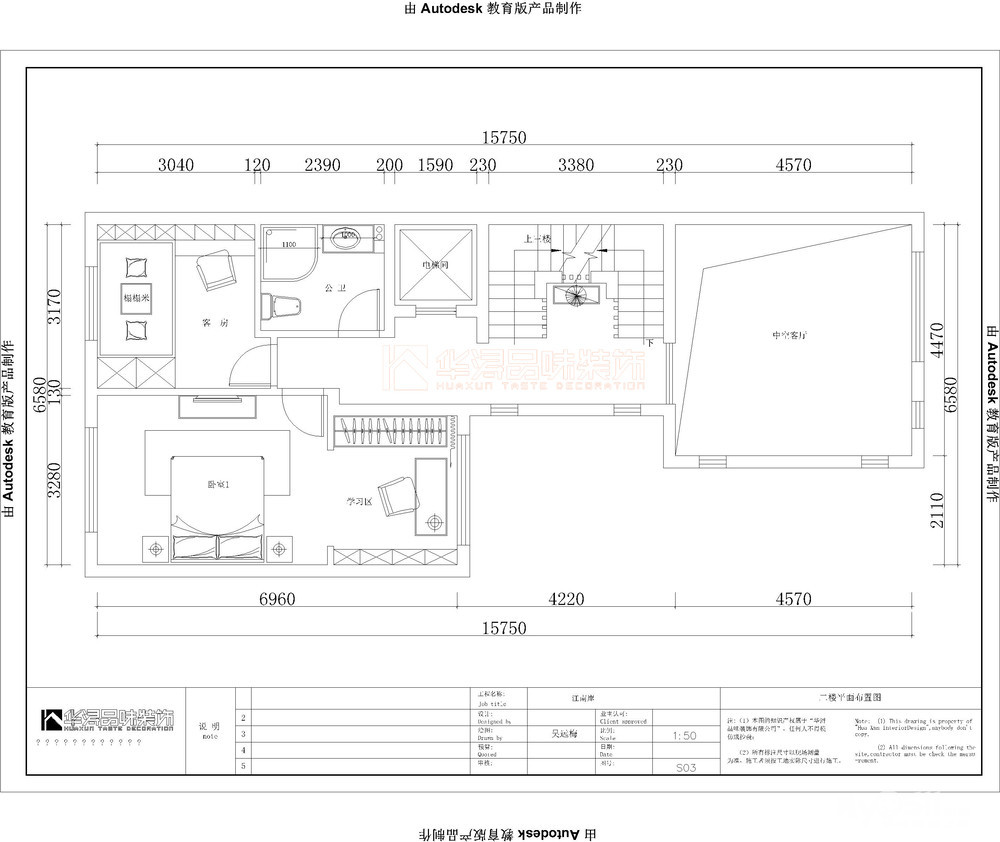
    二楼原始结构图


    三楼原始结构图

    地下室方案设计图

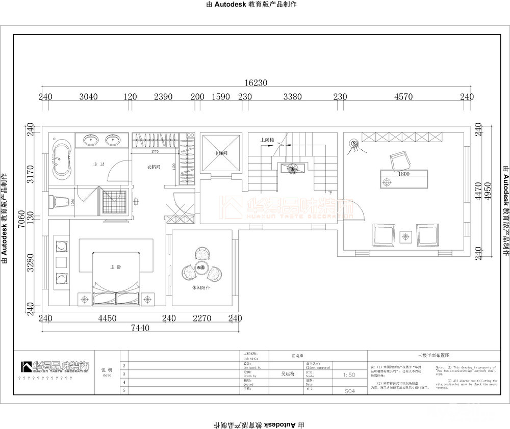
    一楼方案设计图

    二楼方案设计图


    三楼方案设计图











    [ 本帖最后由 广东华浔装饰 于 17-8-10 16:53 编辑 ]




    • 来自 江苏省
    • 精华 659
    • 注册 2010-4-5
    • 行业 其它
    •  

    效果图赏析































    查看积分策略说明快速回复主题
    您目前还是游客,请 登录注册
    您目前是游客,本帖已被系统设置了自动关闭,不可回复!

    0/5000字

     
    < >
     

    Powered by Discuz! X 2 0.035901 s 清除 Cookies - 镇江网友之家 - 手机版
    论坛导航 关闭