| 标题
快捷导航

精彩推荐:MY0511客户端下载

    • 中信银行镇江分行

    • 公益体彩 乐善人生

    • 鹏龙鸿蒙

    • 天然石材·人造石

    » 梦溪论坛 » 家庭装修 » 华浔品味装饰 » 万科红郡西岸别墅——三部设计总监陈淑
    华浔品味装饰  >  [在建工地] 万科红郡西岸别墅——三部设计总监陈淑     
    查看: 7042  回复: 1
    [在建工地] 万科红郡西岸别墅——三部设计总监陈淑      查看: 7042  回复: 1
    • 来自 江苏省
    • 精华 659
    • 注册 2010-4-5
    • 行业 其它
    •  
    万科红郡西岸别墅——三部设计总监陈淑

    【工地名称】万科红郡西岸别墅                                                                                                                                                                             

    【三部设计总监】陈淑

    【监理】刘勇

    【面积】200㎡



    咨询热线:0511—88881389

    公司地址:丁卯桥路168号江南世家11-13(华浔品味装饰)





    [ 本帖最后由 广东华浔装饰 于 2021-3-20 14:31 编辑 ]





                      
    • 来自 江苏省
    • 精华 659
    • 注册 2010-4-5
    • 行业 其它
    •  
    万科红郡西岸别墅

    户型分析

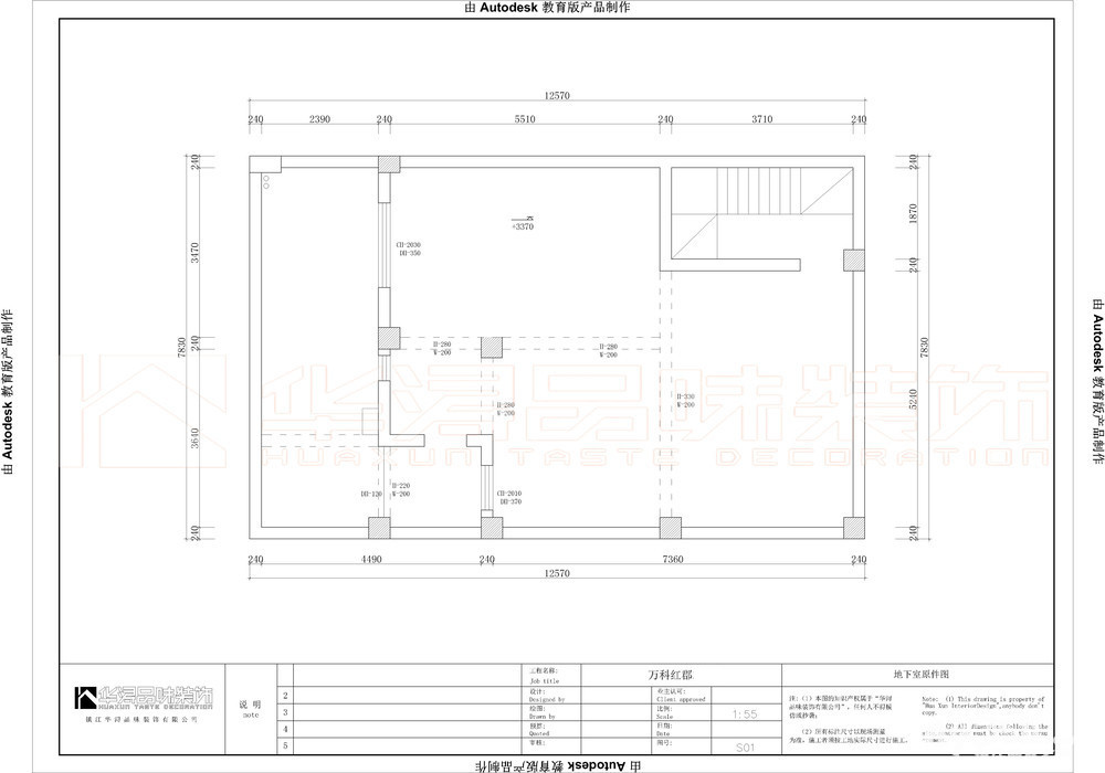
    地下室原建图


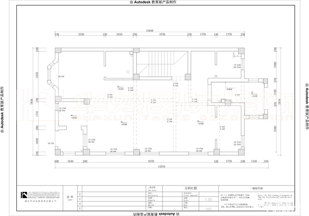
    一楼原建图


    二楼原建图


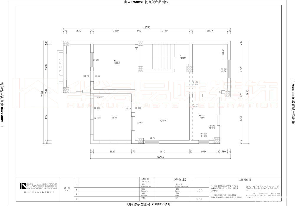
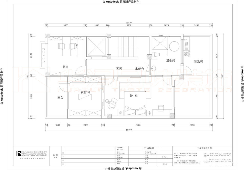
    三楼原建图


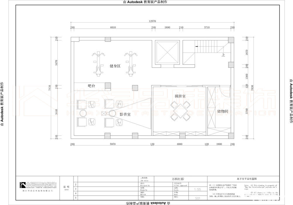
    地下室平面布置图


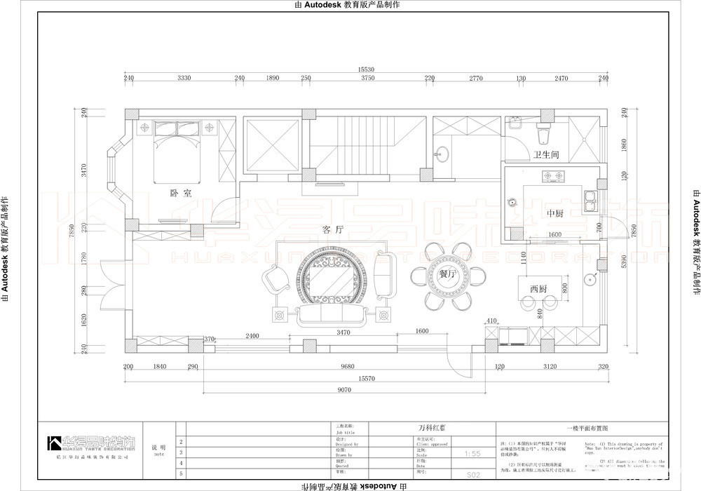
    一楼平面布置图


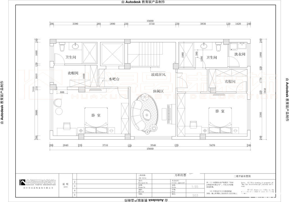
    二楼平面布置图


    三楼平面布置图


    咨询热线:0511-88881389
    公司地址:丁卯桥路168号江南世家11-13(华浔品味装饰)

    [ 本帖最后由 广东华浔装饰 于 2021-4-20 09:32 编辑 ]




    查看积分策略说明快速回复主题
    您目前还是游客,请 登录注册
    您目前是游客,本帖已被系统设置了自动关闭,不可回复!

    0/5000字

     
    < >
     

    Powered by Discuz! X 2 0.056768 s 清除 Cookies - 镇江网友之家 - 手机版
    论坛导航 关闭