| 标题
快捷导航

精彩推荐:MY0511客户端下载

    • 中信银行镇江分行

    • 公益体彩 乐善人生

    • 鹏龙鸿蒙

    • 天然石材·人造石

    » 梦溪论坛 » 家庭装修 » 华浔品味装饰 » 香溪湾A6栋01别墅
    华浔品味装饰  >  [作品欣赏] 香溪湾A6栋01别墅     
    查看: 6826  回复: 1
    [作品欣赏] 香溪湾A6栋01别墅      查看: 6826  回复: 1
    • 来自 江苏省
    • 精华 659
    • 注册 2010-4-5
    • 行业 其它
    •  
    香溪湾A6栋01别墅

    项目地址:香溪湾A601别墅

    项目面积:800平方

    风格:现代轻奢风格

    造价:80万(半包)

    作品名称:雀巢

    道格拉斯瓷、雅士白、帕斯高灰、曼哈顿灰、㓜影白玉石等大理石等、梦天木制品定制生活家实木多层地板天衣无缝墙布、科勒洁具、摩力克窗帘、顶固门业、鈺嘉金属铜制黒钢条、唐朝楼梯、写意空间家具。

    设计说明:主人想放慢生活的节奏,设计师将本案定为现代轻奢风格将中式文化与现代美学合为一体,演绎出传统的人文情怀,“小隐于野”、大隐于市的生活愿景注入设计中,以简洁大方、时尚、前卫、优雅、品味、给人温暖舒适的感觉,揭示了对生活的纯洁与简洁,它融合了奢华与内涵的人文气质,利用富有变化的色彩与软装陈设,讲究意境、拒绝铺陈,达到现代轻奢的境界追求,让静谧自然、清幽静默如一股清泉般静静的流淌在整个空间。

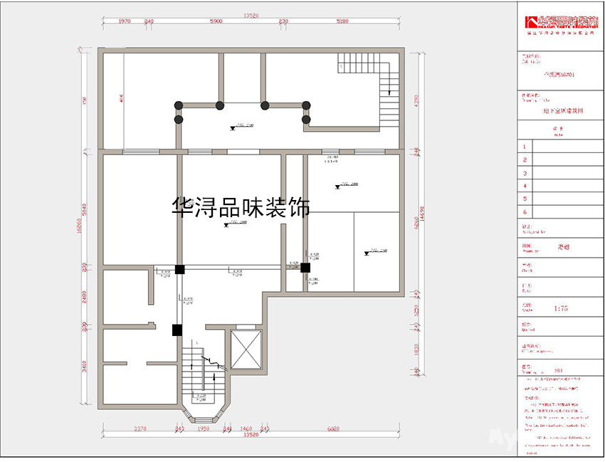
    地下室原件

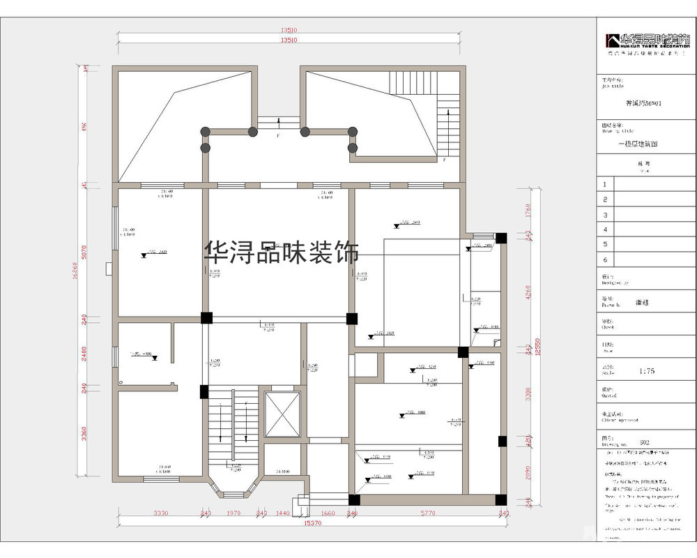
    一楼原件

    二楼原件

    三楼原件

    地下室平面

    一楼平面

    二楼平面

    三楼平面

    地下室:会客餐厅、开放式厨房、吧区、品茶区、办公区、影视厅、健身区融为一体的空间。


    地下室厨房

    地下室餐厅

    地下室茶室

    地下室过厅

    客厅:以中空的手法增加了楼下与楼上之间的空间交流产生对话,使空间有灵魂、有思想、有气息,开放式厨房、中岛台、椭圆餐台从而提高生活品质及饭馀之间的亲情交流。

    一楼餐厅

    二楼过厅

    二楼卧室

    二楼卫生间

    三楼起居室

    三楼是儿子婚房以起居厅、卧房、衣帽间、卫生间、洗衣阳台、休闲阳台等。

    咨询热线:88881389/8881379

    公司地址:丁卯桥路168号江南世家11-13









                      
    • 来自 江苏省
    • 精华 0
    • 注册 2019-7-22
    •  

    儒家气息充满各个细节。




    查看积分策略说明快速回复主题
    您目前还是游客,请 登录注册
    您目前是游客,本帖已被系统设置了自动关闭,不可回复!

    0/5000字

     
    < >
     

    Powered by Discuz! X 2 0.060476 s 清除 Cookies - 镇江网友之家 - 手机版
    论坛导航 关闭