户型改造,你想要的我们都有
格局、朝向、采光
富有空间感的室内布局,打造生活弹性空间;
南北通透、三面采光、全方位景观,愉悦心情与每一位家人即时分享;
客厅
阔绰客厅奢华不凡,承载居者个性豪情;
客厅规整大气,尽显主人简约尊崇品味;
阳光客厅,将是交友聚会绝佳属地;
客厅外接阳台,看得见楼下草地上的午餐,和自然零距离接触;
厨房
半开放式厨房,明亮空间施展大厨艺;
餐厅接洽观景阳台,充沛阳光,于美食中映射生活情节;
宽敞厨房,山为调料,烹煮幸福滋味;
玄关
入户独特玄关柜,充分利用每一寸空间,小细节大品质;
入户玄关设计,体贴鞋柜空间,尊贵入户利益凸显儒雅风范;
卫生间
卫生间干湿分离,为健康生活加分,保持居家清爽洁净;
厨卫一墙之隔,方便管道排布,节省装修费用;
方正主卫,沐浴也变成一种享受;
(格局太多,以下省略,其实我是懒
)
开始进入正题啦
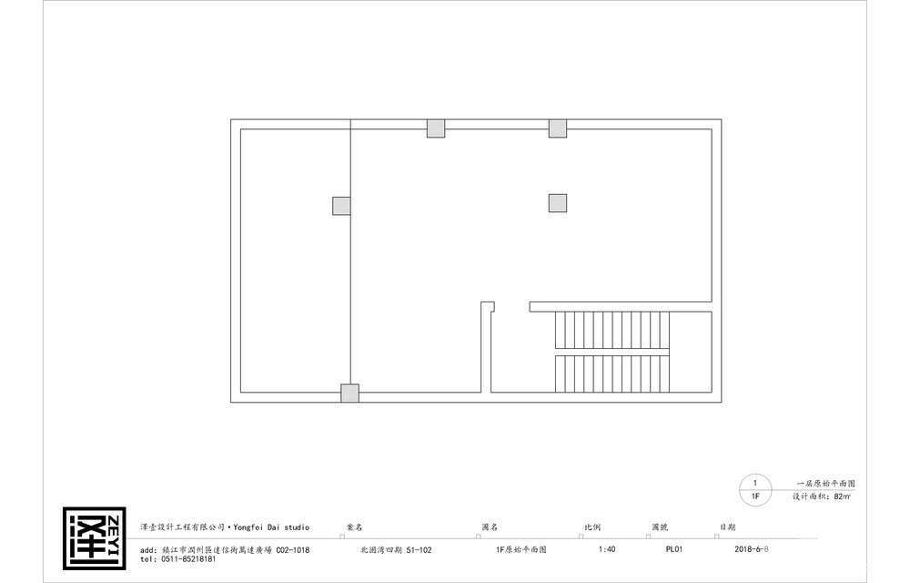
北固湾四期51-101室



地下室户型解析:
地下室原始结构,没有任何采光,基本属于一个暗室,并且潮湿度特别大,空间利用率不高。
因为地下室楼层较高,在后期户型改造中,把地下室分割为两层,上面一层潮湿度比较低,用作储物空间。
下面一层做成一个大的娱乐室,以此来增加地下室的空间利用率,解决原地下室空间利用率不高的问题。


一层户型解析:
一层在后期改造中,改造成一个相对对外的空间,很好的将二楼的生活区分离出去,形成一个相对完整、独立的会客区。


二层户型解析:
二层为该户型主力生活区域,原始结构布局太乱,分区不明显,没有留出客厅的区域。
在后期户型改造中,增强了每个功能间的完整性,将原有挑空位置改造成客厅,使二楼形成一个完整的生活区域。
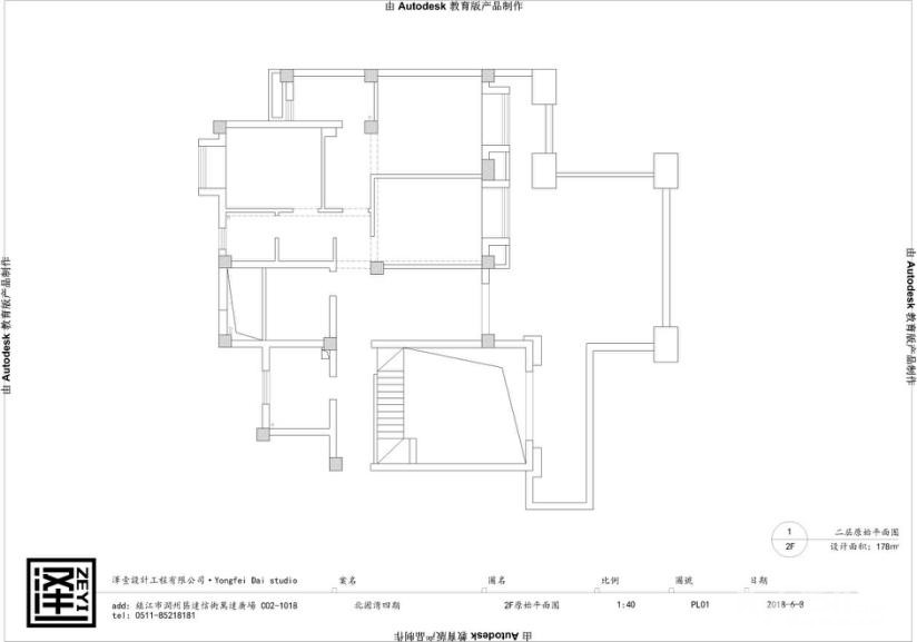
北固湾四期51-102室





此户型为招北四期复式的一个中间户。进入至室内,采光及通风是最大的问题。
由于户型的特殊性,需要在此基础上解决这两大问题。
1. 原户型结构入户为厨房位置,因不能外扩的原因,便移至原半室书房的位置,扩大了厨房的空间,同时增加了与餐区的连动性,门口的空间则顺其自然做成了换鞋区及入户景观。
2. 原户型结构的餐区位置无法放置餐桌椅,因与楼梯位置相连,也是整体格局的中心骨,为了解决餐区的使用、舒适度与实用性上的问题,将原下梯位空出给到了餐区,使得餐区的使用问题解决,同时也避免了楼梯下到地下室的踏步过于冗长。
3. 原户型卧室的空间结构不够规整,南北通风差。在此基础上做了局部改造,使通风得到完美解决。
4.地下室做了局部现浇面,分为了两层,分别作为棋牌娱乐区和家庭影音室。
5. 地下二层则作为健身区及台球其他娱乐、储藏。
北固湾四期51-301室


本户型为招商北固湾四期复式叠加户型中的三楼,适用于3-5口人居住,在厨房部分有一部分的外赠面积以及朝南的大露台。
优点:
1、客餐厅空间一体化视野开阔
2、整体空间南北通透光线通风良好
缺点:
1、空间动线划分不明确
2、朝南房间进户以及内部空间利用不良
基于上述优缺点做出以下方案首先将房屋附赠的面积浇筑将厨房以及儿童房的空间划分出来,其次改变主次卧的进门方向将动线划分,以客卫为界限划分会客与私密空间。
同时将原客厅的阔视野进行保留并未做任何隔断。在保证通风以及光线的情况下,满足正常生活所需。
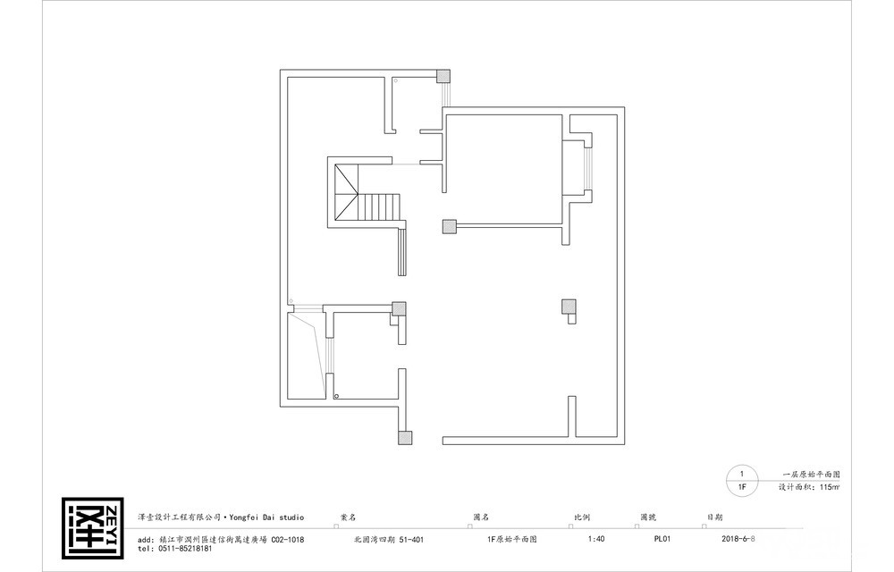
北固湾四期51-401室




此户型为招商北固湾四期复式楼层的顶层户型。入户视野开阔,光线充足,南北通风顺畅是这个户型最大的优势。
原户型结构的楼梯位置将户型的上半部分分割较为细碎,所以方案上着重于楼梯位置的调整。
原楼梯所在位置处于北阳台、一层卫生间及房间的交界处,外阳台的不规则在使用上很不舒服。
方案上将楼梯位置移至客厅区域的左侧,使得不规整的区域重新做整体的功能划分,也多留出了一个客房及衣帽间的空间出来。
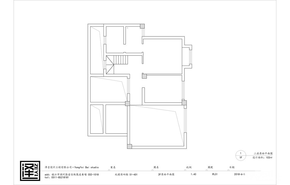
二层则是做了大面积的现浇面,在室内空间的利用上达到最大化,也使得空间功能分布更为清晰。
在保证两个房间的基础上,同时具备书房和衣帽间,多功能室可作为临时居住的空间,也可成为朋友聚会、儿童玩耍的活动区域。
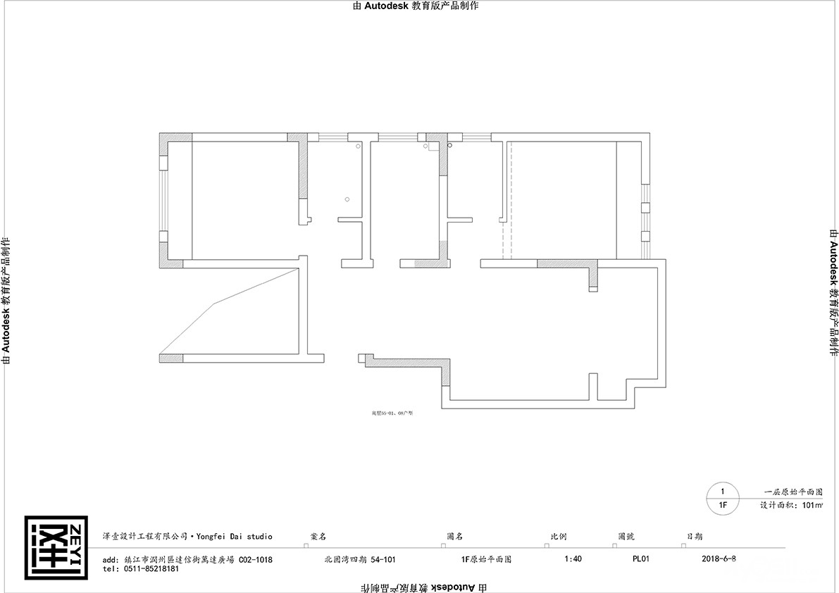
北固湾四期54-101室


此户型为100㎡左右的两室一厅两卫,也有赠送空间(上图所示的榻榻米,下同),所供人群暂定为一家三口,保留两个卧室和两个卫生间。
1.由于南北不够通风,所以打通通向赠送空间的墙体,改用折叠门,将南北进行通透,而此房间则作为多功能室使用,窗户为整片窗,可作榻榻米亦可作书房等,灵活多变。
2.原始结构的卧室门正对卫生间干区,从居住角度来说略显不便,所以将开门方向和客卫干区位置进行了调整,同时将门的位置向左移了29公分并进行了玄关处理,使得整体美观和谐。
3.餐厅空间略显压抑,所以压缩了客卫与厨房的空间,让出部分给餐厅,使得餐厅空间显得更加宽敞,居住更为舒心。
此套方案是为了使居住者在日常生活中更大程度的感受到舒适与舒心。
北固湾四期54-102室


此套户型为60㎡左右的一室一厅一卫,,所供应的人群应为单身或伴侣,以此为基础来看待此户型,厨房和卫生间的空间都足够,但是门厅与餐厅的空间就略显尴尬,尤其是餐桌的摆放就很成问题,和整个空间不能很好的融合到一起,并且结合整个户型来看,卧室的空间就略显浪费,使得整个房屋的空间划分不够合理,为此我们做出一套更为满足人们日常生活居住方案。
1.将客餐厅与卧室的空间互换,使得客餐厅形成一个整体;
2.同时将与原阳台衔接的墙体敲掉,使得客厅的空间往外延伸,而赠送的现浇部分作为生活阳台;
3.由于厨房位置有承重墙,此处只有经过卫生间和厨房再到客餐厅,这样承重墙位置放置冰箱更为合适,虽然缩小了厨房的空间,但是依旧满足使用需求,且客餐厅与卧室的空间能最大化使用;
4.而入户处则成为了房子光线较为暗的一处,做衣帽间最合适,可以放置一些平时不用的物件,而常用的,卧室也有衣柜足以满足需求。
5.门厅部分用到顶的柜子做隔断,节省空间,也可以充当门景,用柜子做衣帽间的隐藏门,使得门厅部分更为整体,满足美观需求。
此套方案是在有限的条件下,更大程度地运用空间以达到满足使用者的需求。
北固湾四期54-801室




该户型为招商北固湾四期小高层顶楼复式,一楼两室一厅一厨一卫,客厅有挑高以及一部分的外赠面积。二楼有一室一厨一卫以及露台。
一楼优点:1、外赠送面积。2、客厅方正。3、客厅挑空。
缺点:1、楼梯位置尴尬严重影响通过性。2、卫生间的门与进户门相对。3、卫生间内部格局不协调。
二楼优点:1、露台。2、二楼的厨房空间可另作他用。3、房间规整方正。
缺点:楼梯位置
就该户型来谈在进入房子的第一感觉就是楼梯的位置非常的尴尬严重影响视觉感受以及使用过程中的通过性。第二就是卫生间的门的位置与进户大门正对着。
在基于这方面的考虑我们对户型格局进行重新划分:
结合楼上下的空间以及空间的利用率由于是复式顶楼就将楼下朝北的房间舍弃,将楼梯放在朝北房间里,剩余空间与附赠空间组成一个开阔的餐厅与活动区。同时也将卫生间的门改了方向,解决卫生间门与进户门相对的尴尬局面。二楼部分将一楼客厅的挑空现浇起来形成一个房间既增加了朝南房间的数量提高了空间利用率,同时也是对楼下朝北房间舍弃后导致房间数量减少的补足。二楼主卧部分利用原有厨房间的空间做成一个带有衣帽间的套间,增加了大量的储物空间。
复式大平层户型(新增最多户型
)



本户型为招商北固湾四期复式叠加户型中的三楼适用于3-5口人居住,在厨房部分有一部分的外赠面积以及朝南的大露台。
优点:
1、客餐厅空间一体化视野开阔
2、整体空间南北通透光线通风良好
缺点:
1、空间动线划分不明确
2、朝南房间进户以及内部空间利用不良
基于上述优缺点做出以下方案:
首先将房屋附赠的面积浇筑、厨房以及儿童房的空间划分出来,其次改变主次卧的进门方向将动线划分,以客卫为界限划分会客与私密空间。
同时将原客厅的开阔视野进行保留,不做任何隔断。在保证通风以及光线的情况下,满足正常生活所需。
[ 本帖最后由 泽一设计 于 2018-9-17 17:54 编辑 ]









