
在时间面前
我们能够保留的东西并不多
所以每个人都希望生活除了温度
还应该有更多的宽度
这样才能在有限的时间与空间里
拥有更为宽广的人生

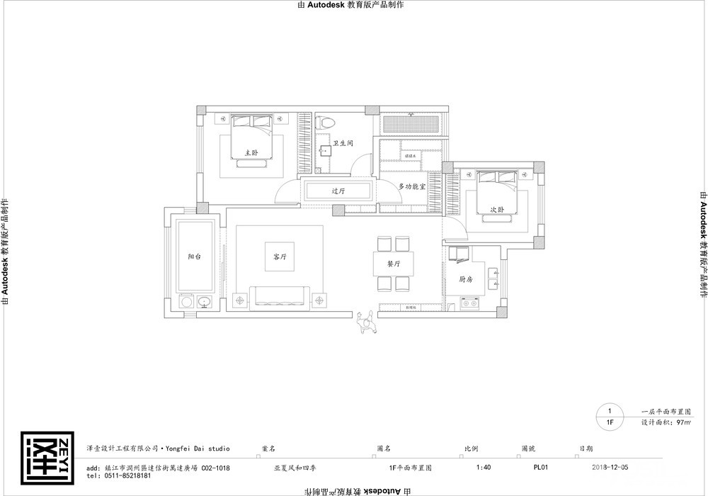
亚厦·风和四季1号【110㎡】
该户型为一厅一厨两卫的中间户型,适用于3-5口人居住。该套方案的出发点是以3代人共同居住为前提。

优点:1、该户型整体南北通透、采光良好。2、两房以及客厅朝南。
缺点:1、次卧与客厅布局不合理。2、餐厅的位置比较尴尬。


改动方向:1、将客厅与次卧的房间位置进调换,让次卧的变得更大,使人居住得更舒服,
次卧的房门利用隐藏门处理,使客厅电视背景变得完整。
2、利用座榻卡座的方式来处理餐厅部分,第一增加了人入座的位置,第二使餐厅的位置变得更加合理。
3、利用阳台较大的优势进行分割,将一部分阳台分入次卧里面,隐私性更好。
4、将与主卧连接的卫生间改为衣帽间,增加储物空间。

亚厦·风和四季2号【125㎡】
该户型为三室一厅一厨两卫的边户户型,适用于3-5口人居住。该套方案的出发点是以3代人共同居住为前提。

优点:1、该户型整体南北通透采光良好。2、两房以及客厅朝南。
缺点:餐厅的位置布局不合理。


改动方向:1、餐厅的位置布局不合理,所以将厨房部分的墙拆掉,
并与现有餐厅连接到一起,使厨房与餐厅的空间变得更大。
2、将一部分的阳台划分到次卧,再使用软塌的方式进行处理,
保证了空间的通风与采光,同时也增加了一部分的休闲空间。

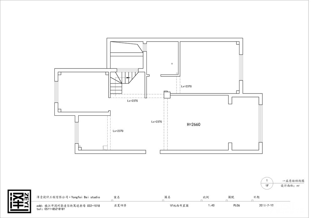
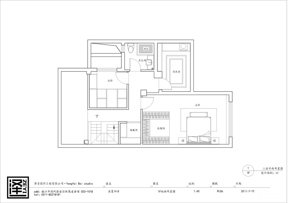
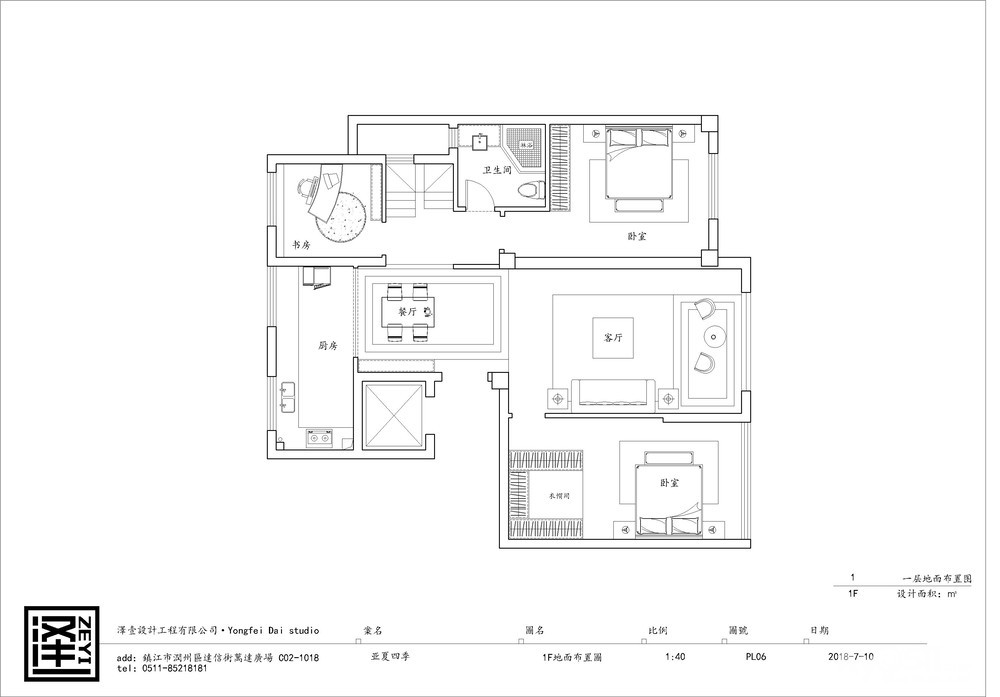
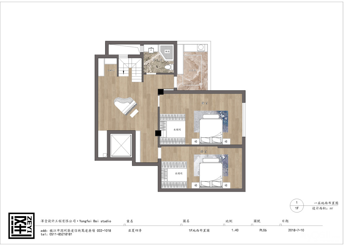
亚厦·风和四季3号【89+72㎡】
该户入户视野开阔,客餐厅空间非常大。户型方正的框架结构,非常适宜三代或新婚夫妇的居所。
细处分析原户型结构的问题主要在于空间功能利用率跟完整性上。



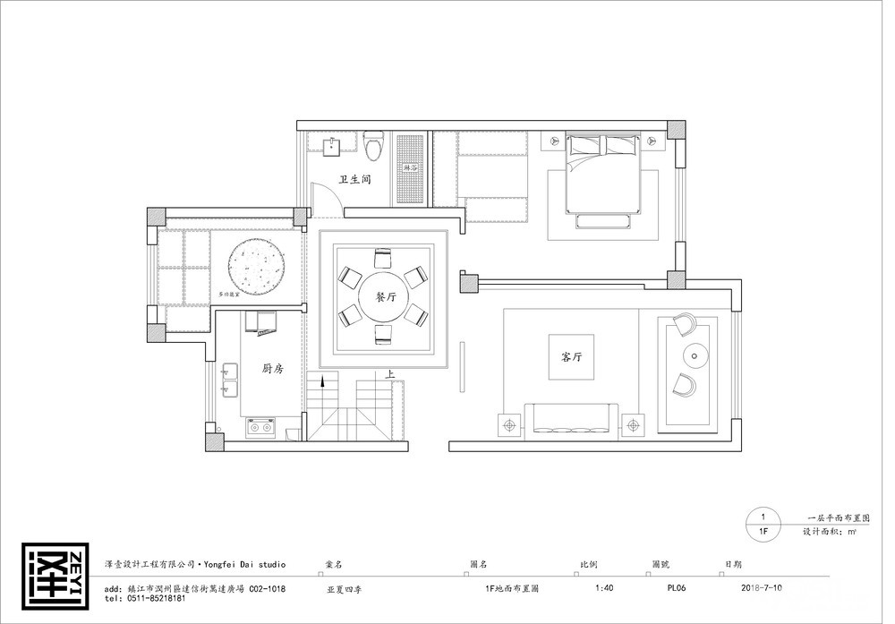
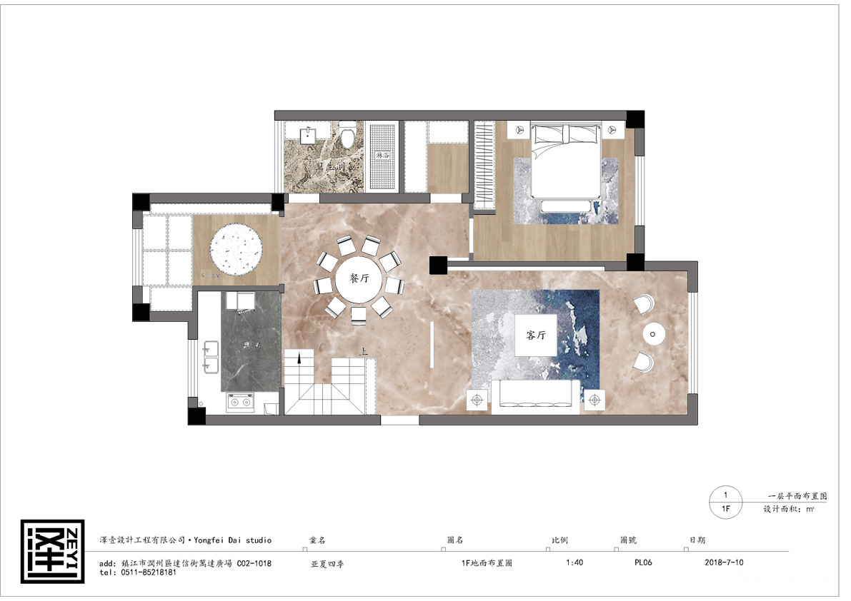
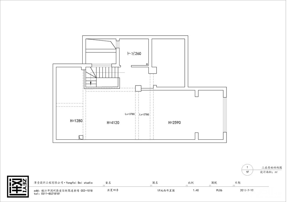
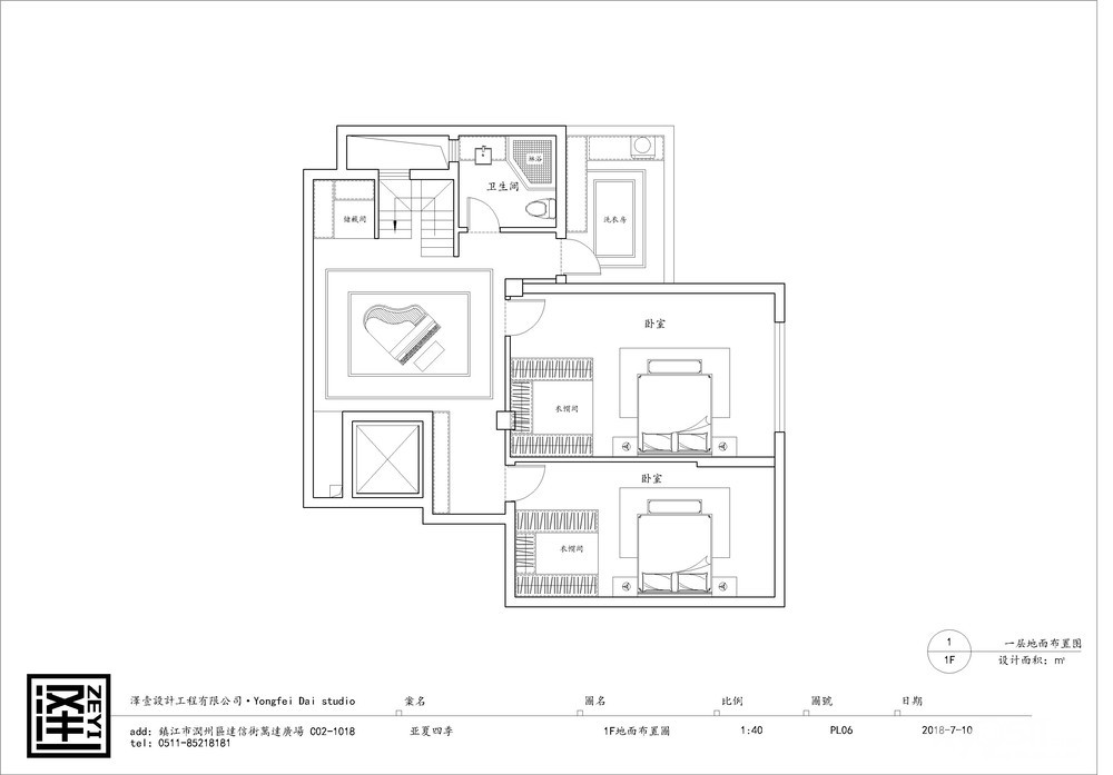
二层平面改动



改动方向: 1、入户右侧的楼梯间显得突兀 ,妨碍到主通道的美观及通过性,
对此将楼梯的位置移至到了玄关背景身后,人造玄关背景不仅对入户第一感觉上的满足。
同时也将楼梯完美的隐藏于身后,楼梯间自然也成为了一楼的杂物间,
方便一楼杂物摆放规划,解决了楼梯布局不太合理的问题,同时通往主要公共区域的客厅也显得更加开阔。
2、在一楼只有一间卧室的情况下,我们将过于浪费的两间卫生间进行重新划分,
一部分融入于厨房的使用,另一部分空间增加到了卫生间的使用里,
使空间的舒适性、实用性、美观性都得到了非常大的提升。
楼梯转向至二楼空间,做了两个开阔的房间,晾衣区也移至到了二楼。

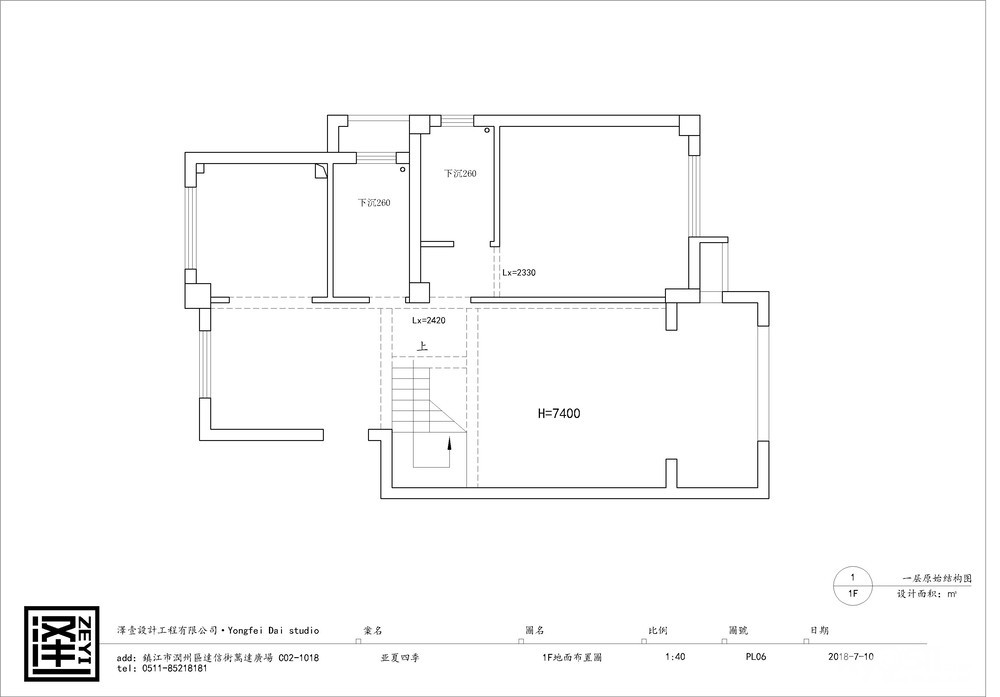
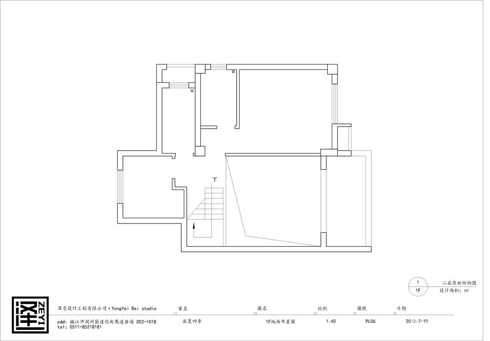
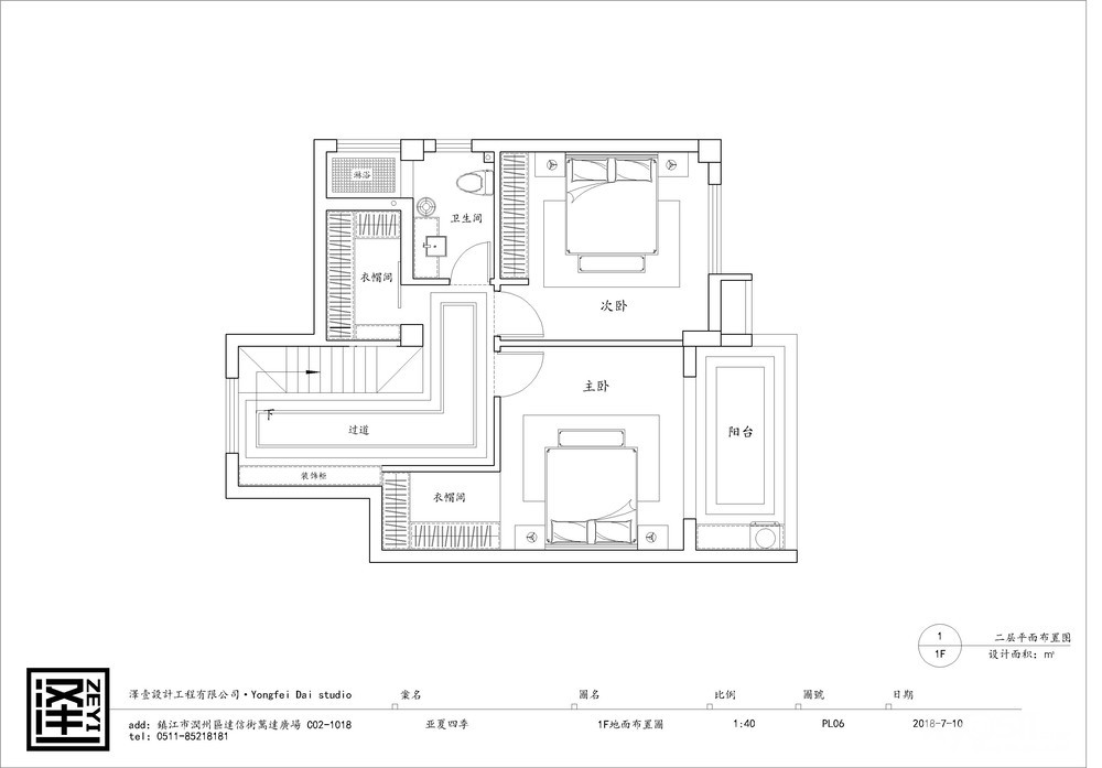
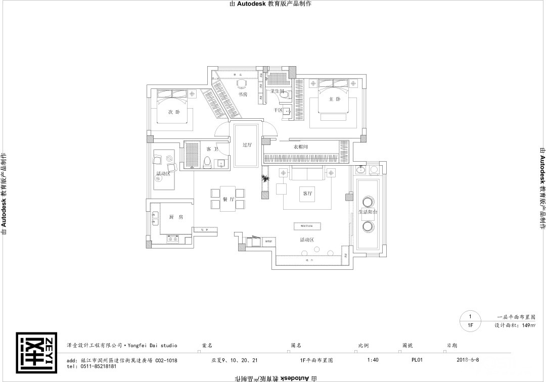
亚厦·风和四季5号【149㎡】
该户型为亚夏风和四季中第9、10、20、21栋的户型,三室一厅一厨两卫,适用于3口人居住。
该套方案的出发点是以年轻夫妻带子女居住同时需要更大的活动空间为前提。

优点:1、该户型整体南北通透采光良好。2、两房以及客厅朝南。
缺点:1、餐厅的位置比较尴尬。 2、进户门的位置。


改动方向:1、将进户门的朝向位置进行改动,解决了进户门空间比较局促的问题。
2、在客厅部分将其中的一个房间进行分割,一部分划分给主卧作为衣帽间增加储物空间,
另一部分划分给客厅,使客厅变得更大,同时利用半墙式电视背景墙使空间变得更活跃。

亚厦·风和四季6号【96+31㎡】
此户型分为上下两层,南北通透,不论是采光通风性都很良好,
主要问题在于楼梯的位置将上半区占据,影响通过性,占据较好的位置但使用性不强。



二层平面改动



改动方向: 1、将楼梯更改到厨房入口处,左上右下既不影响厨房的正常使用,
也给餐区留出很大的空间,对于热爱家庭聚会、大空间的住户会非常喜欢。
2、较隐蔽的楼梯左侧做了鞋柜,完全遮挡镂空的空洞感,也方便正常穿换鞋。
餐区的采光改为依靠多功能间,在保留三个房间的基础上,有这样一个空间存在,促膝长谈、品书阅读都是最佳的选择。
3、二楼的空间以居住收纳为主要功能。

亚厦·风和四季7号【119+51㎡】
该户型入户视野开阔,空气流通性很好,客餐厅空间非常大。户型方正的框架结构,非常适宜三代居住。
细处分析原户型结构的问题主要在于空间功能利用率跟完整性上。



二层平面改动



改动方向:1、入户右侧的楼梯不够规整,在原有基础上重新做了踏步调整 ,美观性上有所提升。
2、在保证四个房间的基础上,赠送面积的利用给予了厨房,厨房的使用舒适度上有了提升,
半室则改为了书房,朝南的空间则作为房间。
3、一层的阳台划分到客厅使用,洗衣晾衣放到二楼的洗衣房内。

亚厦·风和四季8号【97㎡】
该户型为亚夏风和四季96平方户型,适合一家三口或者年轻小夫妇居住生活。



改动方向:1、在户型改造中,将原有户型赠送面积改造为多功能室,增加使用空间。
2、改变原有过道位置,将主卧门南移,把过道改造到客厅,解决大门对卫生间门的问题,
并且形成一面完整的餐厅背景墙,使空间布局更合理。

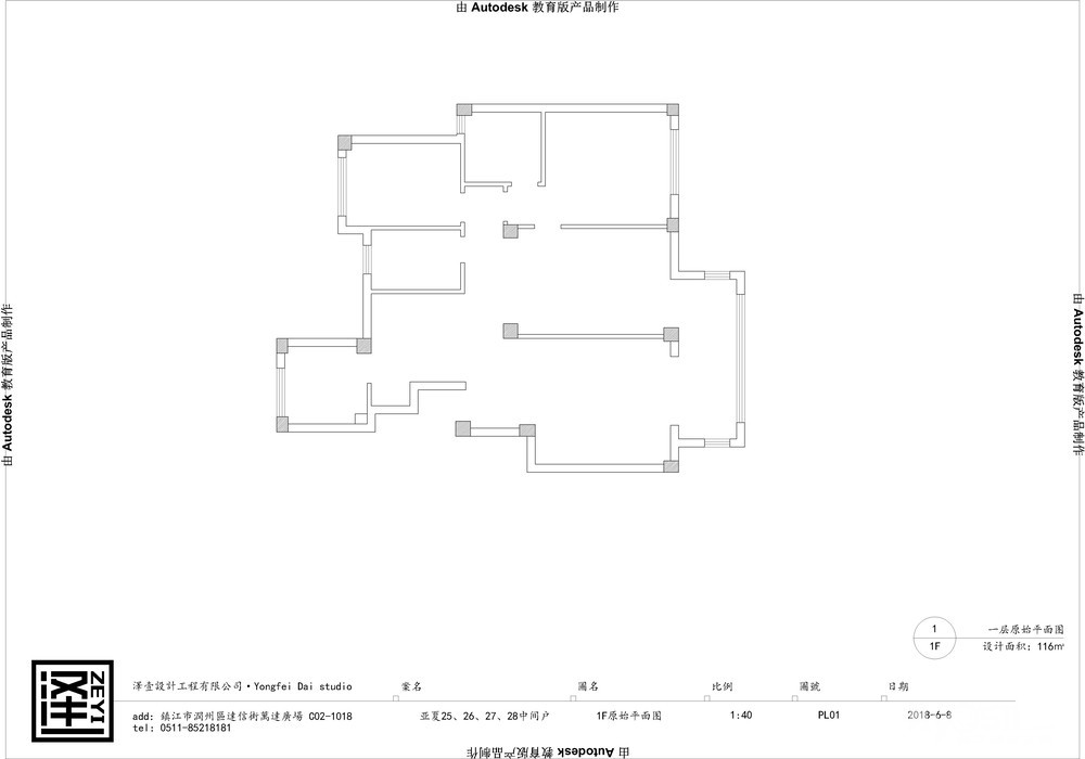
亚厦·风和四季10号【116㎡】
该户型为亚夏风和四季116的户型,适合三口之家居住,通风和采光都很不错。



改动方向:1、该户型餐厅位置较小 ,将原户型赠送面积划分给餐厅,增加餐厅的空间。
2、将原次卫门往北移,解决大门对次卫的问题。

亚厦·风和四季11号【116+90㎡】



二层平面改动



优点:1、赠送面积多,实用。2、框架结构,可塑性强。3、南北进深距离合理,采光性好。
缺点:1、进门见楼梯,风水大忌。2、餐厅太小且在入户口,拥堵。
改动方向:1、设置入户玄关,避免视线一通到底。
2、将主生活区设置在2楼,动静分离。
3、利用赠送空间,多设置储物空间。

亚厦·风和四季12号【135+95㎡】



二层平面改动



优点:1、原始布局比较合理,没有特殊要求可以不大改。2、每个区域的采光面积都很大。
缺点:1、现楼梯位置对房间影响很大。2、入户门方向别扭,进户不方便。
改动方向:1、楼梯改动,需要放置在不影响其他区域的地方。
2、此户型原本面积就大,赠送的也多,所以“大空间”是这个户型的主题。

亚厦·风和四季13号【137㎡】
该户型是亚夏风和四季133平方的边户,两室、客厅朝南,阳光充足,
有较多的赠送面积,且改动空间较大,适合做为改善型住房。



改动方向:1、将原有朝北赠送的区域的一部分划分给厨房,增加厨房的空间。
2、将原有客卫北移,原客卫的区域划分给餐厅,
原餐厅位置较小,改动后,形成了完整的餐厅区域。
3、将原有阳台划分一部分空间到儿童房,做成软塌休息区域。
4、将原有次卧一部分空间划分到主卧,做成主卧的衣帽间,增加主卧的储物空间。
5、将赠送的朝东的空间,做成开放式书房或多功能室,增加空间的多变性。

亚厦·风和四季14号【113+75㎡】






优点:1、原始布局比较合理,没有特殊要求可以不大改。2、每个区域的采光面积都很大。
缺点:1、现楼梯位置对房间影响很大。2、入户门方向别扭,进户不方便.
改动方向:1、楼梯改动,需要放置在不影响其他区域的地方。
2、此户型原本面积就大,赠送的也多,所以“大空间”是这个户型的主题。

亚厦·风和四季15号【116㎡】
该户型为亚夏凤和四季中三室一厅一厨两卫的中间户型,,适用于3-5口人居住。
该套方案的出发点是以3代人共同居住为前提。



优点:1、该户型整体南北通透采光良好;2、两房以及客厅朝南;
缺点:餐厅、进户门位置布局不合理;
改动方向:1、将进户门的朝向位置进行改动,既解决了进户门空间比较局促的问题,也将入户门厅独立出来。
2、将次卫生间的空间划分出来,解决餐厅太小的问题,同时增加一部分餐边柜,增加储物.
3、在进户门的位置增加一个进户玄关,既将门厅区域划分出来,同时避免了进门直对餐厅的尴尬问题。
[ 本帖最后由 泽一设计 于 2018-12-23 15:51 编辑 ]







