| 标题
快捷导航

精彩推荐:MY0511客户端下载

    • 中信银行镇江分行

    • 公益体彩 乐善人生

    • 鹏龙鸿蒙

    • 天然石材·人造石

    » 梦溪论坛 » 家庭装修 » 泽一设计 » [泽一设计在建工地]——招商北固湾四期51栋(已完工)
    泽一设计  >  [泽一设计在建工地]——招商北固湾四期51栋(已完工)     
    查看: 7132  回复: 21
    [泽一设计在建工地]——招商北固湾四期51栋(已完工)      查看: 7132  回复: 21
    • 来自 江苏省
    • 精华 75
    • 注册 2018-3-2
    • 行业 房产建筑
    •  
    [泽一设计在建工地]——招商北固湾四期51栋(已完工)

    {本帖只展示工地进展}



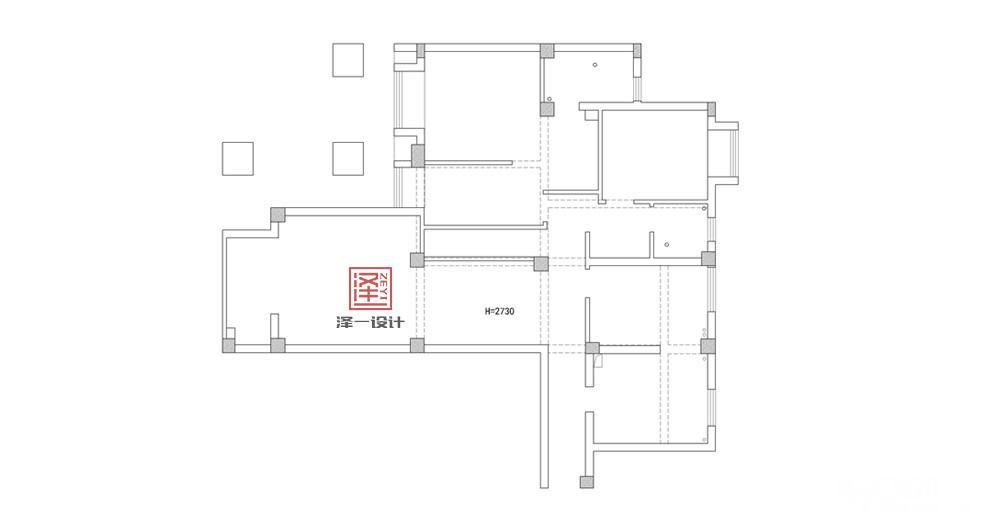
    户型面积:230㎡

    装修风格:新中式

    装修模式:半包

    开工日期:2019年3月11日

    设计/施工:泽一设计中心








    一层平面布局







    二层平面布局








    全景效果图点击下方链接查看

    【此处为站外链接,请谨慎打开】



    [ 本帖最后由 泽一设计 于 2023-8-7 14:30 编辑 ]





                      
    • 来自 江苏省
    • 精华 75
    • 注册 2018-3-2
    • 行业 房产建筑
    •  





    ▷拆除现浇砌墙





    [ 本帖最后由 泽一设计 于 2019-6-4 15:46 编辑 ]




    • 来自 江苏省
    • 精华 75
    • 注册 2018-3-2
    • 行业 房产建筑
    •  

    ▷封阳台装窗户






    • 来自 江苏省
    • 精华 75
    • 注册 2018-3-2
    • 行业 房产建筑
    •  



    ▷  水电进场施工(预计6月5日结束)








    • 来自 江苏省
    • 精华 75
    • 注册 2018-3-2
    • 行业 房产建筑
    •  

    ▷水电部分整改并结束,新风系统安装中(6月12日)








    • 来自 江苏省
    • 精华 75
    • 注册 2018-3-2
    • 行业 房产建筑
    •  

    ▷瓦工粉线槽,做防水(6月17日)










    • 来自 江苏省
    • 精华 75
    • 注册 2018-3-2
    • 行业 房产建筑
    •  

    ▷贴瓷砖及新风系统安装(6月21日)














    • 来自 江苏省
    • 精华 75
    • 注册 2018-3-2
    • 行业 房产建筑
    •  






    • 来自 江苏省
    • 精华 75
    • 注册 2018-3-2
    • 行业 房产建筑
    •  

    负一楼防水贴砖(8月17日)













    • 来自 江苏省
    • 精华 75
    • 注册 2018-3-2
    • 行业 房产建筑
    •  

    ▷木工进场(8月22日)









    • 来自 江苏省
    • 精华 75
    • 注册 2018-3-2
    • 行业 房产建筑
    •  

    ▷吊顶安装(8月26日)









    [ 本帖最后由 泽一设计 于 2019-8-31 10:21 编辑 ]




    • 来自 江苏省
    • 精华 75
    • 注册 2018-3-2
    • 行业 房产建筑
    •  

    ▷木工结束(9月6日)








    [ 本帖最后由 泽一设计 于 2019-10-16 09:07 编辑 ]




    • 来自 江苏省
    • 精华 75
    • 注册 2018-3-2
    • 行业 房产建筑
    •  

    ▷漆工材料进场(9月15日)











    • 来自 江苏省
    • 精华 75
    • 注册 2018-3-2
    • 行业 房产建筑
    •  

    ▷漆工施工中(9月17日)









    [ 本帖最后由 泽一设计 于 2019-9-27 17:42 编辑 ]




    • 来自 江苏省
    • 精华 75
    • 注册 2018-3-2
    • 行业 房产建筑
    •  




    [ 本帖最后由 泽一设计 于 2019-10-25 08:56 编辑 ]




    • 来自 江苏省
    • 精华 75
    • 注册 2018-3-2
    • 行业 房产建筑
    •  

    ▷大安装(11月22日)









    • 来自 江苏省
    • 精华 75
    • 注册 2018-3-2
    • 行业 房产建筑
    •  






    • 来自 江苏省
    • 精华 75
    • 注册 2018-3-2
    • 行业 房产建筑
    •  

    ▷庭院(12月8日)








    • 来自 江苏省
    • 精华 75
    • 注册 2018-3-2
    • 行业 房产建筑
    •  

    ▷木饰面铺贴(1月6号)


    [ 本帖最后由 泽一设计 于 2020-1-8 09:43 编辑 ]




    • 来自 江苏省
    • 精华 75
    • 注册 2018-3-2
    • 行业 房产建筑
    •  



    [ 本帖最后由 泽一设计 于 2020-1-8 09:42 编辑 ]




    • 来自 江苏省
    • 精华 75
    • 注册 2018-3-2
    • 行业 房产建筑
    •  






    • 来自 江苏省
    • 精华 75
    • 注册 2018-3-2
    • 行业 房产建筑
    •  



    [ 本帖最后由 泽一设计 于 2020-9-16 16:57 编辑 ]




    查看积分策略说明快速回复主题
    您目前还是游客,请 登录注册
    您目前是游客,本帖已被系统设置了自动关闭,不可回复!

    0/5000字

     
    < >
     

    Powered by Discuz! X 2 0.077368 s 清除 Cookies - 镇江网友之家 - 手机版
    论坛导航 关闭