| 标题
快捷导航

精彩推荐:MY0511客户端下载

    • 中信银行镇江分行

    • 公益体彩 乐善人生

    • 鹏龙鸿蒙

    • 天然石材·人造石

    » 梦溪论坛 » 家庭装修 » 泽一设计 » [泽一设计在建工地]——驸马山庄景明苑C栋
    泽一设计  >  [泽一设计在建工地]——驸马山庄景明苑C栋     
    查看: 5552  回复: 13
    [泽一设计在建工地]——驸马山庄景明苑C栋      查看: 5552  回复: 13
    • 来自 江苏省
    • 精华 75
    • 注册 2018-3-2
    • 行业 房产建筑
    •  
    [泽一设计在建工地]——驸马山庄景明苑C栋

    {本帖只展示工地进展}



    设计师:匡良
    户型面积:175㎡
    装修风格:极简轻奢
    装修模式:半包
    设计/施工:泽一设计中心
    开工日期:2019年9月22日







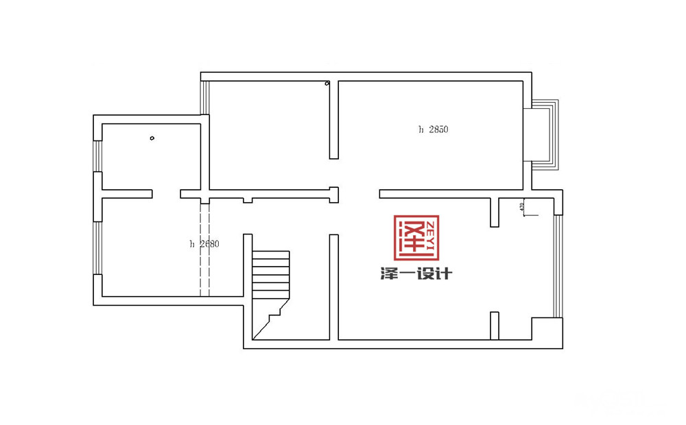
    一层平面图




    二层平面图





    一层布局图





    二层布局图










    全景效果图点击下方链接查看

    【此处为站外链接,请谨慎打开】



    [ 本帖最后由 泽一设计 于 2023-8-7 14:38 编辑 ]





                      
    • 来自 江苏省
    • 精华 75
    • 注册 2018-3-2
    • 行业 房产建筑
    •  

    ▷拆墙/墙固地固(9月24日)






    [ 本帖最后由 泽一设计 于 2019-11-4 10:17 编辑 ]




    • 来自 江苏省
    • 精华 75
    • 注册 2018-3-2
    • 行业 房产建筑
    •  

    ▷砌墙(10月9日)







    • 来自 江苏省
    • 精华 75
    • 注册 2018-3-2
    • 行业 房产建筑
    •  

    ▷开槽(10月19日)







    • 来自 江苏省
    • 精华 75
    • 注册 2018-3-2
    • 行业 房产建筑
    •  

    ▷水电施工中(10月19日)











    • 来自 江苏省
    • 精华 75
    • 注册 2018-3-2
    • 行业 房产建筑
    •  

    ▷木工施工中(11月2日)








    [ 本帖最后由 泽一设计 于 2019-11-13 10:53 编辑 ]




    • 来自 江苏省
    • 精华 75
    • 注册 2018-3-2
    • 行业 房产建筑
    •  

    ▷瓦工材料进场(11月22日)






    [ 本帖最后由 泽一设计 于 2019-11-25 09:00 编辑 ]




    • 来自 江苏省
    • 精华 75
    • 注册 2018-3-2
    • 行业 房产建筑
    •  

    ▷瓦工施工中(11月28日)






    [ 本帖最后由 泽一设计 于 2019-12-5 08:50 编辑 ]




    • 来自 江苏省
    • 精华 75
    • 注册 2018-3-2
    • 行业 房产建筑
    •  






    • 来自 江苏省
    • 精华 75
    • 注册 2018-3-2
    • 行业 房产建筑
    •  



    [ 本帖最后由 泽一设计 于 2019-12-18 09:19 编辑 ]




    • 来自 江苏省
    • 精华 75
    • 注册 2018-3-2
    • 行业 房产建筑
    •  



    [ 本帖最后由 泽一设计 于 2019-12-28 14:14 编辑 ]




    • 来自 江苏省
    • 精华 75
    • 注册 2018-3-2
    • 行业 房产建筑
    •  

    ▷漆工施工中(1月5日)






    • 来自 江苏省
    • 精华 75
    • 注册 2018-3-2
    • 行业 房产建筑
    •  






    • 来自 江苏省
    • 精华 75
    • 注册 2018-3-2
    • 行业 房产建筑
    •  






    查看积分策略说明快速回复主题
    您目前还是游客,请 登录注册
    您目前是游客,本帖已被系统设置了自动关闭,不可回复!

    0/5000字

     
    < >
     

    Powered by Discuz! X 2 0.031982 s 清除 Cookies - 镇江网友之家 - 手机版
    论坛导航 关闭