| 标题
快捷导航

精彩推荐:MY0511客户端下载

    • 中信银行镇江分行

    • 公益体彩 乐善人生

    • 鹏龙鸿蒙

    • 天然石材·人造石

    » 梦溪论坛 » 家庭装修 » 瑞阳装饰1 » 施工中案例---吾悦广场 ❥北欧❥
    瑞阳装饰1  >  [作品欣赏] 施工中案例---吾悦广场 ❥北欧❥     
    查看: 3280  回复: 4
    [作品欣赏] 施工中案例---吾悦广场 ❥北欧❥      查看: 3280  回复: 4
    • 来自 江苏省
    • 精华 115
    • 注册 2011-1-5
    • 行业 房产建筑
    •  
    施工中案例---吾悦广场 ❥北欧❥

    【案例地址】:吾悦广场2-705

    【案例风格】:北欧

    【设计师】 :毛菁

    【质检经理】: 谢佩清


    热烈恭贺王总豪宅开工大吉!感谢您对瑞阳装饰|精品设计的信任和支持。


    我们依旧秉承客户至上,质量第一的理念,用心打造优质放心工程


    祝福我们的客户,全家幸福,平安顺遂







    [ 本帖最后由 【瑞阳装饰】 于 2020-7-31 17:33 编辑 ]





                      
    • 来自 江苏省
    • 精华 115
    • 注册 2011-1-5
    • 行业 房产建筑
    •  

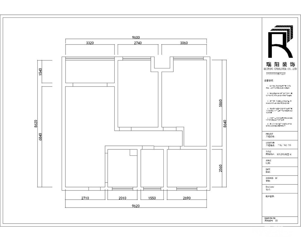
    【原始结构图】

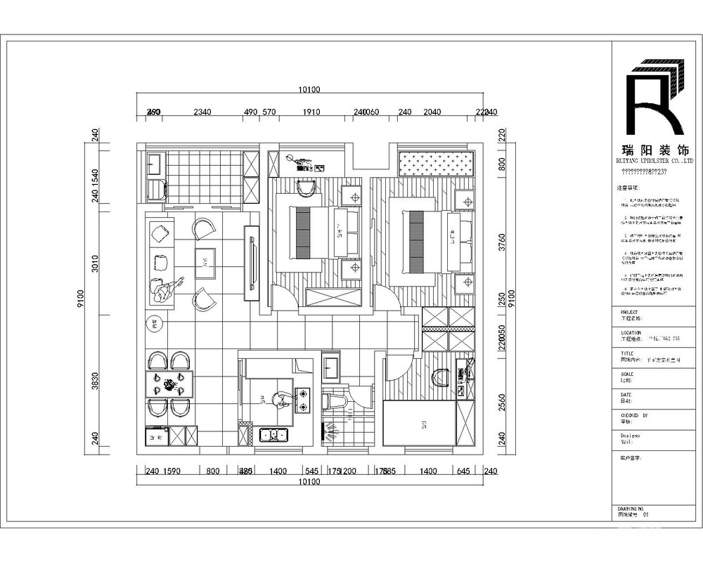
    【平面方案图】






    [ 本帖最后由 【瑞阳装饰】 于 2020-2-20 22:57 编辑 ]




    • 来自 江苏省
    • 精华 115
    • 注册 2011-1-5
    • 行业 房产建筑
    •  

    【效果图展示】







    [ 本帖最后由 【瑞阳装饰】 于 2020-2-20 22:58 编辑 ]




    • 来自 江苏省
    • 精华 115
    • 注册 2011-1-5
    • 行业 房产建筑
    •  

    【效果图展示】






    [ 本帖最后由 【瑞阳装饰】 于 2020-2-20 22:58 编辑 ]




    • 来自 江苏省
    • 精华 115
    • 注册 2011-1-5
    • 行业 房产建筑
    •  

    【扫一扫,看720°二维码】







    [ 本帖最后由 【瑞阳装饰】 于 2020-2-20 23:00 编辑 ]




    查看积分策略说明快速回复主题
    您目前还是游客,请 登录注册
    您目前是游客,本帖已被系统设置了自动关闭,不可回复!

    0/5000字

     
    < >
     

    Powered by Discuz! X 2 0.020832 s 清除 Cookies - 镇江网友之家 - 手机版
    论坛导航 关闭