| 标题
快捷导航

精彩推荐:MY0511客户端下载

    • 中信银行镇江分行

    • 公益体彩 乐善人生

    • 鹏龙鸿蒙

    • 天然石材·人造石

    » 梦溪论坛 » 家庭装修 » 瑞阳装饰1 » 施工中案例---宝龙国际花园❥现代简约❥
    瑞阳装饰1  >  [作品欣赏] 施工中案例---宝龙国际花园❥现代简约❥     
    查看: 12746  回复: 2
    [作品欣赏] 施工中案例---宝龙国际花园❥现代简约❥      查看: 12746  回复: 2
    • 来自 江苏省
    • 精华 115
    • 注册 2011-1-5
    • 行业 房产建筑
    •  
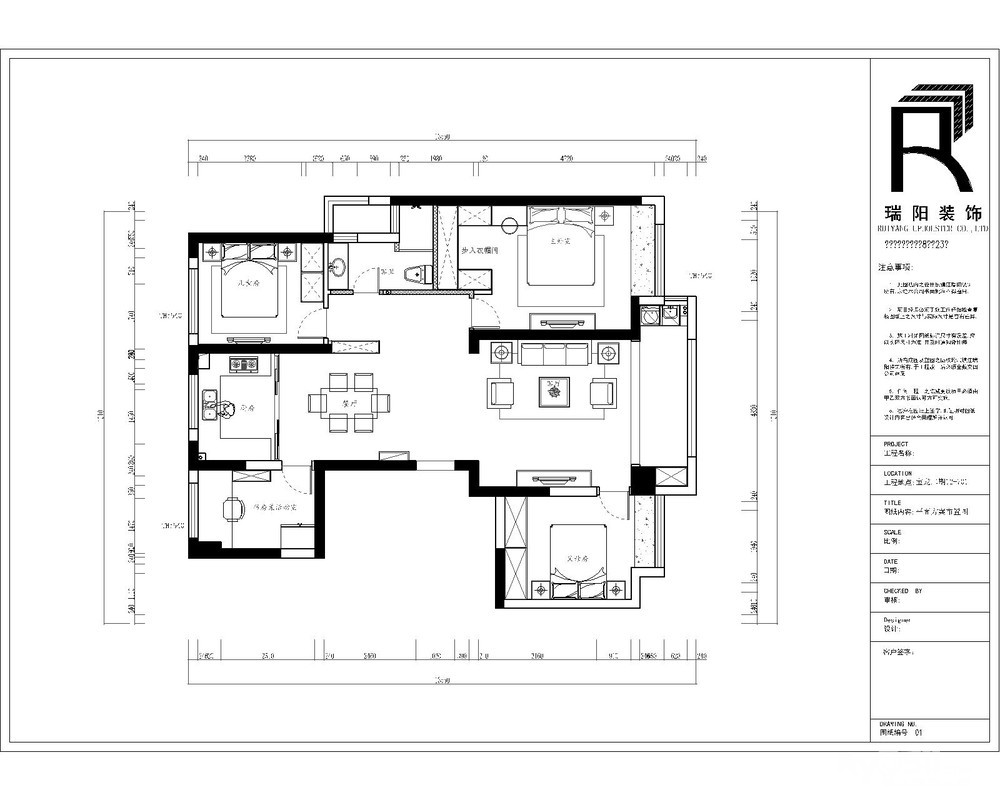
    施工中案例---宝龙国际花园❥现代简约❥

    【案例地址】:宝龙国际花园

    【案例风格】:现代简约

    【设计师】 :毛菁

    【质检经理】: 刘羽






    [ 本帖最后由 【瑞阳装饰】 于 2020-7-31 17:23 编辑 ]





                      
    • 来自 江苏省
    • 精华 115
    • 注册 2011-1-5
    • 行业 房产建筑
    •  

    平面及效果图展示










    [ 本帖最后由 【瑞阳装饰】 于 2020-6-14 11:34 编辑 ]




    • 来自 伊拉克
    • 精华 0
    • 注册 2016-2-16
    •  






    查看积分策略说明快速回复主题
    您目前还是游客,请 登录注册
    您目前是游客,本帖已被系统设置了自动关闭,不可回复!

    0/5000字

     
    < >
     

    Powered by Discuz! X 2 0.056600 s 清除 Cookies - 镇江网友之家 - 手机版
    论坛导航 关闭