【小区名称:】镇江万科锦里
【设计风格:】北欧
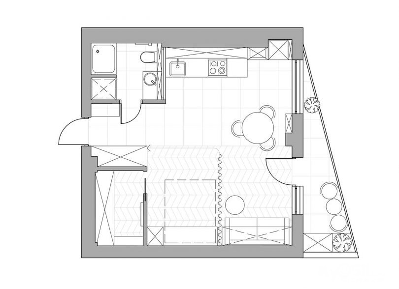
【房屋面积:】39
【设计师:】北欧
【套餐包:】S包
【方案改造说明:】30平方效小户型方案 房子虽小也能变成一个精致的家小户型最憋屈的就是空间永远都不够用,得在这小小几平米中挣出高机能榨干每一平米,已经是小户型规划必备的口号!但要怎么有效率的榨干空间,其实是有逻辑的空间共享使用意思就是赋予空间两种以上的使用意义。想要做到一个区域可以创造多种机能,得先去除隔断的限制,模糊空间的界线,客厅、餐厅、厨房全然开放,空间机能交叠,也就能节省空间。像这样餐厨旁放上桌椅,变成餐厨与书房空间共享。隔断改移门,多赚一房还变大当然,全然开放的设计是最省空间的,但若想要多些隐私,不妨利用可弹性移动的移门,能随时划出独立区域,又不让空间变小。像卧室和客厅就是运用拉帘的最佳区域,平时全然敞开,空间视野变得宽阔;需要独处休息就关闭移门,瞬间打造私密小天地。







[ 本帖最后由 金螳螂设计 于 2022-10-11 10:28 编辑 ]








