
关于本案
面积:220㎡(改造后惊现500平)
风格:现代极简
主要用材
●钢材烤漆
●不锈钢
●玻璃
●钢刷橡木木皮
●卡拉卡白石材
设计理念
不同的人对于住宅空间的设计风格、外在形态有着不同的理解与要求。对于空间功能的需求也因人而异、因时而异,因势而异。设计师花了很多时间与业主交流沟通,只有足够的了解,才能设计出符合业主心意的作品。透过材质与量体间的呼应,木质的温润,石材的壮阔,与家相融,来表达本案“人与自然”的主题。
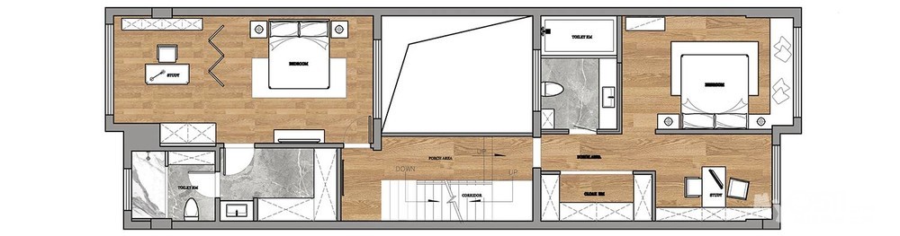
一楼

Living room




客厅去除了复杂的修饰,让空间变得更加开阔。为了不让简单的空间显得苍白,沙发背景墙选用了实木质感的饰面板来铺设,木质地板在视觉上形成层次感的同时,还与之呼应。木纹让整个空间都多了些许温柔感。


中庭没有做任何搭建,将阳光与和风引入室内,通透沉静,黑色的钢琴放置于此,符合本案的设计主题,人与自然相融。


Dining room

通过用黑白色有视觉冲击力的巨马挂像来突出餐厅的氛围感。
Kitchen

厨房橱柜选用木纹的图案,有着不加修饰的逼真和质朴,搭配白色台面,使厨房看起来更加明亮。


Stairs

对于连接个楼层的楼梯部分,设计师尽量让其放松,减量处理,悬浮的橡木楼梯板,精致的哑光黑扶手贯穿三层楼板,丰富了垂直元素,更是一种建筑艺术品的形态呈现。
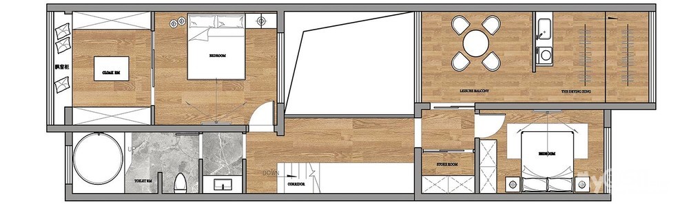
二楼



满天星圆球形吊灯精致优雅,错落有致的排列,给整个空间增添了不一样的风情。
Master bedroom



卧室根据男业主的年龄和喜好及生活形态来设计,做了一个半敞开的格局。窗户是一块矩形玻璃,让人在家里,便可与窗外的自然景观互动,同时在视觉上给人以空间的通透感。


阅读区在就寝区的背后,方便业主在自己的私密空间里,阅读、工作、娱乐。


卫生间和卧室采用透明玻璃隔断,色彩上以黑灰白为主,简约至上。
三楼


Bedroom

纯白的墙壁,原木色的温馨大床,让人感觉十分舒服。

坐在露台上,仰望璀璨的星空,是多么的惬意。
负一楼

Basement

打造一个属于自己的小型健身房,在家也能健身。

服务网点:
【镇江】
润州区:旭辉时代大厦1505室
TEL: 0511-85603303
微信咨询:18652823579
官方网站:【此处为站外链接,请谨慎打开】
[ 本帖最后由 鸿鹄设计镇江站 于 18-3-24 15:03 编辑 ]







