
设计说明:
我希望这个案子呈现的关键词是:灵动的,有生机的,有故事的。空间能有更多的承载,在日常的使用中去增加与房子的亲切感。从境到情的升华,带着时光的印记,低吟浅唱。
一直把自己定义为“更偏爱现代的直线与理性”,但在这个案子中却更多地探索了关于美式的平静和克制。每一次尝试都会有新的收获和成长,希望这个案子能给你们带来一些关于空间的美的感受。
【负二层平面图】

【负一层平面图】

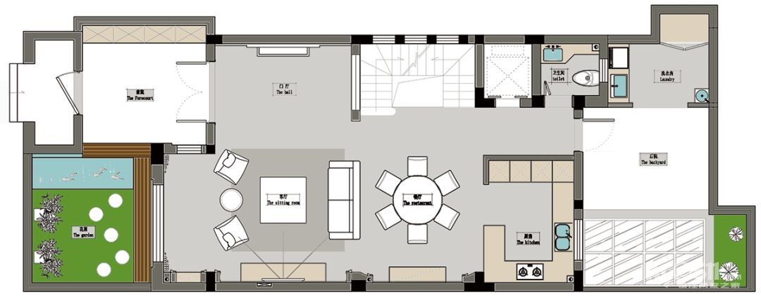
【一层平面图】

【二层平面图】

【三层平面图】

【客厅】

爵士白勾勒的框架,丁香紫渲染的衬底,让装饰界面退隐一步,成为家具和生活的背景。细腻的质感,恰到好处的重量感,由境抵心的安稳。

【玄关】

优雅的色彩搭配,不同材质之间的碰撞,高雅,静谧!
【餐厅】


有水晶灯的精致感,也有装饰画和花艺相映的喜气,日常之物也能让简单的生活发光发亮。
【外卫】

【父母房】

在颜色和材质上悉心调配,在细部的形态上讲究呼应,如同沉淀之后的绽放。
【父母卫】

【儿童房】


墙面特殊的肌理感,湖蓝色的护墙板与墙面色彩饱和度一致,给人柔和的视觉感。
【儿童活动区】

背对着画面的是几块鹅黄色的门板,再加上自然光,两幅比较大尺寸的画,素色带勾边的窗帘,一盏有氛围感的灯,像是房子突然之间有了一个暖心的角落,能让孩子天马行空的想象得到释放。
【主卧】


在中性色调的空间里,用一些绯色的床品进行点缀,宕开一笔,漱齿尤香。
【主卫】

【水吧】

【书房】

【楼梯】


服务网点:
【镇江】
润州区:旭辉时代大厦1505室
TEL: 0511-85603303
微信咨询:18652823579
官方网站:【此处为站外链接,请谨慎打开】
[ 本帖最后由 鸿鹄设计镇江站 于 18-3-23 10:59 编辑 ]







