| 标题
快捷导航

精彩推荐:MY0511客户端下载

    • 中信银行镇江分行

    • 公益体彩 乐善人生

    • 鹏龙鸿蒙

    • 天然石材·人造石

    » 梦溪论坛 » 家庭装修 » 万家基和装饰 » 清怡嘉苑42-306---------新中式---------竣工
    万家基和装饰  >  [在建工地] 清怡嘉苑42-306---------新中式---------竣工     
    查看: 4600  回复: 6
    [在建工地] 清怡嘉苑42-306---------新中式---------竣工      查看: 4600  回复: 6
    • 来自 江苏省
    • 精华 232
    • 注册 2011-7-1
    • 行业 其它
    •  
    清怡嘉苑42-306---------新中式---------竣工

    【业主】:李先生
    【建筑面积】:200  
    【设计风格】:新中式

    【工程造价】:10.0万(半包)  

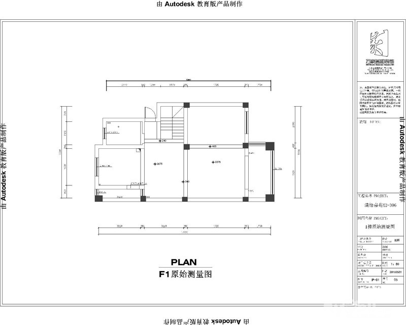
    一层原始户型图


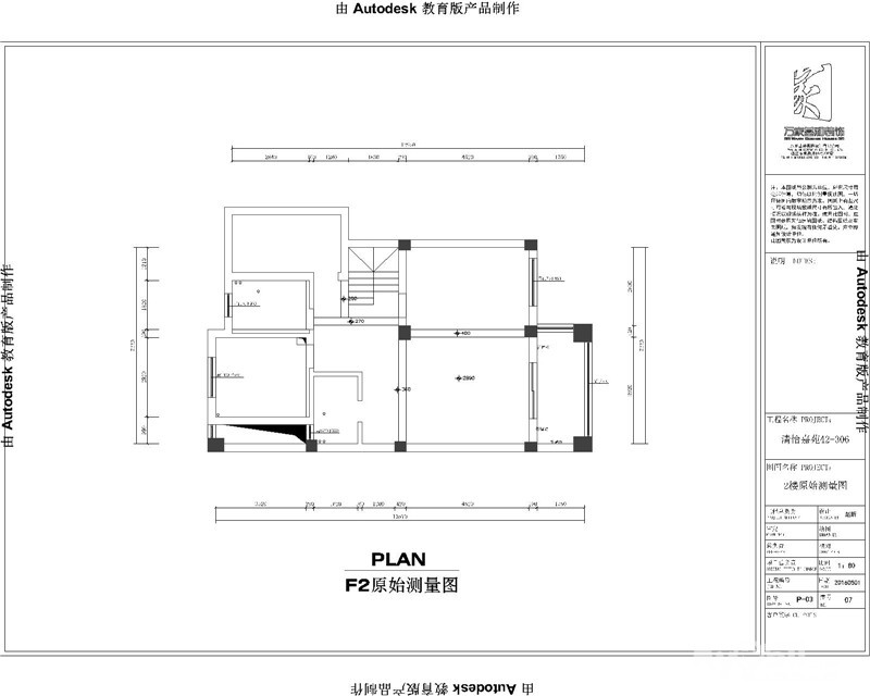
    二层原始户型图




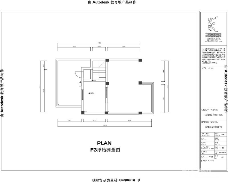
    三层原始户型图





    一层平面设计图



    二层平面设计图



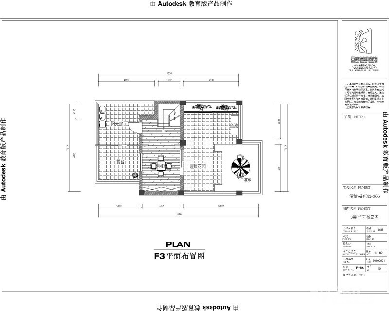
    三层平面设计图





    客厅效果图




    餐厅效果图


    卧室效果图





    [ 本帖最后由 万家基和客服 于 2020-4-20 17:55 编辑 ]





                      
    • 来自 江苏省
    • 精华 232
    • 注册 2011-7-1
    • 行业 其它
    •  
    水电实景图
















    • 来自 江苏省
    • 精华 4
    • 注册 2011-7-13
    • 行业 其它
    •  

    半包都包括哪些




    • 来自 江苏省
    • 精华 232
    • 注册 2011-7-1
    • 行业 其它
    •  


    QUOTE:
    原帖由 羊毛咪咪 于 16-9-16 21:06 发表
    半包都包括哪些
         您好!!半包包括的项目有:水电人工,电线,线管,网线,电话线,电视线,水管,瓦工人工,水泥黄沙,防水,木工吊顶,电视背景,门套基础,油漆工人工,乳胶漆,界面剂,成品腻子及辅料。我们的半包材料品牌是:电线是菊花牌,网线是普天远东,有线是广电专用,水管是上海瑞河抗菌管(万家基和专用定制管),线管是苏州苏宏(万家基和专用定制管),防水是普拉美,木工板是鹏鸿,韩氏,石膏板是龙牌,界面剂是普拉美,乳胶漆是立邦,芬琳,都芳,一般我们会先根据我们的系统帮你做报价,如果你看了以后想在用好点的材料,那我们就会调整一下价格,补一下里面的材料差价就可以了。咨询热线88985388   18061185108   官网了解我们【此处为站外链接,请谨慎打开】 ; QQ459886361;917381602;0511店铺在建工地一览http://bbs.my0511.com/f916b-y497p;如有意向可联系我们,公司地址:学府路66-208(欧尚超市旁中国银行楼上)

    [ 本帖最后由 万家基和客服 于 16-9-17 12:11 编辑 ]




    • 来自 江苏省
    • 精华 232
    • 注册 2011-7-1
    • 行业 其它
    •  
    木瓦实景图




















    • 来自 江苏省
    • 精华 232
    • 注册 2011-7-1
    • 行业 其它
    •  
    油漆实景图
















    • 来自 江苏省
    • 精华 232
    • 注册 2011-7-1
    • 行业 其它
    •  
    成品实景图






























    查看积分策略说明快速回复主题
    您目前还是游客,请 登录注册
    您目前是游客,本帖已被系统设置了自动关闭,不可回复!

    0/5000字

     
    < >
     

    Powered by Discuz! X 2 0.081137 s 清除 Cookies - 镇江网友之家 - 手机版
    论坛导航 关闭