扫码下载客户端
打开微信扫一扫
中信银行镇江分行
公益体彩 乐善人生
鹏龙鸿蒙
天然石材·人造石
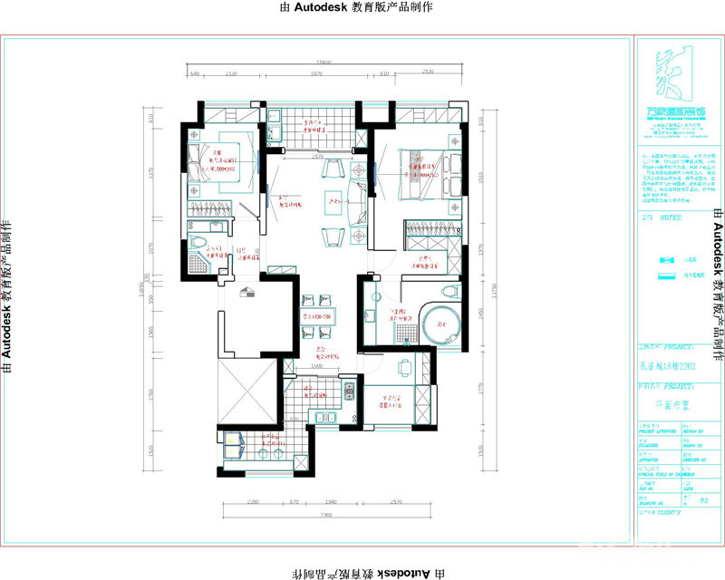
业主为三口之家,套内面积110平方,在不大的空间里建筑商把房屋做成了四室两厅两卫一厨双阳台,所以在空间上必须要重新规划,跟据居住者的生活习惯调整出更合理的空间。
0/5000字