【设计风格】:现代意式
【合同类型】:全包
【设计师】: 栾树(首席设计师)

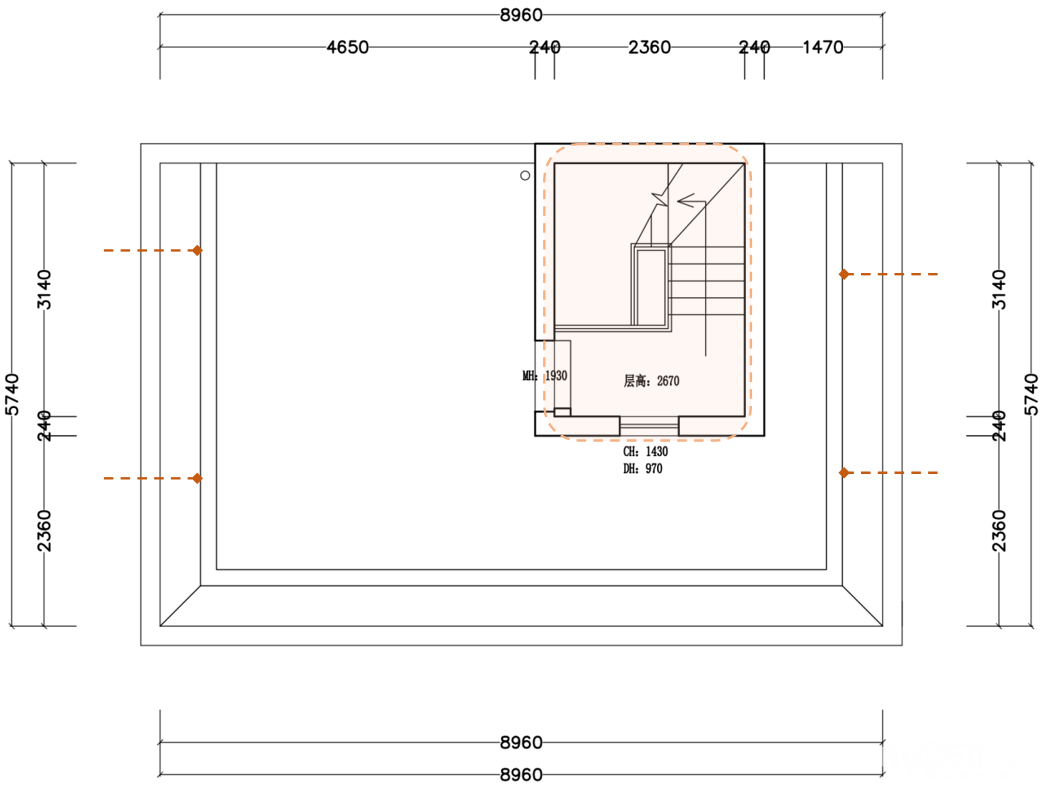
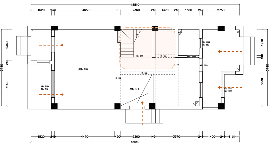
原始结构图



平面布置图



效果图预览

以米白+木色+深灰为基调,低饱和度配色营造宁静通透感,绿色大理石作为跳色注入自然生机。


将客厅、餐厅、厨房整合为开放式格局,打破传统墙体隔断,让光线与视线自由流动,适合家庭互动与社交场景。

厨房侧重高效操作,餐厅作为核心交流区,
客厅则以壁炉+电视墙打造放松休憩区,各区域既独立又彼此呼应。



中岛台兼顾备餐与吧台功能,开放式搁架展示藏品


用简洁的空间结构、高级的材质搭配、细腻的灯光层次,
打造既实用又富有格调的现代家居,
让居住者在通透、宁静的环境中感受生活的舒适与品质。
手机扫码看全景效果图

[ 本帖最后由 万家基和客服 于 2026-3-26 09:32 编辑 ]







