【设计风格】: 现代意式
【设计师
     栾树(首席设计师)

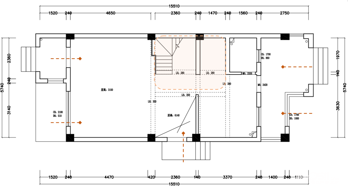
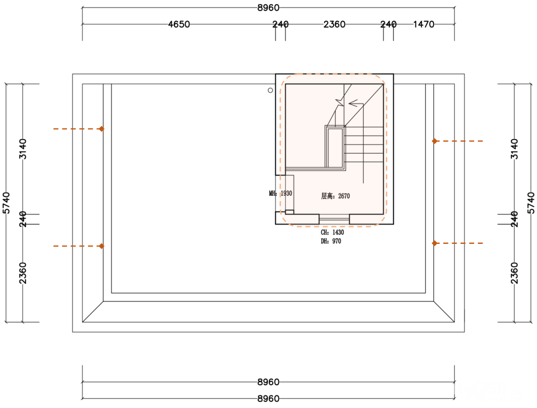
原始结构图







平面布置图









效果图预览




以米白+木色+深灰为基调,低饱和度配色营造宁静通透感,

绿色大理石作为跳色注入自然生机。



将客厅、餐厅、厨房整合为开放式格局,打破传统墙体隔断,

让光线与视线自由流动,适合家庭互动与社交场景。







餐厅艺术吊灯、电视背景墙灯带、分层营造温馨感与场景感,提升空间温度。



中岛台兼顾备餐与吧台功能,开放式搁架展示藏品,仿真壁炉在无真火条件下营造温暖氛围感。







用简洁的空间结构、高级的材质搭配、细腻的灯光层次,

打造既实用又富有格调的现代家居,
让居住者在通透、宁静的环境中感受生活的舒适与品质。

手机扫描二维码看全景效果图




[ 本帖最后由 万家基和客服 于 2026-3-26 09:48 编辑 ]