| 标题
快捷导航

精彩推荐:MY0511客户端下载

    • 中信银行镇江分行

    • 公益体彩 乐善人生

    • 鹏龙鸿蒙

    • 天然石材·人造石

    » 梦溪论坛 » 家庭装修 » 南山西侧 白龙湖畔 亚东紫檀 我的新家
    家庭装修  >  [装修日记] 南山西侧 白龙湖畔 亚东紫檀 我的新家     
    查看: 128648  回复: 161
     162  1/4  1  2  3  4  > 
    [装修日记] 南山西侧 白龙湖畔 亚东紫檀 我的新家      查看: 128648  回复: 161
    • 来自 江苏省
    • 精华 0
    • 注册 2008-1-11
    • 行业 房产建筑
    •  
    南山西侧 白龙湖畔 亚东紫檀 我的新家



    此帖已成功报名2016家装日记大赛更多家装信息关注MY0511家装频道


    【小区名称】:亚东紫檀

    【所在楼层】:14F
    【建筑面积】:167.61
    【装修风格】:现代中式
    【包工方式】:自己找人做
    【装修公司】:自己
    【开工日期】:2016年3月20日
    【装修预算】:30-35万

    【设计师】:本人
    【项目经理】还是本人
    【户型图片】:如下


    我和老公都不是镇江本地人,在镇江上学,毕业后在镇江工作——买房——结婚——生子……
    2009年毕业后准备买房,赶上房价飙涨到抛物线的顶峰,那个时候骑个电动车,没事就跑到各售楼处去看房子……
    主材篇
    【水电管线】公元,菊花
    【家具】苏梨(一眼就看中的)
    【集成吊顶】法师龙
    【地砖】冠军
    【空调】船院,客餐厅日立风管机加房间挂机,欧洲之星客餐厅地暖+房间暖气片混装
    【阳台】辽宁忠旺(小区邻居)
    【移门】智赫移门(搞了好多次团购了,陈老板人很好)
    【卫浴】全部法恩莎搞定,浴柜用的周总家的高第,质感很好
    【其它】暂时未定

    [ 本帖最后由 my0511菲雪 于 17-5-12 16:21 编辑 ]









                      
    • 来自 江苏省
    • 精华 6
    • 注册 2005-8-28
    •  

    恭喜




    • 来自 江苏省
    • 精华 0
    • 注册 2015-6-19
    •  

    恭喜恭喜




    • 来自 江苏省
    • 精华 22
    • 注册 2006-9-4
    • 行业 房产建筑
    •  

    恭喜楼主开贴,有问题可以和我们交流哦,祝装修顺利,装个美美的家




    • 来自 江苏省
    • 精华 0
    • 注册 2008-1-11
    • 行业 房产建筑
    •  

    当时我非常中意的华都名城,当时的均价是7K多,因为我们二人都刚毕业,实在囊中羞涩(4月份毕业到买房时11月份共存了1万元),看来看去买了现在住的小区翰霖苑,87平,一室二厅。没有孩子之前,那个小房间我们可以一个月都不进去一次,但是随着儿子的出现,一切都变了,家里全是他的玩具、尿不湿、奶粉、衣服,恨不得把所有能打柜子的地方都打上柜子……。
    2014年儿子挑选了一个“我爱你”的日子出生,把老妈从老家拖来帮我们带孩子,渐渐的家里堆成了山,买房的想法越来越迫切。
    2014年底开始漫无目的的看房,别的片区都没看,就在南徐片区看了雅居乐,紫檀,中冶玉翠园这三个小区。14年底雅居乐卖的挺好,有个同事在开盘的时候买了雅居乐,我有个同学正好在雅居乐海南总部上班,他说我要买的话能帮我拿到工程价的房价,当时也是差点就决定买了,总觉得户型不是很满意。房间都太小,只能放下一张床和两个床头柜,家里能储物空间也是少的可怜。
    春节过后,看了中冶玉翠园,接待我们的售楼员是这样说的,“我们中冶10万平米,700户,除了花园洋房就是别墅;你再看看旁边的紫檀,6万平米,1000户,全是高层,压抑吧?还有那个雅居乐,太没节操了(此时雅居乐已经开始降价)”我看了一层的样板间,特别喜欢那个院子,地下室还可以给儿子做活动室,老公也特别喜欢。一问价格,一层12000一平,说好的地下室送的,结果全算在单价中去了,二层是9000一平,这该死的地下室3000一平啊,而且还那么大,顿时觉得他们好歹毒真想拿把刀来砍他……呵呵。郁闷之后看了紫檀,一眼相中了他家的大阳台,脑中浮现出儿子在阳台踢足球的场景。但此时均价在7500,也是蛮肉疼的。
    就这样一直犹豫着,有一天在外面培训上课,和另一同事聊天,他说他也想买房,然后我把我看房的经历和他说了一遍,他立马感兴趣了,我们悄悄溜出去看房去了。带他去紫檀时,他的眼睛里透露出相见恨晚的神情,然后又看了中冶和雅居乐,同样地接受不了中冶的价格,接受不了雅居乐的户型。
    他毅然决然的决定要买亚东紫檀,总时长三天!!

    [ 本帖最后由 尘埃落定1985 于 16-3-23 16:55 编辑 ]




    • 来自 江苏省
    • 精华 0
    • 注册 2008-4-17
    • 行业 房产建筑
    •  

    加油,给敢于自己装修的点赞!期待你家的效果,我也打算自己装,向你学习




    • 来自 江苏省
    • 精华 20
    • 注册 2015-3-17
    • 行业 其它
    •  






    • 来自 江苏省
    • 精华 0
    • 注册 2008-1-11
    • 行业 房产建筑
    •  


    QUOTE:
    原帖由 宇祥装饰 于 16-3-23 15:55 发表
    恭喜楼主开贴,有问题可以和我们交流哦,祝装修顺利,装个美美的家
    谢谢,请多指教




    • 来自 江苏省
    • 精华 0
    • 注册 2015-12-12
    • 行业 工业制造
    •  

    恭喜楼主开贴




    • 来自 江苏省
    • 精华 0
    • 注册 2010-6-23
    • 行业 商业贸易
    •  
    恭喜开贴

    期待楼主的装修效果。




    • 来自 江苏省
    • 精华 0
    • 注册 2008-1-11
    • 行业 房产建筑
    •  
    谢谢支持

    谢谢支持,请多关照




    • 来自 江苏省
    • 精华 0
    • 注册 2008-1-11
    • 行业 房产建筑
    •  
    万家基和杯 南山西侧 白龙湖畔 亚东紫檀 我的新家

    今天给大家说一说新的契税新政策、以及政府购房补贴、人才安居补贴有关事宜,针对我紫檀小区交付时,我们大部分人选择的是代办房产证,就是交房时,你多给200元,请房产大厦的工作人员代为办理房产证有关事宜的。我买的是167平的房子,1月31日交付时,按照3%缴纳的契税。2016年2月22日新政策出来后,我一直很天真地在等代办的人给我打电话,按照契税新政策,我应该缴纳2%契税,这样她应该退给我1%。结果我等了20来天都没人理我,后来我找到当时给我们代办的同志的号码,打电话给她,人家说可以的,你明天带上身份证和收据过来退吧。(如果你们也是这种情况请快去拿回你们的钱)

    一、契税新政策《关于调整房地产交易环节契税 营业税优惠政策的通知》
    下面是2016年契税新政策内容:各位刚刚买房的同学们可以对照一下看看自己属于那种情况,特别是代办的同学

    2月19日,财政部、国家税务总局、住房城乡建设部联合发布《关于调整房地产交易环节契税 营业税优惠政策的通知》(以下简称《通知》),决定对房地产交易环节的契税、营业税进行重大调整:对个人购买家庭唯一住房,面积为90平方米及以下的,减按1%的税率征收契税;面积为90平方米以上的,减按1.5%的税率征收契税。
    同时,对个人购买家庭第二套改善性住房,面积为90平方米及以下的,减按1%的税率征收契税;面积为90平方米以上的,减按2%的税率征收契税。个人将购买不足2年的住房对外销售的,全额征收营业税;个人将购买2年以上(含2年)的住房对外销售的,免征营业税。

    为了让大家看的更加直观,一目了然,我自己整理了表格,请对号入座:

    请各位代办的同学,不要让你们的钱成为别人买理财的资本!!哈哈
    土豪请忽略




    • 来自 江苏省
    • 精华 0
    • 注册 2009-3-5
    • 行业 房产建筑
    •  

    恭喜楼主开贴




    • 来自 江苏省
    • 精华 0
    • 注册 2008-1-11
    • 行业 房产建筑
    •  

    补充一:举例论证篇
    拿我自己为例,我购买的亚东紫檀167平的房子,是二套房,交付当天按照老政策:二套房、144平以上按照房价3%缴纳契税,2016年2月22日契税新政策出台,我们小区开发商因为商品住房销售许可证没有办理好,所以直到2月22日,代办人员无法办理房产证事宜,尚未缴纳契税。按照新政策(如上表),我是二套房90平以上,应该缴纳房价的2%的契税。所以我就去找当时的代办人员退回了属于我的1%(一万多点)。当时拿到钱之后我就问她,为什么不通知我们来拿,政策下来都快一个月了,我在等你电话,你造吗?
    人家很淡定的说,我不能打电话通知你们来拿,这个政策很特殊,只有开始时间没有结束时间,说不定哪天就上调了,我通知你们来退容易,万一说上调就上调,叫你们再来交钱就难了。

    好吧,我也不多说了,反正我把钱拿回来,吃点亏算了,吃亏是福嘛。




    • 来自 江苏省
    • 精华 0
    • 注册 2014-2-21
    • 行业 电子制造
    •  

    楼主这个贴开的很好,会一直关注!




    • 来自 江苏省
    • 精华 0
    • 注册 2008-1-11
    • 行业 房产建筑
    •  
    谢谢鼓励

    谢谢鼓励,我会加油的




    • 来自 江苏省
    • 精华 0
    • 注册 2008-1-11
    • 行业 房产建筑
    •  
    谢谢


    QUOTE:
    原帖由 海文 于 16-3-24 14:42 发表
    恭喜楼主开贴
    谢谢,请多关注




    • 来自 江苏省
    • 精华 0
    • 注册 2009-2-12
    • 行业 基础设施
    •  

    邻居加油




    • 来自 江苏省
    • 精华 0
    • 注册 2008-1-11
    • 行业 房产建筑
    •  
    邻居你好


    QUOTE:
    原帖由 深水码头 于 16-3-24 15:05 发表
    邻居加油
    谢谢,邻居好




    • 来自 江苏省
    • 精华 0
    • 注册 2015-10-15
    •  

    邻居!加油哦!




    • 来自 江苏省
    • 精华 0
    • 注册 2008-1-11
    • 行业 房产建筑
    •  

    说明一下为什么是自己装修的,我在装饰公司上班(工装公司,不做家装),但是毕竟工装和家装不一样,无论用材、空间规划、设计理念、使用功能都完全不一样,所以我一开始非常坚定的要找家装公司去做,也找了几家装修公司,有一家装修公司在镇江做了很多年了,在我印象中从我2006年来镇江上学就有了,而且他家的材料也时常出现在镇江市造价信息上,差点就签合同了。正要决定时,突然看到网上几起业主因为他家的施工技术投诉的事情。真真儿是扫兴的。加上户口本上的户主说,你自己做装修的,这么好的资源不利用,干嘛要找装修公司,还不如把钱省下来带儿子出去旅游。
    每年带儿子出去旅游一次是我们给自己定的硬性指标,左思右想,决定自己干了。
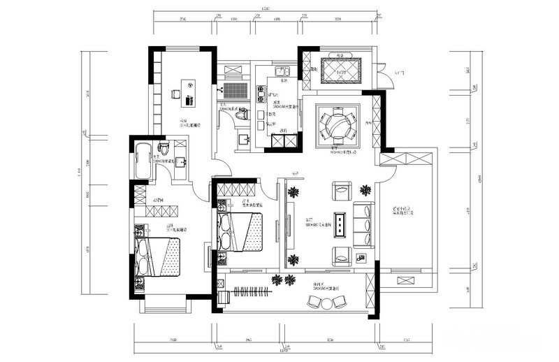
    插播几张我自己画的CAD图纸,没有效果图,第一,不会画,第二,效果图在我心中这是第一稿平面布置图,主卧和厨房的布局纠结了一个多月

    [ 本帖最后由 尘埃落定1985 于 16-3-24 16:27 编辑 ]








    • 来自 江苏省
    • 精华 1
    • 注册 2009-8-31
    • 行业 其它
    •  






    • 来自 江苏省
    • 精华 0
    • 注册 2008-1-11
    • 行业 房产建筑
    •  
    纠结了一个多月才敲定的平面图

    现在的平面布置图








    • 来自 江苏省
    • 精华 0
    • 注册 2008-1-11
    • 行业 房产建筑
    •  
    谢谢


    QUOTE:
    原帖由 宇祥装饰 于 16-3-23 15:55 发表
    恭喜楼主开贴,有问题可以和我们交流哦,祝装修顺利,装个美美的家
    谢谢




    • 来自 江苏省
    • 精华 0
    • 注册 2015-12-12
    • 行业 工业制造
    •  

    楼主这图画的杠杠的




    • 来自 江苏省
    • 精华 0
    • 注册 2006-7-30
    • 行业 其它
    •  

    楼主您好,我也是紫檀的,刚看到你的帖子,我也是1月31日在物业统一办的房产证,想咨询一下关于退税的问题,你方便把那个代办人的号码短我一下吗,我问一下她,真的太感谢你提供这个消息了,我之前问过物业回我不好退




    • 来自 江苏省
    • 精华 0
    • 注册 2016-3-24
    •  

    邻居




    • 来自 江苏省
    • 精华 0
    • 注册 2013-8-28
    • 行业 其它
    •  
    三菱电机中央空调,德国沃乐夫采暖


    QUOTE:
    原帖由 尘埃落定1985 于 16-3-23 11:31 发表
    【小区名称】:亚东紫檀
    【所在楼层】:14F
    【建筑面积】:167.61
    【装修风格】:现代中式
    【包工 ...

    楼主需要装空调或者地暖可以联系我做个方案报价





    • 来自 江苏省
    • 精华 0
    • 注册 2010-6-23
    • 行业 商业贸易
    •  
    楼主加油

    加油




    • 来自 江苏省
    • 精华 0
    • 注册 2013-4-29
    • 行业 基础设施
    •  

    恭喜恭喜




    • 来自 江苏省
    • 精华 0
    • 注册 2011-9-12
    • 行业 学生
    •  


    QUOTE:
    原帖由 关爱宝宝 于 16-3-25 09:22 发表
    楼主您好,我也是紫檀的,刚看到你的帖子,我也是1月31日在物业统一办的房产证,想咨询一下关于退税的问题,你方便把那个代办人的号码短我一下吗,我问一下她,真的太感谢你提供这个消息了,我之前问过物业回我不 ...
    邻居,你可以进业主群,群里经常有本小区的各种信息,群号369472101,里面都是纯业主哦。




    • 来自 江苏省
    • 精华 4
    • 注册 2004-5-8
    • 行业 其它
    •  

    楼下邻居来顶~




    • 来自 江苏省
    • 精华 0
    • 注册 2008-1-11
    • 行业 房产建筑
    •  


    QUOTE:
    原帖由 as571832718 于 16-3-25 08:58 发表
    楼主这图画的杠杠的
    业余的,各位专业人士看了不要笑话,请多指教




    • 来自 江苏省
    • 精华 0
    • 注册 2008-1-11
    • 行业 房产建筑
    •  


    QUOTE:
    原帖由 MAYMAY 于 16-3-25 12:23 发表
    楼下邻居来顶~
    欢迎欢迎




    • 来自 江苏省
    • 精华 0
    • 注册 2008-1-11
    • 行业 房产建筑
    •  


    QUOTE:
    原帖由 2011zyt 于 16-3-25 12:14 发表
    邻居,你可以进业主群,群里经常有本小区的各种信息,群号369472101,里面都是纯业主哦。
    不要问物业,他们不知道,你可以加我们的业主群,各方面信息都了解比较多,有什么事情大家互相沟通交流




    • 来自 江苏省
    • 精华 0
    • 注册 2006-7-30
    • 行业 其它
    •  


    QUOTE:
    原帖由 2011zyt 于 16-3-25 12:14 发表
    邻居,你可以进业主群,群里经常有本小区的各种信息,群号369472101,里面都是纯业主哦。
    好的,谢谢




    • 来自 江苏省
    • 精华 0
    • 注册 2008-1-11
    • 行业 房产建筑
    •  

    准备自己装修的同学们,快来看看,给你们整理了大致的流程和步骤:当然,工人进场之前,您应该确定了平面布置,中央空调和地暖的方案,还有厨房的布置,比如做不做高柜,要做哪些嵌入的电器等等
    第一步  敲墙工进场   清运垃圾
    第二步  瓦工进场砌墙粉墙
    第三步  水电工进场放线管
    第四步 瓦工进场粉线槽 做卫生间防水  贴地砖墙砖
    第五步 木工进场 打家具 吊顶
    第六步  油漆工进场  批腻子做乳胶漆  贴墙纸
    第七步  找专业打扫卫生的  做保洁




    • 来自 江苏省
    • 精华 0
    • 注册 2008-1-11
    • 行业 房产建筑
    •  

    现在有些人也是逆推思维,比如你在犹豫和纠结到底我要装什么风格?现在比较流行的风格主要有:现代简约、美式(中国人喜欢小美,或者叫现代美式)、中式(年轻人喜欢的新中式又叫现代中式)、欧式、地中海、田园等等。如果你是个选择困难症者,那不妨先去看看家具,多跑跑市场,现在卖家具的各个品牌店为了推出他们的的家具都会相应的做好背景装饰,你可以从来找找你的感觉,看得多了你就有感觉了,这样可以确定你喜欢的风格。然后再来定装修风格,就是现在流行的说法“根据家具来定装修风格”。我就是这么找到感觉的
    话说,还没那房子前,我就去看家具市场,看来看去都没有找到那种让我心动的,直到有一天我苏梨——现代新中式的家具,我当时就有种想买的冲动……
    然后就决定我要装新中式风格,接下来的事情就都开始往新中式风格开展了……
    发几张我在她家店里拍的照片养养眼,手机拍的,请包涵


















    • 来自 江苏省
    • 精华 0
    • 注册 2013-4-17
    • 行业 商业贸易
    •  

    新中式风格选苏梨的不少




    • 来自 江苏省
    • 精华 0
    • 注册 2014-5-17
    • 行业 商业贸易
    •  

    自装不易




    • 来自 江苏省
    • 精华 0
    • 注册 2008-1-11
    • 行业 房产建筑
    •  


    QUOTE:
    原帖由 费戈 于 16-3-25 14:38 发表
    新中式风格选苏梨的不少
    是的,第一步就选的家具,然后就无边无际的超支了,难得遇到自己喜欢的,任性了一次,明知超支还是忍不住定了




    • 来自 江苏省
    • 精华 0
    • 注册 2008-1-11
    • 行业 房产建筑
    •  


    QUOTE:
    原帖由 镇江德国都芳漆 于 16-3-25 15:13 发表
    自装不易
    是的,加油吧,没有回头路了




    • 来自 江苏省
    • 精华 0
    • 注册 2014-2-21
    • 行业 其它
    •  






    • 来自 江苏省
    • 精华 0
    • 注册 2008-1-11
    • 行业 房产建筑
    •  

    刚刚收到“申请通过”的消息,有点小激动




    • 来自 江苏省
    • 精华 0
    • 注册 2008-1-11
    • 行业 房产建筑
    •  

    今天去跑的材料市场,简一是真心好美啊!只恨口袋里的钱少啊
    冠军和东鹏的瓷砖,都不错,就是总价算下来又超预算了,为什么每项都超呢?
























    • 来自 江苏省
    • 精华 0
    • 注册 2015-7-13
    •  

    感谢楼主对苏梨的喜欢和认可,在动工之前最先就把我们苏梨定下,我们一定尽全力服务好你,帮你一起打造一个自己装修,效果超级棒的小窝!




    • 来自 江苏省
    • 精华 0
    • 注册 2015-7-13
    •  


    QUOTE:
    原帖由 尘埃落定1985 于 16-3-26 19:50 发表
    今天去跑的材料市场,简一是真心好美啊!只恨口袋里的钱少啊
    冠军和东鹏的瓷砖,都不错,就是总价算下来又超预算了,为什么每项都超呢?
    你眼光好,看得都是好东西啊!

    [ 本帖最后由 苏梨新中式家具 于 16-3-26 22:12 编辑 ]




    • 来自 江苏省
    • 精华 2
    • 注册 2006-7-10
    • 行业 信息咨询
    •  


    QUOTE:
    原帖由 尘埃落定1985 于 16-3-25 15:30 发表

    是的,第一步就选的家具,然后就无边无际的超支了,难得遇到自己喜欢的,任性了一次,明知超支还是忍不住定了
    这样的任性一辈子能有几次?家具是有精神形态的,你喜欢它拥有它,它馈赠于你的不止是物质形态的感官满足。




    • 来自 江苏省
    • 精华 7
    • 注册 2005-9-7
    • 行业 其它
    • 家装达人
    •  


    QUOTE:
    原帖由 尘埃落定1985 于 16-3-24 15:51 发表
    说明一下为什么是自己装修的,我在装饰公司上班(工装公司,不做家装),但是毕竟工装和家装不一样,无论用材、空间规划、设计理念、使用功能都完全不一样,所以我一开始非常坚定的要找家装公司去做,也找了几家装 ...
    楼主有这么好的资源

    CAD图纸画的蛮棒的




    • 来自 江苏省
    • 精华 7
    • 注册 2005-9-7
    • 行业 其它
    • 家装达人
    •  


    QUOTE:
    原帖由 尘埃落定1985 于 16-3-24 14:40 发表
    今天给大家说一说新的契税新政策、以及政府购房补贴、人才安居补贴有关事宜,针对我紫檀小区交付时,我们大部分人选择的是代办房产证,就是交房时,你多给200元,请房产大厦的工作人员代为办理房产证有关事宜的。 ...
    减1%的契税能省不少钱了,好消息
    这个代办的确定是房产大厦的工作人员吗?
    看你让代办有2个月了吧
    房产证办好没有?
    土地证现在有吗?




     162  1/4  1  2  3  4  > 
    查看积分策略说明快速回复主题
    您目前还是游客,请 登录注册
    您目前是游客,本帖已被系统设置了自动关闭,不可回复!

    0/5000字

     
    < >
     

    Powered by Discuz! X 2 0.097590 s 清除 Cookies - 镇江网友之家 - 手机版
    论坛导航 关闭