
我家是在远洋二期的新房, 面积不大,又是小高层,所以实际面积并不大,但是结构分为3室二厅一厨一卫,所以房间不大,我的整体构思就是一房多用。把房子分为几个功能区,这样才能在小面积里面,做出不一样的感觉。整体风格是现代简约和美式乡村的混搭。之前也做了很多功课,特别是装饰公司的选择。在这里我总结了几个小小的感想供朋友们参考
第一,不找熟人。之前的房子一开始,找的熟人,结果水电装完,发现完全不对,结果扒了重弄,白白花了5000块,后来又是找的亲戚做的,虽然当时还可以,但时间长了,各种小毛病不断,最严重的就是水管出了问题,把家里淹了…………但因为是亲戚,所以有些话,也不好说,结果不了了知。所以这次坚决不找熟人。公事公办,该怎么样就怎么样。
第二,重点选择,精确定位。现在镇江的装修公司很多,鱼龙混杂。看的多了,也会挑花眼,所以我采取美国战斗机评选的模式,美国战机一般由二个公司提方案,洛马和波音,然后军方进行评比挑选,择优采用
我在0511上找了二家口碑不错的公司,其中一家以水电出名,另一家以防水称雄。然后分别洽谈、量房、报价,最终选定了现在的合作伙伴----镇江瑞阳装饰公司,他家的防水很出色,楼上样版间常年有一池水在地上,水电走线也是横平竖直,而且设计师小方为人也很不错,沟通的很顺畅,我父母年纪较大,思维较慢,他也能耐心的解析清楚,设计的方案也是用了心的。客服小圣也是功不可没,电话,QQ不断联系,关注进度,到公司沟通时也是忙里忙外,端茶倒水,我真怀疑这个公司是不是就是他家开的
……当然,最后能成交,还是大BOSS陆总拍板,给了个朋友价
,虽然现场陆总的表情到位,言词肯切,再三表示真的是没什么利润了,就差一句:行行好,打发点吧
但我不为所动,坚持要把4位数的零头免了(虽然我也不知道上了千位还算不算零头
) 并以一但做的不好,就到0511上曝瑞阳的黑幕为要胁,在施工质量上取得了保证
,每道工序都检查验收,一步一动,一道不行,不做下一道。(虽然说了这么多开玩笑的话,但瑞阳的质量应该是有保证的,他们施工的样板房我也看了几处)。另一家公司也很优秀,可以说在网上口碑暴棚,但由于种种原因,痛失了合作的机会,也很遗憾,希望以后还有合作机会
今天第一天开工,黄历上说 宜:经营.交易.求官.纳畜.动土 忌:登高.行船.安床.入宅.博彩,希望一切顺顺利利
开工大吉啦
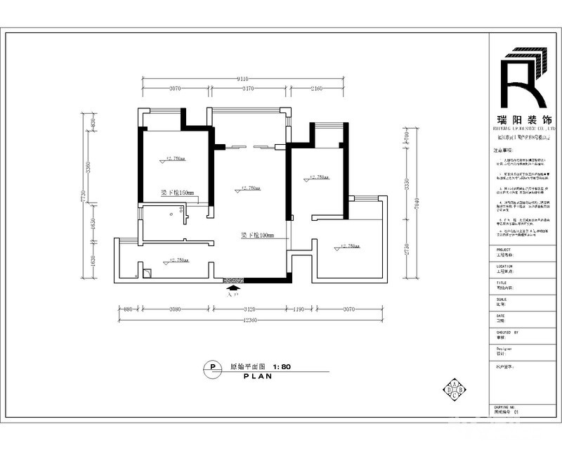
原图

设计图

工程规范

8点58分开工

鞭炮齐鸣

工人敲墙

早上8点58分开工,8字型鞭炮我亲手点的,吓死宝宝了
砸墙工已开工
以后尽量每天更新一篇,把装修的思路到材料到选购中的一些小技巧,和大家一起交流交流,为了不引起麻烦,对表扬的直接指名到姓,对批评的就隐去名头了,如有雷同实属巧合
[ 本帖最后由 黄山云雾茶 于 16-5-16 16:48 编辑 ]















家里的线槽已开好,瑞阳的做工讲究横平竖直,等全铺好了,给大家上图。今天和大家聊聊开关面板的位置和品牌的选择。水电是家里的大头,也是重中之重,如果发生问题,以后会麻烦不断,所以大家对这块都很重视。我们先谈谈安装位置,除了大家普遍安装的一些位置外,再给大家说些一般人不太注意的细节。


颜色比较搭







