收藏本站
客户端
扫码下载客户端
官方微信
打开微信扫一扫
登录
|
注册
|
标题
标题
用户
全站首页
|
论坛导航
|
网络问政
|
招聘求职
|
买房租房
|
装修频道
|
生活服务
|
教育
|
相亲
|
亲子
|
美食
|
婚嫁
|
手机客户端
家有学子
|
母婴乐园
快捷导航
精彩推荐:
MY0511客户端下载
中信银行镇江分行
公益体彩 乐善人生
鹏龙鸿蒙
天然石材·人造石
»
梦溪论坛
»
家庭装修
» 2017现代简约风坚持到底
家庭装修
>
[装修日记]
2017现代简约风坚持到底
查看: 33246 回复: 109
快速回复
返回家庭装修
110
1/3
1
2
3
>
[装修日记]
2017现代简约风坚持到底
查看: 33246 回复: 109
上一主题
|
下一主题
如意雪
来自 江苏省
精华 0
注册 2007-9-14
行业 教育科研
2017现代简约风坚持到底
【小区名称】:塞纳河畔
【所在楼层】:连排
【建筑面积】:约300
【装修风格】:现代简约
【包工方式】:半包
【设 计师】:李鸣
【装修公司】:东棠
【开工日期】:预计2017年4月
【装修预算】:无,装到哪算哪
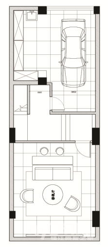
【户型图】:
欢迎加入家装官方VIP别墅群 群号:565444352
[
本帖最后由 my0511菲雪 于 17-2-27 09:58 编辑
]
已有 伊慕装饰, 老友记装饰客服, 金缔装饰, 红居装饰
4
人打赏
2017-2-19 12:22
1楼
0511家装频道:本地家居服务平台,数万业主共同选择
只看该作者
分享本楼
如意雪
来自 江苏省
精华 0
注册 2007-9-14
行业 教育科研
效果图千呼万唤始出来,胡汉三我又回来了
[
本帖最后由 如意雪 于 17-4-8 09:14 编辑
]
2017-2-19 12:22
2楼
[联宇电脑] 电脑组装\维修\升级\企业单位电脑维护!
只看该作者
分享本楼
如意雪
来自 江苏省
精华 0
注册 2007-9-14
行业 教育科研
已定主材清单一览表
【
阳光房
】:
维盾+伊伯莱
【
空调
】:
三菱电机
【
地暖
】:
威能
【
前置
】:
康丽根
【地板】:ESTA
【家具】:MD,慕思,喜梦宝,BED
【定制家具】:洛克诚品
【木门】:琢木世家
【淋浴隔断】:德莉玛
【水槽】:白鸟
【花洒】:高仪&汉斯格雅(老马处购买)
【台盆龙头】:科勒
【洗碗机】:西门子
【烤箱】:西门子
【集成灶】:火星人
【新风系统】:松下&曼瑞德(镇江佰特)
【瓷砖】:伊丽莎白
【烤箱】:西门子
【防盗门】:梵蒂斯
【花园进户及地下室门】:旺盛达
【移门】:法诗顿
【石材】:闽南+龙源+南榕
【楼梯】:皇宫楼梯
[
本帖最后由 如意雪 于 17-9-24 18:42 编辑
]
2017-2-19 12:23
3楼
找工作,就上MY0511!
只看该作者
分享本楼
如意雪
来自 江苏省
精华 0
注册 2007-9-14
行业 教育科研
[
本帖最后由 如意雪 于 17-2-25 21:37 编辑
]
2017-2-19 12:23
4楼
买房、卖房、租房上镇江房产网!
只看该作者
分享本楼
如意雪
来自 江苏省
精华 0
注册 2007-9-14
行业 教育科研
占楼
2017-2-19 12:23
5楼
0511家装频道:本地家居服务平台,数万业主共同选择
只看该作者
分享本楼
如意雪
来自 江苏省
精华 0
注册 2007-9-14
行业 教育科研
占楼
2017-2-19 12:23
6楼
[联宇电脑] 电脑组装\维修\升级\企业单位电脑维护!
只看该作者
分享本楼
如意雪
来自 江苏省
精华 0
注册 2007-9-14
行业 教育科研
占楼
2017-2-19 12:24
7楼
找工作,就上MY0511!
只看该作者
分享本楼
如意雪
来自 江苏省
精华 0
注册 2007-9-14
行业 教育科研
占楼
2017-2-19 12:24
8楼
[联宇电脑] 电脑组装\维修\升级\企业单位电脑维护!
只看该作者
分享本楼
如意雪
来自 江苏省
精华 0
注册 2007-9-14
行业 教育科研
占楼
2017-2-19 12:24
9楼
[联宇电脑] 电脑组装\维修\升级\企业单位电脑维护!
只看该作者
分享本楼
如意雪
来自 江苏省
精华 0
注册 2007-9-14
行业 教育科研
占的差不多了吧。先休息一下!
[
本帖最后由 如意雪 于 17-2-19 12:26 编辑
]
2017-2-19 12:25
10楼
MY0511相亲,一分钟注册,享一辈子幸福!
只看该作者
分享本楼
如意雪
来自 江苏省
精华 0
注册 2007-9-14
行业 教育科研
还是再占个楼!
[
本帖最后由 如意雪 于 17-2-19 12:27 编辑
]
2017-2-19 12:25
11楼
[联宇电脑] 电脑组装\维修\升级\企业单位电脑维护!
只看该作者
分享本楼
灰姑娘12345
来自 江苏省
精华 0
注册 2016-6-21
现代简约风格我们全友也有,全屋都可以定制,我们店在青年广场旭辉时代城7号楼(营销中心楼上)303,有时间可以过来了解一下,小孙18262885065,全友期待您的光临?
---发自iPhone 6---
2017-2-19 13:14
12楼
找工作,就上MY0511!
只看该作者
分享本楼
Betty^o^
来自 江苏省
精华 0
注册 2017-1-12
你好,我是做中央空调跟暖气,净水的,有需要可以加我微信咨询
微信号:1573157
---发自iPhone 6 Plus---
2017-2-19 13:16
13楼
0511家装频道:本地家居服务平台,数万业主共同选择
只看该作者
分享本楼
普渡纵生
来自 江苏省
精华 0
注册 2008-6-4
行业 房产建筑
QUOTE:
原帖由
如意雪
于 17-2-19 12:23 发表
过完年,装修公司还未定。先跑了一遍建材,一圈下来回家一合计,吓傻了,原来建材都涨那么高了。怎么办呢?果断决定在保证环保的基础上全部降品牌,原先定的一线降二线,二线降三线,以此类推.....
这个时候 ...
最求性价比高的dd,欢迎来看看。
2017-2-19 13:51
14楼
MY0511相亲,一分钟注册,享一辈子幸福!
只看该作者
分享本楼
鸿鹄设计镇江站
专版版主
来自 江苏省
精华
222
注册 2016-11-15
行业 广告媒体
支持 支持
---发自iPhone 6S---
2017-2-19 19:20
15楼
[联宇电脑] 电脑组装\维修\升级\企业单位电脑维护!
只看该作者
分享本楼
拆除
来自 江苏省
精华 0
注册 2014-1-26
专砸墙13196869712
---发自梦溪论坛手机客户端---
2017-2-19 19:43
16楼
0511家装频道:本地家居服务平台,数万业主共同选择
只看该作者
分享本楼
密斯特王
来自 江苏省
精华
1
注册 2015-3-19
风景城邦塞纳河畔?
---发自iPhone SE---
2017-2-19 19:46
17楼
0511家装频道:本地家居服务平台,数万业主共同选择
只看该作者
分享本楼
JH设计
来自 江苏省
精华
20
注册 2015-3-17
行业 其它
现代的家具需要空间大得感觉
2017-2-19 20:02
18楼
0511家装频道:本地家居服务平台,数万业主共同选择
只看该作者
分享本楼
如意雪
来自 江苏省
精华 0
注册 2007-9-14
行业 教育科研
QUOTE:
原帖由
密斯特王
于 17-2-19 19:46 发表
风景城邦塞纳河畔?
看来是邻居
2017-2-19 21:32
19楼
MY0511相亲,一分钟注册,享一辈子幸福!
只看该作者
分享本楼
delarge
来自 江苏省
精华
4
注册 2008-7-25
行业 房产建筑
恭喜开贴
2017-2-19 21:39
20楼
[联宇电脑] 电脑组装\维修\升级\企业单位电脑维护!
只看该作者
分享本楼
我想有颗星星
来自 江苏省
精华
1
注册 2009-6-19
行业 其它
芬兰M1环保认证的EsTA进口三层?
---发自三星---
2017-2-19 21:42
21楼
[联宇电脑] 电脑组装\维修\升级\企业单位电脑维护!
只看该作者
分享本楼
如意雪
来自 江苏省
精华 0
注册 2007-9-14
行业 教育科研
晚上突然接到一个空调销售的电话。虽然不是很意外他从哪里知道我的电话,但还是多嘴问了一句:你怎么知道我的电话?答:在别的版块找的。
都说销售难做,客户难找,业绩难出。看来只是方法不对,亦或是不够努力。
为某空调的销售点赞,如此努力必会得到丰厚的回报!
2017-2-19 22:28
22楼
找工作,就上MY0511!
只看该作者
分享本楼
如意雪
来自 江苏省
精华 0
注册 2007-9-14
行业 教育科研
QUOTE:
原帖由
delarge
于 17-2-19 21:39 发表
恭喜开贴
谢谢
2017-2-19 22:29
23楼
买房、卖房、租房上镇江房产网!
只看该作者
分享本楼
如意雪
来自 江苏省
精华 0
注册 2007-9-14
行业 教育科研
QUOTE:
原帖由
我想有颗星星
于 17-2-19 21:42 发表
芬兰M1环保认证的EsTA进口三层?
哇!看来是高人!
2017-2-19 22:30
24楼
买房、卖房、租房上镇江房产网!
只看该作者
分享本楼
如意雪
来自 江苏省
精华 0
注册 2007-9-14
行业 教育科研
QUOTE:
原帖由
JH设计
于 17-2-19 20:02 发表
现代的家具需要空间大得感觉
可惜我的户型南北太长,东西距离短了。哎!
2017-2-19 22:34
25楼
MY0511相亲,一分钟注册,享一辈子幸福!
只看该作者
分享本楼
鑫木装饰
禁止发言
来自 江苏省
精华 0
注册 2016-10-9
*** 作者因违反论坛规定,禁言处理,内容自动屏蔽 ***
详情参阅论坛注册条款:
http://bbs.my0511.com/f11b-t2789156z
2017-2-20 09:45
26楼
MY0511相亲,一分钟注册,享一辈子幸福!
只看该作者
分享本楼
青乖乖
来自 江苏省
精华 0
注册 2016-8-4
期待楼主家现代风。
---发自iPhone 6 Plus---
2017-2-20 10:32
27楼
MY0511相亲,一分钟注册,享一辈子幸福!
只看该作者
分享本楼
如意雪
来自 江苏省
精华 0
注册 2007-9-14
行业 教育科研
QUOTE:
原帖由
青乖乖
于 17-2-20 10:32 发表
期待楼主家现代风。
谢谢,其实我也蛮期待的。现在就等初定的设计方案了。如果可以就这家装修公司。
2017-2-20 12:22
28楼
MY0511相亲,一分钟注册,享一辈子幸福!
只看该作者
分享本楼
简单爱jda
来自 江苏省
精华 0
注册 2017-2-20
QUOTE:
原帖由
如意雪
于 2017-2-19 12:23 发表
占楼
为什么要占这么多楼?
---发自梦溪论坛手机客户端---
2017-2-20 12:24
29楼
MY0511相亲,一分钟注册,享一辈子幸福!
只看该作者
分享本楼
简单爱jda
来自 江苏省
精华 0
注册 2017-2-20
QUOTE:
原帖由
如意雪
于 2017-2-19 12:23 发表
眼看现浇马上结束了,这沏墙改造工作一结束马上就要进入封阳光房阶段了。就目前了解下来阳光房的型材太多。我根本记不下来呀。只好拿着小本本挨个记。
欲知详情,且听下回分解......
封阳台,阳光房定了吗?
---发自梦溪论坛手机客户端---
2017-2-20 12:27
30楼
0511家装频道:本地家居服务平台,数万业主共同选择
只看该作者
分享本楼
DL设计
来自 江苏省
精华 0
注册 2016-11-18
行业 房产建筑
很多国外的楼盘,走的都是简约风
2017-2-20 13:57
31楼
找工作,就上MY0511!
只看该作者
分享本楼
张伟0117
来自 江苏省
精华 0
注册 2016-11-4
风景城邦塞纳河畔,欢迎开贴。
---发自iPhone 6---
2017-2-20 14:39
32楼
0511家装频道:本地家居服务平台,数万业主共同选择
只看该作者
分享本楼
极品懒虫
来自 江苏省
精华 0
注册 2004-4-27
2017-2-20 14:51
33楼
找工作,就上MY0511!
只看该作者
分享本楼
宇祥装饰客服1
来自 江苏省
精华
2
注册 2016-12-14
行业 房产建筑
现代简约的简洁大方
2017-2-20 15:37
34楼
[联宇电脑] 电脑组装\维修\升级\企业单位电脑维护!
只看该作者
分享本楼
枫叶落落
来自 江苏省
精华 0
注册 2007-11-27
行业 其它
新区的房子,现在的新区比以前热闹了
[
本帖最后由 枫叶落落 于 17-2-20 16:29 编辑
]
2017-2-20 16:29
35楼
[联宇电脑] 电脑组装\维修\升级\企业单位电脑维护!
只看该作者
分享本楼
如意雪
来自 江苏省
精华 0
注册 2007-9-14
行业 教育科研
QUOTE:
原帖由
简单爱jda
于 17-2-20 12:24 发表
为什么要占这么多楼?
为以后写东西准备呀
2017-2-20 19:58
36楼
0511家装频道:本地家居服务平台,数万业主共同选择
只看该作者
分享本楼
如意雪
来自 江苏省
精华 0
注册 2007-9-14
行业 教育科研
QUOTE:
原帖由
张伟0117
于 17-2-20 14:39 发表
风景城邦塞纳河畔,欢迎开贴。
谢谢
2017-2-20 20:28
37楼
0511家装频道:本地家居服务平台,数万业主共同选择
只看该作者
分享本楼
如意雪
来自 江苏省
精华 0
注册 2007-9-14
行业 教育科研
QUOTE:
原帖由
枫叶落落
于 17-2-20 16:29 发表
新区的房子,现在的新区比以前热闹了
自从来镇江后一直住在新区,对新区有着很深的感情,总觉得那里的天更蓝,草更绿。不似市区那般嘈杂。现在生活也方便很多了。所以这次还是选择丹徒。
咱大丹徒的人气真是越来越旺了。
2017-2-20 20:31
38楼
[联宇电脑] 电脑组装\维修\升级\企业单位电脑维护!
只看该作者
分享本楼
移动不动
来自 江苏省
精华 0
注册 2017-2-15
QUOTE:
原帖由
如意雪
于 2017-2-19 12:22 发表
目前装修公司未定,所以方案也没定,不知道怎么改造。自从决定装修开始就天天泡装修版里看了装修图片。最开始一眼相中的新中式的风格,所以后来跑家具基本是看中式。但是看来看去怎么都喜欢不上新中式的沙发。个人 ...
加油
---发自华为---
2017-2-20 20:46
39楼
MY0511相亲,一分钟注册,享一辈子幸福!
只看该作者
分享本楼
如意雪
来自 江苏省
精华 0
注册 2007-9-14
行业 教育科研
QUOTE:
原帖由
简单爱jda
于 17-2-20 12:27 发表
封阳台,阳光房定了吗?
没有定呢,市面上五花八门的,直接眼花缭乱呀。各说各的好。直接头昏昏
2017-2-20 20:51
40楼
[联宇电脑] 电脑组装\维修\升级\企业单位电脑维护!
只看该作者
分享本楼
极品懒虫
来自 江苏省
精华 0
注册 2004-4-27
好帖要顶,不能沉了
2017-2-21 08:53
41楼
MY0511相亲,一分钟注册,享一辈子幸福!
只看该作者
分享本楼
简单爱jda
来自 江苏省
精华 0
注册 2017-2-20
QUOTE:
原帖由
如意雪
于 2017-2-20 20:51 发表
没有定呢,市面上五花八门的,直接眼花缭乱呀。各说各的好。直接头昏昏
给你推荐一家,我两套房子都是找他做的,价格比较公道,而且师傅安装水平很好,我一个朋友家的阳光房是以前别人做的,现在漏水,我让我朋友打电话给这个师傅,二话不说就去帮她漏水弄好了,当然我还是有卖我面子的原因
师傅姓熊13775350925你可打电话问问
---发自梦溪论坛手机客户端---
2017-2-21 09:27
42楼
买房、卖房、租房上镇江房产网!
只看该作者
分享本楼
我想有颗星星
来自 江苏省
精华
1
注册 2009-6-19
行业 其它
等更新
---发自三星---
2017-2-21 10:34
43楼
买房、卖房、租房上镇江房产网!
只看该作者
分享本楼
hyqstuantuan
来自 江苏省
精华 0
注册 2006-12-30
行业 基础设施
难得有空,来串个门,顶起
2017-2-21 10:40
44楼
找工作,就上MY0511!
只看该作者
分享本楼
如意雪
来自 江苏省
精华 0
注册 2007-9-14
行业 教育科研
QUOTE:
原帖由
简单爱jda
于 17-2-21 09:27 发表
给你推荐一家,我两套房子都是找他做的,价格比较公道,而且师傅安装水平很好,我一个朋友家的阳光房是以前别人做的,现在漏水,我让我朋友打电话给这个师傅,二话不说就去帮她漏水弄好了,当然我还是有卖我面子 ...
好的,谢谢你。我回头电话问问。
2017-2-21 11:04
45楼
MY0511相亲,一分钟注册,享一辈子幸福!
只看该作者
分享本楼
如意雪
来自 江苏省
精华 0
注册 2007-9-14
行业 教育科研
我们当家的说这套房的装修就让俺负责了。如此重任我必当全力以赴呀。所以装修公司的选择慎之又慎呀!
前后也找了几位设计出了方案或是看了他们给别家的装修图,要么看了工地。可是总让我没有那种很惊艳的感觉。所以就仍然在不停地寻觅设计师。最近找了位大师设计,好生期待......
希望能在3月如期开工。
2017-2-21 11:18
46楼
买房、卖房、租房上镇江房产网!
只看该作者
分享本楼
如意雪
来自 江苏省
精华 0
注册 2007-9-14
行业 教育科研
[
本帖最后由 如意雪 于 17-2-21 12:11 编辑
]
2017-2-21 11:21
47楼
0511家装频道:本地家居服务平台,数万业主共同选择
只看该作者
分享本楼
万家基和客服
专版版主
来自 江苏省
精华
220
注册 2011-7-1
行业 其它
http://bbs.my0511.com/f95b-t6298492z-1-1
欢迎参观样板房
2017-2-21 11:26
48楼
0511家装频道:本地家居服务平台,数万业主共同选择
只看该作者
分享本楼
镇江欧意橱柜
来自 江苏省
精华 0
注册 2016-11-7
楼主加油更新!!!
2017-2-21 12:54
49楼
买房、卖房、租房上镇江房产网!
只看该作者
分享本楼
伊慕装饰
专版版主
来自 江苏省
精华 0
注册 2014-10-16
QUOTE:
原帖由
如意雪
于 17-2-19 12:23 发表
眼看现浇马上结束了,这沏墙改造工作一结束马上就要进入封阳光房阶段了。就目前了解下来阳光房的型材太多。我根本记不下来呀。只好拿着小本本挨个记。
欲知详情,且听下回分解......
[/siz ...
功课做的很足
2017-2-21 14:30
50楼
[联宇电脑] 电脑组装\维修\升级\企业单位电脑维护!
只看该作者
分享本楼
返回家庭装修
110
1/3
1
2
3
>
快速回复主题
游客
您目前还是游客,请
登录
或
注册
您目前是游客,本帖已被系统设置了自动关闭,不可回复!
文明交流,理性发言
0/5000字
<
>
请在打开的新窗口中支付完成打赏
我已完成支付打赏
支付失败重新支付
其他金额
打赏金额:
元
确定
支付打赏
提 现
打赏人
打赏金额(元)
打赏时间
伊慕装饰
1.00
2017-2-21 14:30
老友记装饰客服
1.00
2017-2-22 09:59
金缔装饰
1.00
2017-2-24 08:52
红居装饰
1.00
2017-4-19 15:09
Powered by
Discuz! X 2
0.063435 s
清除 Cookies
-
镇江网友之家
-
手机版
论坛导航
关闭
吃喝玩乐
饮食男女
镇江钓友之家
菜菜鸟户外
镇江单车俱乐部
镜头里的镇江
畅游天下
猫狗总动员
视觉Coffeeshop摄影部落
花鸟鱼虫
婚姻.亲子.家庭
家有学子
谈婚论嫁
女性天地
母婴乐园
婚姻生活
梦溪佳缘
装修
家庭装修
装修招标
镇江室内设计师交流
装修商家直通车
你好,镇江!
百姓话题
我要买房
0511爱心家园
市场监管•12315热线
分类信息
生活服务
闲置转让
镇江二手房/镇江租房
镇江招聘求职
教育培训
镇江二手车
商铺厂房写字楼租售
宠物市场
运动健身
卡券交易
电脑维修升级
杂货铺
其他分类信息区
兴趣爱好
HiFi音响江城沙龙
镇江市美术家协会
我爱模型
车友俱乐部
车迷之家
汽车驾培中心
运动俱乐部
镇江市冬泳、铁人三项协会
聚焦足球
镇江羽毛球
镇江乒乓球协会
镇江网球协会
镇江市自行车运动协会
热爱篮球
动力机车
合作栏目
维权热线
天翼时代
色觉影像摄影工作室
站务区
疑问与建议
网络问政
市政府工作部门
垂直管理部门
党群工作部门
其他重点单位
辖市(区)