
此帖已成功报名2017家装日记大赛。更多家装信息关注MY0511家装频道
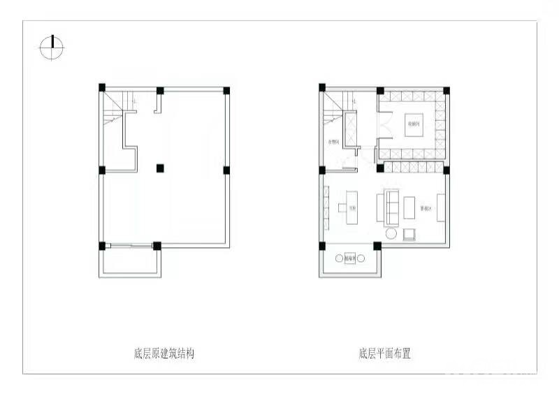
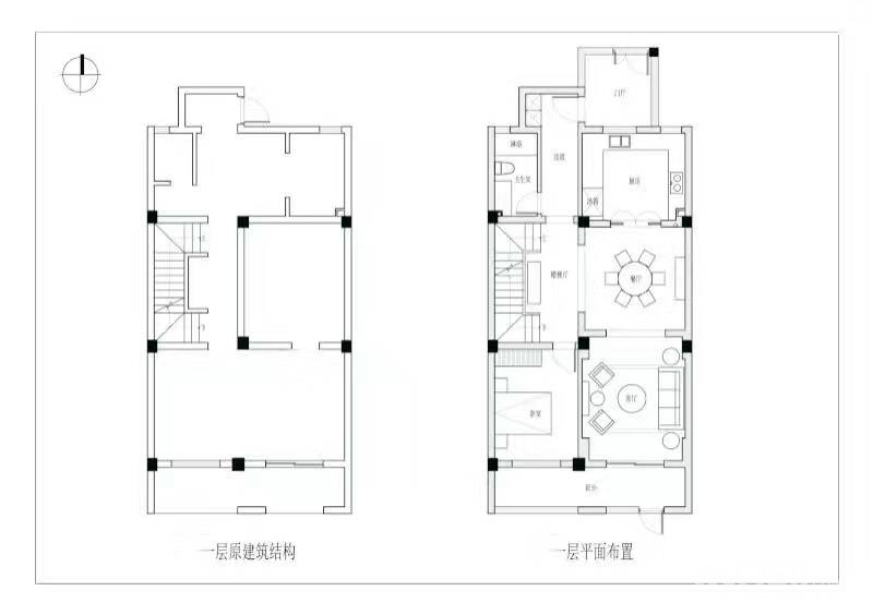
【小区名称】:北固湾二期
【所在楼层】:三层叠加
【建筑面积】:280平方【装修风格】:现代美式
【包工方式】:半包
【装修公司】:九天装饰
【开工日期】:2017年2月19日
【装修预算】:预算在心里~反正是用来超的~
【户型图片】:
欢迎加入家装官方VIP别墅群 群号:565444352



写在装修前
有人曾经问我:家是什么?
家是心灵的归宿,家是梦想的乐园,家是驻泊的港湾。
当你脆弱的心灵受到伤害,家是抚平伤口的良药;
当你正处在人生的低谷,家是重获力量的源泉;
当你独自在外经历风霜雨打,家是你温馨的避风港…
[ 本帖最后由 阿盼哟 于 17-6-5 16:19 编辑 ]



































