收藏本站
客户端
扫码下载客户端
官方微信
打开微信扫一扫
登录
|
注册
|
标题
标题
用户
全站首页
|
论坛导航
|
网络问政
|
招聘求职
|
买房租房
|
装修频道
|
生活服务
|
教育
|
相亲
|
亲子
|
美食
|
婚嫁
|
手机客户端
家有学子
|
母婴乐园
快捷导航
精彩推荐:
MY0511客户端下载
中信银行镇江分行
公益体彩 乐善人生
鹏龙鸿蒙
天然石材·人造石
»
梦溪论坛
»
家庭装修
» 沃德的房子终于开始装修了!
家庭装修
>
[装修日记]
沃德的房子终于开始装修了!
查看: 28002 回复: 72
快速回复
返回家庭装修
73
1/2
1
2
>
[装修日记]
沃德的房子终于开始装修了!
查看: 28002 回复: 72
上一主题
|
下一主题
simon1942
来自 江苏省
精华 0
注册 2010-4-26
行业 房产建筑
沃德的房子终于开始装修了!
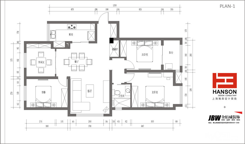
沃德这个户型不是南北通透的,拆改后
我个人比较喜欢上面这个方案,通透,采光都很好
最终采用这个原始结构,说服不了家人(平时两人住,周末偶尔小孩回来)
效果图
效果图
主卧室效果图
期待
[
本帖最后由 simon1942 于 17-2-24 00:26 编辑
]
已有 伊慕装饰, 老友记装饰客服
2
人打赏
2017-2-24 00:05
1楼
[联宇电脑] 电脑组装\维修\升级\企业单位电脑维护!
只看该作者
分享本楼
simon1942
来自 江苏省
精华 0
注册 2010-4-26
行业 房产建筑
经过朋友介绍和比较选择了金佰威装饰公司
先点个赞!目前来说比较认真!比较专业!请王总帮忙测量和设计的图纸。家里平时就两个人住,有时周末小孩回来偶尔住住,个人比较喜欢一个卫生间的方案
2017-2-24 00:09
2楼
MY0511相亲,一分钟注册,享一辈子幸福!
只看该作者
分享本楼
simon1942
来自 江苏省
精华 0
注册 2010-4-26
行业 房产建筑
开工啦!!!我补个作业
设计品鉴生活 品质决定价值!
[
本帖最后由 simon1942 于 17-2-24 00:39 编辑
]
2017-2-24 00:32
3楼
买房、卖房、租房上镇江房产网!
只看该作者
分享本楼
simon1942
来自 江苏省
精华 0
注册 2010-4-26
行业 房产建筑
图纸就不全部传了,累死我了!
[
本帖最后由 simon1942 于 17-2-24 00:45 编辑
]
2017-2-24 00:44
4楼
买房、卖房、租房上镇江房产网!
只看该作者
分享本楼
优金瓷美缝
来自 江苏省
精华 0
注册 2016-10-20
行业 其它
恭喜开帖
---发自iPhone 6---
2017-2-24 00:55
5楼
[联宇电脑] 电脑组装\维修\升级\企业单位电脑维护!
只看该作者
分享本楼
东走西顾兔
来自 江苏省
精华 0
注册 2017-1-11
前排广告位租售
---发自梦溪论坛手机客户端---
2017-2-24 07:04
6楼
[联宇电脑] 电脑组装\维修\升级\企业单位电脑维护!
只看该作者
分享本楼
陈梦婷
来自 江苏省
精华 0
注册 2014-8-10
行业 其它
niao'jiduoda
---发自iPhone 6 Plus---
2017-2-24 07:07
7楼
MY0511相亲,一分钟注册,享一辈子幸福!
只看该作者
分享本楼
陈梦婷
来自 江苏省
精华 0
注册 2014-8-10
行业 其它
面积多大
---发自iPhone 6 Plus---
2017-2-24 07:07
8楼
0511家装频道:本地家居服务平台,数万业主共同选择
只看该作者
分享本楼
simon1942
来自 江苏省
精华 0
注册 2010-4-26
行业 房产建筑
126平方的
---发自iPhone 6S---
2017-2-24 07:47
9楼
[联宇电脑] 电脑组装\维修\升级\企业单位电脑维护!
只看该作者
分享本楼
simon1942
来自 江苏省
精华 0
注册 2010-4-26
行业 房产建筑
占个位置先
---发自iPhone 6S---
2017-2-24 07:47
10楼
0511家装频道:本地家居服务平台,数万业主共同选择
只看该作者
分享本楼
simon1942
来自 江苏省
精华 0
注册 2010-4-26
行业 房产建筑
【小区名称】:沃得大都汇
【所在楼层】:21
【建筑面积】:126
【装修风格】:没什么风格
【包工方式】:半包
【装修公司】:金佰威装饰.
【开工日期】:2017年2月16日
【装修预算】:25万
---发自iPhone 6S---
2017-2-24 08:03
11楼
[联宇电脑] 电脑组装\维修\升级\企业单位电脑维护!
只看该作者
分享本楼
match_
来自 江苏省
精华 0
注册 2017-1-7
恭喜恭喜~
---发自梦溪论坛手机客户端---
2017-2-24 08:10
12楼
[联宇电脑] 电脑组装\维修\升级\企业单位电脑维护!
只看该作者
分享本楼
simon1942
来自 江苏省
精华 0
注册 2010-4-26
行业 房产建筑
地板:
磁砖:
洁具:
开关面板:
厨电:
橱柜:
卫浴:
木门:
地漏:
吊顶:
灯具:
沙发:
茶几:
电视柜:
洗衣机:
窗帘:
电视:
冰箱:
---发自iPhone 6S---
2017-2-24 08:11
13楼
[联宇电脑] 电脑组装\维修\升级\企业单位电脑维护!
只看该作者
分享本楼
牛牛妈嘛
来自 江苏省
精华 0
注册 2016-12-11
了解一下
---发自iPhone 6S---
2017-2-24 08:35
14楼
[联宇电脑] 电脑组装\维修\升级\企业单位电脑维护!
只看该作者
分享本楼
LHH520
来自 江苏省
精华 0
注册 2016-10-4
沃得大都汇业主发来贺电。。。
---发自iPhone 6 Plus---
2017-2-24 08:37
15楼
MY0511相亲,一分钟注册,享一辈子幸福!
只看该作者
分享本楼
simon1942
来自 江苏省
精华 0
注册 2010-4-26
行业 房产建筑
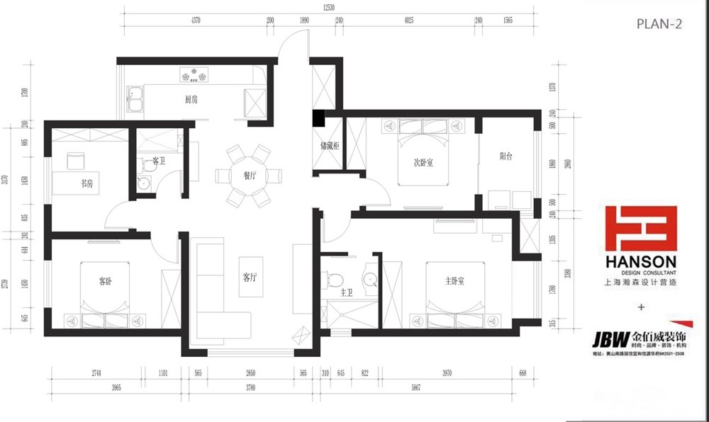
最终的平面图
---发自iPhone 6S---
2017-2-24 12:43
16楼
0511家装频道:本地家居服务平台,数万业主共同选择
只看该作者
分享本楼
simon1942
来自 江苏省
精华 0
注册 2010-4-26
行业 房产建筑
砖基本看好
---发自iPhone 6S---
2017-2-24 12:45
17楼
0511家装频道:本地家居服务平台,数万业主共同选择
只看该作者
分享本楼
亿都宏宇陶瓷
来自 江苏省
精华 0
注册 2013-11-20
恭喜恭喜
---发自iPhone 6 Plus---
2017-2-24 13:45
18楼
[联宇电脑] 电脑组装\维修\升级\企业单位电脑维护!
只看该作者
分享本楼
Xiaying1991
来自 江苏省
精华 0
注册 2016-5-31
恭喜开工
---发自iPhone 6 Plus---
2017-2-24 13:53
19楼
MY0511相亲,一分钟注册,享一辈子幸福!
只看该作者
分享本楼
simon1942
来自 江苏省
精华 0
注册 2010-4-26
行业 房产建筑
阳光不错
---发自iPhone 6S---
2017-2-24 13:54
20楼
MY0511相亲,一分钟注册,享一辈子幸福!
只看该作者
分享本楼
zzzwww
来自 江苏省
精华 0
注册 2016-7-21
有日式么
---发自iPhone 7---
2017-2-24 14:38
21楼
找工作,就上MY0511!
只看该作者
分享本楼
尘埃呀
来自 江苏省
精华 0
注册 2016-7-4
到我这儿看看木门,亿都北大门第一排左边楼梯上二楼左拐盛宅木门店,欢迎你
---发自vivo---
2017-2-24 19:37
22楼
MY0511相亲,一分钟注册,享一辈子幸福!
只看该作者
分享本楼
delarge
来自 江苏省
精华
4
注册 2008-7-25
行业 房产建筑
恭喜开贴
2017-2-24 19:49
23楼
0511家装频道:本地家居服务平台,数万业主共同选择
只看该作者
分享本楼
兜兜鱼
来自 江苏省
精华 0
注册 2006-11-21
行业 房产建筑
邻居
---发自iPhone 5S---
2017-2-24 20:19
24楼
买房、卖房、租房上镇江房产网!
只看该作者
分享本楼
simon1942
来自 江苏省
精华 0
注册 2010-4-26
行业 房产建筑
QUOTE:
原帖由
zzzwww
于 17-2-24 14:38 发表
有日式么
啥意思
---发自iPhone 6S---
2017-2-24 22:01
25楼
MY0511相亲,一分钟注册,享一辈子幸福!
只看该作者
分享本楼
simon1942
来自 江苏省
精华 0
注册 2010-4-26
行业 房产建筑
QUOTE:
原帖由
尘埃呀
于 17-2-24 19:37 发表
到我这儿看看木门,亿都北大门第一排左边楼梯上二楼左拐盛宅木门店,欢迎你
好啊,会来看的
---发自iPhone 6S---
2017-2-24 22:02
26楼
MY0511相亲,一分钟注册,享一辈子幸福!
只看该作者
分享本楼
simon1942
来自 江苏省
精华 0
注册 2010-4-26
行业 房产建筑
QUOTE:
原帖由
兜兜鱼
于 17-2-24 20:19 发表
邻居
邻居好
---发自iPhone 6S---
2017-2-24 22:02
27楼
找工作,就上MY0511!
只看该作者
分享本楼
simon1942
来自 江苏省
精华 0
注册 2010-4-26
行业 房产建筑
金佰威公司照片来补一张
---发自iPhone 6S---
2017-2-25 08:44
28楼
0511家装频道:本地家居服务平台,数万业主共同选择
只看该作者
分享本楼
宇祥装饰客服1
来自 江苏省
精华
2
注册 2016-12-14
行业 房产建筑
恭喜 开工
2017-2-25 14:07
29楼
[联宇电脑] 电脑组装\维修\升级\企业单位电脑维护!
只看该作者
分享本楼
ZAJING
禁止访问
来自 江苏省
精华 0
注册 2016-8-31
*** 作者因违反论坛规定,禁言处理,内容自动屏蔽 ***
详情参阅论坛注册条款:
http://bbs.my0511.com/f11b-t2789156z
2017-2-25 17:32
30楼
找工作,就上MY0511!
只看该作者
分享本楼
delarge
来自 江苏省
精华
4
注册 2008-7-25
行业 房产建筑
这家装修公司装的很有酒店范
2017-2-25 21:25
31楼
买房、卖房、租房上镇江房产网!
只看该作者
分享本楼
小丽呀
来自 江苏省
精华 0
注册 2014-8-13
红星美凯龙负一楼 洛克诚品私人订制家居欢迎您过来选择橱柜衣柜哟!
2017-2-26 14:57
32楼
买房、卖房、租房上镇江房产网!
只看该作者
分享本楼
金佰威装饰集团
来自 江苏省
精华
30
注册 2015-9-29
行业 房产建筑
感谢业主认可 我们会做的更好
2017-2-26 15:46
33楼
找工作,就上MY0511!
只看该作者
分享本楼
simon1942
来自 江苏省
精华 0
注册 2010-4-26
行业 房产建筑
---发自iPhone 6S---
2017-2-27 08:44
34楼
找工作,就上MY0511!
只看该作者
分享本楼
simon1942
来自 江苏省
精华 0
注册 2010-4-26
行业 房产建筑
真的很安静
---发自iPhone 6S---
2017-2-27 08:50
35楼
[联宇电脑] 电脑组装\维修\升级\企业单位电脑维护!
只看该作者
分享本楼
simon1942
来自 江苏省
精华 0
注册 2010-4-26
行业 房产建筑
橱柜搞定!
---发自iPhone 6S---
2017-2-28 13:22
36楼
找工作,就上MY0511!
只看该作者
分享本楼
simon1942
来自 江苏省
精华 0
注册 2010-4-26
行业 房产建筑
再来一张
---发自iPhone 6S---
2017-2-28 13:25
37楼
MY0511相亲,一分钟注册,享一辈子幸福!
只看该作者
分享本楼
富岛家地板
来自 江苏省
精华 0
注册 2016-5-9
QUOTE:
原帖由
simon1942
于 2017-2-24 00:05 发表
[attach]21799901[/attach]
沃德这个户型不是南北通透的,拆改后
我个人比较喜欢上面这个方案,通透,采光都很好
[attach]21799902[/attach]
最终采用这个原始结构,说服不了家人(平时两人住 ...
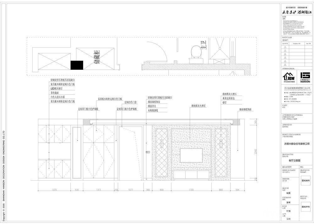
效果图不错,电视背景墙是石材吗?
2017-2-28 13:38
38楼
[联宇电脑] 电脑组装\维修\升级\企业单位电脑维护!
只看该作者
分享本楼
simon1942
来自 江苏省
精华 0
注册 2010-4-26
行业 房产建筑
瓷砖搞定
---发自iPhone 6S---
2017-2-28 13:46
39楼
0511家装频道:本地家居服务平台,数万业主共同选择
只看该作者
分享本楼
simon1942
来自 江苏省
精华 0
注册 2010-4-26
行业 房产建筑
上图
---发自iPhone 6S---
2017-2-28 13:47
40楼
找工作,就上MY0511!
只看该作者
分享本楼
兔宝宝地板
来自 江苏省
精华 0
注册 2016-6-18
恭喜楼主,恭喜金佰威!
2017-3-1 11:20
41楼
[联宇电脑] 电脑组装\维修\升级\企业单位电脑维护!
只看该作者
分享本楼
οΟ星光︶ㄣ
来自 江苏省
精华
8
注册 2006-12-25
行业 信息咨询
哈哈,动作蛮快啊,啥时候开工
2017-3-1 11:34
42楼
买房、卖房、租房上镇江房产网!
只看该作者
分享本楼
simon1942
来自 江苏省
精华 0
注册 2010-4-26
行业 房产建筑
刚回来镇江,顺便来交个费!
---发自iPhone 6S---
2017-3-1 13:03
43楼
0511家装频道:本地家居服务平台,数万业主共同选择
只看该作者
分享本楼
baoxhl
来自 江苏省
精华 0
注册 2013-8-27
邻居好,38栋的
---发自iPhone 6S---
2017-3-1 13:35
44楼
找工作,就上MY0511!
只看该作者
分享本楼
simon1942
来自 江苏省
精华 0
注册 2010-4-26
行业 房产建筑
QUOTE:
原帖由
baoxhl
于 17-3-1 13:35 发表
邻居好,38栋的
邻居好
---发自iPhone 6S---
2017-3-1 19:53
45楼
找工作,就上MY0511!
只看该作者
分享本楼
simon1942
来自 江苏省
精华 0
注册 2010-4-26
行业 房产建筑
By the way有需要买西门子开关的同学吗
找我省钱啊
---发自iPhone 6S---
2017-3-1 19:55
46楼
0511家装频道:本地家居服务平台,数万业主共同选择
只看该作者
分享本楼
鑫木装饰
禁止发言
来自 江苏省
精华 0
注册 2016-10-9
*** 作者因违反论坛规定,禁言处理,内容自动屏蔽 ***
详情参阅论坛注册条款:
http://bbs.my0511.com/f11b-t2789156z
2017-3-1 20:09
47楼
[联宇电脑] 电脑组装\维修\升级\企业单位电脑维护!
只看该作者
分享本楼
baoxhl
来自 江苏省
精华 0
注册 2013-8-27
QUOTE:
原帖由
simon1942
于 17-3-1 19:53 发表
邻居好
楼主你是买的还是回迁的?估计熟人
---发自iPhone 6S---
2017-3-1 22:30
48楼
找工作,就上MY0511!
只看该作者
分享本楼
在人民广场炸鸡
来自 0
精华 0
注册 2015-12-6
By the way有需要买西门子开关的同学吗
找我省钱啊
能省多少啊,邻居
2017-3-1 22:30
49楼
买房、卖房、租房上镇江房产网!
只看该作者
分享本楼
跃进工程车
来自 江苏省
精华 0
注册 2017-3-2
QUOTE:
原帖由
simon1942
于 2017-2-24 12:45 发表
砖基本看好
专送装潢用 红砖 水泥 黄沙 量足价优 18168583155
---发自梦溪论坛手机客户端---
2017-3-2 04:46
50楼
MY0511相亲,一分钟注册,享一辈子幸福!
只看该作者
分享本楼
返回家庭装修
73
1/2
1
2
>
快速回复主题
游客
您目前还是游客,请
登录
或
注册
您目前是游客,本帖已被系统设置了自动关闭,不可回复!
文明交流,理性发言
0/5000字
<
>
请在打开的新窗口中支付完成打赏
我已完成支付打赏
支付失败重新支付
其他金额
打赏金额:
元
确定
支付打赏
提 现
打赏人
打赏金额(元)
打赏时间
伊慕装饰
1.00
2017-2-24 08:37
老友记装饰客服
1.00
2017-2-27 12:15
Powered by
Discuz! X 2
0.093198 s
清除 Cookies
-
镇江网友之家
-
手机版
论坛导航
关闭
吃喝玩乐
饮食男女
镇江钓友之家
菜菜鸟户外
镇江单车俱乐部
镜头里的镇江
畅游天下
猫狗总动员
视觉Coffeeshop摄影部落
花鸟鱼虫
婚姻.亲子.家庭
家有学子
谈婚论嫁
女性天地
母婴乐园
婚姻生活
梦溪佳缘
装修
家庭装修
装修招标
镇江室内设计师交流
装修商家直通车
你好,镇江!
百姓话题
我要买房
0511爱心家园
市场监管•12315热线
分类信息
生活服务
闲置转让
镇江二手房/镇江租房
镇江招聘求职
教育培训
镇江二手车
商铺厂房写字楼租售
宠物市场
运动健身
卡券交易
电脑维修升级
杂货铺
其他分类信息区
兴趣爱好
HiFi音响江城沙龙
镇江市美术家协会
我爱模型
车友俱乐部
车迷之家
汽车驾培中心
运动俱乐部
镇江市冬泳、铁人三项协会
聚焦足球
镇江羽毛球
镇江乒乓球协会
镇江网球协会
镇江市自行车运动协会
热爱篮球
动力机车
合作栏目
维权热线
天翼时代
色觉影像摄影工作室
站务区
疑问与建议
网络问政
市政府工作部门
垂直管理部门
党群工作部门
其他重点单位
辖市(区)