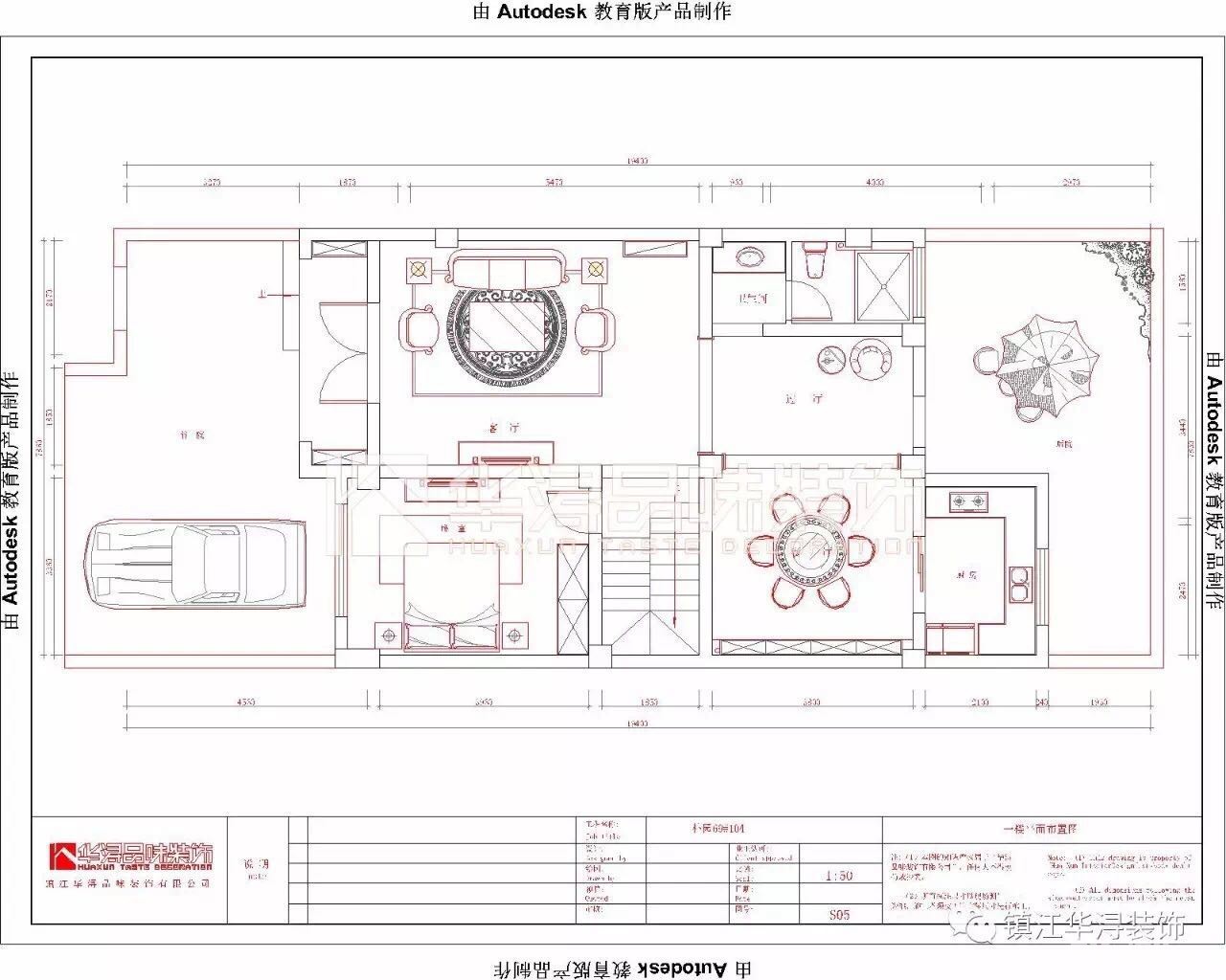
我看到一处宽敞的客厅,如田野一般
它说:世界如此喧嚣,你和我不如将声音放低,或者干脆用眼睛来说话。
我看到温馨的四人桌,一家人围桌而坐。
它说:不管你在何方,全部的爱都会如期而至,幸福不过是今夕复何夕,共此灯烛光。
【小区名称】:朴园.竹山苑
【建筑面积】:280㎡左右
【装修风格】:新中式
【包工方式】:半包
【设计公司】:镇江华浔品味装饰
【 设计师 】:陈淑
【 监 理 】:周城
【开工日期】:2017年3月13日
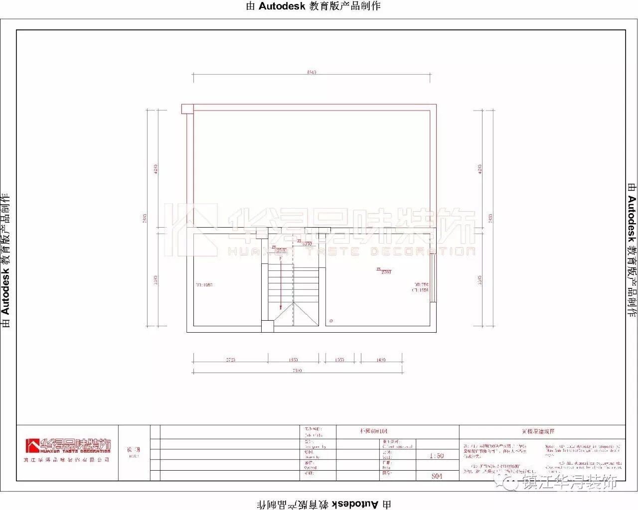
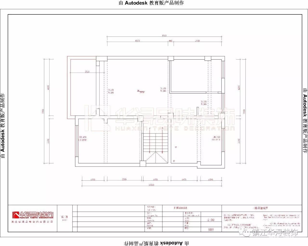
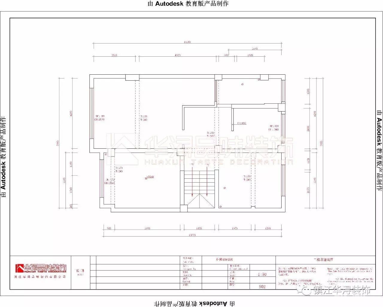
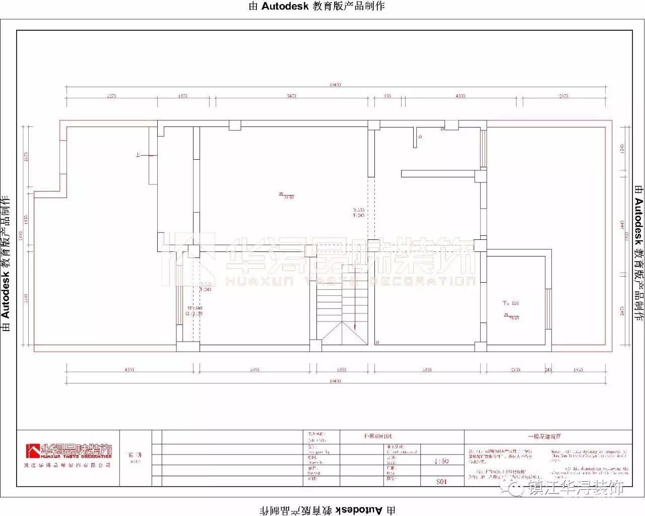
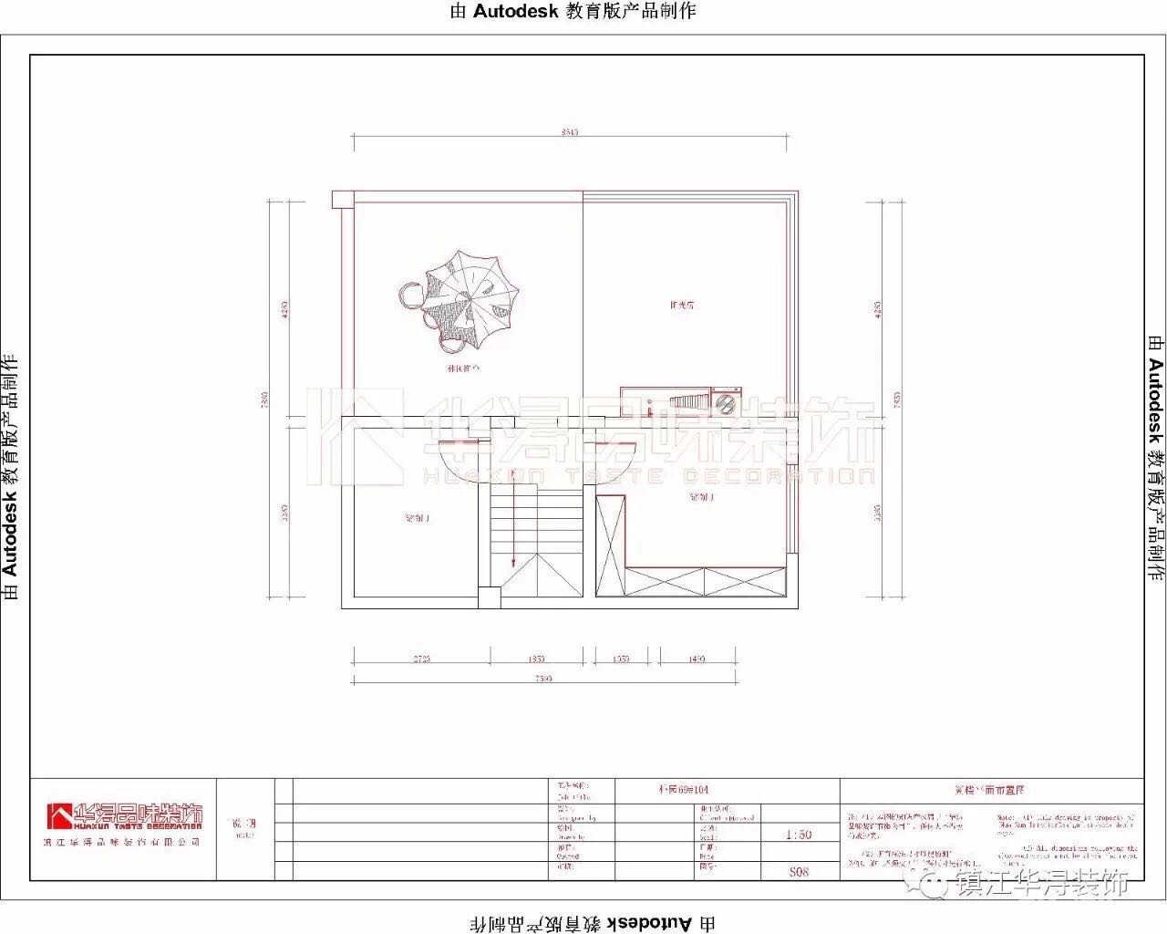
原始结构图:




方案设计图:




总体来说设计师设计的还是很满意的,方案的改动以及后期的软装搭配都不错,个人比较偏爱新中式风格,下面献图让大家欣赏下!
客厅效果图

餐厅效果图

卧室效果图

客房效果图

2017年3月13日9点58分今天终于开工啦!

施工进度随后跟帖,大家多多支持哦!
[ 本帖最后由 小长江 于 17-3-14 18:16 编辑 ]










