收藏本站
客户端
扫码下载客户端
官方微信
打开微信扫一扫
登录
|
注册
|
标题
标题
用户
全站首页
|
论坛导航
|
网络问政
|
招聘求职
|
买房租房
|
装修频道
|
生活服务
|
教育
|
相亲
|
亲子
|
美食
|
婚嫁
|
手机客户端
家有学子
|
母婴乐园
快捷导航
精彩推荐:
MY0511客户端下载
中信银行镇江分行
公益体彩 乐善人生
鹏龙鸿蒙
天然石材·人造石
»
梦溪论坛
»
家庭装修
» 我是一个装修小白,装修达人们麻烦给给意见^_^
家庭装修
>
[装修日记]
我是一个装修小白,装修达人们麻烦给给意见^_^
查看: 17856 回复: 77
快速回复
返回家庭装修
78
1/2
1
2
>
[装修日记]
我是一个装修小白,装修达人们麻烦给给意见^_^
查看: 17856 回复: 77
上一主题
|
下一主题
捣蛋鬼才
来自 江苏省
精华 0
注册 2017-3-6
行业 教育科研
我是一个装修小白,装修达人们麻烦给给意见^_^
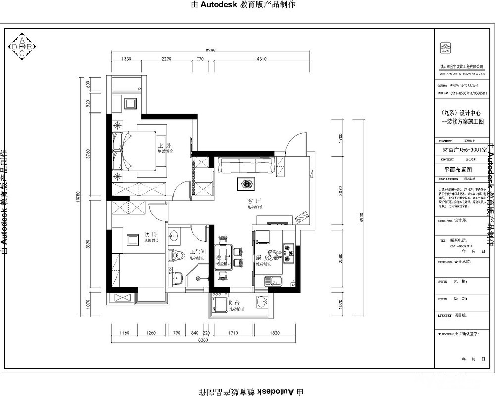
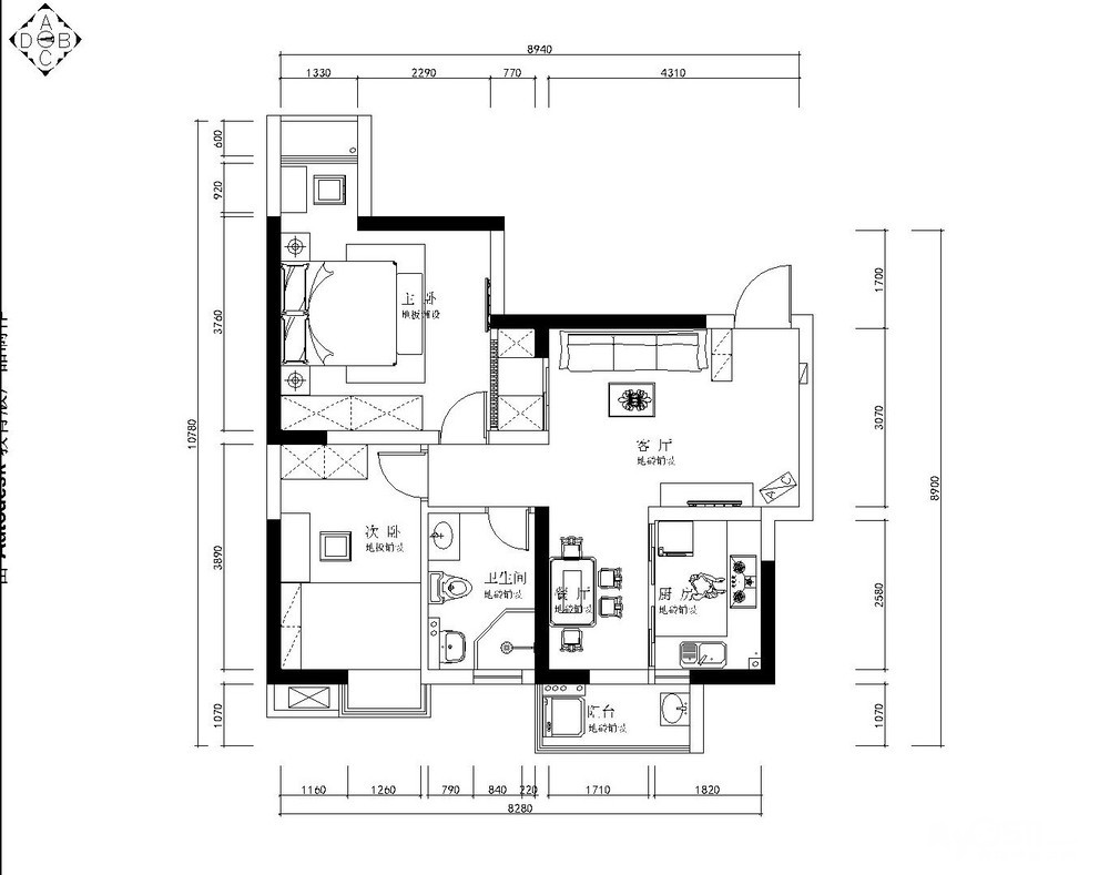
财富广场
【小区名称】:财富广场
【所在楼层】:30楼
【建筑面积】:90平方米
【包工方式】:半包
【装修公司】:镇江金宇装饰
【开工日期】:2017年3月20日
【装修预算】:半包 4.6W
[
本帖最后由 捣蛋鬼才 于 17-3-21 09:02 编辑
]
已有 老友记装饰客服, 伊慕装饰, 海文装饰客服
3
人打赏
2017-3-19 14:19
1楼
MY0511相亲,一分钟注册,享一辈子幸福!
只看该作者
分享本楼
捣蛋鬼才
来自 江苏省
精华 0
注册 2017-3-6
行业 教育科研
明天就开工了!好开心。。。。。。。
2017-3-19 14:21
2楼
0511家装频道:本地家居服务平台,数万业主共同选择
只看该作者
分享本楼
我的小鱼干呢
来自 江苏省
精华 0
注册 2017-3-6
好巧~ 我也是最近装修的 咱多多关注哦
2017-3-19 14:46
3楼
[联宇电脑] 电脑组装\维修\升级\企业单位电脑维护!
只看该作者
分享本楼
镇江欧派欧铂丽
来自 江苏省
精华 0
注册 2017-3-9
楼主开工大吉
---发自三星---
2017-3-19 15:30
4楼
[联宇电脑] 电脑组装\维修\升级\企业单位电脑维护!
只看该作者
分享本楼
优金瓷美缝
来自 江苏省
精华 0
注册 2016-10-20
行业 其它
多看看大神的帖
---发自iPhone 6---
2017-3-19 16:17
5楼
MY0511相亲,一分钟注册,享一辈子幸福!
只看该作者
分享本楼
鑫木装饰
禁止发言
来自 江苏省
精华 0
注册 2016-10-9
*** 作者因违反论坛规定,禁言处理,内容自动屏蔽 ***
详情参阅论坛注册条款:
http://bbs.my0511.com/f11b-t2789156z
2017-3-19 16:57
6楼
找工作,就上MY0511!
只看该作者
分享本楼
wen294100357
来自 江苏省
精华 0
注册 2009-8-8
行业 学生
装监控找我
---发自iPhone 6---
2017-3-19 17:12
7楼
0511家装频道:本地家居服务平台,数万业主共同选择
只看该作者
分享本楼
zg60
来自 江苏省
精华 0
注册 2005-9-28
QUOTE:
原帖由
捣蛋鬼才
于 17-3-19 14:19 发表
财富广场
【小区名称】:财富广场
【所在楼层】:30楼
财富广场
【所在楼层】:30楼
【建筑面积】:90平方米
【包工方式】:半包
【装修公司】:镇江金宇装饰
【开工日期】:2017年3月20日
【装修预算】:半包 4.6W
.
2017-3-19 17:16
8楼
买房、卖房、租房上镇江房产网!
只看该作者
分享本楼
小小SUN
禁止访问
来自 江苏省
精华 0
注册 2011-5-28
行业 其它
*** 作者因违反论坛规定,禁言处理,内容自动屏蔽 ***
详情参阅论坛注册条款:
http://bbs.my0511.com/f11b-t2789156z
2017-3-19 19:26
9楼
找工作,就上MY0511!
只看该作者
分享本楼
delarge
来自 江苏省
精华
4
注册 2008-7-25
行业 房产建筑
恭喜开工
2017-3-19 22:42
10楼
买房、卖房、租房上镇江房产网!
只看该作者
分享本楼
全友定制陈
来自 江苏省
精华 0
注册 2017-3-11
可以来全友定制看看哦,环保,性价比高
---发自梦溪论坛手机客户端---
2017-3-20 12:10
11楼
[联宇电脑] 电脑组装\维修\升级\企业单位电脑维护!
只看该作者
分享本楼
li62400
来自 江苏省
精华 0
注册 2015-2-17
圣达地板木门:恭祝您开工大吉,有需要地板木门可以和我联系,微信同号15952862400
---发自梦溪论坛手机客户端---
2017-3-20 21:02
12楼
[联宇电脑] 电脑组装\维修\升级\企业单位电脑维护!
只看该作者
分享本楼
捣蛋鬼才
来自 江苏省
精华 0
注册 2017-3-6
行业 教育科研
QUOTE:
原帖由
小小SUN
于 17-3-19 19:26 发表
这个户型真是太棒了!
谢谢*-*
2017-3-21 10:54
13楼
[联宇电脑] 电脑组装\维修\升级\企业单位电脑维护!
只看该作者
分享本楼
捣蛋鬼才
来自 江苏省
精华 0
注册 2017-3-6
行业 教育科研
QUOTE:
原帖由
全友定制陈
于 17-3-20 12:10 发表
可以来全友定制看看哦,环保,性价比高
好的。
2017-3-21 10:55
14楼
[联宇电脑] 电脑组装\维修\升级\企业单位电脑维护!
只看该作者
分享本楼
捣蛋鬼才
来自 江苏省
精华 0
注册 2017-3-6
行业 教育科研
QUOTE:
原帖由
delarge
于 17-3-19 22:42 发表
恭喜开工
谢谢啦!!!!!!
2017-3-21 10:56
15楼
MY0511相亲,一分钟注册,享一辈子幸福!
只看该作者
分享本楼
捣蛋鬼才
来自 江苏省
精华 0
注册 2017-3-6
行业 教育科研
QUOTE:
原帖由
优金瓷美缝
于 17-3-19 16:17 发表
多看看大神的帖
好的呢,具体去哪里看啊,O(∩_∩)O
2017-3-21 10:57
16楼
[联宇电脑] 电脑组装\维修\升级\企业单位电脑维护!
只看该作者
分享本楼
捣蛋鬼才
来自 江苏省
精华 0
注册 2017-3-6
行业 教育科研
QUOTE:
原帖由
我的小鱼干呢
于 17-3-19 14:46 发表
好巧~ 我也是最近装修的 咱多多关注哦
好的,有什么问题。咱们可以多多交流啊。
2017-3-21 10:58
17楼
0511家装频道:本地家居服务平台,数万业主共同选择
只看该作者
分享本楼
捣蛋鬼才
来自 江苏省
精华 0
注册 2017-3-6
行业 教育科研
2017-3-21 11:02
18楼
买房、卖房、租房上镇江房产网!
只看该作者
分享本楼
捣蛋鬼才
来自 江苏省
精华 0
注册 2017-3-6
行业 教育科研
2017-3-21 11:02
19楼
MY0511相亲,一分钟注册,享一辈子幸福!
只看该作者
分享本楼
捣蛋鬼才
来自 江苏省
精华 0
注册 2017-3-6
行业 教育科研
2017-3-21 11:03
20楼
找工作,就上MY0511!
只看该作者
分享本楼
捣蛋鬼才
来自 江苏省
精华 0
注册 2017-3-6
行业 教育科研
2017-3-21 11:03
21楼
MY0511相亲,一分钟注册,享一辈子幸福!
只看该作者
分享本楼
捣蛋鬼才
来自 江苏省
精华 0
注册 2017-3-6
行业 教育科研
2017-3-21 11:04
22楼
买房、卖房、租房上镇江房产网!
只看该作者
分享本楼
捣蛋鬼才
来自 江苏省
精华 0
注册 2017-3-6
行业 教育科研
谢谢大家的关心,因为昨天开工的,所以没有时间更新。今天一有空就赶紧把昨天发的照片跟大家分享。表达一下我的心情。
2017-3-21 11:08
23楼
[联宇电脑] 电脑组装\维修\升级\企业单位电脑维护!
只看该作者
分享本楼
简单爱jda
来自 江苏省
精华 0
注册 2017-2-20
恭喜恭喜,开工大吉大利!需要封阳台可电话联系,13775350925,绝对让您满意
---发自vivo---
2017-3-21 16:14
24楼
MY0511相亲,一分钟注册,享一辈子幸福!
只看该作者
分享本楼
1234zgm
来自 江苏省
精华 0
注册 2016-5-6
QUOTE:
原帖由
捣蛋鬼才
于 17-3-21 11:02 发表
[attach]21939850[/attach]
这张不是你家图吧?
---发自iPhone 6S Plus---
2017-3-21 17:31
25楼
[联宇电脑] 电脑组装\维修\升级\企业单位电脑维护!
只看该作者
分享本楼
我是vivianus
来自 江苏省
精华 0
注册 2010-6-18
行业 其它
开工大吉
2017-3-21 17:32
26楼
买房、卖房、租房上镇江房产网!
只看该作者
分享本楼
捣蛋鬼才
来自 江苏省
精华 0
注册 2017-3-6
行业 教育科研
QUOTE:
原帖由
我是vivianus
于 17-3-21 17:32 发表
开工大吉
谢谢O(∩_∩)O
2017-3-22 09:42
27楼
买房、卖房、租房上镇江房产网!
只看该作者
分享本楼
小瑾嘛嘛嘛
来自 江苏省
精华 0
注册 2017-3-15
恭喜开工
---发自梦溪论坛手机客户端---
2017-3-22 12:34
28楼
MY0511相亲,一分钟注册,享一辈子幸福!
只看该作者
分享本楼
捣蛋鬼才
来自 江苏省
精华 0
注册 2017-3-6
行业 教育科研
QUOTE:
原帖由
小瑾嘛嘛嘛
于 17-3-22 12:34 发表
恭喜开工
谢谢啦。完全一点头绪都没有。
2017-3-23 14:01
29楼
[联宇电脑] 电脑组装\维修\升级\企业单位电脑维护!
只看该作者
分享本楼
zjlkcp
来自 江苏省
精华 0
注册 2014-7-2
行业 房产建筑
恭喜开关
2017-3-23 14:08
30楼
MY0511相亲,一分钟注册,享一辈子幸福!
只看该作者
分享本楼
捣蛋鬼才
来自 江苏省
精华 0
注册 2017-3-6
行业 教育科研
QUOTE:
原帖由
zjlkcp
于 17-3-23 14:08 发表
恭喜开关
谢谢O(∩_∩)O
2017-3-24 14:24
31楼
0511家装频道:本地家居服务平台,数万业主共同选择
只看该作者
分享本楼
好运地板旗舰店
来自 江苏省
精华 0
注册 2015-8-20
行业 商业贸易
恭喜
2017-3-24 14:30
32楼
买房、卖房、租房上镇江房产网!
只看该作者
分享本楼
捣蛋鬼才
来自 江苏省
精华 0
注册 2017-3-6
行业 教育科研
QUOTE:
原帖由
好运地板旗舰店
于 17-3-24 14:30 发表
恭喜
谢谢啦!
2017-3-25 10:36
33楼
0511家装频道:本地家居服务平台,数万业主共同选择
只看该作者
分享本楼
捣蛋鬼才
来自 江苏省
精华 0
注册 2017-3-6
行业 教育科研
2017-3-25 10:51
34楼
买房、卖房、租房上镇江房产网!
只看该作者
分享本楼
捣蛋鬼才
来自 江苏省
精华 0
注册 2017-3-6
行业 教育科研
2017-3-25 10:52
35楼
0511家装频道:本地家居服务平台,数万业主共同选择
只看该作者
分享本楼
捣蛋鬼才
来自 江苏省
精华 0
注册 2017-3-6
行业 教育科研
2017-3-25 10:52
36楼
[联宇电脑] 电脑组装\维修\升级\企业单位电脑维护!
只看该作者
分享本楼
捣蛋鬼才
来自 江苏省
精华 0
注册 2017-3-6
行业 教育科研
2017-3-25 10:52
37楼
[联宇电脑] 电脑组装\维修\升级\企业单位电脑维护!
只看该作者
分享本楼
捣蛋鬼才
来自 江苏省
精华 0
注册 2017-3-6
行业 教育科研
2017-3-25 10:53
38楼
找工作,就上MY0511!
只看该作者
分享本楼
捣蛋鬼才
来自 江苏省
精华 0
注册 2017-3-6
行业 教育科研
2017-3-25 10:53
39楼
找工作,就上MY0511!
只看该作者
分享本楼
捣蛋鬼才
来自 江苏省
精华 0
注册 2017-3-6
行业 教育科研
最近一直在看很多的装修风格,好多装修效果图看的眼花缭乱。也在跟设计师沟通,到现在装修风格也没定下来。好纠结。
2017-3-25 10:56
40楼
MY0511相亲,一分钟注册,享一辈子幸福!
只看该作者
分享本楼
山青水绿环保
来自 江苏省
精华 0
注册 2015-5-22
行业 商业贸易
看得多了就眼花缭乱了。
2017-3-25 14:39
41楼
MY0511相亲,一分钟注册,享一辈子幸福!
只看该作者
分享本楼
捣蛋鬼才
来自 江苏省
精华 0
注册 2017-3-6
行业 教育科研
QUOTE:
原帖由
山青水绿环保
于 17-3-25 14:39 发表
看得多了就眼花缭乱了。
是唉,不知道选什么比较好了
2017-3-26 10:27
42楼
[联宇电脑] 电脑组装\维修\升级\企业单位电脑维护!
只看该作者
分享本楼
叫我女汉子
来自 江苏省
精华 0
注册 2017-3-17
反正不要选择华府装饰,地址在工人体育场对面的万科写字楼A座703,我家油漆全部开裂,然后不管不问,真是闹心,老板名字叫戴锦玉,电话13852907568.跟小区里邻居们说一下,千万别选择他们家,华府装饰,老板还很嚣张的说他不怕被曝光,我猜他是想换个王八壳子继续坑别人
---发自iPhone 6S Plus---
2017-3-28 10:37
43楼
MY0511相亲,一分钟注册,享一辈子幸福!
只看该作者
分享本楼
捣蛋鬼才
来自 江苏省
精华 0
注册 2017-3-6
行业 教育科研
QUOTE:
原帖由
叫我女汉子
于 17-3-28 10:37 发表
反正不要选择华府装饰,地址在工人体育场对面的万科写字楼A座703,我家油漆全部开裂,然后不管不问,真是闹心,老板名字叫戴锦玉,电话13852907568.跟小区里邻居们说一下,千万别选择他们家,华府装饰,老板还很嚣 ...
还好我选的不是他们家,我选的是金宇装饰,应该还是可以的。朋友就是找他们做的。工人施工装修的时候我一直都有拍照什么的,后续我会陆续上传照片给大家的。如果上传的照片中有什么问题欢迎大神指出来。
2017-3-28 16:11
44楼
0511家装频道:本地家居服务平台,数万业主共同选择
只看该作者
分享本楼
南天竹
家装认证商户
来自 江苏省
精华 0
注册 2005-3-11
行业 房产建筑
恭喜楼主开工大吉,现在可以看看软装设计了
2017-3-28 17:06
45楼
找工作,就上MY0511!
只看该作者
分享本楼
捣蛋鬼才
来自 江苏省
精华 0
注册 2017-3-6
行业 教育科研
QUOTE:
原帖由
南天竹
于 17-3-28 17:06 发表
恭喜楼主开工大吉,现在可以看看软装设计了
谢谢,好的呢。最近也在看呢
2017-3-29 08:58
46楼
[联宇电脑] 电脑组装\维修\升级\企业单位电脑维护!
只看该作者
分享本楼
捣蛋鬼才
来自 江苏省
精华 0
注册 2017-3-6
行业 教育科研
下面上传几张施工的情况
2017-3-29 08:59
47楼
[联宇电脑] 电脑组装\维修\升级\企业单位电脑维护!
只看该作者
分享本楼
捣蛋鬼才
来自 江苏省
精华 0
注册 2017-3-6
行业 教育科研
2017-3-29 09:00
48楼
0511家装频道:本地家居服务平台,数万业主共同选择
只看该作者
分享本楼
捣蛋鬼才
来自 江苏省
精华 0
注册 2017-3-6
行业 教育科研
2017-3-29 09:00
49楼
MY0511相亲,一分钟注册,享一辈子幸福!
只看该作者
分享本楼
捣蛋鬼才
来自 江苏省
精华 0
注册 2017-3-6
行业 教育科研
2017-3-29 09:01
50楼
找工作,就上MY0511!
只看该作者
分享本楼
返回家庭装修
78
1/2
1
2
>
快速回复主题
游客
您目前还是游客,请
登录
或
注册
您目前是游客,本帖已被系统设置了自动关闭,不可回复!
文明交流,理性发言
0/5000字
<
>
请在打开的新窗口中支付完成打赏
我已完成支付打赏
支付失败重新支付
其他金额
打赏金额:
元
确定
支付打赏
提 现
打赏人
打赏金额(元)
打赏时间
老友记装饰客服
1.00
2017-3-20 13:06
伊慕装饰
1.00
2017-3-22 21:15
海文装饰客服
1.00
2017-3-29 10:32
Powered by
Discuz! X 2
0.116257 s
清除 Cookies
-
镇江网友之家
-
手机版
论坛导航
关闭
吃喝玩乐
饮食男女
镇江钓友之家
菜菜鸟户外
镇江单车俱乐部
镜头里的镇江
畅游天下
猫狗总动员
视觉Coffeeshop摄影部落
花鸟鱼虫
婚姻.亲子.家庭
家有学子
谈婚论嫁
女性天地
母婴乐园
婚姻生活
梦溪佳缘
装修
家庭装修
装修招标
镇江室内设计师交流
装修商家直通车
你好,镇江!
百姓话题
我要买房
0511爱心家园
市场监管•12315热线
分类信息
生活服务
闲置转让
镇江二手房/镇江租房
镇江招聘求职
教育培训
镇江二手车
商铺厂房写字楼租售
宠物市场
运动健身
卡券交易
电脑维修升级
杂货铺
其他分类信息区
兴趣爱好
HiFi音响江城沙龙
镇江市美术家协会
我爱模型
车友俱乐部
车迷之家
汽车驾培中心
运动俱乐部
镇江市冬泳、铁人三项协会
聚焦足球
镇江羽毛球
镇江乒乓球协会
镇江网球协会
镇江市自行车运动协会
热爱篮球
动力机车
合作栏目
维权热线
天翼时代
色觉影像摄影工作室
站务区
疑问与建议
网络问政
市政府工作部门
垂直管理部门
党群工作部门
其他重点单位
辖市(区)