| 标题
快捷导航

精彩推荐:MY0511客户端下载

    • 中信银行镇江分行

    • 公益体彩 乐善人生

    • 鹏龙鸿蒙

    • 天然石材·人造石

    » 梦溪论坛 » 家庭装修 » 满满的中式江南风——开启如意江南装修之旅
    家庭装修  >  [装修日记] 满满的中式江南风——开启如意江南装修之旅     
    查看: 17446  回复: 38
    [装修日记] 满满的中式江南风——开启如意江南装修之旅      查看: 17446  回复: 38
    • 来自 江苏省
    • 精华 0
    • 注册 2016-11-2
    •  
    满满的中式江南风——开启如意江南装修之旅

    装修公司:华宁装饰建筑面积:172
    材料未定
    准备装修,开帖纪念一下,网友们关于户型改造有好的建议欢迎提出来




    欢迎加入家装官方VIP别墅群 群号:565444352

    [ 本帖最后由 my0511菲雪 于 17-4-7 16:49 编辑 ]









                      
    • 来自 江苏省
    • 精华 0
    • 注册 2016-11-2
    •  

    第一套房子是全包的,当时觉得还可以,因为源于对装修毫无概念,也毫无要求,于是也就毫无好坏的感觉,参观完同事们的屋子后真心醉了,被坑了不说,发现自己家连风格两个字都谈不上,又想起当年半天就在装修公司的材料展示屋里就挑完主材的情景,不由觉得自己太low了,这次,面对自己花血本负债累累买的房子,不由得暗下决心,一定要好好装,于是这次本小姐考虑半包,自己去挑材料,但是其实是小菜鸟一枚,心里打怵,开个帖子,多看看大家的建议,欢迎提出来




    • 来自 江苏省
    • 精华 0
    • 注册 2016-11-2
    •  

    本人第一想法就是讲儿童房改为衣帽间兼具书房的功能,关于户型改造有好的建议欢迎拍砖哈




    • 来自 江苏省
    • 精华 0
    • 注册 2012-2-18
    • 行业 医疗卫生
    •  


    QUOTE:
    原帖由 chestnut715 于 17-4-7 15:42 发表
    本人第一想法就是讲儿童房改为衣帽间兼具书房的功能,关于户型改造有好的建议欢迎拍砖哈
    看了怎么这么熟悉呢




    • 来自 江苏省
    • 精华 0
    • 注册 2016-10-20
    • 行业 其它
    •  

    恭喜开帖




    • 来自 0
    • 精华 1
    • 注册 2016-12-21
    • 行业 商业贸易
    •  

    货比三家不吃亏




    • 来自 江苏省
    • 精华 0
    • 注册 2007-11-26
    • 行业 其它
    •  

    多少一平方入手的?难得的如意江南好户型




    • 来自 江苏省
    • 精华 1
    • 注册 2006-1-11
    • 行业 工业制造
    •  

    170多个平方,才这么大。。。得多少公摊啊。




    • 来自 江苏省
    • 精华 0
    • 注册 2014-3-2
    •  

    新美嘉橱柜衣柜,工厂全屋定制,不锈钢整体橱柜低至1588元一米,多层实木橱柜低至1188元一米,衣柜连门带柜688一平,多是标配。全屋定制送整套烟机灶具水槽龙头。热线电话15358618886陆








































    • 来自 江苏省
    • 精华 0
    • 注册 2013-10-8
    •  


    QUOTE:
    原帖由 fiona61889586 于 17-4-7 18:00 发表
    多少一平方入手的?难得的如意江南好户型
    我买的时候8200多




    • 来自 江苏省
    • 精华 0
    • 注册 2013-10-8
    •  


    QUOTE:
    原帖由 hallen 于 17-4-7 19:55 发表
    170多个平方,才这么大。。。得多少公摊啊。
    公摊是硬伤呀,快40,两梯两户




    • 来自 江苏省
    • 精华 0
    • 注册 2013-10-8
    •  


    QUOTE:
    原帖由 Xiaying1991 于 17-4-7 20:07 发表
    恭喜恭喜
    谢谢,多多指教




    • 来自 江苏省
    • 精华 0
    • 注册 2013-10-8
    •  


    QUOTE:
    原帖由 justin2080 于 17-4-7 16:52 发表

    看了怎么这么熟悉呢
    邻居?




    • 来自 江苏省
    • 精华 0
    • 注册 2017-3-8
    •  

    你好 我是万达这做大金中央空调和德国威能地暖的 有需要可以联系我 电话:18862329251 公司地址:万达喜来登东侧100米 大金空调




    • 来自 江苏省
    • 精华 55
    • 注册 2017-2-10
    •  

    恭喜开贴~~




    • 来自 江苏省
    • 精华 0
    • 注册 2013-10-8
    •  

    好头疼,飘装是腾空的,不能打掉,有好的建议不




    • 来自 江苏省
    • 精华 0
    • 注册 2017-3-8
    •  

    恭喜恭喜




    • 来自 江苏省
    • 精华 0
    • 注册 2017-3-8
    •  

    需要定制可以来我们全友全屋定制来看看,青年广场旭辉时代城3楼,小孙18262885065




    • 来自 江苏省
    • 精华 0
    • 注册 2017-3-18
    •  

    恭喜恭喜!~美帝诺木门 护墙板,衣柜定制。红星美凯龙负一楼




    • 来自 江苏省
    • 精华 0
    • 注册 2017-3-5
    •  

    恭喜恭喜




    • 来自 江苏省
    • 精华 0
    • 注册 2013-10-8
    •  

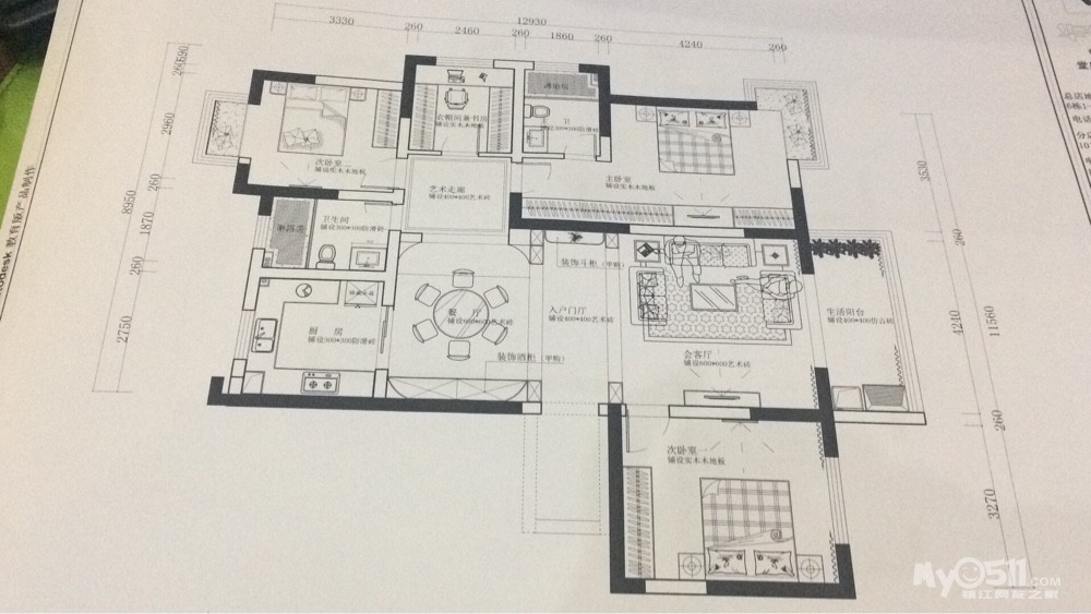
    两张装修平面布置图,个人不满意,好头疼, 万能的网友有啥好建议不












    • 来自 江苏省
    • 精华 55
    • 注册 2017-2-10
    •  

    第一张客餐厅空间看起来更大,但是第二章格局分明,更加精美,厨房和卫生间大,问问家里经常烧饭的人的意见呢




    • 来自 江苏省
    • 精华 0
    • 注册 2017-2-12
    •  

    我们卖装修辅材的,价格便宜,都是品牌,例如伟星,兔宝宝,立邦等品牌,而且订单满500免费送货免上楼费。有兴趣联系15861867091,了解了解价格也可以充当你们跟别人谈价的磨刀石




    • 来自 江苏省
    • 精华 0
    • 注册 2014-11-25
    •  

    你好,可以到店看下








    • 来自 江苏省
    • 精华 0
    • 注册 2006-8-23
    • 行业 其它
    •  


    QUOTE:
    原帖由 栗子0715 于 17-4-8 07:11 发表

    我买的时候8200多
    你什么时候买的?




    • 来自 云南省
    • 精华 0
    • 注册 2013-10-8
    •  


    QUOTE:
    原帖由 hyok 于 17-4-16 20:47 发表

    你什么时候买的?
    半个多月前




    • 来自 江苏省
    • 精华 0
    • 注册 2016-10-23
    •  

    恭贺楼主开帖




    • 来自 江苏省
    • 精华 0
    • 注册 2016-11-2
    •  

    磨磨蹭蹭又一个多星期下午了,中间自己跑去云南忘了一趟,旅游途中手机上还是一直看各种装修效果图,回来之后马不停蹄的约设计师谈平面设计,终于定了下来,在此谢谢美女设计师,耽误了她晚上下班的时间




    • 来自 江苏省
    • 精华 0
    • 注册 2017-3-31
    •  

    恭喜楼主开贴,装修自己多跑跑多看看就好




    • 来自 江苏省
    • 精华 0
    • 注册 2016-10-23
    •  


    QUOTE:
    原帖由 chestnut715 于 2017-4-21 09:21 发表
    磨磨蹭蹭又一个多星期下午了,中间自己跑去云南忘了一趟,旅游途中手机上还是一直看各种装修效果图,回来之后马不停蹄的约设计师谈平面设计,终于定了下来,在此谢谢美女设计师,耽误了她晚上下班的时间
    现在的设计师基本都是让顾客先看家具再定风格,再依据定的风格出效果图,这样最终出好的效果图没有太大的变动,否则还要改来改去~




    • 来自 江苏省
    • 精华 0
    • 注册 2013-10-8
    •  


    QUOTE:
    原帖由 此岸彼岸12 于 17-4-21 11:13 发表

    现在的设计师基本都是让顾客先看家具再定风格,再依据定的风格出效果图,这样最终出好的效果图没有太大的变动,否则还要改来改去~
    谢谢,准备这周开始进军各个家居城




    • 来自 江苏省
    • 精华 0
    • 注册 2016-10-23
    •  


    QUOTE:
    原帖由 栗子0715 于 2017-4-21 12:05 发表

    谢谢,准备这周开始进军各个家居城
    在风格的选择上,我给您一些建议,怎样才能找到自己喜欢的风格
    比如你去看一款你感兴趣的床,或者客厅,如果你能喜欢上她的单件,再由点到面再去看看它的其他是否喜欢,比如线条,颜色,之类的,如果都能喜欢了,那你就是喜欢这样的风格了!




    • 来自 江苏省
    • 精华 0
    • 注册 2016-10-23
    •  


    QUOTE:
    原帖由 栗子0715 于 2017-4-21 12:05 发表

    谢谢,准备这周开始进军各个家居城
    在风格的选择上,我给您一些建议,怎样才能找到自己喜欢的风格
    比如你去看一款你感兴趣的床,或者客厅,如果你能喜欢上她的单件,再由点到面再去看看它的其他是否喜欢,比如线条,颜色,之类的,如果都能喜欢了,那你就是喜欢这样的风格了!




    • 来自 江苏省
    • 精华 0
    • 注册 2011-12-27
    • 行业 政府行政
    •  


    QUOTE:
    原帖由 栗子0715 于 17-4-17 16:20 发表

    半个多月前
    楼主买的真便宜 同户型最近都是卖9300左右




    • 来自 江苏省
    • 精华 0
    • 注册 2016-11-2
    •  


    QUOTE:
    原帖由 海芋7花田 于 17-4-25 01:55 发表

    楼主买的真便宜 同户型最近都是卖9300左右
    是的,我买完了第二天就涨价啦




    • 来自 江苏省
    • 精华 0
    • 注册 2016-10-23
    •  

    楼主最近不看到更新了?是最近看家具,看花了眼了吗?




    • 来自 江苏省
    • 精华 0
    • 注册 2016-11-2
    •  





    前段时间停顿,着实因为开贴太早了,23号终于,终于我家开工了,先上两张效果图吧::::

    [ 本帖最后由 chestnut715 于 17-5-25 14:06 编辑 ]




    • 来自 江苏省
    • 精华 0
    • 注册 2016-11-2
    •  

    已定主材列出来一下,因为是菜鸟级别的网络写手,不太会编辑所以写的有点乱,抱歉,抱歉,将就看吧:;;;;;;;;;;
    装修公司:华宁装饰(目前还比较满意,态度积极负责)
    中央空调:东芝(担心中央空调的制热效果,本来想装暖气片的,奈何家里实在没有地方放散热片,而且和我家总体色彩不搭)
    橱柜:志邦(活动现场定的说实话有点冲动,所有还在观察当中)
    热水器:林内
    整屋定制:德维尔(整屋我跑了很多家,板材种类很多什么生态板、负离子板,说到底除了实木以外,在我看来就是双饰面,只要是正规品牌都差不多,剩下的我就是看价位了)
    淋浴房:德立(闲逛的时候定下来的,本来是去看网红德莉玛的,后来被德立老板的热情给镇住了,希望别失望)
    瓷砖:金牌亚洲(同样是觉得比较实在,不需要费口舌去还价)
    集成灶:火星人X7(在传统灶具中纠结很久,毕竟对我来说是个新鲜玩意,但是下厨较多的老公要求买,虽然价位有点高还是咬咬牙买了,省了一个蒸箱;;




    查看积分策略说明快速回复主题
    您目前还是游客,请 登录注册
    您目前是游客,本帖已被系统设置了自动关闭,不可回复!

    0/5000字

     
    < >
     

    Powered by Discuz! X 2 0.078682 s 清除 Cookies - 镇江网友之家 - 手机版
    论坛导航 关闭