收藏本站
客户端
扫码下载客户端
官方微信
打开微信扫一扫
登录
|
注册
|
标题
标题
用户
全站首页
|
论坛导航
|
网络问政
|
招聘求职
|
买房租房
|
装修频道
|
生活服务
|
教育
|
相亲
|
亲子
|
美食
|
婚嫁
|
手机客户端
家有学子
|
母婴乐园
快捷导航
精彩推荐:
MY0511客户端下载
中信银行镇江分行
公益体彩 乐善人生
鹏龙鸿蒙
天然石材·人造石
»
梦溪论坛
»
家庭装修
» 入驻孔雀城动手动手
家庭装修
>
[装修日记]
入驻孔雀城动手动手
查看: 12698 回复: 24
快速回复
返回家庭装修
[装修日记]
入驻孔雀城动手动手
查看: 12698 回复: 24
上一主题
|
下一主题
安米
来自 江苏省
精华 0
注册 2017-5-11
入驻孔雀城动手动手
纠结了很久,不是太会写装修日记,依葫芦画瓢吧
,跑了好几家最终确定方案,大家将就看下,未完待续......
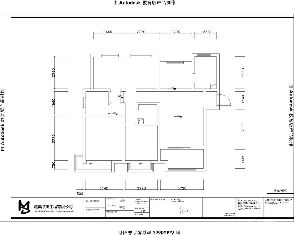
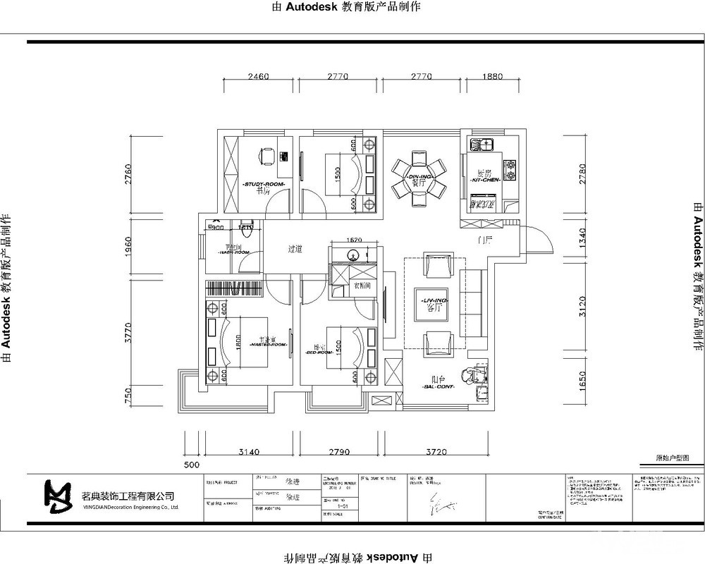
【建筑面积】:105个平方
【装修公司】:茗典装饰
【工程造价】:半包5万8
【装修风格】: 现代时尚风格
【 设 计 师 】:徐进
【项目经理】:陈定波
[
本帖最后由 安米 于 17-5-15 09:22 编辑
]
已有 老友记装饰客服
1
人打赏
2017-5-15 09:20
1楼
0511家装频道:本地家居服务平台,数万业主共同选择
只看该作者
分享本楼
苦海丶
来自 江苏省
精华 0
注册 2016-12-22
恭喜恭喜
---发自iPhone 6S Plus---
2017-5-15 09:26
2楼
MY0511相亲,一分钟注册,享一辈子幸福!
只看该作者
分享本楼
柏尔地板
来自 江苏省
精华 0
注册 2017-3-13
祝贺祝贺!
---发自梦溪论坛手机客户端---
2017-5-15 10:06
3楼
0511家装频道:本地家居服务平台,数万业主共同选择
只看该作者
分享本楼
博云物联玲玲
来自 0
精华
1
注册 2016-12-21
行业 商业贸易
恭喜楼主开帖
2017-5-15 10:28
4楼
0511家装频道:本地家居服务平台,数万业主共同选择
只看该作者
分享本楼
wm545193050
来自 江苏省
精华 0
注册 2014-11-25
---发自iPhone 6 Plus---
2017-5-15 12:23
5楼
找工作,就上MY0511!
只看该作者
分享本楼
优金瓷美缝
来自 江苏省
精华 0
注册 2016-10-20
行业 其它
恭喜
---发自iPhone 6---
2017-5-15 12:59
6楼
MY0511相亲,一分钟注册,享一辈子幸福!
只看该作者
分享本楼
欧福莱门业客服2
来自 江苏省
精华 0
注册 2011-6-4
行业 其它
恭喜开贴
2017-5-15 13:09
7楼
0511家装频道:本地家居服务平台,数万业主共同选择
只看该作者
分享本楼
Xiaying1991
来自 江苏省
精华 0
注册 2016-5-31
恭喜,
---发自iPhone 6 Plus---
2017-5-15 13:10
8楼
0511家装频道:本地家居服务平台,数万业主共同选择
只看该作者
分享本楼
南天竹
家装认证商户
来自 江苏省
精华 0
注册 2005-3-11
行业 房产建筑
恭喜楼主开工
2017-5-15 13:20
9楼
买房、卖房、租房上镇江房产网!
只看该作者
分享本楼
安米
来自 江苏省
精华 0
注册 2017-5-11
动手,未完待续......
[attach]22245133[/attach]
[
本帖最后由 安米 于 17-5-15 17:16 编辑
]
2017-5-15 17:13
10楼
买房、卖房、租房上镇江房产网!
只看该作者
分享本楼
坚美门窗
来自 江苏省
精华 0
注册 2017-4-8
恭喜
---发自OPPO R9---
2017-5-15 17:19
11楼
MY0511相亲,一分钟注册,享一辈子幸福!
只看该作者
分享本楼
A_佳安
来自 江苏省
精华 0
注册 2017-5-4
恭喜恭喜
---发自iPhone 6---
2017-5-15 17:34
12楼
[联宇电脑] 电脑组装\维修\升级\企业单位电脑维护!
只看该作者
分享本楼
密斯特王
来自 江苏省
精华
1
注册 2015-3-19
105能有4个房间,这个得房率可以啊
---发自iPhone SE---
2017-5-15 23:12
13楼
[联宇电脑] 电脑组装\维修\升级\企业单位电脑维护!
只看该作者
分享本楼
佳安舒适家
来自 江苏省
精华
55
注册 2017-2-10
恭喜开贴~
2017-5-16 10:39
14楼
买房、卖房、租房上镇江房产网!
只看该作者
分享本楼
特警力量
来自 江苏省
精华 0
注册 2015-5-23
我是佰巢美缝的,恭喜
2017-5-16 14:18
15楼
[联宇电脑] 电脑组装\维修\升级\企业单位电脑维护!
只看该作者
分享本楼
法狮龙艺术吊顶
来自 江苏省
精华 0
注册 2008-9-1
行业 商业贸易
得房率确实很高,我家的房子98 实际面积是89 小三房
2017-5-16 15:16
16楼
找工作,就上MY0511!
只看该作者
分享本楼
安米
来自 江苏省
精华 0
注册 2017-5-11
卫生间蓄水试验
卫生间蓄水试验
2017-5-18 09:15
17楼
买房、卖房、租房上镇江房产网!
只看该作者
分享本楼
兔宝宝地板
来自 江苏省
精华 0
注册 2016-6-18
2017-5-18 10:11
18楼
MY0511相亲,一分钟注册,享一辈子幸福!
只看该作者
分享本楼
欧福莱门业客服2
来自 江苏省
精华 0
注册 2011-6-4
行业 其它
恭喜开贴~
2017-5-18 10:35
19楼
买房、卖房、租房上镇江房产网!
只看该作者
分享本楼
双羽木门专卖
来自 江苏省
精华 0
注册 2017-5-19
欢迎新同学
2017-5-19 11:38
20楼
找工作,就上MY0511!
只看该作者
分享本楼
暖洋洋暖通
专版版主
来自 江苏省
精华 0
注册 2014-11-4
行业 房产建筑
2017-5-19 14:39
21楼
MY0511相亲,一分钟注册,享一辈子幸福!
只看该作者
分享本楼
老友记装饰黄
来自 江苏省
精华 0
注册 2016-6-23
老友记2017联盟放价
点击进入
六月装修去哪儿?找老友记就够了!设计、施工、主材让你样样满意
[
本帖最后由 老友记装饰黄 于 17-6-11 18:13 编辑
]
2017-5-19 15:30
22楼
买房、卖房、租房上镇江房产网!
只看该作者
分享本楼
兔宝宝地板
来自 江苏省
精华 0
注册 2016-6-18
恭喜开贴~
2017-5-19 16:34
23楼
0511家装频道:本地家居服务平台,数万业主共同选择
只看该作者
分享本楼
双羽木门专卖
来自 江苏省
精华 0
注册 2017-5-19
双羽木门(没什么比开业更优惠!!)
点击进入
双羽木门活动入口
[
本帖最后由 双羽木门专卖 于 17-6-28 11:35 编辑
]
2017-6-10 14:50
24楼
0511家装频道:本地家居服务平台,数万业主共同选择
只看该作者
分享本楼
暖洋洋暖通
专版版主
来自 江苏省
精华 0
注册 2014-11-4
行业 房产建筑
2017-6-10 22:27
25楼
找工作,就上MY0511!
只看该作者
分享本楼
返回家庭装修
快速回复主题
游客
您目前还是游客,请
登录
或
注册
您目前是游客,本帖已被系统设置了自动关闭,不可回复!
文明交流,理性发言
0/5000字
<
>
请在打开的新窗口中支付完成打赏
我已完成支付打赏
支付失败重新支付
其他金额
打赏金额:
元
确定
支付打赏
提 现
打赏人
打赏金额(元)
打赏时间
老友记装饰客服
1.00
2017-5-19 10:47
Powered by
Discuz! X 2
0.073479 s
清除 Cookies
-
镇江网友之家
-
手机版
论坛导航
关闭
吃喝玩乐
饮食男女
镇江钓友之家
菜菜鸟户外
镇江单车俱乐部
镜头里的镇江
畅游天下
猫狗总动员
视觉Coffeeshop摄影部落
花鸟鱼虫
婚姻.亲子.家庭
家有学子
谈婚论嫁
女性天地
母婴乐园
婚姻生活
梦溪佳缘
装修
家庭装修
装修招标
镇江室内设计师交流
装修商家直通车
你好,镇江!
百姓话题
我要买房
0511爱心家园
市场监管•12315热线
分类信息
生活服务
闲置转让
镇江二手房/镇江租房
镇江招聘求职
教育培训
镇江二手车
商铺厂房写字楼租售
宠物市场
运动健身
卡券交易
电脑维修升级
杂货铺
其他分类信息区
兴趣爱好
HiFi音响江城沙龙
镇江市美术家协会
我爱模型
车友俱乐部
车迷之家
汽车驾培中心
运动俱乐部
镇江市冬泳、铁人三项协会
聚焦足球
镇江羽毛球
镇江乒乓球协会
镇江网球协会
镇江市自行车运动协会
热爱篮球
动力机车
合作栏目
维权热线
天翼时代
色觉影像摄影工作室
站务区
疑问与建议
网络问政
市政府工作部门
垂直管理部门
党群工作部门
其他重点单位
辖市(区)