小区名称:沃德大都汇
所在楼层:27层
建筑面积:120
装修风格:简约混搭
包工方式:清包
设计师:本色
开工日期:尽快
装修预算:控制住啊
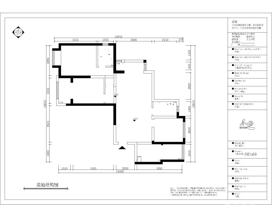
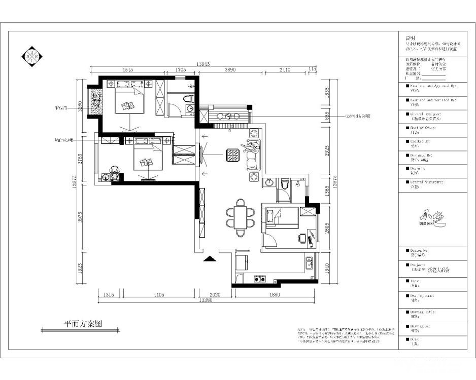
户型图:如下
拿到房子已经好几个月了,一直没有开工,最近不能再拖了,之前已经在家装版块学习了一段时间,想想不能再拖了,决定近期就开工,但考虑究竟是自己来呢还是请装潢公司呢?正巧那个这几天有朋友家的房子在装修,都是清包,师傅的手艺还可以,材料他们都买过了,都可以给我一个参考,所以决定清包啦!但我们家的房子户型不好,我想想,还是要单请个设计师,这样出来的效果肯定要比自己绞尽脑汁要好的多,毕竟人家是专业的。所以就在家装版块找找看有没有设计师,经过一番寻找,找到了本色设计师,经过微信聊天和见面咨询,感觉他的想法和建议还是比较实在和中肯的。还有好多我想不到的他都可以想到,专业人做专业是嘛!所以就这么愉快的决定了,就请他帮我设计了!
- 来自 江苏省
- 精华 0
- 注册 2012-7-26
- 行业 工业制造
- 来自 江苏省
- 精华 0
- 注册 2012-7-26
- 行业 工业制造
- 来自 江苏省
- 精华 0
- 注册 2014-1-20
- 行业 政府行政
又见到本色的作品了,我家也是本色设计的
,很满意,目前还在装修中。楼主清包可是很辛苦的,要有思想准备哦!有空来我的贴子看看,互相沟通学习!http://bbs.my0511.com/f95b-t6287880z-1-1
,很满意,目前还在装修中。楼主清包可是很辛苦的,要有思想准备哦!有空来我的贴子看看,互相沟通学习!http://bbs.my0511.com/f95b-t6287880z-1-1- 来自 江苏省
- 精华 0
- 注册 2017-2-13
- 行业 其它
- 来自 江苏省
- 精华 0
- 注册 2017-2-13
- 行业 其它
- 来自 江苏省
- 精华 0
- 注册 2012-7-26
- 行业 工业制造
- 来自 江苏省
- 精华 0
- 注册 2012-7-26
- 行业 工业制造
- 来自 江苏省
- 精华 0
- 注册 2012-7-26
- 行业 工业制造
- 来自 江苏省
- 精华 0
- 注册 2012-7-26
- 行业 工业制造
- 来自 江苏省
- 精华 0
- 注册 2012-7-26
- 行业 工业制造
- 来自 江苏省
- 精华 0
- 注册 2012-7-26
- 行业 工业制造
- 来自 江苏省
- 精华 0
- 注册 2012-7-26
- 行业 工业制造
- 来自 江苏省
- 精华 0
- 注册 2012-7-26
- 行业 工业制造
- 来自 江苏省
- 精华 0
- 注册 2012-7-26
- 行业 工业制造
- 来自 江苏省
- 精华 0
- 注册 2016-6-23
- 来自 江苏省
- 精华 0
- 注册 2012-7-26
- 行业 工业制造








到时候通知我去围观。





点击进入
请问这种是什么风格

