收藏本站
客户端
扫码下载客户端
官方微信
打开微信扫一扫
登录
|
注册
|
标题
标题
用户
全站首页
|
论坛导航
|
网络问政
|
招聘求职
|
买房租房
|
装修频道
|
生活服务
|
教育
|
相亲
|
亲子
|
美食
|
婚嫁
|
手机客户端
家有学子
|
母婴乐园
快捷导航
精彩推荐:
MY0511客户端下载
中信银行镇江分行
公益体彩 乐善人生
鹏龙鸿蒙
天然石材·人造石
»
梦溪论坛
»
家庭装修
» 上河御府装修小记
家庭装修
>
[装修日记]
上河御府装修小记
查看: 21980 回复: 75
快速回复
返回家庭装修
76
1/2
1
2
>
[装修日记]
上河御府装修小记
查看: 21980 回复: 75
上一主题
|
下一主题
zhaoting23
来自 江苏省
精华 0
注册 2017-3-13
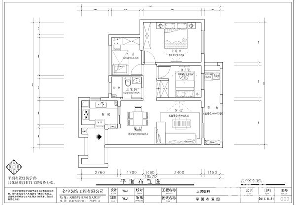
上河御府装修小记
【
小区名称】:上河御府
【所在楼层】:14层
【建筑面积】:88㎡
【装修风格】:现代简约
【包工方式】:半包
【装修公司】:镇江金宇装饰 设计师 袁静
【开工日期】:2017年6月3日
先上两张户型图啦
[
本帖最后由 zhaoting23 于 17-6-8 15:31 编辑
]
已有 伊慕装饰, 老友记装饰客服, 双羽木门专卖
3
人打赏
2017-6-8 15:29
1楼
0511家装频道:本地家居服务平台,数万业主共同选择
只看该作者
分享本楼
沉默的风风
来自 江苏省
精华 0
注册 2013-7-11
行业 政府行政
楼主什么价格买的
---发自iPhone 5S---
2017-6-8 15:33
2楼
买房、卖房、租房上镇江房产网!
只看该作者
分享本楼
最爱宜家
来自 0
精华 0
注册 2017-2-28
欢迎新同学
2017-6-8 15:53
3楼
找工作,就上MY0511!
只看该作者
分享本楼
wm545193050
来自 江苏省
精华 0
注册 2014-11-25
恭喜恭喜
---发自iPhone 6 Plus---
2017-6-8 15:59
4楼
0511家装频道:本地家居服务平台,数万业主共同选择
只看该作者
分享本楼
zhaoting23
来自 江苏省
精华 0
注册 2017-3-13
QUOTE:
原帖由
沉默的风风
于 17-6-8 15:33 发表
楼主什么价格买的
之前是8000一平米买的 赚了
2017-6-8 16:06
5楼
0511家装频道:本地家居服务平台,数万业主共同选择
只看该作者
分享本楼
zhaoting23
来自 江苏省
精华 0
注册 2017-3-13
QUOTE:
原帖由
最爱宜家
于 17-6-8 15:53 发表
欢迎新同学
嗯呢嗯呢
2017-6-8 16:07
6楼
找工作,就上MY0511!
只看该作者
分享本楼
zhaoting23
来自 江苏省
精华 0
注册 2017-3-13
QUOTE:
原帖由
wm545193050
于 17-6-8 15:59 发表
恭喜恭喜
谢谢 谢谢
2017-6-8 16:07
7楼
买房、卖房、租房上镇江房产网!
只看该作者
分享本楼
zhaoting23
来自 江苏省
精华 0
注册 2017-3-13
已经于6月3日开工,但迟迟没有空写日记 最近终于忙的差不多咯 可以静下来天天写啦
2017-6-8 16:09
8楼
0511家装频道:本地家居服务平台,数万业主共同选择
只看该作者
分享本楼
zhaoting23
来自 江苏省
精华 0
注册 2017-3-13
放两张开工照片
2017-6-8 16:12
9楼
找工作,就上MY0511!
只看该作者
分享本楼
“放羊”
来自 江苏省
精华 0
注册 2013-3-29
行业 其它
恭喜开工
2017-6-8 16:33
10楼
[联宇电脑] 电脑组装\维修\升级\企业单位电脑维护!
只看该作者
分享本楼
燕泥地热地板
来自 江苏省
精华 0
注册 2017-4-12
开工大吉
---发自OPPO---
2017-6-8 16:33
11楼
MY0511相亲,一分钟注册,享一辈子幸福!
只看该作者
分享本楼
delarge
来自 江苏省
精华
4
注册 2008-7-25
行业 房产建筑
恭喜开工
2017-6-8 18:26
12楼
MY0511相亲,一分钟注册,享一辈子幸福!
只看该作者
分享本楼
设计师的壁纸
来自 0
精华 0
注册 2017-2-11
行业 房产建筑
2017-6-8 21:21
13楼
MY0511相亲,一分钟注册,享一辈子幸福!
只看该作者
分享本楼
辰兴
来自 江苏省
精华 0
注册 2016-4-25
恭喜恭喜
---发自iPhone 6---
2017-6-8 22:23
14楼
MY0511相亲,一分钟注册,享一辈子幸福!
只看该作者
分享本楼
柏尔地板
来自 江苏省
精华 0
注册 2017-3-13
恭喜开工大吉,一切顺利!
---发自梦溪论坛手机客户端---
2017-6-8 22:24
15楼
找工作,就上MY0511!
只看该作者
分享本楼
zhaoting23
来自 江苏省
精华 0
注册 2017-3-13
QUOTE:
原帖由
“放羊”
于 17-6-8 16:33 发表
恭喜开工
谢谢啦
2017-6-9 11:25
16楼
找工作,就上MY0511!
只看该作者
分享本楼
zhaoting23
来自 江苏省
精华 0
注册 2017-3-13
QUOTE:
原帖由
燕泥地热地板
于 17-6-8 16:33 发表
开工大吉
嗯呢 谢谢
2017-6-9 11:26
17楼
0511家装频道:本地家居服务平台,数万业主共同选择
只看该作者
分享本楼
zhaoting23
来自 江苏省
精华 0
注册 2017-3-13
QUOTE:
原帖由
delarge
于 17-6-8 18:26 发表
恭喜开工
谢谢 谢谢啦
2017-6-9 11:27
18楼
MY0511相亲,一分钟注册,享一辈子幸福!
只看该作者
分享本楼
zhaoting23
来自 江苏省
精华 0
注册 2017-3-13
QUOTE:
原帖由
柏尔地板
于 17-6-8 22:24 发表
恭喜开工大吉,一切顺利!
恩恩 谢谢
2017-6-9 11:28
19楼
0511家装频道:本地家居服务平台,数万业主共同选择
只看该作者
分享本楼
zhaoting23
来自 江苏省
精华 0
注册 2017-3-13
吓到我了 第一次看拆除
2017-6-9 15:58
20楼
找工作,就上MY0511!
只看该作者
分享本楼
阿蛮达
来自 江苏省
精华 0
注册 2007-8-27
行业 房产建筑
15#楼啊
---发自小米4---
2017-6-10 10:47
21楼
找工作,就上MY0511!
只看该作者
分享本楼
双羽木门专卖
来自 江苏省
精华 0
注册 2017-5-19
欢迎新同学
2017-6-10 11:39
22楼
买房、卖房、租房上镇江房产网!
只看该作者
分享本楼
刘晓倩
来自 江苏省
精华 0
注册 2015-10-20
久扬地板,专做地板19年,信得过的老品牌,有空和家人亲临店面品鉴。地址:亿都建材城精品厅2B-206 电话-051188898499
2017-6-10 11:45
23楼
买房、卖房、租房上镇江房产网!
只看该作者
分享本楼
zhaoting23
来自 江苏省
精华 0
注册 2017-3-13
QUOTE:
原帖由
阿蛮达
于 17-6-10 10:47 发表
15#楼啊
不是的呢 1#的
2017-6-10 14:54
24楼
买房、卖房、租房上镇江房产网!
只看该作者
分享本楼
zhaoting23
来自 江苏省
精华 0
注册 2017-3-13
QUOTE:
原帖由
刘晓倩
于 17-6-10 11:45 发表
久扬地板,专做地板19年,信得过的老品牌,有空和家人亲临店面品鉴。地址:亿都建材城精品厅2B-206 电话-051188898499
好的好的
2017-6-10 14:54
25楼
0511家装频道:本地家居服务平台,数万业主共同选择
只看该作者
分享本楼
zhaoting23
来自 江苏省
精华 0
注册 2017-3-13
QUOTE:
原帖由
双羽木门专卖
于 17-6-10 11:39 发表
欢迎新同学
谢谢
2017-6-10 14:54
26楼
[联宇电脑] 电脑组装\维修\升级\企业单位电脑维护!
只看该作者
分享本楼
zhaoting23
来自 江苏省
精华 0
注册 2017-3-13
装修真是件头疼的事 先来几张我喜欢的风格 大家看看哪种好看
2017-6-10 14:58
27楼
找工作,就上MY0511!
只看该作者
分享本楼
zhaoting23
来自 江苏省
精华 0
注册 2017-3-13
2017-6-10 14:59
28楼
MY0511相亲,一分钟注册,享一辈子幸福!
只看该作者
分享本楼
刘大锤
来自 0
精华 0
注册 2017-3-15
QUOTE:
原帖由
zhaoting23
于 2017-6-9 15:58 发表
[attach]22376434[/attach]
[attach]22376433[/attach]
吓到我了 第一次看拆除
这是结构柱子
2017-6-10 14:59
29楼
买房、卖房、租房上镇江房产网!
只看该作者
分享本楼
zhaoting23
来自 江苏省
精华 0
注册 2017-3-13
大家觉得哪种好看呢
2017-6-10 15:00
30楼
0511家装频道:本地家居服务平台,数万业主共同选择
只看该作者
分享本楼
zhaoting23
来自 江苏省
精华 0
注册 2017-3-13
QUOTE:
原帖由
刘大锤
于 17-6-10 14:59 发表
这是结构柱子
看起来你肯定懂的比我多 多来给我提提意见哦
2017-6-10 15:01
31楼
MY0511相亲,一分钟注册,享一辈子幸福!
只看该作者
分享本楼
镇江欧意橱柜
来自 江苏省
精华 0
注册 2016-11-7
效果图挺清爽的,楼主喜欢小清新
2017-6-10 15:04
32楼
MY0511相亲,一分钟注册,享一辈子幸福!
只看该作者
分享本楼
庚午路人
来自 江苏省
精华 0
注册 2016-6-6
中央空调
您好,如果有中央空调或者地暖的需求可以找我,我这边三菱电机,大金和美的都做,地暖是沃乐夫和威能,品牌都是一线品牌,技术上都是可靠的,有完善的售后服务。上河御府这个小区我们刚好有个工地前几天刚刚完工,方便的话我们可以约个时间去您房子那量下面积,我这边给您做个方案,您可以对比一下。我的电话是17715229766(魏).期待您的回音。
2017-6-10 15:20
33楼
[联宇电脑] 电脑组装\维修\升级\企业单位电脑维护!
只看该作者
分享本楼
客来福移门衣柜
来自 江苏省
精华 0
注册 2014-4-16
行业 房产建筑
开工大吉
---发自华为---
2017-6-10 15:36
34楼
[联宇电脑] 电脑组装\维修\升级\企业单位电脑维护!
只看该作者
分享本楼
暖洋洋暖通
专版版主
来自 江苏省
精华 0
注册 2014-11-4
行业 房产建筑
2017-6-10 22:25
35楼
找工作,就上MY0511!
只看该作者
分享本楼
zhaoting23
来自 江苏省
精华 0
注册 2017-3-13
QUOTE:
原帖由
镇江欧意橱柜
于 17-6-10 15:04 发表
效果图挺清爽的,楼主喜欢小清新
是的呢!看着舒服
2017-6-11 10:03
36楼
找工作,就上MY0511!
只看该作者
分享本楼
zhaoting23
来自 江苏省
精华 0
注册 2017-3-13
QUOTE:
原帖由
庚午路人
于 17-6-10 15:20 发表
您好,如果有中央空调或者地暖的需求可以找我,我这边三菱电机,大金和美的都做,地暖是沃乐夫和威能,品牌都是一线品牌,技术上都是可靠的,有完善的售后服务。上河御府这个小区我们刚好有个工地前几天刚刚完工, ...
好的哦 需要的话联系你
2017-6-11 10:04
37楼
[联宇电脑] 电脑组装\维修\升级\企业单位电脑维护!
只看该作者
分享本楼
zhaoting23
来自 江苏省
精华 0
注册 2017-3-13
QUOTE:
原帖由
客来福移门衣柜
于 17-6-10 15:36 发表
开工大吉
谢谢啦
2017-6-11 10:04
38楼
找工作,就上MY0511!
只看该作者
分享本楼
zhaoting23
来自 江苏省
精华 0
注册 2017-3-13
我又来咯
2017-6-11 10:05
39楼
0511家装频道:本地家居服务平台,数万业主共同选择
只看该作者
分享本楼
zhaoting23
来自 江苏省
精华 0
注册 2017-3-13
2017-6-11 10:06
40楼
MY0511相亲,一分钟注册,享一辈子幸福!
只看该作者
分享本楼
zhaoting23
来自 江苏省
精华 0
注册 2017-3-13
准备砌墙啦
2017-6-12 09:53
41楼
0511家装频道:本地家居服务平台,数万业主共同选择
只看该作者
分享本楼
zhaoting23
来自 江苏省
精华 0
注册 2017-3-13
今天项目经理和设计师去现场跟砌墙的交底了 还让我去看看 其实我去不去都无所谓的啦 放心金宇
2017-6-12 10:06
42楼
MY0511相亲,一分钟注册,享一辈子幸福!
只看该作者
分享本楼
zhaoting23
来自 江苏省
精华 0
注册 2017-3-13
工人真的厉害 一天全都砌完了 赞
2017-6-12 17:49
43楼
0511家装频道:本地家居服务平台,数万业主共同选择
只看该作者
分享本楼
delarge
来自 江苏省
精华
4
注册 2008-7-25
行业 房产建筑
墙上还有画?
2017-6-12 23:11
44楼
[联宇电脑] 电脑组装\维修\升级\企业单位电脑维护!
只看该作者
分享本楼
老天爱笨小孩
来自 江苏省
精华 0
注册 2007-4-10
行业 金融保险
我也很好奇,墙上为什么会有画?我家怎么没有,
2017-6-13 09:06
45楼
找工作,就上MY0511!
只看该作者
分享本楼
wj03011133
来自 0
精华 0
注册 2005-6-13
楼主买的一号楼二单元88.8户型上河样板房,开发商画的
2017-6-13 10:10
46楼
买房、卖房、租房上镇江房产网!
只看该作者
分享本楼
zhaoting23
来自 江苏省
精华 0
注册 2017-3-13
QUOTE:
原帖由
delarge
于 17-6-12 23:11 发表
墙上还有画?
是的 之前是开发商他们做的样板房
2017-6-14 14:16
47楼
[联宇电脑] 电脑组装\维修\升级\企业单位电脑维护!
只看该作者
分享本楼
zhaoting23
来自 江苏省
精华 0
注册 2017-3-13
QUOTE:
原帖由
老天爱笨小孩
于 17-6-13 09:06 发表
我也很好奇,墙上为什么会有画?我家怎么没有,
哈哈哈 样板房
2017-6-14 14:16
48楼
[联宇电脑] 电脑组装\维修\升级\企业单位电脑维护!
只看该作者
分享本楼
zhaoting23
来自 江苏省
精华 0
注册 2017-3-13
QUOTE:
原帖由
wj03011133
于 17-6-13 10:10 发表
楼主买的一号楼二单元88.8户型上河样板房,开发商画的
是滴
2017-6-14 14:16
49楼
MY0511相亲,一分钟注册,享一辈子幸福!
只看该作者
分享本楼
zhaoting23
来自 江苏省
精华 0
注册 2017-3-13
墙都砌好了 真的是速度呢 马这两天水电就要进场啦
2017-6-14 15:29
50楼
[联宇电脑] 电脑组装\维修\升级\企业单位电脑维护!
只看该作者
分享本楼
返回家庭装修
76
1/2
1
2
>
快速回复主题
游客
您目前还是游客,请
登录
或
注册
您目前是游客,本帖已被系统设置了自动关闭,不可回复!
文明交流,理性发言
0/5000字
<
>
请在打开的新窗口中支付完成打赏
我已完成支付打赏
支付失败重新支付
其他金额
打赏金额:
元
确定
支付打赏
提 现
打赏人
打赏金额(元)
打赏时间
伊慕装饰
1.00
2017-6-8 15:53
老友记装饰客服
1.00
2017-6-10 11:31
双羽木门专卖
1.00
2017-7-13 15:43
Powered by
Discuz! X 2
0.057812 s
清除 Cookies
-
镇江网友之家
-
手机版
论坛导航
关闭
吃喝玩乐
饮食男女
镇江钓友之家
菜菜鸟户外
镇江单车俱乐部
镜头里的镇江
畅游天下
猫狗总动员
视觉Coffeeshop摄影部落
花鸟鱼虫
婚姻.亲子.家庭
家有学子
谈婚论嫁
女性天地
母婴乐园
婚姻生活
梦溪佳缘
装修
家庭装修
装修招标
镇江室内设计师交流
装修商家直通车
你好,镇江!
百姓话题
我要买房
0511爱心家园
市场监管•12315热线
分类信息
生活服务
闲置转让
镇江二手房/镇江租房
镇江招聘求职
教育培训
镇江二手车
商铺厂房写字楼租售
宠物市场
运动健身
卡券交易
电脑维修升级
杂货铺
其他分类信息区
兴趣爱好
HiFi音响江城沙龙
镇江市美术家协会
我爱模型
车友俱乐部
车迷之家
汽车驾培中心
运动俱乐部
镇江市冬泳、铁人三项协会
聚焦足球
镇江羽毛球
镇江乒乓球协会
镇江网球协会
镇江市自行车运动协会
热爱篮球
动力机车
合作栏目
维权热线
天翼时代
色觉影像摄影工作室
站务区
疑问与建议
网络问政
市政府工作部门
垂直管理部门
党群工作部门
其他重点单位
辖市(区)