收藏本站
客户端
扫码下载客户端
官方微信
打开微信扫一扫
登录
|
注册
|
标题
标题
用户
全站首页
|
论坛导航
|
网络问政
|
招聘求职
|
买房租房
|
装修频道
|
生活服务
|
教育
|
相亲
|
亲子
|
美食
|
婚嫁
|
手机客户端
家有学子
|
母婴乐园
快捷导航
精彩推荐:
MY0511客户端下载
中信银行镇江分行
公益体彩 乐善人生
鹏龙鸿蒙
天然石材·人造石
»
梦溪论坛
»
家庭装修
» 孔雀苑现代简约风准备中!
家庭装修
>
[装修日记]
孔雀苑现代简约风准备中!
查看: 44378 回复: 118
快速回复
返回家庭装修
119
1/3
1
2
3
>
[装修日记]
孔雀苑现代简约风准备中!
查看: 44378 回复: 118
上一主题
|
下一主题
幸福随行
来自 江苏省
精华 0
注册 2010-10-22
行业 轻工化工
孔雀苑现代简约风准备中!
孔雀苑房子拿下已两年,终于要动工了,本想年后开工,可到处涨价声一片,只好硬着头皮开工
,跑了快两个月,主要的基本搞定,准备28日开工,前来报个道
。希望接下来一切顺利!装修公司:金佰威
主材:厨柜:欧派
地板:久盛
瓷砖:罗曼蒂克
中央空调+地暖:大金、菲斯曼
定制衣柜:左尚明舍
封阳台及窗户:维盾
门:未定
床及床垫:慕思
儿童房:喜梦宝
淋浴房:莱博顿
洁具:未定
集成灶:美大
餐桌:挪亚家
楼梯:戴氏楼梯
背景墙:简一
欢迎加入家装官方VIP别墅QQ群 群号:565444352
[
本帖最后由 my0511菲雪 于 17-12-21 15:29 编辑
]
已有 老友记装饰客服, 优金瓷美缝
2
人打赏
2017-12-21 09:31
1楼
买房、卖房、租房上镇江房产网!
只看该作者
分享本楼
前程设计中心
专版版主
来自 江苏省
精华
9
注册 2010-3-23
行业 房产建筑
恭喜开帖
2017-12-21 09:33
2楼
找工作,就上MY0511!
只看该作者
分享本楼
抹茶007
来自 江苏省
精华 0
注册 2017-12-18
原来是邻居啊!恭喜恭喜!
---发自vivo---
2017-12-21 09:57
3楼
找工作,就上MY0511!
只看该作者
分享本楼
柏尔地板
来自 江苏省
精华 0
注册 2017-3-13
恭喜恭喜
---发自梦溪论坛手机客户端---
2017-12-21 10:19
4楼
0511家装频道:本地家居服务平台,数万业主共同选择
只看该作者
分享本楼
幸福随行
来自 江苏省
精华 0
注册 2010-10-22
行业 轻工化工
补充一下,装饰公司:半包,预算:60(估计危险)。
2017-12-21 10:22
5楼
MY0511相亲,一分钟注册,享一辈子幸福!
只看该作者
分享本楼
金佰威装饰集团
来自 江苏省
精华
30
注册 2015-9-29
行业 房产建筑
恭喜恭喜
2017-12-21 10:24
6楼
[联宇电脑] 电脑组装\维修\升级\企业单位电脑维护!
只看该作者
分享本楼
宇祥装饰客服
来自 江苏省
精华
8
注册 2010-9-13
行业 房产建筑
恭喜开贴
2017-12-21 10:27
7楼
0511家装频道:本地家居服务平台,数万业主共同选择
只看该作者
分享本楼
法诗顿滑动门
来自 江苏省
精华 0
注册 2017-9-5
恭喜
---发自华为---
2017-12-21 10:35
8楼
0511家装频道:本地家居服务平台,数万业主共同选择
只看该作者
分享本楼
幸福随行
来自 江苏省
精华 0
注册 2010-10-22
行业 轻工化工
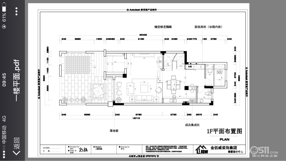
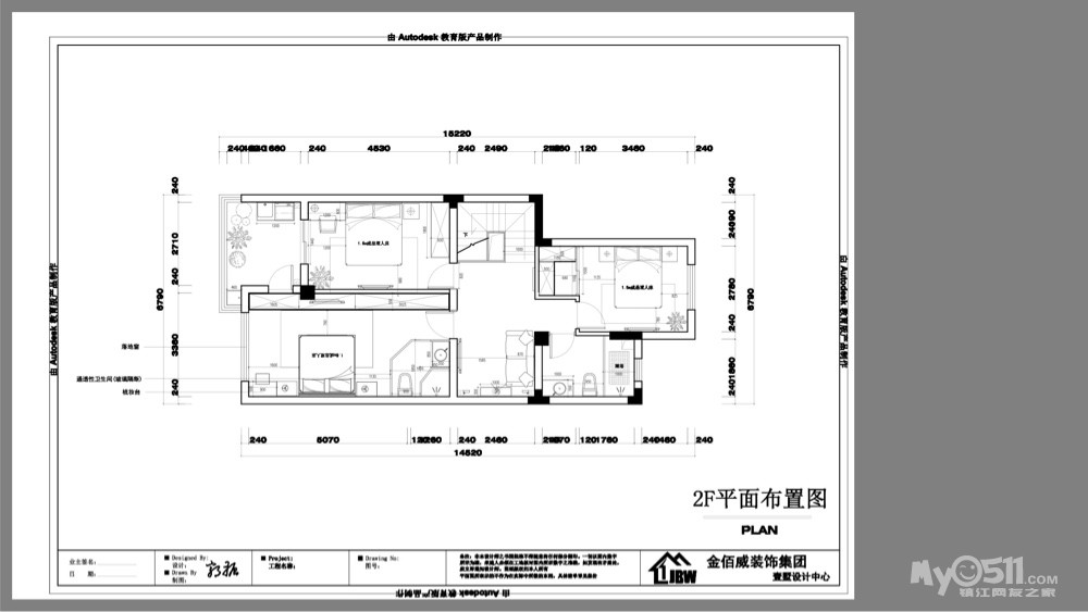
小区名称:孔雀苑
建筑面积:168平方(赠送地下室和院子)
装修风格:现代简约
包工方式:半包
装修公司:金佰威
设计师:郭振
开工日期:2017年12月28日
装修预算:60万
平面图
设计效果图
设计师
---发自iPhone 6S Plus---
2017-12-21 13:30
9楼
0511家装频道:本地家居服务平台,数万业主共同选择
只看该作者
分享本楼
面对面原创
家装认证商户
来自 江苏省
精华 0
注册 2009-10-17
行业 房产建筑
恭喜楼主开贴大吉
2017-12-21 14:10
10楼
0511家装频道:本地家居服务平台,数万业主共同选择
只看该作者
分享本楼
wm545193050
来自 江苏省
精华 0
注册 2014-11-25
移门可以找我,厂家直销
---发自iPhone 6 Plus---
2017-12-21 14:23
11楼
0511家装频道:本地家居服务平台,数万业主共同选择
只看该作者
分享本楼
辰兴
来自 江苏省
精华 0
注册 2016-4-25
竹木纤维门可以放心使用,不用担心受潮。没有密度板 环保耐用
---发自iPhone 6---
2017-12-21 14:49
12楼
[联宇电脑] 电脑组装\维修\升级\企业单位电脑维护!
只看该作者
分享本楼
菩提树
来自 江苏省
精华 0
注册 2005-11-11
2017-12-21 15:09
13楼
MY0511相亲,一分钟注册,享一辈子幸福!
只看该作者
分享本楼
山鸡的诱惑
来自 江苏省
精华 0
注册 2017-12-13
2017-12-21 15:10
14楼
买房、卖房、租房上镇江房产网!
只看该作者
分享本楼
18362888595
来自 江苏省
精华 0
注册 2016-5-23
行业 其它
感谢业主的认可和信任
2017-12-21 16:48
15楼
0511家装频道:本地家居服务平台,数万业主共同选择
只看该作者
分享本楼
18362888595
来自 江苏省
精华 0
注册 2016-5-23
行业 其它
恭喜开贴,占楼占楼占楼。
2017-12-21 16:50
16楼
MY0511相亲,一分钟注册,享一辈子幸福!
只看该作者
分享本楼
伊慕装饰
专版版主
来自 江苏省
精华 0
注册 2014-10-16
欢迎新同学
---发自梦溪论坛手机客户端---
2017-12-21 16:51
17楼
买房、卖房、租房上镇江房产网!
只看该作者
分享本楼
金佰威装饰集团
来自 江苏省
精华
30
注册 2015-9-29
行业 房产建筑
2017-12-21 17:30
18楼
0511家装频道:本地家居服务平台,数万业主共同选择
只看该作者
分享本楼
俩千金的妈
来自 江苏省
精华 0
注册 2017-12-4
恭喜开帖 木门可以找我 价格优惠
---发自vivo---
2017-12-21 20:42
19楼
[联宇电脑] 电脑组装\维修\升级\企业单位电脑维护!
只看该作者
分享本楼
懒鼠
来自 江苏省
精华 0
注册 2008-7-5
行业 其它
你是霞?
---发自三星---
2017-12-21 20:47
20楼
找工作,就上MY0511!
只看该作者
分享本楼
幸福随行
来自 江苏省
精华 0
注册 2010-10-22
行业 轻工化工
QUOTE:
原帖由
懒鼠
于 17-12-21 20:47 发表
你是霞?
熟人?
---发自iPhone 6S Plus---
2017-12-21 22:24
21楼
找工作,就上MY0511!
只看该作者
分享本楼
幸福随行
来自 江苏省
精华 0
注册 2010-10-22
行业 轻工化工
QUOTE:
原帖由
抹茶007
于 17-12-21 09:57 发表
原来是邻居啊!恭喜恭喜!
---发自iPhone 6S Plus---
2017-12-21 22:48
22楼
[联宇电脑] 电脑组装\维修\升级\企业单位电脑维护!
只看该作者
分享本楼
懒鼠
来自 江苏省
精华 0
注册 2008-7-5
行业 其它
QUOTE:
原帖由
幸福随行
于 17-12-21 22:24 发表
熟人?
当然
---发自iPhone 6S Plus---
2017-12-22 07:45
23楼
[联宇电脑] 电脑组装\维修\升级\企业单位电脑维护!
只看该作者
分享本楼
懒鼠
来自 江苏省
精华 0
注册 2008-7-5
行业 其它
猜猜吧
---发自iPhone 6S Plus---
2017-12-22 07:45
24楼
MY0511相亲,一分钟注册,享一辈子幸福!
只看该作者
分享本楼
幸福随行
来自 江苏省
精华 0
注册 2010-10-22
行业 轻工化工
QUOTE:
原帖由
懒鼠
于 17-12-22 07:45 发表
猜猜吧
我唯一能猜的是看手机型号来用排除法
---发自iPhone 6S Plus---
2017-12-22 09:11
25楼
MY0511相亲,一分钟注册,享一辈子幸福!
只看该作者
分享本楼
幸福随行
来自 江苏省
精华 0
注册 2010-10-22
行业 轻工化工
QUOTE:
原帖由
懒鼠
于 17-12-22 07:45 发表
猜猜吧
乔老爷?
---发自iPhone 6S Plus---
2017-12-22 09:12
26楼
[联宇电脑] 电脑组装\维修\升级\企业单位电脑维护!
只看该作者
分享本楼
金佰威装饰集团
来自 江苏省
精华
30
注册 2015-9-29
行业 房产建筑
2017-12-22 12:08
27楼
MY0511相亲,一分钟注册,享一辈子幸福!
只看该作者
分享本楼
懒鼠
来自 江苏省
精华 0
注册 2008-7-5
行业 其它
你家老公与我家老公是同事,刚刚买了房
---发自iPhone 6S Plus---
2017-12-22 15:41
28楼
买房、卖房、租房上镇江房产网!
只看该作者
分享本楼
山水庭
来自 江苏省
精华 0
注册 2017-11-30
院子设计可以联系我
---发自OPPO---
2017-12-22 19:01
29楼
买房、卖房、租房上镇江房产网!
只看该作者
分享本楼
delarge
来自 江苏省
精华
4
注册 2008-7-25
行业 房产建筑
恭喜开贴
2017-12-22 20:40
30楼
买房、卖房、租房上镇江房产网!
只看该作者
分享本楼
上臣地板镇江店
来自 江苏省
精华 0
注册 2014-10-12
2017-12-23 15:04
31楼
0511家装频道:本地家居服务平台,数万业主共同选择
只看该作者
分享本楼
海文装饰客服
专版版主
来自 江苏省
精华
53
注册 2016-5-6
恭喜楼主开贴
2017-12-23 16:00
32楼
MY0511相亲,一分钟注册,享一辈子幸福!
只看该作者
分享本楼
syhsopo
来自 江苏省
精华 0
注册 2006-6-12
涨声一片33
2017-12-23 16:46
33楼
0511家装频道:本地家居服务平台,数万业主共同选择
只看该作者
分享本楼
幸福随行
来自 江苏省
精华 0
注册 2010-10-22
行业 轻工化工
又忙了一天,匆匆忙忙的又定好了木门,虽然和设计师的设计有些不合
---发自华为---
2017-12-24 03:28
34楼
[联宇电脑] 电脑组装\维修\升级\企业单位电脑维护!
只看该作者
分享本楼
金佰威装饰集团
来自 江苏省
精华
30
注册 2015-9-29
行业 房产建筑
:
2017-12-24 13:36
35楼
找工作,就上MY0511!
只看该作者
分享本楼
18362888595
来自 江苏省
精华 0
注册 2016-5-23
行业 其它
QUOTE:
原帖由
幸福随行
于 17-12-24 03:28 发表
又忙了一天,匆匆忙忙的又定好了木门,虽然和设计师的设计有些不合
哈哈,稍微调整下造型就OK
2017-12-24 13:42
36楼
找工作,就上MY0511!
只看该作者
分享本楼
金佰威装饰集团
来自 江苏省
精华
30
注册 2015-9-29
行业 房产建筑
2017-12-24 17:23
37楼
[联宇电脑] 电脑组装\维修\升级\企业单位电脑维护!
只看该作者
分享本楼
幸福随行
来自 江苏省
精华 0
注册 2010-10-22
行业 轻工化工
QUOTE:
原帖由
懒鼠
于 17-12-22 15:41 发表
你家老公与我家老公是同事,刚刚买了房
知道了
---发自iPhone 6S Plus---
2017-12-24 20:29
38楼
[联宇电脑] 电脑组装\维修\升级\企业单位电脑维护!
只看该作者
分享本楼
金佰威装饰集团
来自 江苏省
精华
30
注册 2015-9-29
行业 房产建筑
2017-12-25 12:53
39楼
0511家装频道:本地家居服务平台,数万业主共同选择
只看该作者
分享本楼
博云物联玲玲
来自 0
精华
1
注册 2016-12-21
行业 商业贸易
恭喜楼主开帖,装修不易,还好这个冬天不是很冷,愿装修一切顺利
2017-12-25 13:00
40楼
买房、卖房、租房上镇江房产网!
只看该作者
分享本楼
幸福随行
来自 江苏省
精华 0
注册 2010-10-22
行业 轻工化工
QUOTE:
原帖由
博云物联玲玲
于 17-12-25 13:00 发表
恭喜楼主开帖,装修不易,还好这个冬天不是很冷,愿装修一切顺利
谢谢!
---发自iPhone 6S Plus---
2017-12-25 19:12
41楼
MY0511相亲,一分钟注册,享一辈子幸福!
只看该作者
分享本楼
幸福随行
来自 江苏省
精华 0
注册 2010-10-22
行业 轻工化工
今天来说说买房的经历:因为有点恐高,目标锁定在多层其实当时新开的楼盘有多层的也不是很多,我是比较中意西片区,觉得环境比较好,又是学区房,先森倒希望和现在的房子买得近一些,后来应朋友之邀去看了孔雀苑的样板房,很是喜欢,最主要有个院子,接地气啊
征求家里父母的同意(家长的意见还是要听的
)三个好友就一起团购了三户(其中一个还是原本准备在常州买房的),在付尾款的时候出现了一点小小的波折,最后联系了华夏幸福北京总部得以圆满的解决,大公司还是值得信任的
直到今年的建材价格大幅上涨,装修才被提上了日程
---发自iPhone 6S Plus---
2017-12-25 19:41
42楼
0511家装频道:本地家居服务平台,数万业主共同选择
只看该作者
分享本楼
懒鼠
来自 江苏省
精华 0
注册 2008-7-5
行业 其它
QUOTE:
原帖由
幸福随行
于 17-12-25 19:41 发表
今天来说说买房的经历:因为有点恐高,目标锁定在多层其实当时新开的楼盘有多层的也不是很多,我是比较中意西片区,觉得环境比较好,又是学区房,先森倒希望和现在的房子买得近一些,后来应朋友之邀去看了孔雀苑的 ...
我家暂时不装,只能你们,羡慕啊
---发自iPhone 6S Plus---
2017-12-25 20:55
43楼
[联宇电脑] 电脑组装\维修\升级\企业单位电脑维护!
只看该作者
分享本楼
金佰威装饰集团
来自 江苏省
精华
30
注册 2015-9-29
行业 房产建筑
2017-12-26 08:58
44楼
找工作,就上MY0511!
只看该作者
分享本楼
积家装饰
来自 江苏省
精华 0
注册 2017-7-17
装修日记
恭喜开贴
2017-12-26 10:18
45楼
买房、卖房、租房上镇江房产网!
只看该作者
分享本楼
幸福随行
来自 江苏省
精华 0
注册 2010-10-22
行业 轻工化工
我们都是冲动加极有效率之人,说干就干,第一步选择一个合适的装修公司,为了避免挑花了眼,就挑选了三家口碑较好的进行对比,最后选择了金佰威,也有一个原因是熟人推荐,其实其他的设计师也很优秀,在此要跟其他二位设计师说抱歉了,辛苦他们了,我一直想要的风格是台式风黑白灰,有高冷的感觉,看上去很有质感,效果图出来后客厅整体色调偏浅,感觉更温暖一些,不会那么太压抑,总体很满意,合作才刚刚开始,金佰威公司究竟如何,我们拭目以待
---发自iPhone 6S Plus---
2017-12-27 06:08
46楼
[联宇电脑] 电脑组装\维修\升级\企业单位电脑维护!
只看该作者
分享本楼
幸福随行
来自 江苏省
精华 0
注册 2010-10-22
行业 轻工化工
设计师郭振在和我们的沟通中总有一些自己的想法在里面,这一点还是要赞扬的,如果设计师纯粹按照客户的想法来做,我要设计师干嘛呢,难道单纯的就是为了出张CAD图纸吗?对于设计他们比我们更专业,我更愿意将我的需求和他的专业结合起来,达到一个完美的效果!我希望我家的设计和别人是与众不同的,在能力范围之内适当的走一些小众路线也是可以的
---发自iPhone 6S Plus---
2017-12-27 06:29
47楼
[联宇电脑] 电脑组装\维修\升级\企业单位电脑维护!
只看该作者
分享本楼
幸福随行
来自 江苏省
精华 0
注册 2010-10-22
行业 轻工化工
装修效果图一出来,跑主材更有针对性,我尽最大能力还原效果图,大半个月的奔波,主材大部分搞定,先森说你写装修日记吧,我说不写,我哪有空,我说要么你写,所以就有了开帖前半部分有一句没一句的,我实在看不下去了
,只能接过来继续完成,正好借此机会记录小家的点点滴滴,具体的主材订制细节完成到哪步再细说
---发自iPhone 6S Plus---
2017-12-27 06:46
48楼
[联宇电脑] 电脑组装\维修\升级\企业单位电脑维护!
只看该作者
分享本楼
金佰威装饰集团
来自 江苏省
精华
30
注册 2015-9-29
行业 房产建筑
2017-12-27 17:16
49楼
找工作,就上MY0511!
只看该作者
分享本楼
幸福随行
来自 江苏省
精华 0
注册 2010-10-22
行业 轻工化工
明天早上8时18开工了!期待中
---发自华为---
2017-12-27 22:34
50楼
MY0511相亲,一分钟注册,享一辈子幸福!
只看该作者
分享本楼
返回家庭装修
119
1/3
1
2
3
>
快速回复主题
游客
您目前还是游客,请
登录
或
注册
您目前是游客,本帖已被系统设置了自动关闭,不可回复!
文明交流,理性发言
0/5000字
<
>
请在打开的新窗口中支付完成打赏
我已完成支付打赏
支付失败重新支付
其他金额
打赏金额:
元
确定
支付打赏
提 现
打赏人
打赏金额(元)
打赏时间
老友记装饰客服
1.00
2017-12-21 15:04
优金瓷美缝
1.88
2017-12-22 14:20
Powered by
Discuz! X 2
0.053814 s
清除 Cookies
-
镇江网友之家
-
手机版
论坛导航
关闭
吃喝玩乐
饮食男女
镇江钓友之家
菜菜鸟户外
镇江单车俱乐部
镜头里的镇江
畅游天下
猫狗总动员
视觉Coffeeshop摄影部落
花鸟鱼虫
婚姻.亲子.家庭
家有学子
谈婚论嫁
女性天地
母婴乐园
婚姻生活
梦溪佳缘
装修
家庭装修
装修招标
镇江室内设计师交流
装修商家直通车
你好,镇江!
百姓话题
我要买房
0511爱心家园
市场监管•12315热线
分类信息
生活服务
闲置转让
镇江二手房/镇江租房
镇江招聘求职
教育培训
镇江二手车
商铺厂房写字楼租售
宠物市场
运动健身
卡券交易
电脑维修升级
杂货铺
其他分类信息区
兴趣爱好
HiFi音响江城沙龙
镇江市美术家协会
我爱模型
车友俱乐部
车迷之家
汽车驾培中心
运动俱乐部
镇江市冬泳、铁人三项协会
聚焦足球
镇江羽毛球
镇江乒乓球协会
镇江网球协会
镇江市自行车运动协会
热爱篮球
动力机车
合作栏目
维权热线
天翼时代
色觉影像摄影工作室
站务区
疑问与建议
网络问政
市政府工作部门
垂直管理部门
党群工作部门
其他重点单位
辖市(区)