收藏本站
客户端
扫码下载客户端
官方微信
打开微信扫一扫
登录
|
注册
|
标题
标题
用户
全站首页
|
论坛导航
|
网络问政
|
招聘求职
|
买房租房
|
装修频道
|
生活服务
|
教育
|
相亲
|
亲子
|
美食
|
婚嫁
|
手机客户端
家有学子
|
母婴乐园
快捷导航
精彩推荐:
MY0511客户端下载
中信银行镇江分行
公益体彩 乐善人生
鹏龙鸿蒙
天然石材·人造石
»
梦溪论坛
»
家庭装修
» 毕业照来来一波
家庭装修
>
[完工毕业照]
毕业照来来一波
查看: 14468 回复: 13
快速回复
返回家庭装修
[完工毕业照]
毕业照来来一波
查看: 14468 回复: 13
上一主题
|
下一主题
simon1942
来自 江苏省
精华 0
注册 2010-4-26
行业 房产建筑
毕业照来来一波
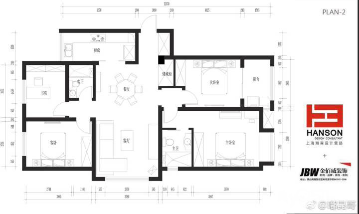
【小区名称】:沃得大都汇
【所在楼层】:21
【建筑面积】:126
【装修风格】:没什么风格
【包工方式】:半包
【装修公司】:金佰威装饰.
【开工日期】:2017年2月16日
【装修预算】:25万
---发自iPhone 6S---
已有
0
人打赏
2018-1-12 08:23
1楼
[联宇电脑] 电脑组装\维修\升级\企业单位电脑维护!
只看该作者
分享本楼
simon1942
来自 江苏省
精华 0
注册 2010-4-26
行业 房产建筑
继续
---发自iPhone 6S---
2018-1-12 08:25
2楼
0511家装频道:本地家居服务平台,数万业主共同选择
只看该作者
分享本楼
sachlav
来自 江苏省
精华 0
注册 2009-6-11
行业 工业制造
房产证办好了?
---发自梦溪论坛手机客户端---
2018-1-12 08:31
3楼
[联宇电脑] 电脑组装\维修\升级\企业单位电脑维护!
只看该作者
分享本楼
饭冰冰吃冰
来自 江苏省
精华 0
注册 2014-12-25
行业 教育科研
很温馨,有家的感觉
---发自OPPO---
2018-1-12 08:51
4楼
0511家装频道:本地家居服务平台,数万业主共同选择
只看该作者
分享本楼
宇祥装饰客服
来自 江苏省
精华
8
注册 2010-9-13
行业 房产建筑
毕业照不错
2018-1-12 09:16
5楼
[联宇电脑] 电脑组装\维修\升级\企业单位电脑维护!
只看该作者
分享本楼
法诗顿滑动门
来自 江苏省
精华 0
注册 2017-9-5
装修的不错唉
---发自华为---
2018-1-12 09:31
6楼
0511家装频道:本地家居服务平台,数万业主共同选择
只看该作者
分享本楼
都天夫人
来自 江苏省
精华 0
注册 2017-8-29
很
除公摊,套内面积126?花了25万,我好害怕我129平,未来的装修花费!
---发自梦溪论坛手机客户端---
2018-1-12 10:31
7楼
0511家装频道:本地家居服务平台,数万业主共同选择
只看该作者
分享本楼
欧典装潢
来自 江苏省
精华 0
注册 2017-2-16
行业 房产建筑
---发自梦溪论坛手机客户端---
2018-1-12 11:15
8楼
MY0511相亲,一分钟注册,享一辈子幸福!
只看该作者
分享本楼
3石悠魅
来自 江苏省
精华 0
注册 2011-6-8
行业 其它
套内不会126吧?
2018-1-12 12:26
9楼
[联宇电脑] 电脑组装\维修\升级\企业单位电脑维护!
只看该作者
分享本楼
mihoutao
来自 江苏省
精华 0
注册 2018-1-2
美缝多少钱一平
---发自iPhone 6 Plus---
2018-1-12 12:31
10楼
MY0511相亲,一分钟注册,享一辈子幸福!
只看该作者
分享本楼
雪MM
来自 江苏省
精华 0
注册 2018-1-9
好像装修材料年后要大涨 所以我赶紧开始装
---发自梦溪论坛手机客户端---
2018-1-12 14:04
11楼
0511家装频道:本地家居服务平台,数万业主共同选择
只看该作者
分享本楼
壹零装饰
来自 江苏省
精华 0
注册 2017-12-22
毕业照 不错哦
---发自梦溪论坛手机客户端---
2018-1-12 14:07
12楼
[联宇电脑] 电脑组装\维修\升级\企业单位电脑维护!
只看该作者
分享本楼
面对面原创
家装认证商户
来自 江苏省
精华 0
注册 2009-10-17
行业 房产建筑
楼主的毕业照很棒哦,赞一个
2018-1-12 16:48
13楼
[联宇电脑] 电脑组装\维修\升级\企业单位电脑维护!
只看该作者
分享本楼
simon1942
来自 江苏省
精华 0
注册 2010-4-26
行业 房产建筑
QUOTE:
原帖由
mihoutao
于 18-1-12 12:31 发表
美缝多少钱一平
美缝是卓高
---发自iPhone 6S---
2018-1-15 07:34
14楼
0511家装频道:本地家居服务平台,数万业主共同选择
只看该作者
分享本楼
返回家庭装修
快速回复主题
游客
您目前还是游客,请
登录
或
注册
您目前是游客,本帖已被系统设置了自动关闭,不可回复!
文明交流,理性发言
0/5000字
<
>
请在打开的新窗口中支付完成打赏
我已完成支付打赏
支付失败重新支付
其他金额
打赏金额:
元
确定
支付打赏
提 现
打赏人
打赏金额(元)
打赏时间
Powered by
Discuz! X 2
0.026864 s
清除 Cookies
-
镇江网友之家
-
手机版
论坛导航
关闭
吃喝玩乐
饮食男女
镇江钓友之家
菜菜鸟户外
镇江单车俱乐部
镜头里的镇江
畅游天下
猫狗总动员
视觉Coffeeshop摄影部落
花鸟鱼虫
婚姻.亲子.家庭
家有学子
谈婚论嫁
女性天地
母婴乐园
婚姻生活
梦溪佳缘
装修
家庭装修
装修招标
镇江室内设计师交流
装修商家直通车
你好,镇江!
百姓话题
我要买房
0511爱心家园
市场监管•12315热线
分类信息
生活服务
闲置转让
镇江二手房/镇江租房
镇江招聘求职
教育培训
镇江二手车
商铺厂房写字楼租售
宠物市场
运动健身
卡券交易
电脑维修升级
杂货铺
其他分类信息区
兴趣爱好
HiFi音响江城沙龙
镇江市美术家协会
我爱模型
车友俱乐部
车迷之家
汽车驾培中心
运动俱乐部
镇江市冬泳、铁人三项协会
聚焦足球
镇江羽毛球
镇江乒乓球协会
镇江网球协会
镇江市自行车运动协会
热爱篮球
动力机车
合作栏目
维权热线
天翼时代
色觉影像摄影工作室
站务区
疑问与建议
网络问政
市政府工作部门
垂直管理部门
党群工作部门
其他重点单位
辖市(区)