收藏本站
客户端
扫码下载客户端
官方微信
打开微信扫一扫
登录
|
注册
|
标题
标题
用户
全站首页
|
论坛导航
|
网络问政
|
招聘求职
|
买房租房
|
装修频道
|
生活服务
|
教育
|
相亲
|
亲子
|
美食
|
婚嫁
|
手机客户端
家有学子
|
母婴乐园
快捷导航
精彩推荐:
MY0511客户端下载
中信银行镇江分行
公益体彩 乐善人生
鹏龙鸿蒙
天然石材·人造石
»
梦溪论坛
»
家庭装修
» 简单装一下,两小孩实用为主
家庭装修
>
[家居图片]
简单装一下,两小孩实用为主
查看: 11820 回复: 3
快速回复
返回家庭装修
[家居图片]
简单装一下,两小孩实用为主
查看: 11820 回复: 3
上一主题
|
下一主题
奋斗先生
来自 江苏省
精华 0
注册 2017-12-9
行业 房产建筑
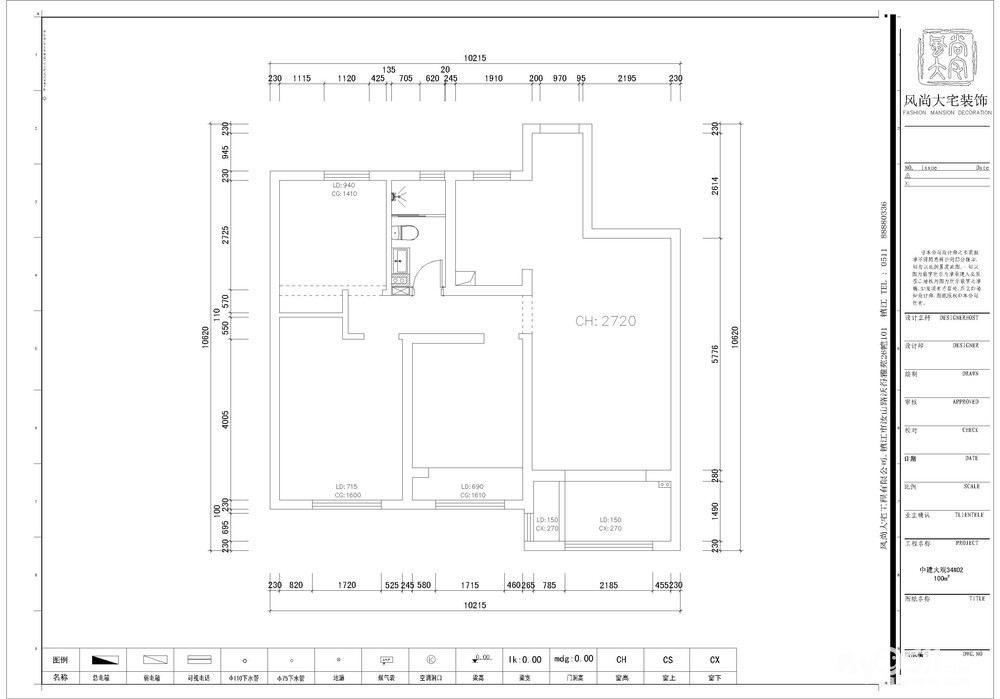
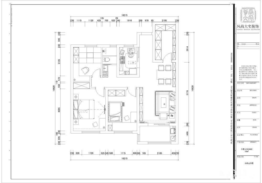
简单装一下,两小孩实用为主
家门口公司,还都是老乡,聊了一下,非常好,目前很顺心
已有
0
人打赏
2018-1-12 17:41
1楼
[联宇电脑] 电脑组装\维修\升级\企业单位电脑维护!
只看该作者
分享本楼
筱双成对
来自 江苏省
精华 0
注册 2017-3-5
这是效果图么
---发自iPhone 7 Plus---
2018-1-12 18:30
2楼
0511家装频道:本地家居服务平台,数万业主共同选择
只看该作者
分享本楼
wm545193050
来自 江苏省
精华 0
注册 2014-11-25
---发自iPhone 6 Plus---
2018-1-12 19:12
3楼
买房、卖房、租房上镇江房产网!
只看该作者
分享本楼
奋斗先生
来自 江苏省
精华 0
注册 2017-12-9
行业 房产建筑
QUOTE:
原帖由
筱双成对
于 18-1-12 18:30 发表
这是效果图么
这只是简单的效果图,有兴趣聊一下
---发自梦溪论坛手机客户端---
2018-1-12 19:53
4楼
[联宇电脑] 电脑组装\维修\升级\企业单位电脑维护!
只看该作者
分享本楼
返回家庭装修
快速回复主题
游客
您目前还是游客,请
登录
或
注册
您目前是游客,本帖已被系统设置了自动关闭,不可回复!
文明交流,理性发言
0/5000字
<
>
请在打开的新窗口中支付完成打赏
我已完成支付打赏
支付失败重新支付
其他金额
打赏金额:
元
确定
支付打赏
提 现
打赏人
打赏金额(元)
打赏时间
Powered by
Discuz! X 2
0.059016 s
清除 Cookies
-
镇江网友之家
-
手机版
论坛导航
关闭
吃喝玩乐
饮食男女
镇江钓友之家
菜菜鸟户外
镇江单车俱乐部
镜头里的镇江
畅游天下
猫狗总动员
视觉Coffeeshop摄影部落
花鸟鱼虫
婚姻.亲子.家庭
家有学子
谈婚论嫁
女性天地
母婴乐园
婚姻生活
梦溪佳缘
装修
家庭装修
装修招标
镇江室内设计师交流
装修商家直通车
你好,镇江!
百姓话题
我要买房
0511爱心家园
市场监管•12315热线
分类信息
生活服务
闲置转让
镇江二手房/镇江租房
镇江招聘求职
教育培训
镇江二手车
商铺厂房写字楼租售
宠物市场
运动健身
卡券交易
电脑维修升级
杂货铺
其他分类信息区
兴趣爱好
HiFi音响江城沙龙
镇江市美术家协会
我爱模型
车友俱乐部
车迷之家
汽车驾培中心
运动俱乐部
镇江市冬泳、铁人三项协会
聚焦足球
镇江羽毛球
镇江乒乓球协会
镇江网球协会
镇江市自行车运动协会
热爱篮球
动力机车
合作栏目
维权热线
天翼时代
色觉影像摄影工作室
站务区
疑问与建议
网络问政
市政府工作部门
垂直管理部门
党群工作部门
其他重点单位
辖市(区)