【小区名称】大观天下南区【所在楼层】五楼
【建筑面积】211m2(含阁楼)
【装修风格】简约新中式
【包工方式】半包
【装修公司】品睿装饰
【设计师】汪海燕
【开工日期】2018年1月18日
【装修预算】40万(只是想想,不能当真)
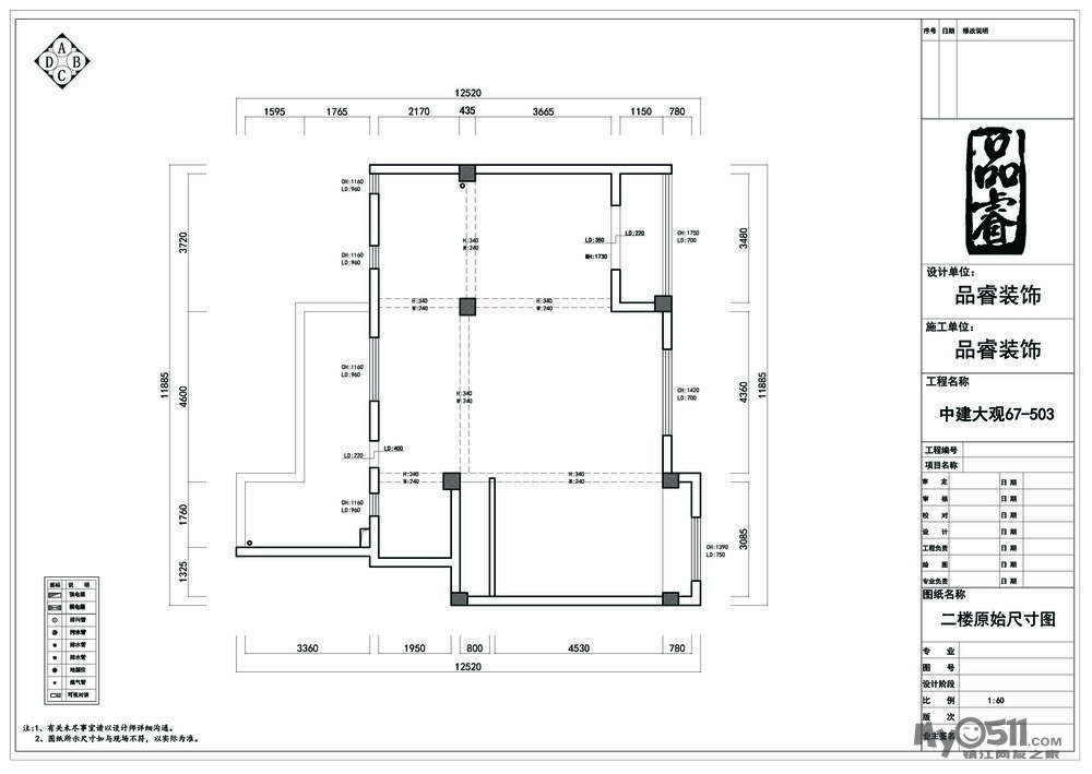
【户型图片】
欢迎加入家装官方VIP别墅群 群号:565444352
[ 本帖最后由 my0511菲雪 于 18-1-22 08:36 编辑 ]
- 来自 江苏省
 - 精华 0
 - 注册 2015-3-13
 
- 来自 江苏省
 - 精华 0
 - 注册 2016-6-23
 
- 来自 江苏省
 - 精华 0
 - 注册 2015-3-13
 
【奇葩的飘窗】
买房时看了样板房,满心欢喜,兴奋之余看毛坯房时处处都觉得不错,忽略很多细节。拿房后在设计之时突然才发现卧室中的飘窗是如此之大,大到站在地下无法开关窗户,难道这是专门给姚明设计的?我想即使是姚明也未必能把窗户关上。没有办法只能施展一下身手了:后退几步,一个助跑,猛然一跃,才跳了上去。放在十年前应该还能轻松一点,现在只能勉强,有时掌握不好时机还跳不上去。静静的望着这奇葩的飘窗还暗暗窃喜:那么大面积赠送的,仿佛自己捡了个大便宜。不以为然的认为,装修时把它敲掉。哪知现实是残酷的,物业坚决不同意业主敲掉飘窗,称敲掉飘窗会影响主体结构,导致外墙松动、下沉。这下怎么办,不至于每次都上蹿下跳的开关窗户吧!何况家里老人、小孩怎么去开关呢!即使踩着凳子上下那也不安全啊!奇葩的飘窗。无图无真相,飘窗尺寸:宽78㎝,高75㎝,长等同于每个房间宽度。
买房时看了样板房,满心欢喜,兴奋之余看毛坯房时处处都觉得不错,忽略很多细节。拿房后在设计之时突然才发现卧室中的飘窗是如此之大,大到站在地下无法开关窗户,难道这是专门给姚明设计的?我想即使是姚明也未必能把窗户关上。没有办法只能施展一下身手了:后退几步,一个助跑,猛然一跃,才跳了上去。放在十年前应该还能轻松一点,现在只能勉强,有时掌握不好时机还跳不上去。静静的望着这奇葩的飘窗还暗暗窃喜:那么大面积赠送的,仿佛自己捡了个大便宜。不以为然的认为,装修时把它敲掉。哪知现实是残酷的,物业坚决不同意业主敲掉飘窗,称敲掉飘窗会影响主体结构,导致外墙松动、下沉。这下怎么办,不至于每次都上蹿下跳的开关窗户吧!何况家里老人、小孩怎么去开关呢!即使踩着凳子上下那也不安全啊!奇葩的飘窗。无图无真相,飘窗尺寸:宽78㎝,高75㎝,长等同于每个房间宽度。






支持下新同学
点击进入:
好大的房子,等着欣赏美美的效果图


