| 标题
快捷导航

精彩推荐:MY0511客户端下载

    • 中信银行镇江分行

    • 公益体彩 乐善人生

    • 鹏龙鸿蒙

    • 天然石材·人造石

    » 梦溪论坛 » 家庭装修 » 年后装修,先来积累经验
    家庭装修  >  [装修日记] 年后装修,先来积累经验     
    查看: 20682  回复: 38
    [装修日记] 年后装修,先来积累经验      查看: 20682  回复: 38
    • 来自 0
    • 精华 0
    • 注册 2015-8-30
    •  
    年后装修,先来积累经验

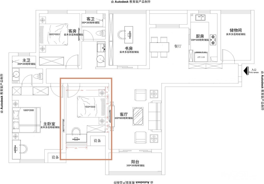
    房子拿到手后,就准备开始装修,还没有买任何东西,也没有找到装修公司,先找了个网红装修公司量了下房子,就放假了,准备年后再说,先上户型图,


    总感觉南卧室尺寸有点紧张,上个清晰的尺寸图


    [ 本帖最后由 静待我的花儿开 于 18-2-14 19:39 编辑 ]





                      
    • 来自 0
    • 精华 0
    • 注册 2015-8-30
    •  



    因为南边次卧室尺寸较小,我又用画图软件设计了几个方案,请大家帮我看看,哪个方案会好点,




    • 来自 江苏省
    • 精华 0
    • 注册 2016-12-6
    •  

    最新式装修集成全屋整装!绝对。环保,省工省时、大气,上档次!




    • 来自 江苏省
    • 精华 0
    • 注册 2017-5-8
    •  

    第三种吧,卧室最好留个衣柜




    • 来自 0
    • 精华 3
    • 注册 2005-10-5
    • 行业 房产建筑
    •  

    床靠背墙可以作整面柜子,床嵌入式,这样储藏空间比较大。




    • 来自 江苏省
    • 精华 0
    • 注册 2010-3-16
    • 行业 房产建筑
    •  

    您好楼主,我是赫本世奇别墅设计的设计师,第一种方案肯定不宜,床不能南北方向摆放,如果您对次卧室必须有收纳的硬性要求的可以考虑榻榻米床,保证卧室功能的同时还能兼具充足的收纳空间。或者方便您可以加我微信15050892741了解下我们公司的资质和设计。新年快乐




    • 来自 江苏省
    • 精华 0
    • 注册 2017-3-13
    •  

    这个房间小了点可以作为客房




    • 来自 江苏省
    • 精华 0
    • 注册 2009-2-28
    • 行业 工业制造
    •  


    QUOTE:
    原帖由 佩恩青 于 18-2-14 23:31 发表
    您好楼主,我是赫本世奇别墅设计的设计师,第一种方案肯定不宜,床不能南北方向摆放,如果您对次卧室必须有收纳的硬性要求的可以考虑榻榻米床,保证卧室功能的同时还能兼具充足的收纳空间。或者方便您可以加我微信 ...
    床为什么不能南北方向摆?最科学的摆法就是南北方向,让地球的磁力线和人体平行,只不过大部分人家的朝南开窗的房间无法南北方向摆床




    • 来自 江苏省
    • 精华 233
    • 注册 2011-7-1
    • 行业 其它
    •  

    第三种方案看是合理,其实也有缺点,缺点是大床长度起码是两米,左边留80公分如果房门做80公分开门就会有影响,这个是可以计算出来的,总长2760,门套线是六公分,床两米,80公分的门,这些数据确定的话,那开门的时候就会碰到床了,第二种方案缺点是没有衣柜,房间还是有个衣柜比较好,不管谁住在里面多少都会有自己的衣服,时间久了会更多,如果你想把床按照第二和第三种方案放的话可以考虑把左边的走道墙打了(建立在好打的基础上)可以借用墙的尺寸再利用房间的尺寸做一排衣柜,写字台做50公分,凳子留80公分就可以了,第一种方案实际是最合理的,空间利用率高,活动空间大,不要过分注重风水,合理流畅的空间就是最好的风水,




    • 来自 江苏省
    • 精华 233
    • 注册 2011-7-1
    • 行业 其它
    •  


    QUOTE:
    原帖由 浪里寻花 于 18-2-14 23:18 发表
    床靠背墙可以作整面柜子,床嵌入式,这样储藏空间比较大。
    房间只有2760不能这样做柜子了,不然空间感更紧




    • 来自 江苏省
    • 精华 0
    • 注册 2014-9-11
    • 行业 其它
    •  

    一三九一三四三四五六五!偷偷摸摸的告诉你,真的还不错哦




    • 来自 江苏省
    • 精华 0
    • 注册 2014-11-25
    •  
    • 来自 0
    • 精华 0
    • 注册 2015-8-30
    •  


    QUOTE:
    原帖由 万家基和客服 于 18-2-15 13:18 发表
    第三种方案看是合理,其实也有缺点,缺点是大床长度起码是两米,左边留80公分如果房门做80公分开门就会有影响,这个是可以计算出来的,总长2760,门套线是六公分,床两米,80公分的门,这些数据确定的话,那开门的 ...
    其实,好多人都问我,本身有个书房,为何要在孩子房间放个写字台,可能是我一直觉得书房内会放上电脑,孩子看到电脑就会想玩,心不会放在作业上,但是房间如果有个桌子,孩子只要起床就会看看书,不用到书房去了,其实,本来上门量房的人的设计是下面的图,只是我一直感觉一个剽窗的位置放那儿太浪费了,就一定要加个写字台的,自己改变了位置,没想到对门的影响,下面放一张设计的原始图,你再看下,这样设计合理吗?
    这样的话就不可以放写字台了,孩子就要到书房写作业了





    • 来自 江苏省
    • 精华 0
    • 注册 2016-6-23
    •  

    新年好,祝新的一年身体健康,万事如意




    • 来自 江苏省
    • 精华 0
    • 注册 2016-6-23
    •  

    新年好,祝新的一年身体健康,万事如意




    • 来自 江苏省
    • 精华 7
    • 注册 2005-9-7
    • 行业 其它
    • 家装达人
    •  

    我不怎么懂设计,要是我的房子,衣柜布置就按照下图的位置,我会把飘窗布置一个写字台的位置(预留电源网络插座等),2个床头柜撤掉一只,房间里面放一个床头柜应该就可以了,这样房间的空间相对还是有点充裕的,实用也能够兼顾。


    [ 本帖最后由 泰山 于 18-2-19 16:31 编辑 ]




    • 来自 江苏省
    • 精华 233
    • 注册 2011-7-1
    • 行业 其它
    •  


    QUOTE:
    原帖由 静待我的花儿开 于 18-2-15 16:02 发表
    其实,好多人都问我,本身有个书房,为何要在孩子房间放个写字台,可能是我一直觉得书房内会放上电脑,孩子看到电脑就会想玩,心不会放在作业上,但是房间如果有个桌子,孩子只要起床就会看看书,不用到书房去了, ...
    这样的布局肯定是可以的,孩子书桌按照我个人想法还是在他自己房间比较适合,不过在书房也是可以的,看孩子习惯,




    • 来自 江苏省
    • 精华 0
    • 注册 2011-2-22
    • 行业 教育科研
    •  

    书房只是专给孩子用的吗?那房间可以不用书桌。如果不是,为什么不用1.35的床或者去掉一个床头柜?个人感觉给孩子的房间,留的活动空间大一些好呢。孩子如果小,还可以考虑多功能床(上床下桌或者上床下衣柜)




    • 来自 江苏省
    • 精华 0
    • 注册 2011-2-22
    • 行业 教育科研
    •  

    简单说,书房给孩子专用,那按照设计师的不留书桌;考虑儿童房要有书桌,那选1,推荐多功能床,可带书架之类的。




    • 来自 江苏省
    • 精华 0
    • 注册 2018-1-13
    •  

    次卧确实很难设计,我也考虑了好久,我考虑用一个床头柜,你的衣柜好象是拉门,拉门有个缺点,柜子过一段时间有灰。




    • 来自 0
    • 精华 0
    • 注册 2017-1-6
    • 行业 房产建筑
    •  
    半夏的港湾

    楼主,新年好,购买进口涂料,来红星美凯龙负一楼芬琳漆店




    • 来自 0
    • 精华 0
    • 注册 2015-8-30
    •  


    QUOTE:
    原帖由 孟元妈 于 18-2-22 00:06 发表
    书房只是专给孩子用的吗?那房间可以不用书桌。如果不是,为什么不用1.35的床或者去掉一个床头柜?个人感觉给孩子的房间,留的活动空间大一些好呢。孩子如果小,还可以考虑多功能床(上床下桌或者上床下衣柜)
      书房打算孩子专用,考虑了很久,决定和hdzjjb一样只用一个床头柜,并且不放书桌,窗子留做活动空间,我家孩子15岁了,有点胖,1.35的床我感觉是够了,孩子爸爸怕他掉下来,孩子爸爸总是想的太多,没办法,




    • 来自 0
    • 精华 0
    • 注册 2015-8-30
    •  


    QUOTE:
    原帖由 泰山 于 18-2-19 16:26 发表
    我不怎么懂设计,要是我的房子,衣柜布置就按照下图的位置,我会把飘窗布置一个写字台的位置(预留电源网络插座等),2个床头柜撤掉一只,房间里面放一个床头柜应该就可以了,这样房间的空间相对还是有点充裕的, ...
      谢谢泰山,最后决定只留下一个床头柜,看了泰山的好多帖子了,你来我帖子,感觉很荣兴啊




    • 来自 0
    • 精华 0
    • 注册 2015-8-30
    •  

    关于洗碗机,因为我的个子比较的小,我选择的洗碗机比较的大,是西门子13套的,一直在想怎么安装,最后发现可以把顶盖下了,尺寸就会小很多,高度只有815,这样安装的话台面只要留82CM就可以了,加上台面的厚度,应该是够了







    • 来自 0
    • 精华 0
    • 注册 2015-8-30
    •  


    别问我这个图片为什么这么丑,我只能说,我用的电脑附件中画图搞出来的,因为,还没找到装修公司,也没有人帮忙出图,只有先自己凑合着来了,




    • 来自 0
    • 精华 0
    • 注册 2014-10-16
    •  


    QUOTE:
    原帖由 静待我的花儿开 于 18-2-22 21:26 发表
    [attach]23506123[/attach]
    别问我这个图片为什么这么丑,我只能说,我用的电脑附件中画图搞出来的,因为,还没找到装修公司,也没有人帮忙出图,只有先自己凑合着来了,
    找几家装修公司量房出方案,厨房可以看看橱柜,让他们过来量下给你出个图




    • 来自 江苏省
    • 精华 4
    • 注册 2005-7-24
    •  

    其实卧室嘛主要就承载一个休息的功能,所以现在的中小户型的卧室都很小,看书写字可以在书房,娱乐休闲可以在客厅,卧室面积太大其实还是挺浪费的。

    我现在住的老房子90平,卧室有近18平,虽然看起来确实很大很宽阔,但说实话确实蛮浪费的。户型其实并不好,两室半一厅,没有客厅,装修时靠阳台的一个房间改成了客厅,另一个小房间当书房,以前两口子住倒还凑合,现在孩子大了就只能把书房的两台电脑桌搬到卧室里,就这样卧室还空出了一条1米多的走道,原来的书房就空出来做次卧了。

    至于床南北、东西放从科学上讲都没问题,南北向可能更好,不被磁场分割。只是从风水上讲中国人比较忌讳南北放,因为古人过世以后都是南北向放置的,所以古人自古就比较忌讳床南北向放置。现代的城里人多数不会忌讳这些了,农村人的风俗还是比较传统,估计还是会有些讲究的。

    [ 本帖最后由 52wy 于 18-2-26 10:03 编辑 ]




    • 来自 江苏省
    • 精华 0
    • 注册 2017-6-16
    •  

    1.35的床+一个床头柜




    • 来自 江苏省
    • 精华 0
    • 注册 2006-7-20
    • 行业 学生
    •  

    最近也准备装修,也遇到和楼主一样的次卧布置问题,个人倾向方案一,写字桌可以考虑东西坐向,看书写字背对门不舒服。




    • 来自 江苏省
    • 精华 233
    • 注册 2011-7-1
    • 行业 其它
    •  

    可以先和设计师沟通起来,设计师会给您一些建议,你在参考一下,这样你就不用一直琢磨了,




    • 来自 江苏省
    • 精华 0
    • 注册 2017-8-23
    •  

    找装修公司一家家的对比才知道好坏




    • 来自 江苏省
    • 精华 0
    • 注册 2017-5-19
    •  

    楼主加油




    • 来自 江苏省
    • 精华 53
    • 注册 2006-9-5
    • 行业 房产建筑
    •  

    默默关注




    • 来自 江苏省
    • 精华 0
    • 注册 2017-3-31
    •  

    可以找设计师沟通沟通,你想要的跟他说,再看看他那边有没有什么好的意见




    • 来自 江苏省
    • 精华 0
    • 注册 2018-3-8
    •  

    你好,我们是一号家居网装修公司,免费量房
    找我们一号家居网就对了
    14年家装服务品牌,拥有国内最大的家装全产业生态链,是中国电子商务协会认证的移动互联网最具影响力的家居O2O平台。
    一号家居网全国设有69家分公司,线下商城数量达到600多家。
    9000多平的线下商城,主材辅材都看到的见 七种不同风格的样板房 ,可以去看我们的在施工地。
    地址:镇江城际高铁站南广场西侧领城广场2、3楼
    咨询电话:13218399096 (微信同号哦)




    • 来自 江苏省
    • 精华 0
    • 注册 2018-2-24
    • 行业 商业贸易
    •  

    1.35的床没问题,学校的床都是一米的。




    • 来自 江苏省
    • 精华 0
    • 注册 2018-1-4
    •  
    凡东尼瓷砖美缝

    开工大吉!凡东尼美缝选用德国进口原材料生产的美逢剂和瓷砖背胶!CCTV央视优选品牌!质保十年!地址:旭辉时代城8-125号!电话:[url=tel:17315778282]17315778282[/url]颜先生!欢迎来电或者到店咨询!




    • 来自 江苏省
    • 精华 0
    • 注册 2018-4-5
    •  


    QUOTE:
    原帖由 静待我的花儿开 于 18-2-22 21:26 发表
    [attach]23506123[/attach]
    别问我这个图片为什么这么丑,我只能说,我用的电脑附件中画图搞出来的,因为,还没找到装修公司,也没有人帮忙出图,只有先自己凑合着来了,
    厉害了,我晚上上传几张毕业照,还折腾到半夜。总传不上去




    • 来自 江苏省
    • 精华 0
    • 注册 2017-8-17
    •  

    楼主画图牛啊




    查看积分策略说明快速回复主题
    您目前还是游客,请 登录注册
    您目前是游客,本帖已被系统设置了自动关闭,不可回复!

    0/5000字

     
    < >
     

    Powered by Discuz! X 2 0.053934 s 清除 Cookies - 镇江网友之家 - 手机版
    论坛导航 关闭