收藏本站
客户端
扫码下载客户端
官方微信
打开微信扫一扫
登录
|
注册
|
标题
标题
用户
全站首页
|
论坛导航
|
网络问政
|
招聘求职
|
买房租房
|
装修频道
|
生活服务
|
教育
|
相亲
|
亲子
|
美食
|
婚嫁
|
手机客户端
家有学子
|
母婴乐园
快捷导航
精彩推荐:
MY0511客户端下载
中信银行镇江分行
公益体彩 乐善人生
鹏龙鸿蒙
天然石材·人造石
»
梦溪论坛
»
家庭装修
» 装修进行时
家庭装修
>
[装修日记]
装修进行时
查看: 14300 回复: 31
快速回复
返回家庭装修
[装修日记]
装修进行时
查看: 14300 回复: 31
上一主题
|
下一主题
妞妞0611
来自 江苏省
精华 0
注册 2018-4-14
装修进行时
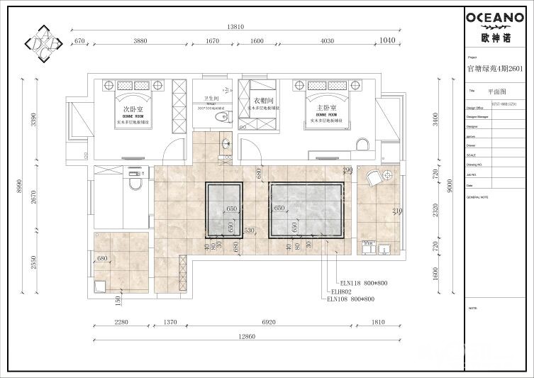
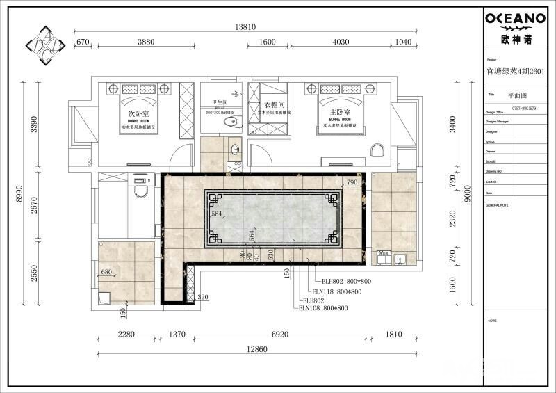
拿房到选定装潢公司 是个技术活。特别是对我这个常州上班的镇江菇凉 !
在同学的推荐选定了玉楼装饰。进行到现在一切满意。虽然是全包,我们的意见,装潢公司还是充分的考虑了。
下面是客厅的拼花图纸,装潢公司给了2套方案,装潢好的朋友有没有更好的建议!欢迎留言。还有后期软装搭配。
---发自OPPO---
已有 红居装饰, 老友记装饰客服, 双羽木门专卖
3
人打赏
2018-4-25 11:12
1楼
MY0511相亲,一分钟注册,享一辈子幸福!
只看该作者
分享本楼
万盛石材
来自 江苏省
精华 0
注册 2017-6-10
恭喜恭喜
---发自梦溪论坛手机客户端---
2018-4-25 12:29
2楼
MY0511相亲,一分钟注册,享一辈子幸福!
只看该作者
分享本楼
香港红苹果木门
来自 江苏省
精华 0
注册 2018-2-24
行业 商业贸易
:
2018-4-25 12:44
3楼
[联宇电脑] 电脑组装\维修\升级\企业单位电脑维护!
只看该作者
分享本楼
美缝潘师傅
禁止发言
来自 江苏省
精华 0
注册 2017-12-7
*** 作者因违反论坛规定,禁言处理,内容自动屏蔽 ***
详情参阅论坛注册条款:
http://bbs.my0511.com/f11b-t2789156z
2018-4-25 14:07
4楼
买房、卖房、租房上镇江房产网!
只看该作者
分享本楼
一号家居网镇江
专版版主
来自 江苏省
精华 0
注册 2018-3-8
恭喜楼主
2018-4-25 14:15
5楼
[联宇电脑] 电脑组装\维修\升级\企业单位电脑维护!
只看该作者
分享本楼
shunjianlcp7902
来自 江苏省
精华 0
注册 2018-4-17
行业 其它
恭喜恭喜
2018-4-25 15:05
6楼
找工作,就上MY0511!
只看该作者
分享本楼
宇祥装饰客服
来自 江苏省
精华
8
注册 2010-9-13
行业 房产建筑
开工大吉
2018-4-25 15:15
7楼
买房、卖房、租房上镇江房产网!
只看该作者
分享本楼
法诗顿移门
来自 江苏省
精华 0
注册 2017-7-1
2018-4-25 16:47
8楼
0511家装频道:本地家居服务平台,数万业主共同选择
只看该作者
分享本楼
森香木门楼梯
来自 江苏省
精华 0
注册 2018-4-17
开工大吉
---发自梦溪论坛手机客户端---
2018-4-25 17:11
9楼
找工作,就上MY0511!
只看该作者
分享本楼
智能化时代
来自 江苏省
精华 0
注册 2017-9-24
---发自OPPO R9---
2018-4-25 22:09
10楼
MY0511相亲,一分钟注册,享一辈子幸福!
只看该作者
分享本楼
润格进口门窗
来自 江苏省
精华 0
注册 2017-2-4
---发自iPhone 7---
2018-4-25 22:45
11楼
[联宇电脑] 电脑组装\维修\升级\企业单位电脑维护!
只看该作者
分享本楼
巴森系统一体窗
来自 江苏省
精华 0
注册 2017-4-20
恭喜恭喜,
---发自vivo---
2018-4-25 23:20
12楼
[联宇电脑] 电脑组装\维修\升级\企业单位电脑维护!
只看该作者
分享本楼
金龙舒适家客服
来自 江苏省
精华 0
注册 2016-4-13
行业 工业制造
恭喜开工大吉
2018-4-26 09:23
13楼
[联宇电脑] 电脑组装\维修\升级\企业单位电脑维护!
只看该作者
分享本楼
鸿鹄家居
来自 江苏省
精华
2
注册 2016-11-17
恭喜开工
2018-4-26 09:57
14楼
0511家装频道:本地家居服务平台,数万业主共同选择
只看该作者
分享本楼
伊博莱门窗
来自 江苏省
精华 0
注册 2016-11-14
装修是个辛苦活,加油了
2018-4-26 10:04
15楼
MY0511相亲,一分钟注册,享一辈子幸福!
只看该作者
分享本楼
红居装饰
专版版主
来自 江苏省
精华
405
注册 2016-10-30
行业 房产建筑
开工大吉哦!
2018-4-26 10:46
16楼
[联宇电脑] 电脑组装\维修\升级\企业单位电脑维护!
只看该作者
分享本楼
柏尔地板
来自 江苏省
精华 0
注册 2017-3-13
次卧室门对着进户门好像不妥
---发自梦溪论坛手机客户端---
2018-4-26 12:57
17楼
买房、卖房、租房上镇江房产网!
只看该作者
分享本楼
妞妞0611
来自 江苏省
精华 0
注册 2018-4-14
没有正对着 有偏差的 亲
---发自OPPO---
2018-4-26 13:06
18楼
MY0511相亲,一分钟注册,享一辈子幸福!
只看该作者
分享本楼
伊慕装饰
专版版主
来自 0
精华 0
注册 2014-10-16
QUOTE:
原帖由
妞妞0611
于 18-4-25 11:12 发表
拿房到选定装潢公司 是个技术活。特别是对我这个常州上班的镇江菇凉 !
在同学的推荐选定了玉楼装饰。进行到现在一切满意。虽然是全包,我们的意见,装潢公司还是充分的考虑了。
下面是客厅的拼花图纸,装潢公司 ...
2018-4-26 13:45
19楼
0511家装频道:本地家居服务平台,数万业主共同选择
只看该作者
分享本楼
亿都宏宇陶瓷
来自 江苏省
精华 0
注册 2013-11-20
恭喜开工大吉
2018-4-26 13:48
20楼
MY0511相亲,一分钟注册,享一辈子幸福!
只看该作者
分享本楼
XH18052878176
来自 江苏省
精华 0
注册 2016-1-5
开工大吉啊
---发自梦溪论坛手机客户端---
2018-4-26 17:33
21楼
MY0511相亲,一分钟注册,享一辈子幸福!
只看该作者
分享本楼
佳安舒适家
来自 江苏省
精华
55
注册 2017-2-10
开工大吉~
2018-4-27 14:45
22楼
[联宇电脑] 电脑组装\维修\升级\企业单位电脑维护!
只看该作者
分享本楼
双羽木门专卖
来自 江苏省
精华 0
注册 2017-5-19
2018-4-27 16:55
23楼
[联宇电脑] 电脑组装\维修\升级\企业单位电脑维护!
只看该作者
分享本楼
老友记装饰黄
来自 江苏省
精华 0
注册 2016-6-23
欢迎新同学
2018-4-27 17:53
24楼
[联宇电脑] 电脑组装\维修\升级\企业单位电脑维护!
只看该作者
分享本楼
力天名门魏
来自 0
精华
1
注册 2018-4-24
恭喜开工大吉
2018-4-27 19:39
25楼
找工作,就上MY0511!
只看该作者
分享本楼
玉楼精品装饰
来自 江苏省
精华
33
注册 2018-3-6
行业 房产建筑
合作愉快
---发自OPPO---
2018-4-29 11:27
26楼
MY0511相亲,一分钟注册,享一辈子幸福!
只看该作者
分享本楼
家装超人
VIP
来自 江苏省
精华
1
注册 2009-9-8
行业 其它
恭喜楼主开工大吉!
我家是月星二楼的 好莱客 全屋定制。
最近有活动,力度很大哦!
有兴趣可以来店里看看哦
2018-4-29 15:04
27楼
MY0511相亲,一分钟注册,享一辈子幸福!
只看该作者
分享本楼
笑呀笑
来自 0
精华 0
注册 2006-11-1
行业 房产建筑
恭喜开工大吉
2018-4-29 16:22
28楼
找工作,就上MY0511!
只看该作者
分享本楼
玉楼精品装饰
来自 江苏省
精华
33
注册 2018-3-6
行业 房产建筑
---发自梦溪论坛手机客户端---
2018-5-1 08:20
29楼
MY0511相亲,一分钟注册,享一辈子幸福!
只看该作者
分享本楼
金宇装饰
家装认证商户
来自 江苏省
精华
53
注册 2006-9-5
行业 房产建筑
2018-5-1 10:38
30楼
[联宇电脑] 电脑组装\维修\升级\企业单位电脑维护!
只看该作者
分享本楼
未来舒适家
来自 江苏省
精华
114
注册 2017-6-19
行业 房产建筑
开工大吉 希望所有工序顺顺利利
2018-5-1 15:59
31楼
买房、卖房、租房上镇江房产网!
只看该作者
分享本楼
玉楼精品装饰
来自 江苏省
精华
33
注册 2018-3-6
行业 房产建筑
QUOTE:
原帖由
未来舒适家
于 18-5-1 15:59 发表
开工大吉 希望所有工序顺顺利利
必须的
---发自OPPO---
2018-5-2 16:46
32楼
买房、卖房、租房上镇江房产网!
只看该作者
分享本楼
返回家庭装修
快速回复主题
游客
您目前还是游客,请
登录
或
注册
您目前是游客,本帖已被系统设置了自动关闭,不可回复!
文明交流,理性发言
0/5000字
<
>
请在打开的新窗口中支付完成打赏
我已完成支付打赏
支付失败重新支付
其他金额
打赏金额:
元
确定
支付打赏
提 现
打赏人
打赏金额(元)
打赏时间
红居装饰
1.00
2018-4-26 10:45
老友记装饰客服
1.00
2018-4-27 16:17
双羽木门专卖
1.00
2018-4-27 16:54
Powered by
Discuz! X 2
0.079156 s
清除 Cookies
-
镇江网友之家
-
手机版
论坛导航
关闭
吃喝玩乐
饮食男女
镇江钓友之家
菜菜鸟户外
镇江单车俱乐部
镜头里的镇江
畅游天下
猫狗总动员
视觉Coffeeshop摄影部落
花鸟鱼虫
婚姻.亲子.家庭
家有学子
谈婚论嫁
女性天地
母婴乐园
婚姻生活
梦溪佳缘
装修
家庭装修
装修招标
镇江室内设计师交流
装修商家直通车
你好,镇江!
百姓话题
我要买房
0511爱心家园
市场监管•12315热线
分类信息
生活服务
闲置转让
镇江二手房/镇江租房
镇江招聘求职
教育培训
镇江二手车
商铺厂房写字楼租售
宠物市场
运动健身
卡券交易
电脑维修升级
杂货铺
其他分类信息区
兴趣爱好
HiFi音响江城沙龙
镇江市美术家协会
我爱模型
车友俱乐部
车迷之家
汽车驾培中心
运动俱乐部
镇江市冬泳、铁人三项协会
聚焦足球
镇江羽毛球
镇江乒乓球协会
镇江网球协会
镇江市自行车运动协会
热爱篮球
动力机车
合作栏目
维权热线
天翼时代
色觉影像摄影工作室
站务区
疑问与建议
网络问政
市政府工作部门
垂直管理部门
党群工作部门
其他重点单位
辖市(区)