| 标题
快捷导航

精彩推荐:MY0511客户端下载

    • 中信银行镇江分行

    • 公益体彩 乐善人生

    • 鹏龙鸿蒙

    • 天然石材·人造石

    » 梦溪论坛 » 家庭装修 » 快速定公司,快速开工,选择了就是相信
    家庭装修  >  [装修日记] 快速定公司,快速开工,选择了就是相信     
    查看: 17932  回复: 22
    [装修日记] 快速定公司,快速开工,选择了就是相信      查看: 17932  回复: 22
    • 来自 江苏省
    • 精华 0
    • 注册 2017-10-30
    •  
    快速定公司,快速开工,选择了就是相信

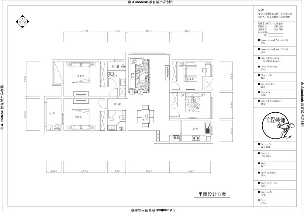
    【小区名称】:银湖花园
    【所在楼层】:19
    【建筑面积】:145
    【装修风格】:现代简约
    【包工方式】:半包
    【装修公司】:前程装饰
    【设   师】:陈总监
    【项目经理】:童万才
    【开工日期】:7月12日
    【装修预算】:30万(变化会大于计划)
    【户型图片】:











                      
    • 来自 江苏省
    • 精华 0
    • 注册 2017-10-30
    •  

    我从买房开始就一直关注装修日记版块,前期多多了解,今年年后就开始考察公司,打算7月份动工。我就是比较质量的同时,比设计、比价格,再看看他们的服务,从这四个方面进行着手定公司。我是最后一家到前程去的,本来打算不想去的,大大小小的已跑了好几家了,心中已基本上有定数了,但前程张总与我亲自沟通,态度非常诚恳,不去又不好意思,于是让公司先带我看施工工地,看样板房,看前程的施工工地规范,做工也不错,成品样板房不紧好,业主还一直在夸。接下来就约定10号到公司考察并沟通方案和报价,是陈总监接待的我,她的方案和报价给我的第一感觉就是仔细、心细。有些大点的公司设计师高高在上,其实水平也就那样,可能是对我这个客户没有用心吧,与陈总监的接触,她还把部分主要施工图纸,如背景墙、吊顶图啊等等都画出来了,都很仔细分析的讲给我听,确实比前面比较过的公司到位,决定选择前程装饰。






    • 来自 江苏省
    • 精华 0
    • 注册 2018-4-19
    •  






    • 来自 江苏省
    • 精华 8
    • 注册 2010-9-13
    • 行业 房产建筑
    •  

    恭喜开贴




    • 来自 江苏省
    • 精华 0
    • 注册 2017-9-3
    •  

    有钱,装修都要30万




    • 来自 江苏省
    • 精华 0
    • 注册 2015-11-14
    •  

    转发朋友圈打几折




    • 来自 江苏省
    • 精华 421
    • 注册 2016-10-30
    • 行业 房产建筑
    •  

    开工大吉!




    • 来自 江苏省
    • 精华 0
    • 注册 2012-8-15
    • 行业 工业制造
    •  

    恭喜开贴




    • 来自 江苏省
    • 精华 0
    • 注册 2017-10-30
    •  

    开工的记忆:














    [ 本帖最后由 幸福的羊91 于 18-7-12 16:37 编辑 ]




    • 来自 江苏省
    • 精华 0
    • 注册 2012-8-15
    • 行业 工业制造
    •  
    • 来自 江苏省
    • 精华 222
    • 注册 2016-11-15
    • 行业 广告媒体
    •  

    开工大吉




    • 来自 江苏省
    • 精华 0
    • 注册 2017-7-1
    •  

    开工大吉




    • 来自 0
    • 精华 1
    • 注册 2016-12-21
    • 行业 商业贸易
    •  

    恭喜恭喜,开工大吉




    • 来自 江苏省
    • 精华 0
    • 注册 2015-9-25
    •  

    恭喜开工大吉!




    • 来自 江苏省
    • 精华 0
    • 注册 2018-5-21
    •  

    我也是选的前程装饰,做的不错哦,我家明天木工进场了,他们做事真得很认真。




    • 来自 江苏省
    • 精华 4
    • 注册 2011-12-13
    • 行业 基础设施
    •  

    恭喜恭喜开工大吉




    • 来自 江苏省
    • 精华 0
    • 注册 2017-10-30
    •  


    QUOTE:
    原帖由 只有更好 于 2018-7-18 09:22 发表
    我也是选的前程装饰,做的不错哦,我家明天木工进场了,他们做事真得很认真。
    前程确实很好,工地干净,我家砌墙还打钢筋,粉墙都用网格布,新老墙交接处也用网格布,这样做防止以后墙面开裂。















    • 来自 江苏省
    • 精华 9
    • 注册 2010-3-23
    • 行业 房产建筑
    •  


    QUOTE:
    原帖由 幸福的羊91 于 18-7-12 15:18 发表

    我从买房开始就一直关注装修日记版块,前期多多了解,今年年后就开始考察公司,打算7月份动工。我就是比较质量的同时,比设计、比价格,再看看他们 ...

    谢谢相信我们前程,我们一定努力、加油。






    • 来自 江苏省
    • 精华 0
    • 注册 2014-1-1
    • 行业 房产建筑
    •  

    恭喜开贴




    • 来自 江苏省
    • 精华 4
    • 注册 2010-3-19
    • 行业 房产建筑
    •  

    前程装饰公司天桥分店即将盛大开业:https://v.qq.com/x/page/e0774o8daby.html




    • 来自 江苏省
    • 精华 0
    • 注册 2018-8-22
    •  

    恭喜,开工大吉




    • 来自 江苏省
    • 精华 0
    • 注册 2014-10-9
    • 行业 房产建筑
    •  

    开工大吉




    • 来自 江苏省
    • 精华 0
    • 注册 2018-10-26
    •  

    恭喜开贴,开工大吉,期待后续




    查看积分策略说明快速回复主题
    您目前还是游客,请 登录注册
    您目前是游客,本帖已被系统设置了自动关闭,不可回复!

    0/5000字

     
    < >
     

    Powered by Discuz! X 2 0.072600 s 清除 Cookies - 镇江网友之家 - 手机版
    论坛导航 关闭